查看完整案例

收藏

下载
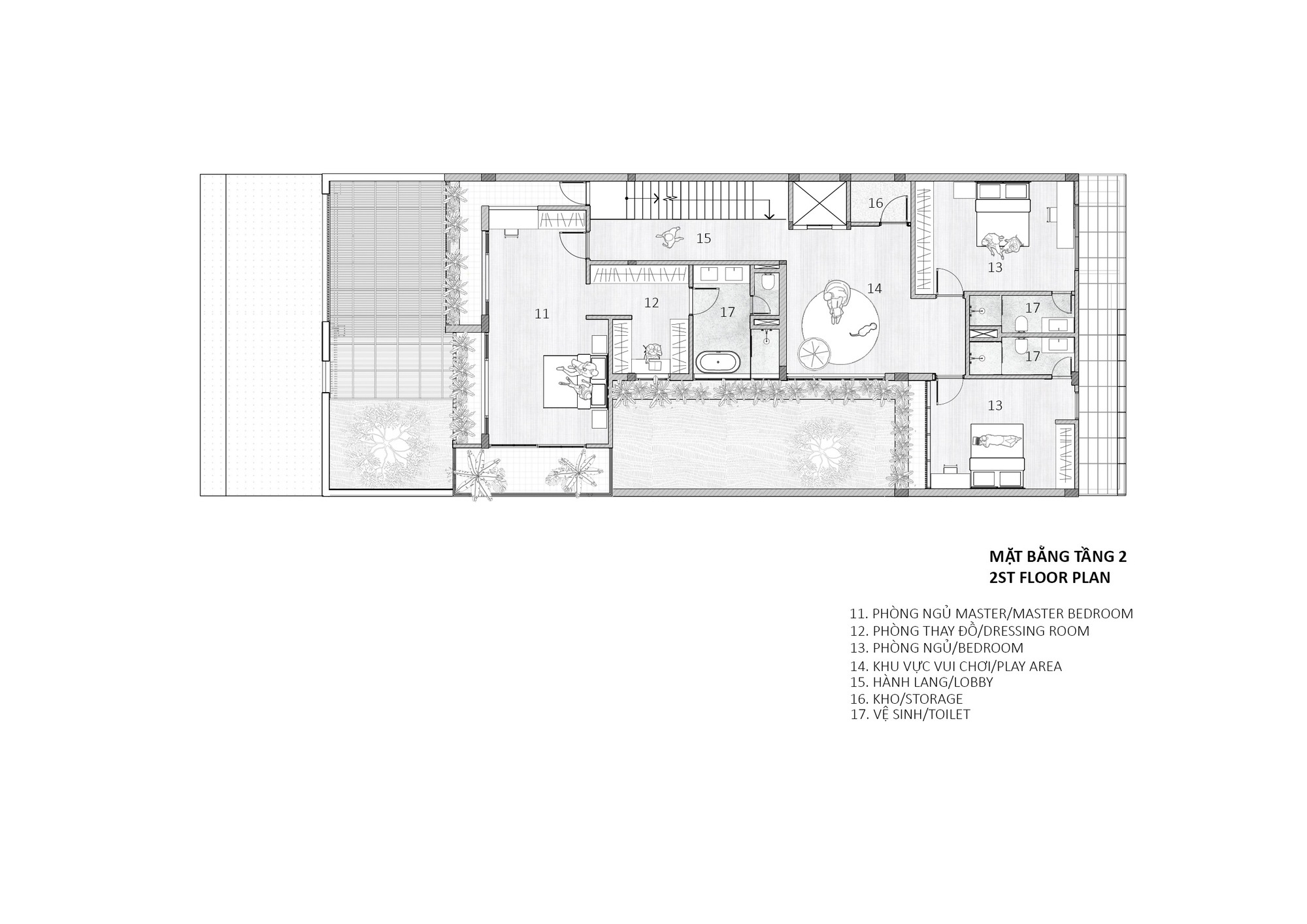
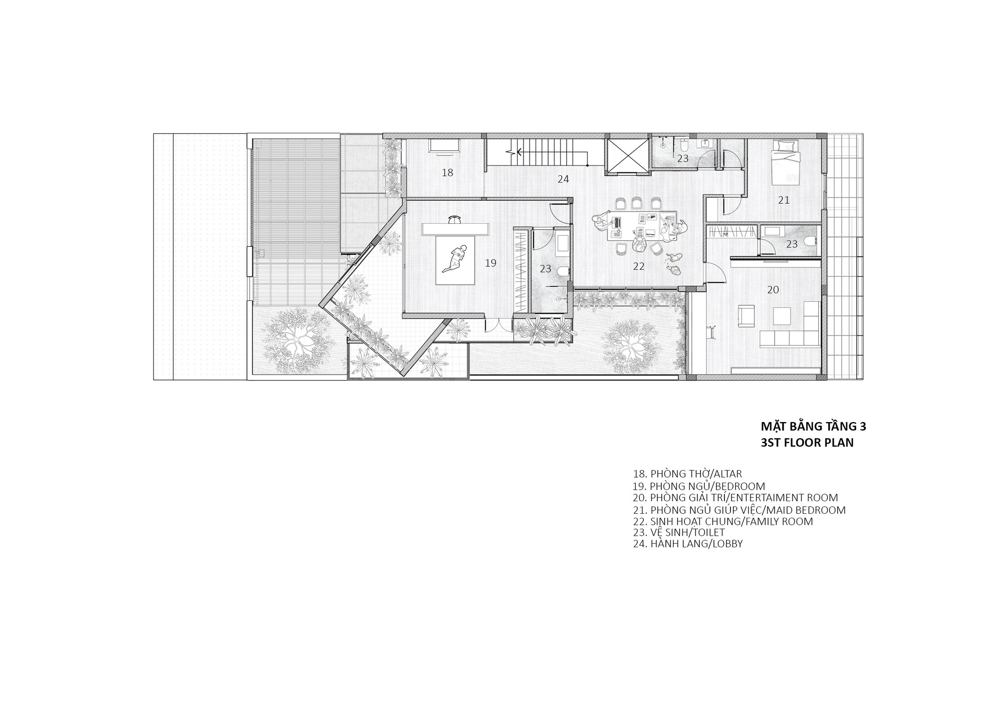
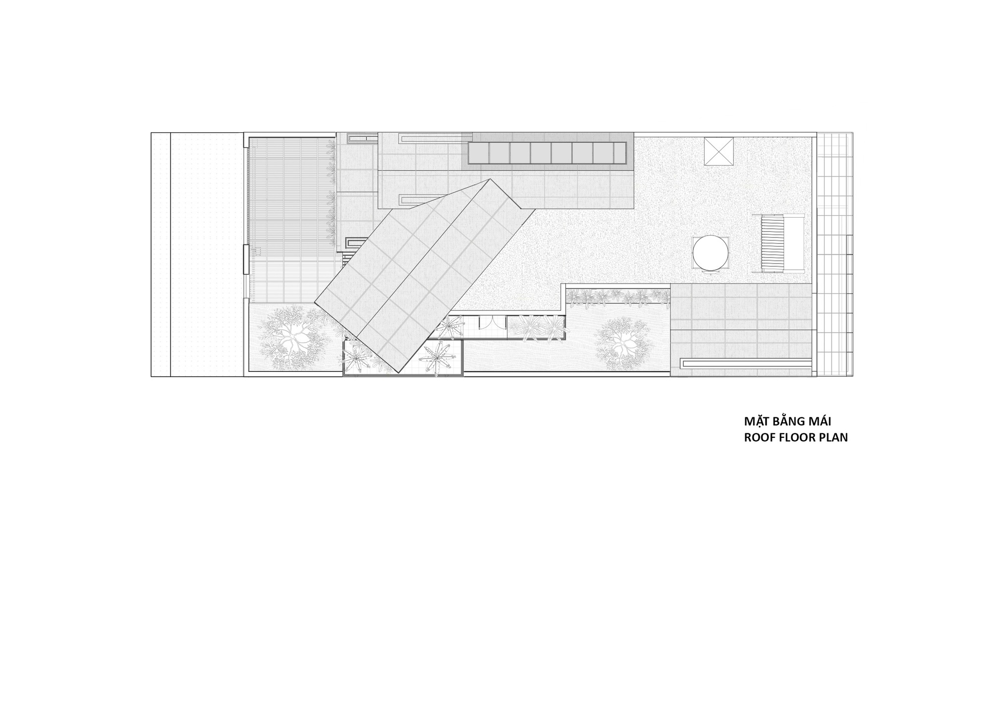
该项目位于热门新城区 Euro Village 1,坐落在岘港市龙桥和 Tran Thi Ly 桥之间。这座房子代表着新生活的开始,连接和滋养年轻夫妇和他们的两个孩子之间的家庭之爱。
主要功能区块塑造了所有相连的活动和辅助空间,而缓冲区或过渡区域则起到划分生活边界、减少直接热量、创造人与自然交流所需的绿色空间以及鼓励家庭成员之间互动的作用。
整体形态线条简洁,造型利落。空间体量保证私密性,但又自由、开放,最大程度发挥场地优势。灵活的木质遮阳系统与多样的绿树相结合,在一天中创造出有趣的动感,并与周围景观相得益彰。
项目设计:AD9 Architects
项目面积: 250.2501349m²
项目年份:2023
项目摄影: Quang Tran
供应商: Hafele, Jotun, LafargeHolcim, Singfa, Toto, Tuynel, Vietceramics
项目建造:Antcons Company
Lighting: Lyk
设计团队: Nguyen Nho, Phan Trong hiep, Le thi Minh Chau, Nguyen Thanh Hai Nam, Nguyen Van Khanh, Tran Mi Nhat, Nguyen Truc Anh, Tran Lam Linh
Interior 设计师: Tam Vinh Thai
项目国家: Vietnam
设计师:AD9 Architects
语言:英语
客服
消息
收藏
下载
最近


























