查看完整案例

收藏

下载
重返青春
A process of rejuvenation
这处山中居所被主人废弃多年。因为地处梯形台地一阶的尽端,远离邻里日常生活,不易抵达。渐渐的,房舍倒塌,树木野草丛生,遍布垃圾,俨然一片村中废土。初看场地时,接近手掌大的蜘蛛,各种鸟类,蜜蜂和流浪动物把这里当作了家。庇佑大家的是那两颗无人照料反而生意盎然村上的椿树。
Sitting at the far end of a terraced landscape, estranged from most of its neighbours, this derelict house had been left vacant, nearly forgotten by its owner. Over the years, wild plants, collapsed structures, and rubbish seem to have taken over the premises, making it a wasteland in the village. On our first visit, it was evident that stray animals, birds, bees, and palm-sized spiders had made this place their home. Near the edge of the site, two toon trees flourished despite the neglect, as if they were thriving to shield this desolate land and the wildlife within.
▼南立面,South facade ©朱雨蒙
多年以后,主人决心把这处废土改造成到访者的乐园。假期的时候,未来的院子能够提供 5 个完整的卧室;同时设置户外可以看到山景的平台,还有露天泡池,秋千和滑梯一类设施。无论成年人或小朋友都能乐在其中。
▼村庄附近的山峦,The mountain landscape nearby the village ©朱雨蒙
▼几乎坍塌的原有石砌建筑,The original building almost collapsed in the site ©察社办公室
Years later, the owner decided to transform this wasteland into a vibrant retreat. The new development would feature 5 bedrooms, complemented by expansive indoor and outdoor spaces with stunning mountain views, an open-air bath, a swing, and a slide. Designed to be a place of joy and relaxation, it promises something for both adults and children to enjoy.
▼环境,Surrounding landscap ©朱雨蒙
对于场地来说,从废土到乐园,似乎是一个重返青春的过程。在 Lucas Cranach the Elder1573 年的画作“Fountain of youth – 不老泉”中,矩形下沉的浴池和背景中粗粝的荒丘形成对比。这种在不确定中获取确定的形式,似乎隐喻着从悲苦到欢愉的对比和历程。结合紧张的预算,像画作中简单几何形态约束的体量,也可以扮演乐园的身份。
▼Lucas Cranach the Elder1573 年的画作“Fountain of youth – 不老泉”,Fountain of youth – Lucas Cranach the Elder 1573
The transition from wasteland to paradise seems to be a process of rejuvenation. In the painting of Lucas Cranach the Elder’s, Fountain of Youth(1573), a finely crafted sunken basin symbolizing the enchanting fountain of youth, stands in stark contrast to the surrounding rough and barren landscape, which represents the arduous age of mankind. This contrast is metaphorically reflected in our design process. Working with a limited budget, we created the simple geometric forms. Just like the square basin in the painting, infusing the space with a sense of rejuvenation — turning a piece of wasteland into a playground.
▼西南方向看,The view from west-south ©朱雨蒙
▼东南方向看,The view from east-south ©朱雨蒙
▼梯形台地上的建筑,Building in the terraced landscape ©朱雨蒙
虚张声势 Bluff 改造预算大概可以支撑两层 300 平方米建设规模。400 平方米的原院落由此显得过于空旷。恰恰唯一的邻居新建建筑高大宽阔,在三个维度下都充满到边界。如果设计仅仅把 300 平方米简单布置进去,似乎无法与邻里形成恰当的体量抵对关系。▼轴测分析图,Axonometric drawing ©察社办公室
The budget permitted a construction area of approximately 300 m2, that area for 2 level building, leaving the original 700 m2 courtyard feeling rather sparse. The neighbouring building, however, happens to be large and imposing, dominating its boundary in all three dimensions. Simply placing 300 m2 of construction on the site would have created an awkward relationship between the new structure and the existing surroundings.
▼南侧通道次入口,Sub-entrance on the south side of the access road ©朱雨蒙
▼南侧面向山谷的庭院,The yard with a mountain view on the south side ©朱雨蒙
▼厨房内外,Inside and outside the kitchen ©朱雨蒙
▼北侧连接上下两层标高的庭院,The yard link the two levels on the north side ©朱雨蒙
我们决定盖一个拥有多处半室外空间和独立构造物的房子。有限面积却拥有大得多,虚张声势的体量感。各种类型的空间都被一个 4.5 米 x4.5 米的基本单元来架构。它们最后变成房子或者廊子,或者“空架子”。其中场地角落的单元,为了退让邻居的采光或视线,或者弱化对附近街道的压迫感,被除掉一半。最终,那些高高低低进进出出的空间,也协助塑造了“乐园”的气氛。
▼拆除结束后,现场只有石头和两颗大树,
Trees and rocks in the site after the demolition ©察社办公室
▼为了节省开支,建造过程中石头依然留在现场,Stones remained in the site during the construction period for saving the cost ©察社办公室
We decided to build a house featuring multiple semi-outdoor spaces and independent structures, creating a sense of grandiosity despite the limited footprint. The design centres around a basic cubic unit of 4.5m x 4.5m, which then forms houses, porches, or ‘hollow frames’. In some instances, sections of these units were partially removed to enhance light and sightlines for the neighbours, as well as to soften the building’s presence on the adjacent street. These interconnected spaces helped shape the distinctive atmosphere of this ‘playground’.
▼户外泡池,Out door bath ©朱雨蒙
另一座“石房”Another stone house
由于场地交通的不便,原有废墟中的大量石材被再利用。除去挡土墙部分,混凝土框架建立后,石材变成填充墙体。既节省了一大笔费用用于建筑垃圾消纳、填充墙体材料和运输,也自然而然地创造了建筑立面,其更具北方山地粗粝的形象表情。
▼石头的再利用,Recycling of stones ©察社办公室
Given the site’s inaccessibility, we reused a substantial amount of stone from the original ruins. Excluding the retaining wall, the stone was employed to fill the walls after erecting the concrete frame. This approach not only reduced the need for additional infill material and waste disposal but also naturally crafted a building façade with a rugged, northern mountain aesthetic.
▼石砌外墙,Stone wall ©朱雨蒙
这种混凝土与石材的组合,在建筑史中也不乏先例,例如 Herzog & De meuron 1982 年的项目 Stone House。不同的是,Stone House 对材料和构造的选择,更多出于形式、符号和文化(地域主义)上的考量,石材干砌混凝土构件真真假假。“虚张声势之家”是在面对现场困难(场地位置、预算)所做的选择,结构和维护墙体完整诚实的被裸露出来。2023 年夏天史无前例的大暴雨证明,内防水保温也无法完全抵抗长时间暴雨的冲刷。这也就意味着,我们需要在屋顶做一个小的不锈钢挑檐,以此来缓解雨水对建筑的侵蚀。
▼Herzog & De meuron 1982 年的项目 Stone House,Stone House – Herzog & de Meuron 1982
The combination of concrete and stone is not rare in architecture history, as seen in Herzog & de Meuron’s 1982 Stone House. While Stone House used materials based on formal, symbolic, and cultural ideas (regionalism)—like its dry-laid stone and hidden concrete structures. The design of House of Bluff focuses on a straightforward approach to structure and upkeep, leaving the enclosure walls exposed, addressing the specific challenges presented in this project, such as its location and limited budgets. The intense rainstorms of summer 2023 highlighted the limits of internal waterproofing insulation in withstanding long periods of heavy rain. Consequently, a small stainless-steel eave was added to the roof to help manage rainwater more effectively.
▼连廊的屋顶上,On the roof of outdoor corridor ©朱雨蒙
▼房顶加装不锈钢挑檐,Stainless steel eave was added to the roof ©朱雨蒙
树冠之下
Under the tree
从总图来看,设计保留场地中最大的两颗椿树。一南一北,把场地分成东西两部分。西侧临近入口,化作公共空间的主体。东侧变成主要的客房部分。东西之间被一个有屋面覆盖的室外空间连接起来。屋盖之上,可以通过一部钢制旋转楼梯抵达。屋盖上下是院子里重要的室外活动场地。为了保证连贯的气候边界,一条室内通道埋伏在此屋盖下北侧半地下的位置。这样的设置,允许空气,光线,甚至人们的活动,还可以在南北之间交互。
▼分析图,Axonometric drawing ©察社办公室
From a masterplan perspective, we preserved the two largest toon trees at the heart of the site, which divide the area into east and west wings. The west wing, near the entrance, is designated as the main public space, while the east wing accommodates the primary guest rooms. The two wings are connected by an outdoor space covered by a roof, accessible via a steel spiral staircase. The area above and below this roof serves as a key area for outdoor activities in the courtyard. To ensure a continuous climatic boundary, an indoor passageway is embedded on the north side under the roof, in a semi-basement position. This design allows for the flow of air, light, and human activity between the north and south sections.
▼两棵树和两个院子,Two trees and two yards ©朱雨蒙
▼户外连廊下,Under the roof of the out door corridor ©朱雨蒙
▼户外连廊下日景,Under the roof of the out door corridor ©朱雨蒙
▼户外连廊下夜景,Under the roof of the out door corridor ©朱雨蒙
▼回看南侧面向山谷的庭院,The yard with a mountain view on the south side ©朱雨蒙
▼金属旋转梯,The steel spiral staircase ©朱雨蒙
▼金属旋转梯,The steel spiral staircase ©朱雨蒙
巨大火锅
A huge hotpot
主入口在场地西北角的高位。进入入口后,转折沿梯走下二层通高的主空间。由南至北,厨房、起居、餐厅一字排开。而二层入口南侧正对着的,是南部裸框架之下的户外泡池。泡池由阶梯状混凝土折梁和下面的竖向支撑来完成。竖向混凝土落下的位置恰恰是一层的厨房,以及厨房中心的火炉。我们一度想把这个建筑物命名为火锅之家,正是因为这个上面水池下面火焰的场景。
▼草图,Sketch ©察社办公室
▼剖面分析图,Section ©察社办公室
The main entrance is situated at a higher elevation in the northwest corner of the site. Upon entering, one descends a staircase into the double-height main space on the ground floor. The kitchen, living room, and dining room are arranged from south to north, with the outdoor sunken bathtub positioned directly facing the south of the entrance, under the exposed concrete frame. The sunken bath is supported by concrete folding beams and vertical columns, with the vertical concrete structures directly above the ground-floor kitchen and its central fireplace. We briefly considered naming the project House of Hotpot due to the striking visual effect of flames appearing below the water-filled bath.
▼二层主入口,The main entrance on the 2nd floor ©朱雨蒙
▼通过楼梯下到主生活间,Stepping down to the main living room ©朱雨蒙
▼厨房的上面是户外的泡池,The out door bath on the top of kitchen ©朱雨蒙
▼主生活间,The main living room ©朱雨蒙
▼主生活间,The main living room ©朱雨蒙
▼主生活间,The main living room ©朱雨蒙
▼厨房,The kitchen ©朱雨蒙
通道
Passages
公共空间西侧为有独立入口的员工宿舍、后勤用房、进入泡池前的淋浴间,以及一个角落里的多功能用房(客人多的时候当作一个客房,平常作为棋牌游戏儿童活动空间)。公共空间东侧三个出口,临近二层入口位置一处矮柜,打开是一部通下一层院落的滑梯。此梯除了增加趣味,甚至承担从二层向下运送行李的功能。一层偏南是出庭院的大门,中间位置下几级踏步,是那条起连接作用的半地下通道。我们又把这个通道设置成一个微型的展廊。
To the west of the public space, is a staff dormitory with its own entrance, a logistics room, a shower room leading to the sunken bath, and a corner game room that can double as an additional guestroom when needed. On the east side of the public space are three exits, one of which is near the main entrance and opens to a slide descending to the next level of the courtyard. This slide not only adds a playful element but also serves as a practical way to transport luggage from the upper floor. To the south, the ground floor opens out to the courtyard, and a few steps down the centre leads to the semi-basement passage, which also functions as a mini gallery.
▼东侧二层大套房入口,The entrance of the large suit on upper floor of east wing ©朱雨蒙
▼沿着挡土墙的户外连廊,Outdoor passage along retaining wall ©朱雨蒙
▼门廊,The porch ©朱雨蒙
▼门廊,The porch ©朱雨蒙
▼滑梯入口,The door to the slide ©朱雨蒙
▼滑梯,The slide ©朱雨蒙
“虚张声势之家”显现简单的几何形态。如同画作“不老泉”一样,新建筑在本来混沌的场所中建造了秩序。同时外立面暴露,整个建筑物采用内保温系统。室内利用暖调的粉刷石膏作为完成面,那些突出的框架又被板材龙骨重新覆盖。同样设计利用两种材料,在室内也暗示了结构与围护体系的二元并置,也为最终的建筑情境贡献了素材。
Overall, House of Bluff embodies simple geometric forms and introduces order into a previously chaotic site, much like the painting Fountain of Youth. Externally, the building’s exposed façade combines concrete frame with stone filler, while internally, the walls are finished with warm-toned stucco plaster, with the projecting structural frames re-covered in wooden paneling. This deliberate interplay of two materials not only creates a striking visual contrast but also implied the dualistic juxtaposition of structure and maintenance systems, enriching its architectural narrative.
▼主生活间,The main living room ©朱雨蒙
▼主生活间,The main living room ©朱雨蒙
▼半地下连廊入口,Semi-basement passage entrance ©朱雨蒙
▼半地下连廊,Semi-basement passage ©朱雨蒙
▼户外连廊下,Under the roof of the out door corridor ©朱雨蒙
▼去户外泡池的楼梯,The stair way to the out door bath ©朱雨蒙
▼东侧一层卧室,The bed room on lower floor of east wing ©朱雨蒙
▼东侧二层大套房,The large suit on upper floor of east wing ©朱雨蒙
▼大套间的卫生间,The washing room of large suit ©朱雨蒙
▼户外泡池附带的淋浴房,The shower room of outdoor bath ©朱雨蒙
▼施工过程,Video of construction
▼模型,Model ©察社办公室
▼总平面图,Master plan ©察社办公室
▼下层平面图,Lower floor plan ©察社办公室
▼上层平面图,Upper floor plan ©察社办公室
▼剖面图,Sections ©察社办公室
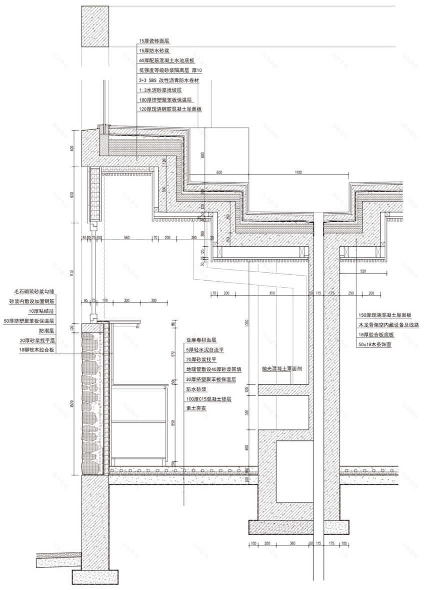
▼细部详图,Construction details ©察社办公室
项目名称:虚张声势之家 – 废土乐园
项目类型:独立住宅
设计方:察社办公室
项目设计:2022
完成年份:2024
设计团队:成直 武迪
项目地址:北京市门头沟区斋堂镇军响村
建筑面积:305㎡
摄影版权:朱雨蒙
合作方:结构咨询 高雪梅 / 施工负责人 张友江
材料:柳桉木胶合板 亚麻地材
品牌:东方港木业, Forbo
Project name:House of Bluff – A playground of the wasteland
Project type: Private house
Design: chaoffice
Design year:2022
Completion Year:2024
Leader designer & Team:CHENG Zhi, WU Di
Project location: Junxiang Village, Zhaitang, Mentougou District, Beijing, P.R.China
Gross built area: 305㎡
Photo credit: ZHU Yumeng
Partner:Structure Engineering consultant: GAO Xuemei / Head of construction: ZHANG Youjiang
Materials:laminated eucalyptus plywood / Linoleum Flooring
Brands:东方港木业 / Forbo
客服
消息
收藏
下载
最近










































































