查看完整案例

收藏

下载
公元前 1 世纪,维特鲁威在《建筑十书》中指出,建筑应具备三个基本要求:适用、坚固、美观。
SPA(水疗)、Solus ParAgula、通过水获得健康、通过水获得治疗。Solus(健康)、Par(在)、Agula(水中),古希腊、古罗马时期是沐浴文化的源头。
沐浴在古罗马时期变得日常,而且具有了社交、礼仪、交流思想、交流文化的场所,对古罗马时期社会产生深远影响,直至影响到当今我们的生活中。
△至上主义
我们每一次设计灵感皆来源于“文脉关系”,即将人们的情感和有意义的场所对接。
——让·努维尔
01· 传承突破 Legacy breakthroughs
建筑外观为西式古典建筑,或希腊或罗马……借以传统建筑形态出发,通过建筑肌理和文脉进行当代转译,在传统与现代之间寻找一种平衡,平衡建筑、环境、空间与人的共生关系。
空间在建筑形式上抽象化处理,与建筑形式同频,同时空间在建筑形式上进行解构,又与建筑之间形成共振,相互关联,相互延续。在空间里,几何构成的基本单元,通过叠加、穿插、阵列手法建构空间逻辑。控制色彩、材质、形体的比例与尺度,变化而统一。
对已知定义的质疑,重新梳理空间秩序来实现未知空间可能性。追寻未被定义的功能空间和感官体验。通过形式逻辑构建空间势能,空间新秩序。
02 · Born naturally
进入门厅,步入中庭,进入我们视线的是挑高 7 米的大堂空间,中部垂直延伸,向上生长,与时空对话,向传统致敬。
悬浮于 5 米之上的圆型几何形体,表面原木肌理与斜射下来的光,雕刻出了空间的重力与力量之美。形体、色彩、光线通过解构,重组,构建一座“空间雕塑”,一个“艺术馆”。
黑色木纹沉郁,古朴,原石墙面质朴,温和。光在构件,体块之间流动,穿梭。虚与实,光与影,神秘而有韵律。
置身于中庭之中,轴线对称,界面均衡,尊重古典秩序的向心性……,代入我们与精神世界沟通,直指灵魂深处。
在入口处通过影幕制作的流动瀑布,在体验水浴之初拉开序幕。从公共区域向私密区域过度,由动入静,在板片墙体的作用下放慢脚步,驻足,调整情绪,进入角色。
随之进入我们视线的三角几何顶面,墙与顶棚之间开启的光,似乎与室外连通的天窗,在光的指引下,来到了水浴区。
让建筑退让于环境,把外部的光线、景观引入室内,融入空间中与自然接洽。下沉式的水池,绿色水面,原石肌理墙面,与窗外的绿植相互融合,亦或室内,亦或室外。内外之间,模糊了边界,捕捉了四季。
同时通过叠加与穿插设计手法,使汗蒸房悬浮于水面之上,把不同功能空间分解、重组、解构界面与体块,体块与体块之间的关系,重构空间形式,重新定义空间内容。
水浴区在“光合作用”下,把外部的景致折射到水面上、顶棚上,也为水注入了生命,水影在体块之间悦动、流转。置身空间里,仿佛融入于自然中,在出世与入世之间寻找一处栖息地,远离喧嚣,治愈心灵。
过厅可变光的发光软膜,通过控制光来指引和提示体验者的方向,空间里多重路径,视线与动线变化,让体验者在空间里流动。
陈列式柱系与楼梯之间关联,秩序井然。界面之间的分割与围合,空间一种非静止状态的存在。
餐区的炭火壁炉,原石肌理的地面,餐椅的绿色与窗外的绿植相互呼应。在用餐之时,食物、情感、思绪与自然交织,视觉、嗅觉、味觉、听觉、触觉在与自然光的调和下五感达到极致。
色彩、材质、形体从室内向室外延伸、渗透,让自然入境,身体感知与视觉感知并行,场景体验与情感体验相互交融。不经意间远处的绿植引诱了外界的光,让我们的思绪又带入到了自然之中。
通过解构大的空间,让 SPA 区内置于容器里。在体验之初,仿佛进入另一个空间体感世界,从喧嚣的城市抽离,私密静谧。音乐、香氛、烛光以及精油的浸入,身体得到了释放,心灵已有了归处。
墙面采用稻草肌理,沐浴区粗石质感,地坪的原木气息,无处不在沉浸自然之中……,在自然中冥想……一道光从墙体之间透射进来,沉浸之时又增添了一份情趣。
03·情绪感知 Emotional perception
空间是虚无的,通过载体得以转换、形式的简化、色彩的克制、材质的纯粹,在光的刻画下,与之情绪产生共鸣,心灵随之净化。
空间是一种关系,是人与空间的关系的存在,我们赋予空间高低、宽窄、虚实,空间给予我们清幽、静谧、侘寂。
内外之间模糊材质、界面、形体关系,模糊建筑、景观与室内边界,诠释东方观的自然,时空观的与天地间。
空间的演绎,有节奏,有韵律,克制而内敛,通过有形的外在,建立灵魂内在,她像建筑、像音乐、像绘画、更像一部电影,诉说着过去与未来,一切的一切……不仅是在塑造一个空间,更是在创造一个疗愈心灵的精神场所。
在古与今、西与东、传统与现代、历史与当代之间对话,注重人文、自然与建筑的内在联系,传达一种西方与东方相互融合的哲学思想。
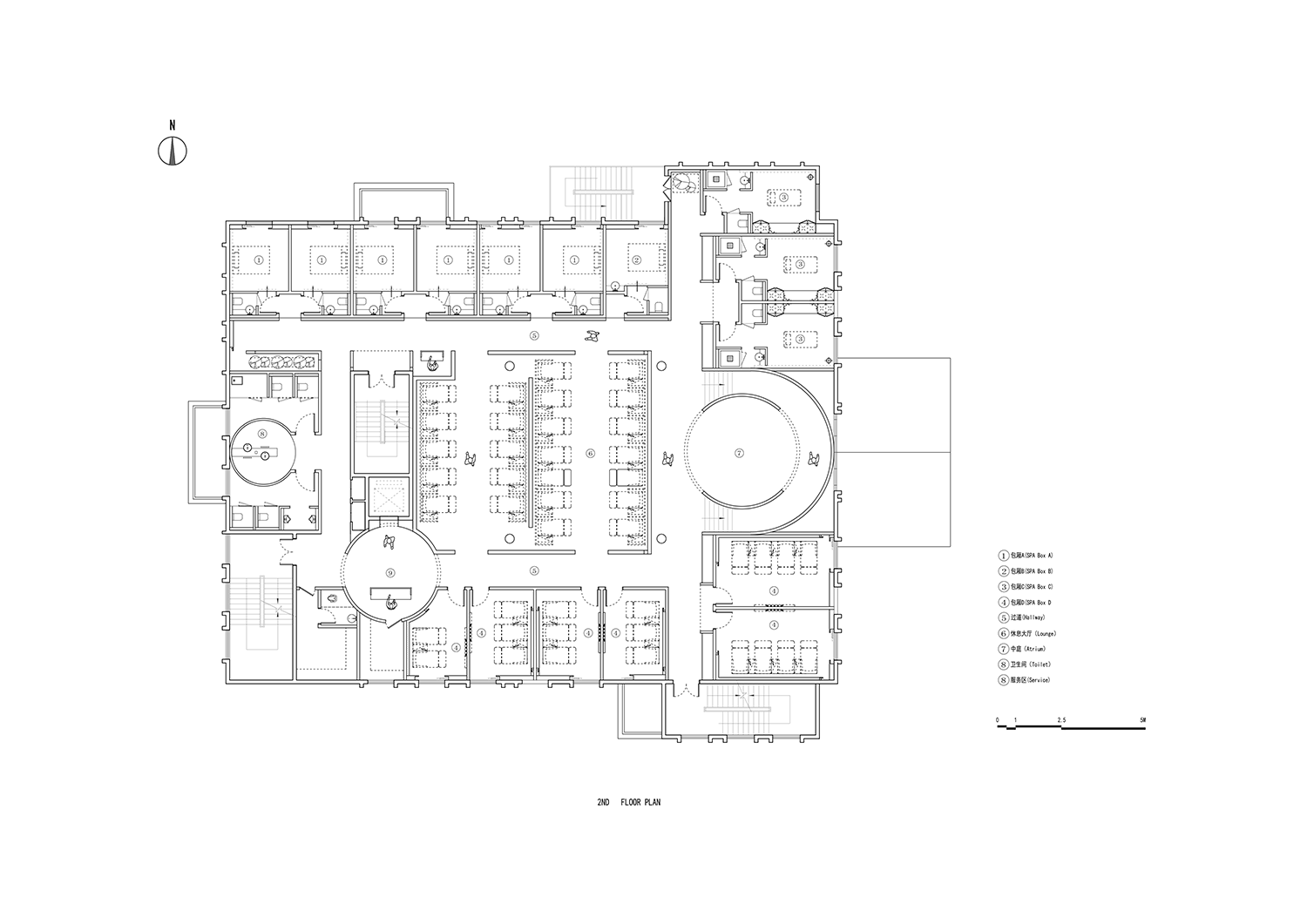
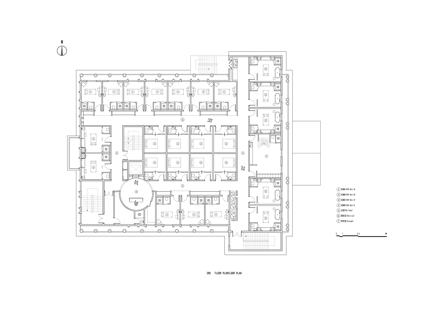
项目地点|中国 无锡
设计时间|2023 年 5 月
设计面积|5500m²
设计单位|清联水木设计机构
设计主创|祝希哲
设计团队|祝贺、刘成、大为
软装设计|美筑陈设
灯光设计|九几灯光
主要材料|葡萄牙砂岩、黑色木饰面、金属、艺术涂料
项目撰稿|祝希哲
项目摄影|徐义稳
祝希哲
清联水木设计创始人-创意总监
清联水木设计机构成立于 2013 年,多年来一直专注于酒店、水疗、SPA 会所空间设计与研究。在设计过程中注重建筑、环境与人的关系,秉持空间与自然共生的设计哲学。关注人在空间里五感体验,把握体验者物质与精神同等价值。同时关注项目的商业属性,关注每个项目的文化、肌理与在地性,平衡文化、美学、人文及经济价值。在空间的艺术性与商业价值之间获取平衡,致力于建造一个具有文化价值的空间环境。
Founded in 2013, Qinglian Shuimu Design Agency has been focusing on the space design and research of hotels, spas, and SPA clubs for many years. In the design process, we pay attention to the relationship between architecture, environment and people, and uphold the design philosophy of symbiosis between space and nature. Pay attention to the experience of the five senses in the space, and grasp the equal value of the material and spiritual of the experiencer. At the same time, it pays attention to the commercial attributes of the project, pays attention to the culture, texture and locality of each project, and balances the cultural, aesthetic, humanistic and economic values. Striking a balance between the artistic and commercial value of the space, we are committed to building a space environment with cultural value.
客服
消息
收藏
下载
最近































































