查看完整案例

收藏

下载
联投贺胜桥办公楼
文 | 凌克戈
“对于项目的控制力在面对诸多不利因素时,放任自流还是想方设法,结果总会不同”。
联投贺胜桥办公楼位于湖北省咸宁贺胜桥站前开发区,作为开发区的一级开发公司办公所用。本案距离武汉 2 个小时车程,是城铁贺胜桥站前开发案的一部分。整体区域是一个英式风情的街区,业主希望打造一个区别于商业的、能代表企业特质的自用办公楼。
▲ 鸟瞰航拍图
▲基地平面
都设承担了建筑以及室内设计,有限的造价以及无法提供及时的现场服务(由于交通不便,本项目建设期间只有两次现场服务),成为本项目完成度的一大挑战。
出乎所有人意料的是,这栋小楼建成之后并没有粗糙不堪而是具有自己的特点并且精致度颇高。
▲ 外立面实景
▲ 外立面实景
▲ 外立面实景
▲ 外立面实景
「If you can’t be sophisticated, block it up.」「不能做精致就挡起来」—通过设计改变有限造价的困境—
有限的造价决定了建筑不可能使用单元式幕墙,而必须具有的开窗必然将会是外立面巨大的杀手,常言道“开窗毁所有”,所以结合武汉地区夏天太阳曝晒业主要求遮阳为第一要素的要求,将遮阳与装饰结合起来。同时由于周边在未来很多年内都是工地,所以内向型是最初就定下的基调。
▲外立面幕墙体系
外部采用铝合金圆管,遮挡后面并不平整的窗墙体系的玻璃幕墙,同时形成一定的韵律。
▲幕墙概念
▲方案阶段效果图
从上而下的铝管很容易就歪歪扭扭,所以在设计中着重考虑每一层的连接问题。
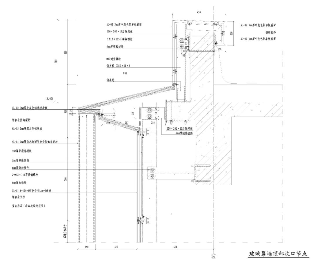
▲玻璃幕墙节点
挂钩型材的设计让上下铝管的链接成为一个简单的安装,因为对不齐就不能顺利安装。
▲铝管幕墙近景
然后要解决的就是开口和顶部底部交接的问题。
在所有开口处采用铝型材封边:为了让封边显得薄,特意设计一个节点让钢管把封边的铝型材挡掉一部分,只露出一条薄边。
▲底部封边节点
▲铝管外立面内景
▲铝管外立面近景
顶部与女儿墙的交接是很重要的一环:封边铝板与女儿墙包裹铝板为一个整体,后退的女儿墙近看看不到,远看与封边板一个材质和色彩,反而丰富了层次。
▲顶部封边节点
▲铝管外立面远景
▲铝管外立面远景
「整体一个语言的包裹必然需要点睛之笔」—雨棚、转角、中庭—这主要是三点:
1. 独特的雨篷勾勒出建筑的不凡;
2. 三楼的餐厅转角对完整的外立面增加了活跃因素;
3. 结合中庭的拉索幕墙。
1. 雨棚是将外立面折起来的样子,由于不敢做太多细节,这点和北京恒泰广场不锈钢梁加玻璃肋外挑的高技派不同,主要是强调体量并尽可能的处理好材料的交接。彩釉玻璃条纹和外立面图案一致。
▲入口雨棚
▲入口雨棚节点
▲入口雨棚近景
▲入口雨棚近景
2. 在全部为金属竖管的简洁体量里,几个玻璃的开口是不可或缺的活跃因子。
▲玻璃开口外景
▲玻璃开口外景
3. 入口大厅采用拉锁幕墙成为两个主要体量连接部分。
▲拉锁幕墙外景
▲拉锁幕墙节点
▲拉锁幕墙近景
「 Space、Space、Space」
「空间、空间、空间」
—公共空间与私密空间的组合关系—
这个办公楼虽然只有 5000 平米,但是功能并不简单,拥有对外的招商中心、展厅、集团办公和食堂,主要分为公共部分和私密部分。空间上通过两个不同高度的中庭区分了公共空间和私密的空间,一楼为招商展示中心和企业文化展厅,通过楼梯以及电梯可以到达二楼,左边中庭贯穿三层是办公部分以及食堂,通过一个连廊联系起右边的高管办公,所有的办公部分的公共区域就是二楼的中庭。
▲剖面图
▲左边中庭剖面图
▲一层平面
▲二层平面
「 Interior Design」「室内设计」
—“内墙外做“&”模块化“—
室内设计是需要经常去工地的,但是这个项目的先天限制在那里,所以我们采用“内墙外做”和“模块化”的方式。“内墙外做”让幕墙公司在做建筑幕墙的同时也完成了室内主要界面,最大的好处是建筑室内和外墙的交界处都是由一家公司完成,交接的精细度得到保证。“模块化”将室内的材料和做法种类降到最低,完成一个样板段确认后可以大面积铺开不会出问题。
室内以“山水之间”为主题,两个体量和一个空中连廊构成了中庭的意向。
▲山水之间意向
▲室内透视模型效果
▲室内透视实景
空中桥梁通过交错的铝管形成流水的意向,同时也和外墙元素呼应。
▲空中桥梁
通往二楼的楼梯用石材内凹做的扶手,显得干净整洁,与整体调性相匹配,这也是整个项目里面工艺要求最高的地方。
▲室内楼梯
▲内凹石材扶手
二楼空中中庭围绕一个旋转楼梯展开,同时也是两边办公休息的场所。
▲中庭效果图
两侧走廊采用垂壁玻璃,整体性强并且易于施工控制。
▲中庭实景图
旋转楼梯是整个中庭的视觉焦点,为了更有现代感采用了白色搪瓷板使板壁显得轻薄。
▲旋转楼梯
「Epilogue」
「结语」
—建筑室内一体化—
在本项目里面都设并没有因为距离遥远项目不大而只做一个建筑方案,我们力求通过这样一个项目探索一下此类项目的高完成度的做法。事实证明建筑室内的一体化设计更有利于提高项目的完成度,因为越是脱离控制越是容易出问题,尤其是室内外交界处。
项目信息:
建筑面积:5000㎡
设计/建成时间:2015/2017
业主:联投(咸宁)置业有限公司
建筑及室内方案:上海都设营造建筑设计事务所有限公司
景观顾问:朱毅
建筑施工图设计:中南建筑设计院
幕墙咨询:湖北省建筑设计院
室内施工图设计:木设空间艺术设计
建筑摄影:章鱼建筑摄影工作室
客服
消息
收藏
下载
最近










































