查看完整案例

收藏

下载
时事方扰扰,幽赏独悠悠
——唐·韦应物
城市现代化的高速发展,人们精神上现代性的迅速转换,造就“栖居远逝”的困境,个人生活的迁徙不定,使现代心灵无处依托,在喧嚣中拥有一方守静之地,似已成为每个城市人的期待。设计团队MOK Design以润林置业的项目为枢纽,在当代生活和人文精神中探索,试图编织理想人居的栖息之所。
项目坐落于大数据之都贵阳,山水林城,翠峰环抱,场地西邻长坡岭国家森林公园,蔓蔓日茂,在这可卧榻望云,抬首见山,为住客提供高品质的生活环境和现实基础。
三毛曾写到:“总有一日,我要在一个充满阳光的早晨醒来,静静地听窗外如洗的鸟声,那是多么安适的一种苏醒。”理想生活,大致如此。
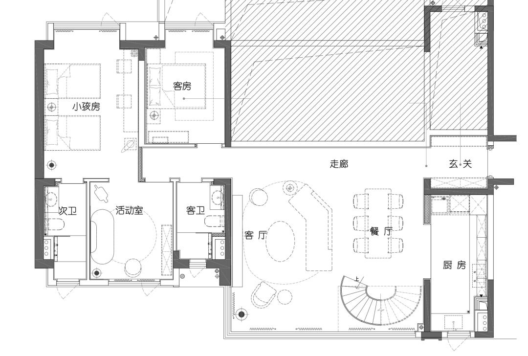
设计团队为113㎡的三居室赋予了温润而淡雅的设计,对原样板间进行改造,利用家具对空间进行重组,优化出了更合理的生活动线。
厨房、餐厅和客厅的开敞式设计,使界限模糊,厅堂融合,大大提升空间的使用率,三者的有机结合带来全新的居住体验。
藤编木质座椅与灰色钢管沙发形成鲜明的质感对比,为空间赋予了现代和古典两种气质。茶色亚克力展示柜巧妙取用过渡色丰富了空间的质感,更保留了室内通透的视觉感知。
呷香茗、品小菜,微风顺着茶香入口,阳光混合甘甜入胃,恬静的生活之乐莫过于斯。
木材是沉睡的阳光,阳台向内留出一处空间,将阳光“储存”,使户型得以“呼吸”,茶室的置入让功能更为多元,白色透光窗帘搭配浅调木作以及棉麻家具,给室内带来闲适而清新的空间氛围,纯度较高的橙色靠垫则将城市的摩登和现代性引入了室内,活泼而不失调性。
卧室沿用温润的棕色系,棉麻质感的家具让疲惫的心柔软下来,阳光照拂下,木作的清香,熏人入眠。
户型平面图
通过对四口之家家庭结构的思考,138㎡的三居室样板间有别于113户型的温暖氛围。
浅灰的整体色调,大胆的雕塑艺术品,复式空间的黑色旋转楼梯 ,带来强烈的现代艺术气息,这种对比为住客提供不一样的选择,满足高级感和差异化的审美需求。
大面积落地窗,将光影引入客厅空间,亮漆茶几就像邓布利多的冥想盆,反射的不仅仅是沉淀之后的光线,也是一家四口无可替代的回忆,给沉稳的空间带来动态的变换,演绎一家人闲暇的休憩之景。
廊道上装裱的灰色系当代艺术作品,与室内的灰白色大理石及浅色木纹饰面“分割”墙面,呈现出优雅从容的生活氛围。
顺着木色踏板和透明的玻璃扶手拾阶而上,到达全开放式的二层,仿佛走进一座微型的现代艺术馆。
二层消除隔断,主卧、起居室、主卫全面融合,配合透明玻璃墙面,与一层视线相连,加倍了上下层的空间视觉,保证了视野的流畅。
留霓虹,一搏余彩,吻冬日的纯白和夏日的火海。精心挑选的雕塑与绘画作品,簇拥着主卧的光影变幻,每日闭眼前的最后一瞥,也要满足睡前的视觉享受。
露华清,人语静,罗袜凌波波不定。一杯干邑,微热池水。空气中有酒香,酒香中藏着雾杳氤氲的香氛气息,一洗生活的铅华,灵魂的蓓蕾再次得到绽放。
小孩房与活动室的构想,满足了多子家庭与大家庭的功能需求,雅致的灰色墙面搭配具备俏皮感的蓝色家具,用环境潜移默化地给孩子带来关于抽象艺术的启蒙。
户型平面图
针对精英阶层三口之家而规划的147㎡户型样板间,塑造着家的新理念,构想中使用者拥有国际化视野,良好艺术修养与音乐鉴赏能力,注重藏品的收集与分享。
空间中的黑白灰运用,在不同深浅的大理石墙面上得到体现,辅以铜质落地灯以及橙黄色的沙发椅,简约大气,御馥典雅。
解放原有的卧室空间,与毗邻的厨房相融,成为中西烹饪结合的开放式厨房,一方面赋予了厨房与餐厅的多功能使用,另一方面满足周末与三俩好友共聚的餐饮氛围和需求。
女儿房呈现出与客厅的简奢风格全然不同的面貌,以白色为主基调的卧室,搭配低纯度的粉红色抱枕与座椅,添置圆润温婉的灯具和摆件,巧妙赋予空间女性特征和温柔感。
主卧则沿用公共空间的主色调,黄铜吊灯的圆形光晕适度的柔化空间中硬朗的线条,昏黄的灯光提醒着居者卸下一天的疲惫,接纳秩序与宁静。
户型平面图
至此,MOK Design用三种形式不同而又殊途同归的艺术形式,尝试了对理想居住方式的探索。
无论是返璞归真的释放、艺术化的展示、还是高级感的外显,城市的现代化使设计功能多元,而城市的现代性又呼吁内心的守静共鸣,这三种尝试以设计+科学的手段,让住客回到一种闹市独取静、别样有生机的状态,因为这种状态,唤起你我偶得幽闲境,遂忘尘俗心,始知真隐者,不必在山林。
【项目信息】
项目名称:贵阳华润·悠山悦景样板间
项目地址:中国 贵阳
设计面积:113㎡/138㎡/147㎡
开发单位:贵阳润林置业有限公司
软装设计:广州莫兆铭建筑设计有限公司
主创设计:李燕芳
设计团队:陈俏慧、邓夏云、范彩美、元兆瑞、李苑祯
摄影团队:雨滴摄影
关于设计师
李燕芳
MOK Design艺术总监、主创设计师
莫兆铭建筑设计有限公司(MOK Design)由香港著名设计师莫兆铭先生成立于1992年,总部位于香港,并于2018年设立广州公司,是一家拥有多年设计经验和优秀创意团队的建筑及室内设计公司。我们秉承“坚持创新,享受设计”的理念、善于发掘及把握项目本质,累积设计项目遍布全球10多个城市,囊括多个国际设计奖项。迄今,MOK先后与香港太古集团、深业集团、新福港地产、华润置地、鸿坤集团、万豪集团等知名企业达成深度合作。
客服
消息
收藏
下载
最近
















































