查看完整案例

收藏

下载

翻译
EKOLOGICZNE I WIELOFUNKCYJNE OSIEDLE Z MASYWNEGO DREWNA KLEJONEGO W NISKIEJ INTENSYWNEJ ZABUDOWIE Z ROZWIĄZANIAMI MAŁEJ RETENCJI WODNEJ
english title: HIGH-DENSITY AND LOW-RISE, MULTIFUNCTIONAL MASS TIMBER RESIDENTIAL AREA WITH ’’SPONGE CITY’’ DESIGN SOLUTIONS
autor: inż. arch. Damian Dominiczak
mail: dam.kes@o2.pl
promotor: dr Iga Grześkow
konsultant: mgr inż. arch. Joanna Fiszer-Sozańska
Semestr zimowy, rok akademicki 2021/2022
Wydział Budownictwa, Architektury i Inżynierii Środowiska
Politechnika Bydgoska im. J. i J. Śniadeckich
Streszczenie celu projektu
Niniejsza praca inżynierska dotyczy koncepcji projektowej wielofunkcyjnego osiedla mieszkaniowego w niskiej intensywnej zabudowie zlokalizowanego na terenie jednostki urbanistycznej Jachcice w Bydgoszczy (pow.: 4,44 km², liczba mieszkańców: 3880, gęstość zaludnienia: 874 os./km² - dane z 2012 roku). Celem pracy jest określenie współczesnego wyglądu i zakresu funkcjonalno-przestrzennego wraz ze szczegółowymi rozwiązaniami projektowymi - idei miasta idealnego, w obliczu antropogenicznych zmian klimatycznych w XXI wieku w Polsce. Praca jest syntezą wielu dynamicznie wdrażanych przez różne kraje nowo powstałych idei w celu powstrzymania globalnego ocieplenia i zrewolucjonizowania dotychczasowych metod projektowania i budowania miast i budynków. W koncepcji autor postuluje dostosowanie wizji miasta idealnego “na tu i teraz” do warunków obecnych panujących w architekturze i urbanistyce polskiej, w celu popularyzacji licznych możliwości rozwiązań problemów, z którymi się spotykamy i w celu ukazania konkretnego przykładu na dokładnym terenie - w jaki sposób powiązać ze sobą wszystkie idee, aby funkcjonowały jak najlepiej i się wzajemnie uzupełniały, co w rezultacie zaowocowało by swego rodzaju “wzorem” osiedla lub inspiracją, na podstawie której planiści miejscy, urbaniści, architekci i inwestorzy mogli by opracowywać/zlecać koncepcje lepiej spełniające potrzeby społeczeństwa z dalekowzroczną wrażliwością na konsekwencje dla środowiska jakie za sobą niesie budownictwo mieszkaniowe na masową skalę.
Słowa kluczowe: osiedle mieszkaniowe, niska intensywna zabudowa, mała retencja wodna, masywne drewno klejone, odnawialne źródła energii, osiedle wielofunkcyjne, współczesne miasto idealne, ekologia, zmiany klimatyczne
Summary of the concept
This engineering diploma thesis concerns an urban planning concept of mutlifunctional high-density and low-rise residential area, located in Jachcice, a north-western district of the city Bydgoszcz (area.: 4,44 km², population: 3880; population density: 874 people per km² - 2012 data). The purpose of the work is to specify a modern appearance and funcional and spatial extent including extensive design solutions - of an ideal city, in the face of anthropogenic climate change in the 21st century in Poland. Therefore this diploma is a synthesis of many of emergent ideas in the world that are currently dynamically implemented around the globe with the aim of slowing down climate change and revolutionising past city designing and building methods. In this concept, however, author proposes to fit the vision of an ideal city “for here and now” to current condition of architecture and urban planning in Poland, towards poularisation of many possibilities for solving problems we’re facing and to picture a definitive illustration on a specific site and urban context - how to associate all of the ideas, so they function the best way, complementing themselves. As a result conceiveing a paradigm of a residential area or an inspiration for one, on a basis of which would municipal urban planners, architects and investors design/commission enterprises that fulfil society’s needs way better, also having regard to farseeing sensitivity for impact that housing development on a mass scale has for the environment.
Keywords: residential area, high-density low-rise development, little water retention, mass timber, renewable energy, mixed-use residential, modern ideal city, ecology, climate change
WIDOKI Z LOTU PTAKA / ’’AKSONOMETRIE OSIEDLA’’
MINIATURY PLANSZ PROJEKTOWYCH
INSPIRACJE PROJEKTOWE:
IDEE PROJEKTOWE /// DESIGN IDEAS:
Zaprojektowane przeze mnie osiedle jest wielofunkcyjne, budynki z masywnego drewna klejonego (m.in. CLT). Osiedle wykorzystuje odnawialne źródła energii (fotowoltaika, rekuperacja, pompy ciepła), jest częściowo samowystarczalne, retencjonujące wodę deszczową, wypełnione zielenią i społecznie aktywizującymi przestrzeniami dla ludzi, priorytetujące ruch pieszych, rowerzystów i komunikację publiczną i nowoczesne w formie architektonicznej, a także w kontekście potrzeb mieszkaniowych społeczeństwa XXI wieku.
Nadrzędnym założeniem projektowym była koncepcja miasta idealnego w XXI wieku w obliczu zmian klimatycznych. Wobec tego wykonałem szerokie analizy tendencji wdrażania konkretnych rozwiązań projektowych na świecie, które im zapobiegają w zakresie urbanistyki, architektury i budownictwa. Wybrałem najważniejsze z nich i stworzyłem ich syntezę w jednym projekcie. Są to:
1. Mała retencja wodna w urbanistyce
Rozwiązania te zapobiegają występowaniu powodzi i suszy, gdzie grunt akumuluje wodę deszczową i uwalnia ją podczas upalnych dni, a więc działa jak gąbka. Polegają na stosowaniu nawierzchni przepuszczających wodę deszczową do gruntu, a także tworzeniu licznych cieków wodnych o różnej formie np. stawy hydrofitowe, niecki filtracyjne, strumienie czy powierzchniowe zbiorniki infiltracyjno-retencyjne. Przykładem z projektu są też sadzawki deszczowe w pasach zieleni wzdłuż dróg, ogrody deszczowe w przestrzeniach sąsiedzkich i pasaże roślinne w formie liniowych donic/ogrodzeń dzielących przestrzenie publiczne od grupowych i grupowe od prywatnych. Pod drogami i na deptakach w miejscu sadzenia wysokich drzew istotnym rozwiązaniem są skrzynki rozsączające i korzeniowe, te pierwsze służą magazynowaniu wody, a drugie zapobieganiu uszkodzeń infrastruktury przez korzenie drzew. Retencję wód wspomagają też wszystkie zielone dachy zastosowane na budynkach w formie np. tarasów mieszkaniowych. Bardziej złożonym rozwiązaniem są podziemne zbiorniki szczelne. Gromadzą wodę opadową z nawierzchni poprzez korytka spływowe, z dachów budynków poprzez ukryte rynny i rury spustowe, z drenażów opaskowych wokół budynków. Połączone one są z instalacjami zapewniającymi wykorzystanie szarej wody np. do spłukiwania toalet w budynkach i nawadniania trawników na dachach zielonych i w przestrzeniach publicznych/sąsiedzkich itd. Ponadto instalacja wykorzystania wody deszczowej i podziemne zbiorniki retencyjne są połączone z oczyszczalnią wody deszczowej.
2. Masywne drewno klejone (mass timber), jako technologia konstrukcji wszystkich budynków na osiedlu.
CLT czyli drewno klejone warstwowo i krzyżowo to innowacyjna technologia, która w kontraście do murowanych i żelbetowych pozwala na osiągnięcie ujemnego śladu węglowego inwestycji, ponieważ proces budowlany obiektu emituje mniej CO2 niż pochłania drewno wykorzystane do budowy obiektu. W takiej sytuacji budowanie z drewna klejonego jest lepsze dla środowiska niż nie budowanie wcale. Budynki takie są odporne przeciwpożarowo, gdzie nawet ściana działowa o grubości 12cm zachowuje nośność, szczelność i izolacyjność ogniową w czasie 2 godzin. Drewno klejone - materiał odnawialny, zdrowy, bardziej ekonomiczny i ekologiczny jest w stanie odwrócić oblicze budownictwa na całym świecie.
3. Idea miasta 15-minutowego i osiedli wielofunkcyjnych, w których w zasięgu 15 minutowego spaceru od miejsca zamieszkania znajdują się wszystkie podstawowe usługi.
Na osiedlu, pośród zabudowy wielo- i jednorodzinnej zaprojektowane zostały:
Plac centralny, który jest strefą budynków użyteczności publicznej wyższej rangi tj. Obiekt koncertowy z punktem widokowym, arena e-sportowa, kinoteatr, wielofunkcyjny obiekt kultury, biurowiec z bankiem i urzędem miasta, obiekt regeneracyjny, gimnastyczny, pływalnia z mini-aquaparkiem i restauracja wielo-lokalowa. 2 strefy o funkcji edukacji i oświaty tj. Szkoła podstawowa, z przedszkolem i żłobkiem i zespół szkół średnich zawierający liceum, technikum i szkołę zawodową. Oraz liczne budynki handlowo-usługowe i inne budynki takie jak kaplica w ogrodzie sakralnym lub pawilon rekreacyjny na polanie wypoczynkowej.
4. Idea miasta z priorytetem dla ruchu pieszych i rowerzystów.
Ruch aut na osiedlu został ograniczony do minimum. Pod zabudową wielorodzinną i placem centralnym znajdują się wielkopowierzchniowe parkingi podziemne, a nad parkingami przestrzeń publiczna z placami, deptakami, przestrzeniami sąsiedzkimi, ogródkami mieszkaniowymi. Sieć dróg rowerowych powiązana została tak, że doprowadza do każdego miejsca na osiedlu. Specjalne rozwiązania zachęcające do tego środka transportu to publiczne parkingi rowerowe i półprywatne skrytki na rowery przypadające 88 miejsc na jeden kwartał zabudowy wielorodzinnej. Ponadto wiele innych rozwiązań.
5. Idea osiedla autonomicznego z budynkami energooszczędnymi, zero-energetycznymi lub plus-energetycznymi, produkujące własną energię z odnawialnych źródeł (paneli fotowoltaicznych na dachach skośnych), wykorzystujące wodę deszczową (przez podziemne zbiorniki retencyjne) i oczyszczające ścieki sanitarne (oczyszczalniami biologicznymi). Oprócz tego wentylacja i klimatyzacja w budynkach zapewniana jest rekuperacją i wentylacją mechaniczną nawiewno-wywiewną, a ciepła woda użytkowa i ogrzewanie za pomocą gruntowych lub powietrznych pomp ciepła.
6. Ponadto zawarte zostały także idee wpływające pozytywnie na rozwój mieszkalnictwa i jakość architektury i urbanistyki, takie jak: tworzenie społecznie integrujących przestrzeni publicznych, otoczonych terenami zielonymi z budynkami w niskiej zabudowie o wysokiej intensywności. Przestrzenie publiczne na terenach zabudowy wielorodzinnej są oddzielone od prywatnej przestrzeniami grupowymi, które stanowią sąsiedzkie przestrzenie integrujące dla mieszkańców konkretnych budynków. Ogródki mieszkaniowe mają powierzchnie od 30 do nawet 350m2, co jest zbliżone do powierzchni wielu działek w domach jednorodzinnych szeregowych i bliźniaczych. Tarasy zielone i przestrzenie rekreacyjne w formie obszernych i różnorodnych balkonów i loggii dołączone do mieszkań także tworzą nową jakość architektury i dają miejsce do wypoczynku na świeżym powietrzu.
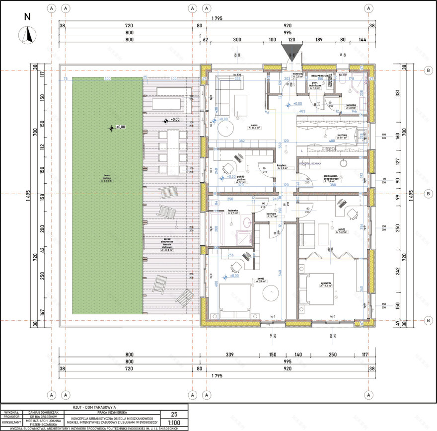
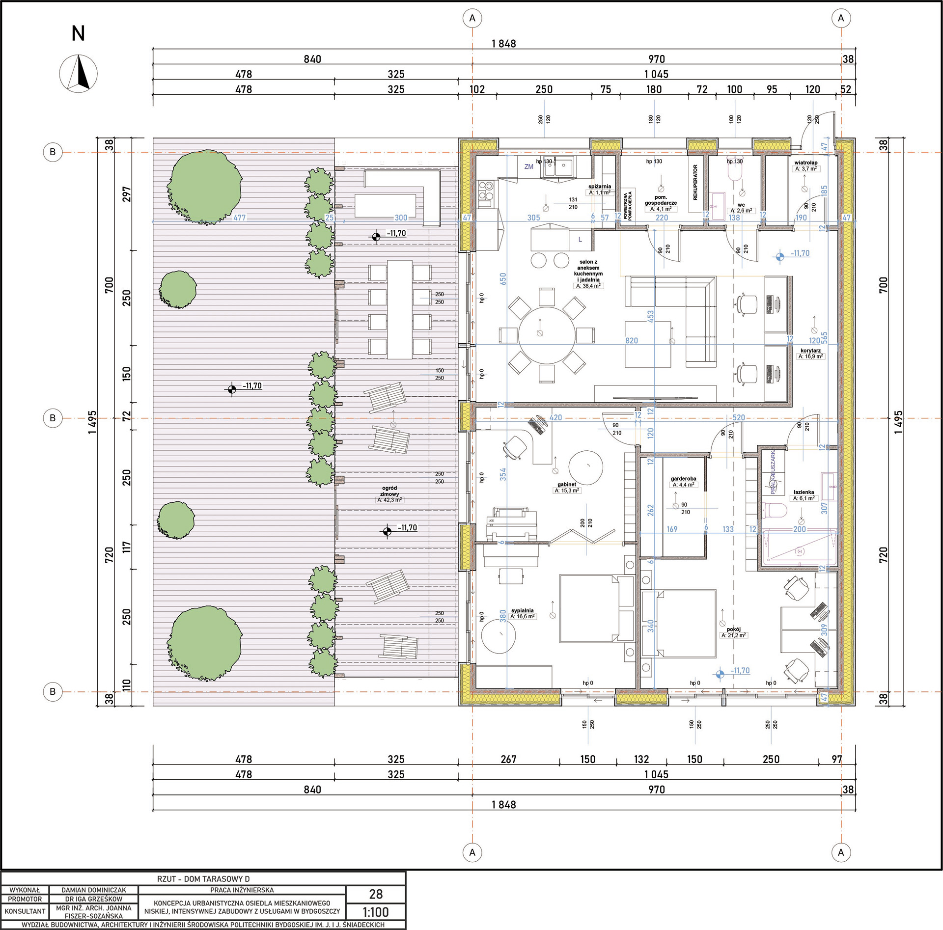
7. Ostatnim celem projektu było zwrócenie uwagi na stan polskiego mieszkalnictwa i to jak jest ono dostosowane do dzisiejszych potrzeb społeczeństwa w czasach cyfryzacji i zmieniających się stylów życia. Aby zebrać materiał do zaprojektowania mieszkań i domów jednorodzinnych przeprowadzona została ankieta internetowa ustalająca preferencje dotyczące metraży mieszkań, domów i pokoi, które wykazały zapotrzebowanie na większą przestrzeń i powierzchnię przypadającą na 1 osobę w porównaniu z dzisiejszymi standardami wyznaczonymi przez deweloperów i ogólnie przyjęte normy. Na podstawie ankiety zaprojektowany został wzorcowy budynek wielorodzinny z 21 różnymi mieszkaniami i 17 typów zabudowy jednorodzinnej o małym metrażu (od 50 do 90m2), średnim (od 90 do 140m2) i dużym (od 140 do 210m2). Każdy budynek wielorodzinny i typ zabudowy jednorodzinnej jest oryginalny w swojej formie i kolorystyce, a całość architektonicznie spójna poprzez zachowanie idei łączenia dachów skośnych z płaskimi dachami zielonymi.
W skrócie jest to 11 odrębnych idei:
1 - koncepcja miasta idealnego w XXI wieku /// concept of an ideal city in 21st century
2 - idea miasta-gąbki cechującego się rozwiązaniami pozwalającymi na osiągnięcie małej retencji wodnej /// sponge-city design solutions
3 - wykorzystanie technologii konstrukcyjnej masywnego drewna klejonego dla wszystkich budynków /// mass timber building construction in every building
4 - koncepcja miasta 15-minutowego i osiedli wielofunkcyjnych /// concept of multifunctional developments and mixed-use residentials to achieve a 15-minute reach in pedestrian walk from housing to service buildings
5 - niska intensywna zabudowa mieszkaniowa /// high density and low-rise residential area (4 stories above ground or less)
6 - mieszkalnictwo jedno i wielorodzinne w kontekście stanu obecnego budownictwa mieszkaniowego deweloperskiego, standardów mieszkań i norm powierzchniowych pomieszczeń, ich adekwatność w dzisiejszych czasach (badania ankietowe) /// semi-detached and multi-family housing in the face of the current condition of housing developments built in Poland by developers, area and space size norms in designed and built dwellings and Adequacy of these norms (survey research)
7 - jakościowa i aktywizująca społecznie przestrzeń publiczna i tworzenie integrujących grupowych przestrzeni sąsiedzkich /// qualitative and social public spaces conceiving integrating spaces along with group spaces
8 - idea ograniczania ruchu aut w miastach, car-free city, z priorytetem dla ruchu pieszych i rowerzystów, miasto oparte na komunikacji publicznej /// minimalising car dependency in cities, walkable cities, pedestrian/cyclist/public transportation dependent cities
9 - osiedla autonomiczne / samowystarczalne, rozwiązania instalacji budynków zapewniające częściową samowystarczalność - produkujące własną energię, wykorzystujące wodę deszczową, budynki zero-energetyczne lub energooszczędne /// self-sufficient and sustainable residential areas, renewable energy resources (photovoltaics, use of treated rainwater, zeroemissions buildings, carbon negative buildings (mass timber)
10 - green city, miasto utopione w zieleni /// green spaces between buildings and on buildings - green roofs
11 - nowoczesna forma architektoniczna budynków mieszkaniowych /// modern residential architecture form in Poland
Większa część opisu wyjaśniająca projekt, idee i zastosowane rozwiązania została zawarta na planszach projektowych.
1. CZĘŚĆ URBANISTYCZNA PROJEKTU
PLANSZE PROJEKTOWE [1-3]
PLANSZE PROJEKTOWE [4-6]
RYSUNKI TECHNICZNE URBANISTYKI - ANALIZY I SCHEMATY
PLANSZE PROJEKTOWE [7-9]
RYSUNKI TECHNICZNE URBANISTYKI - DETALE I PRZEKROJE URBANISTYCZNE:
WIZUALIZACJE Z LOTU PTAKA KWARTAŁÓW ZABUDOWY WIELORODZINNEJ:
PERSPEKTYWY URBANISTYCZNE:
WIZUALIZACJE Z LOTU PTAKA KWARTAŁÓW ZABUDOWY JEDNORODZINNEJ:
PERSPEKTYWY URBANISTYCZNE:
WIZUALIZACJE Z LOTU PTAKA KWARTAŁÓW ZABUDOWY TARASOWEJ:
PERSPEKTYWY URBANISTYCZNE:
WIZUALIZACJE Z LOTU PTAKA KWARTAŁU ZABUDOWY PLACU CENTRALNEGO:
WIZUALIZACJE Z LOTU PTAKA PLACÓW CENTRALNYCH I DETALI URBANISTYCZNYCH:
PERSPEKTYWY URBANISTYCZNE:
WIZUALIZACJE Z LOTU PTAKA BUDYNKÓW UŻYTECZNOŚCI PUBLICZNEJ:
2. CZĘŚĆ ARCHITEKTONICZNA PROJEKTU
BADANIA ANKIETOWE /// RESEARCH SURVEY
Założeniem przeprowadzenia badania ankietowego było zebranie materiałów do analizy preferencji mieszkaniowych wśród Polaków. Dobór pytań miał określić pierwszeństwo wyboru typów budynków, metraży mieszkań/domów, a także rodzaj metraży konkretnych pomieszczeń wraz ze wskazaniem typów pomieszczeń wymaganych. Celem ankiety było uzyskanie wytycznych do zaprojektowania wzorcowych domów jednorodzinnych i mieszkań w budynku wielorodzinnym, co przełożyło się na adekwatne propozycje takich domów i mieszkać, które wpisują się w dzisiejsze oczekiwania, są wymagane przez współczesne społeczeństwo i standardy.
Poniżej link do odpowiedzi:
podsumowanie ilości odpowiedzi wskazujących na konkretne aspekty zalet ZABUDOWY JEDNORODZINNEJ:- więcej przestrzeni/większy metraż - 17 - 46% odpowiedzi- posiadanie ogrodu - 13 - 35%- swoboda i wolność w aranżowaniu przestrzeni - 10 - 27%- posiadanie własnej działki/”własnej przestrzeni dookoła” - 9 - 24%- spokój - 8 - 22%- prywatność - 6 - 16%- mniejsza ilość ludzi/sąsiadów - 6 - 16%- lepszy stosunek ceny do metrażu - 2 - 5%Większości osób ankietowanych dom jednorodzinny kojarzy się z większą powierzchnią, której potrzebują i z możliwością posiadania ogrodu - na co teoretycznie nie mogli by liczyć w przypadku mieszkania w bloku - są to kwestie, które można zmienić w przypadku mieszkań w blokach projektując większe mieszkania z większymi metrażami pomieszczeń i bogatymi układami funkcjonalnymi aniżeli jedynie salon z aneksem kuchennym, pokój i łazienka. Poza tymi aspektami są kwestie niezmienialne - posiadanie własnej działki jako terenu wokół domu, co jest powiązane ze swobodą i wolnością w aranżacji przestrzeni - tutaj kwestia “przeszkadzania” sąsiadom wydaje się być istotna w tym przypadku, w domu jednorodzinnym ma się więcej możliwości np. przeprowadzania sprawnych remontów. Ponadto - spokój, prywatność i mniejsza ilość sąsiadów - są to atuty domów jednorodzinnych, których mieszkania w bloku nie mogą posiadać lub trudno żeby posiadały, jedynie bardzo małe budynki wielorodzinne z 4-8 mieszkaniami mogły by poprawić aspekt “mniejszej ilości sąsiadów”, a kwestie prywatności można próbować zwiększać za pomocą przegród budowlanych bardziej izolujących akustycznie i przestrzeni rekreacyjnych odpowiednio oddzielonych od siebie zapewniających ten komfort.
podsumowanie ilości odpowiedzi wskazujące na konkretne aspekty zalet ZABUDOWY WIELORODZINNEJ:- lokalizacja w centrum miasta, czyli w pobliżu istotnych usług, miejsc pracy, itd. - 9 - 36% odpowiedzi- mniejsza ilość obowiązków/odpowiedzialność związana z utrzymywaniem/naprawami - 9 - 36%- atmosfera sąsiedztwa/wspólnoty/miasta - 4 - 16%- niższe koszty ekonomiczne utrzymania - 3 - 12%- niższa cena wynajmu/kupna - 3 - 12%- bezpieczeństwo związane z prawdopodobieństwem kradzieży - 2 - 8%- komfort - 2 - 8%- tworzą lepszą tkankę miejską/bardziej ekologiczny - 2 - 8%Większość osób biorących udział w badaniu, mieszkania w bloku utożsamia z lokalizacją w centrum miasta, czyli w pobliżu ważnych usług potrzebnych do codziennego funkcjonowania, co sugeruje, że domy jednorodzinne nie są według nich spotykane w pobliżu takich usług. Jest to kwestią, którą można zmienić, projektując osiedla jednorodzinne wielofunkcyjne lub w niskiej intensywnej zabudowie w ramach jednej koncepcji w pobliżu budynków usługowych, biur czy osiedli wielorodzinnych. Poza tym niektóre osoby wskazują także atmosferę sąsiedztwa i wspólnoty jako istotny czynnik warunkujący wybór mieszkania w bloku. Ten aspekt też można poprawić w kontekście zamieszkiwania w domach jednorodzinnych za pomocą tworzenia przestrzeni co-living, projektowania domów bliźniaczych, szeregowych i tworzenia bardziej kameralnych przestrzeni sąsiedzkich w pobliżu zabudowy. Kwestie trudne do zmiany to m.in. kolejna najbardziej kojarząca się z mieszkaniami rzecz, czyli mniejsza ilość obowiązków w dbaniu o dom, koszty utrzymania i ogólne mniejsze koszty miesięczne ekonomiczne, ale także cena wynajmu i kupna, podczas gdy pierwszych wad domów jednorodzinnych odnośnie obowiązków nie sposób zmienić, to na ogólną cenę i koszty utrzymania można wpłynąć projektując mniejsze domy, a przez to łatwiejsze w utrzymaniu i tańsze. Stworzenie silnej wspólnoty sąsiedzkiej budowanej za pomocą wspomnianych sposobów, może także poprawić kwestię bezpieczeństwa w przypadku kradzieży - gdzie zaprzyjaźnieni sąsiedzi poinformują mieszkańców o niebezpieczeństwie lub nie dopuszczą do kradzieży, wszystkie jednak ulepszone aspekty łącznie złożyły by się na poprawę warunków zamieszkania i ogólne zmniejszenie przestępczości, a przez to mniej obaw o takie sytuacje.
Tabela z zestawieniem porównawczym wyników badań i powierzchni użytkowej projektowanych budynków wskazuje procentowe zapotrzebowanie poszczególnych metraży domów i mieszkań (kolumna “popyt wg ankiety [%]”), na podstawie odpowiedzi ankietowanych na pytanie 13 i 14. Obliczone zapotrzebowanie w skali stuprocentowej pomnożone razy ilość domów jednorodzinnych na osiedlu/mieszkań w budynku wielorodzinnym daje wynik w kolumnie “potrzebna ilość domów wyliczona matematycznie”. Rzeczywista ilość domów na osiedlu w przybliżeniu spełnia zapotrzebowanie na konkretne domy/mieszkania. Skala rozbieżności spowodowana jest koniecznością zachowania optymalnej funkcjonalności i kompozycji układu urbanistycznego domów i aspektami technicznymi w budynku wielorodzinnym. Powierzchnie pokoi mieszkań/domów pokrywają się z preferencjami mieszkaniowymi ankietowanych. Układy funkcjonalne przedstawiają wiele rozwiązań dostosowanych do wyników badań.
Powyższe odpowiedzi wskazują na następujące kluczowe preferencje powierzchniowe dla pokoi:
pokój dla 1 os. - od 13-17m2 (w dotychczasowych mieszkaniach pokój dla 1 os. mieści się w przedziale od 8 do 12m2)
pokój dla 2 os. - od 18 do 24m2 (w dotychczasowych mieszkaniach pokój dla 2 os. mieści się w przedziale od 13 do 17m2, pomieszczenia w przedziale 18-24 są najczęściej salonem z aneksem kuchennym)
Jest to wzrost o jeden przedział, powierzchnie dla pokoi to najważniejszy czynnik jaki wpłynął na koncepcje zaproponowanych w niniejszej pracy mieszkań.
oryginalne odpowiedzi dot. pytania o pomieszczenia w mieszkaniu w bloku to:- garderoba- pokój gościnny- pralnia- spiżarnia- komórka lokatorska / "piwnica"- magazyn / schowek / pomieszczenie gospodarcze- łazienka prywatna dołączona do jednego pokojupozostałe odpowiedzi dodane przez ankietowanych to:1- “Dostosowałbym wymagania do metrażu mieszkania i poszczególnych pomieszczeń”2- “Gabinet, lub wystarczająco duża sypialnia rodziców, by umożliwić pracę zdalną dorosłych. Ogółem odejście od wizji, gdzie komputer jest w pokoju dziecka, a rodzice po pracy czytają książki i oglądają TV. Liczba komputerów w domu = liczba mieszkańców + laptop.”3- “balkon”4- “Garaż”5- “Miejsce parkingowe, sypialnia”6- “garaż”7- “Rowerownia oraz wozkowania (oddzielnie)”8- “Miejsce parkingowe”9- “Miejsce parkingowe w hali garażowej”Zdaniem autora miejsca parkingowe/garaże są zapewnione na podstawie wskaźnika miejsc parkingowych na mieszkanie 1,2MP, w związku z tym odpowiedzi dot. garaży nie są brane pod uwagę. Balkon, wg autora powinien być zawsze dołączony do każdego mieszkania.Rowerownia i wózkownia są udogodnieniami branymi pod uwagę poza kwestią osobnych mieszkań tzn. nie ekonomicznym rozwiązaniem byłoby zdaniem autora tworzyć osobną wózkownie i osobną rowerownie dla każdego mieszkania, dlatego zaprojektowane zostały inne rozwiązania tych potrzeb, które zostały omówione na planszy nr 4 z części urbanistycznej z szczegółowymi rozwiązaniami dot. komunikacji (skrytki/parkingi rowerowe) i na planszach nr 10-12 z części architektonicznej omawiającym układ funkcjonalny przykładowego budynku wielordzinnego, w którym wspólna wózkownia jest dołączona na parterze każdego bloku.Sypialnia i gabinet to osobne pomieszczenia zapewniane w ramach prawie każdego mieszkania (w przypadku małych mieszkań, mały pokój może pełnić funkcję gabinetu lub sypialni, a mieszkania jednopokojowe mają pokój wielofunkcyjny). Zdaniem autora sypialnia i gabinet nie są pomieszczeniami dodatkowymi.PLANSZE PROJEKTOWE [10-12]
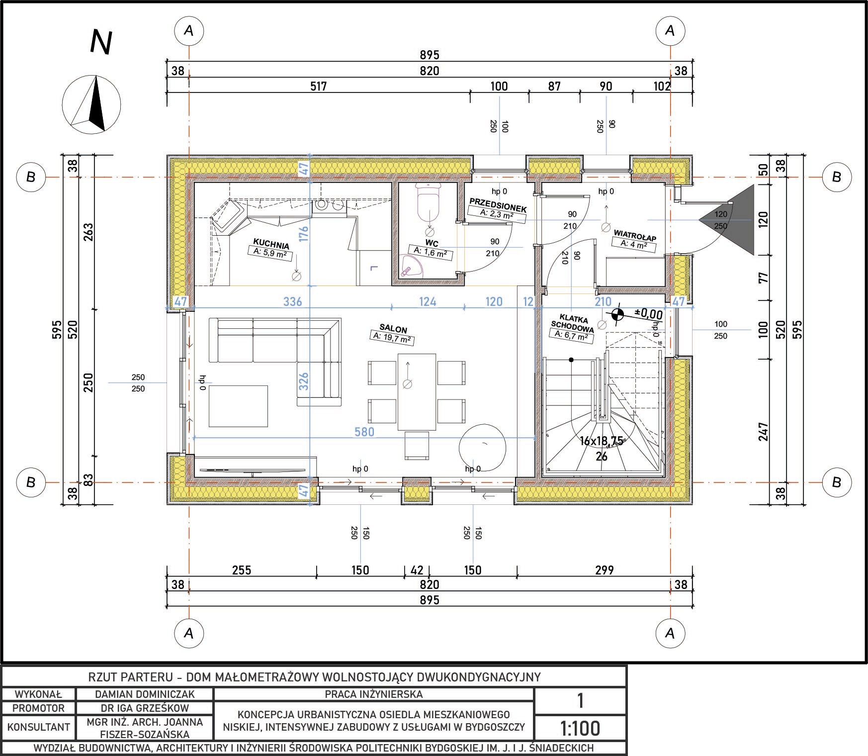
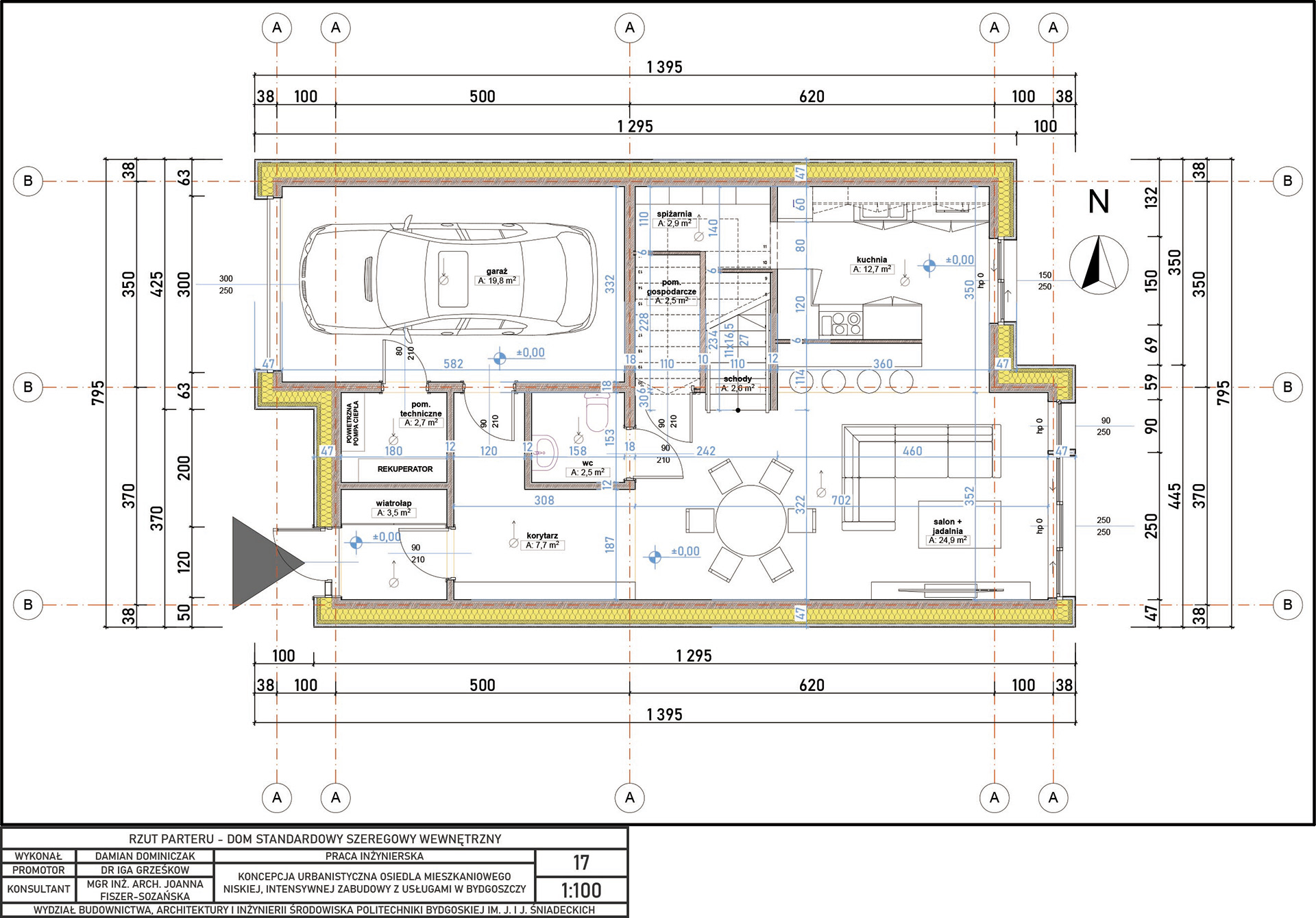
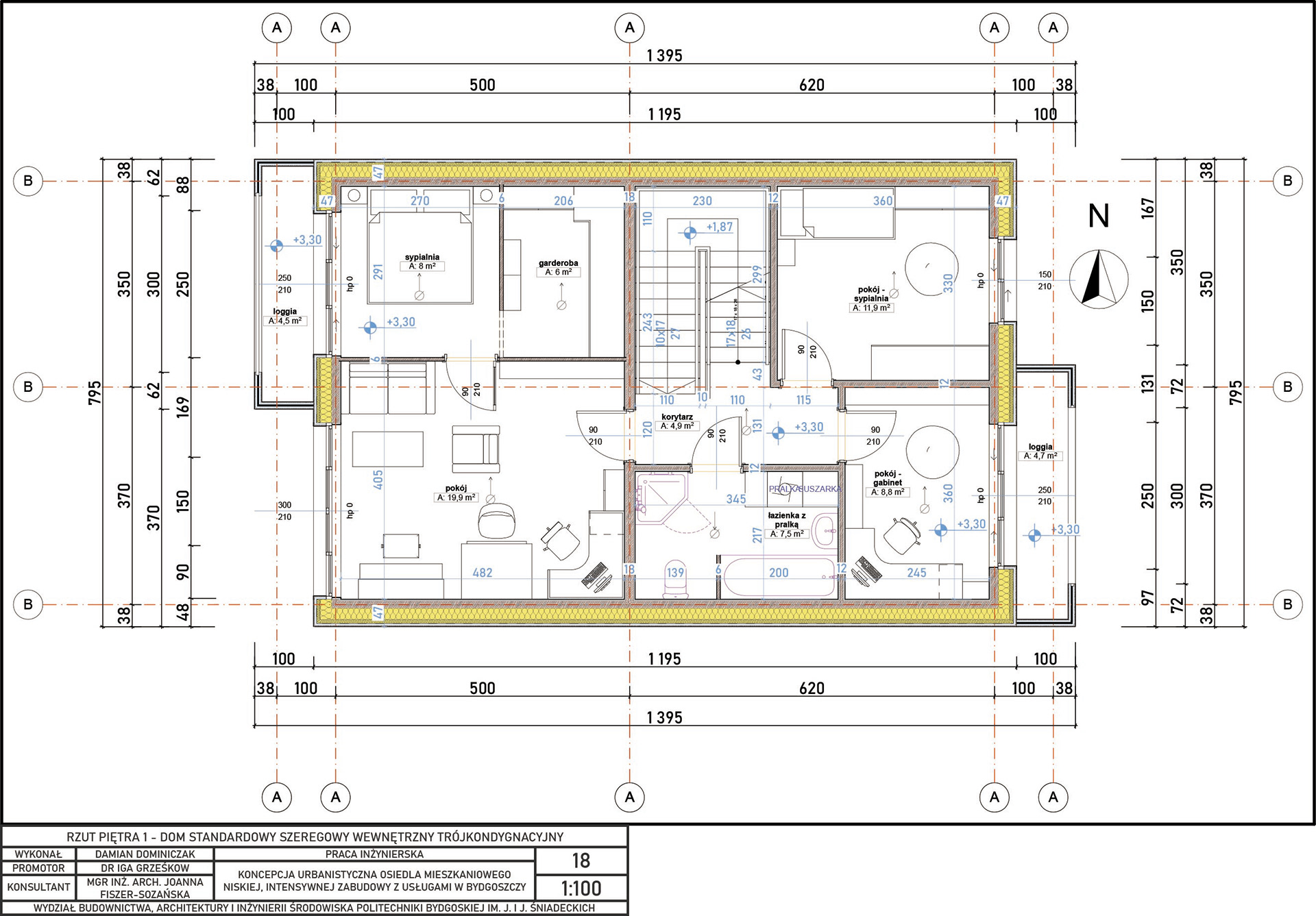
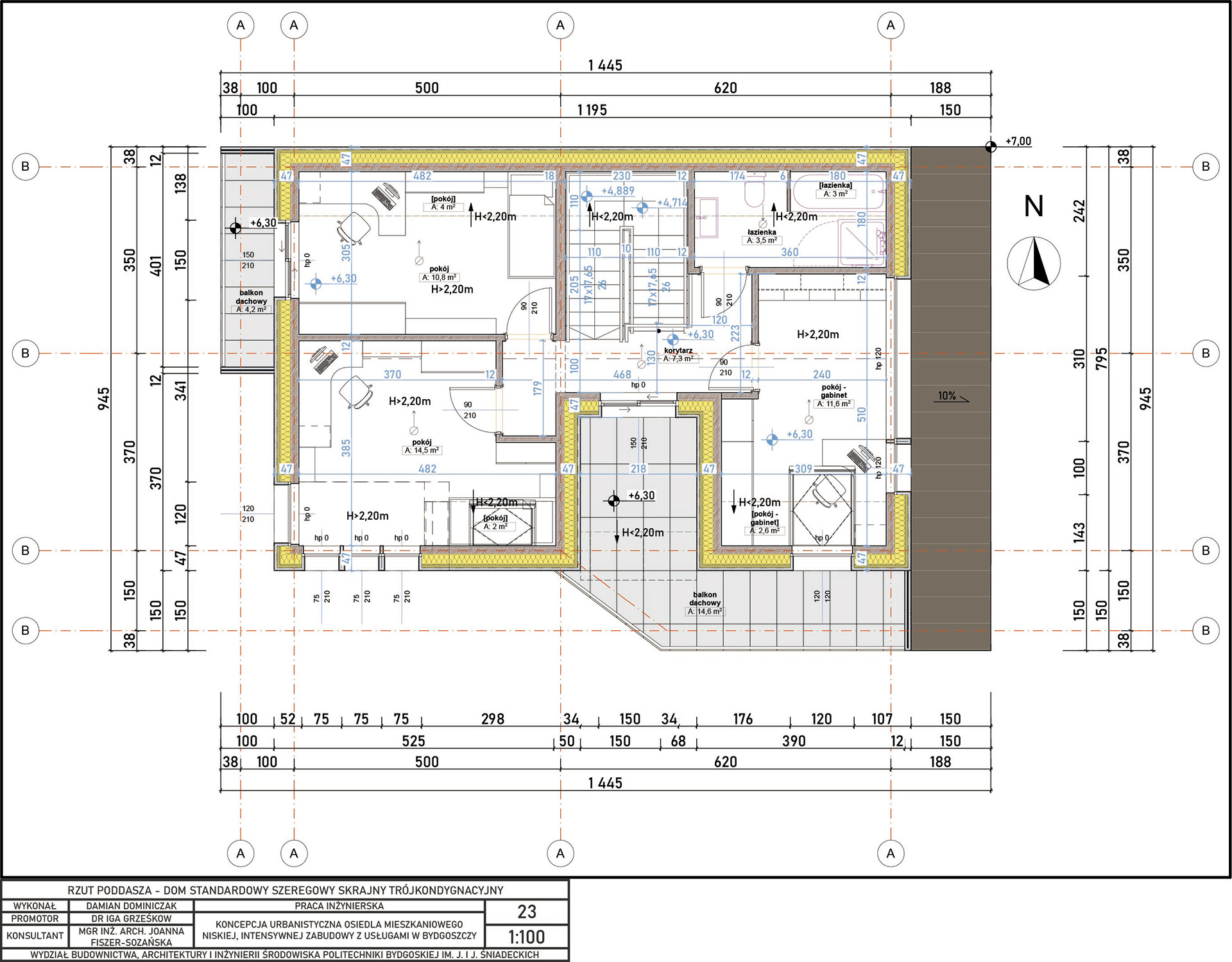
RYSUNKI TECHNICZNE - ARCHITEKTURA - BUDYNEK WIELORODZINNY B1
Obiekt wzorcowy - budynek wielorodzinny B1 został zaprojektowany w konstrukcji z masywnego drewna klejonego warstwowo i krzyżowo (CLT), tak jak i przedstawione w projekcie przykłady domów jednorodzinnych. Analogicznie technologia ta zastosowana jest w pozostałych budynkach wielorodzinnych. Według idei wszystkie budynki mieszkaniowe na osiedlu wykorzystują masywne drewno klejone CLT do konstrukcji przegród budowlanych nadziemnych. Pozostałe budynki tj. budynki użyteczności publicznej, handlowo-usługowe i inne także wykorzystują technologię masywnego drewna klejonego (CLT i inne np. GLULAM), jednak w projekcie nie przewidziano dokładnych rozwiązań tych budynków. W celu szczegółowego wyjaśnienia na czym polega ta technologia autor napisał esej na jej temat (dostępny w plikach źródłowych) w ramach seminarium dyplomowego prowadzonego przez dr hab inż arch. Wojciecha Bonenberg. Poniżej, w krótki sposób przedstawiono jedynie technologię CLT na potrzeby spójności opisu projektu. Masywne drewno klejone CLT (Cross Laminated Timber) to innowacyjna technologia w postaci wielkoformatowych paneli wykorzystująca lite deski tarcicy drzew iglastych (najczęściej) ułożone warstwowo naprzemiennie pod kątem 90st. (krzyżowo) w od 3 do 9 warstwach, sklejone mechanicznie pod ciśnieniem za pomocą specjalnych klejów wolnych od formaldehydów. Panele z drewna klejonego mogą mieć od 6 do 50cm grubości i służą jako materiał konstrukcyjny ścian nośnych, działowych, stropów, dachów, schodów, i innych elementów do stosowania wewnątrz buynku. Masywne drewno klejone wbrew pozorom znakomicie radzi sobie w trakcie pożaru i spełnia wysokie wymagania klas odporności pożarowej przy zastosowaniu obustronnych okładzin z podwójnych płyt gipsowo-kartonowych ogniochronnych. Przy mniejszej grubości warstwy przegrody drewno klejone jest w stanie uzyskać lepszą odporność pożarową, izolacyjność termiczną i przede wszystkim nieporównywalnie zmniejsza emisję dwutlenku węgla podczas wznoszenia budynku w porównaniu z murowanymi technologiami i betonem zbrojonym. Ponadto jest to materiał w 100% odnawialny, a zrównoważona gospodarka leśna przy wykorzystaniu drewna klejonego na masową skalę (sadzenie większej ilości drzew niż wycięto) może doprowadzić do osiągnięcia ujemnego śladu węglowego, czyli pochłonięcia większej ilości CO2 przez drzewa wykorzystane do eksploatacji, niż emisji CO2 podczas budowy takiego obiektu budowlanego. W projekcie zastosowano drewno klejone do wszystkich nadziemnych przegród budowlanych, natomiast kondygnacje podziemne zostały rozwiązane w większości z prefabrykatów żelbetowych (również zmniejsza to emisję CO2 w porównaniu do mieszanek wylewanych w trakcie budowy) i bloczków wapienno-piaskowych, które spośród technologii murowanych są najbardziej ekologiczne.
grafiki wyjaśniające technologię masywnego drewna klejonego, źródło: naturallywood i adera
Budynek wielorodzinny B1 kwalifikuje się do klasy odporności pożarowej C lub D (w zależności od klasyfikacji budynku jako niski (N) lub średniowysoki (SW), budynek posiada 4 kondygnacje nadziemne, jednak ma wysokość 23,46m). Jest to budynek mieszkalny o kategorii zagrożenia ludzi ZL IV. Największa powierzchniowo kondygnacja budynku ma 719,05m2, wliczając powierzchnię antresoli, ma 840,25m2, w związku z tym mieści się w dopuszczalnej powierzchni strefy pożarowej zarówno dla budynku niskiego (N - dopuszczalna 8000m2) jak i średniowysokiego (SW - dopuszczalna 5000m2). Strefy pożarowe w kondygnacji podziemnej oddzielone są elementami oddzielenia przeciwpożarowego. Elementy konstrukcyjne budynku przewyższają wymogi klas odporności pożarowej elementów budynku, które wynoszą:
główna konstrukcja nośna R60
konstrukcja dachu R15
strop REI 60
ściana zewnętrzna EI 30
ściana wewnętrzna EI 30
przekrycie dachu RE 15
ściany wewnętrzne i stropy stanowiące obudowę klatki schodowej REI 60
biegi i spoczniki schodów R 60.
Wartości odporności pożarowej zostały przedstawione na rysunkach technicznych dotyczących budynku wielorodzinnego.
Poniżej grafiki wykonane w KLHdesigner dla poszczególnych przegród budowlanych zastosowanych w projekcie. Udowadniają one, że za pomocą 2 warstw płyt g-k ogniochronnych obustronnie zamontowanych na ścianie z drewna, nawet ściana działowa o grubości 12cm łącznie (6cm warstwa drewniana), jest w stanie zachować nośność, szczelność i izolacyjność ogniową przez 120 minut przy ekspozycji na ogień z jednej strony ściany.
WIZUALIZACJE BUDYNKU MIESZKALNEGO WIELORODZINNEGO B1:
PLANSZE PROJEKTOWE [13-15]
PLANSZE PROJEKTOWE [16-18]
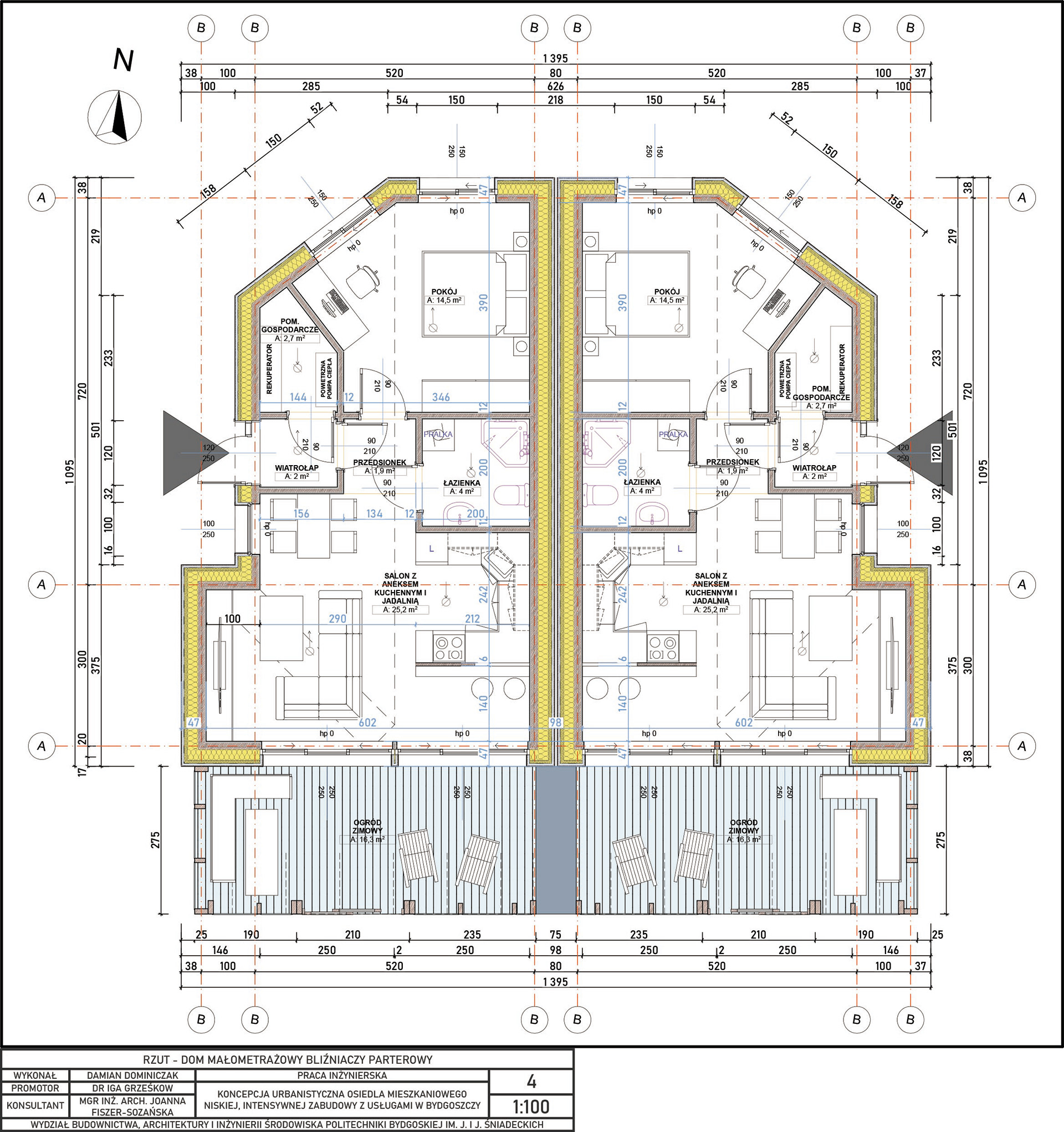
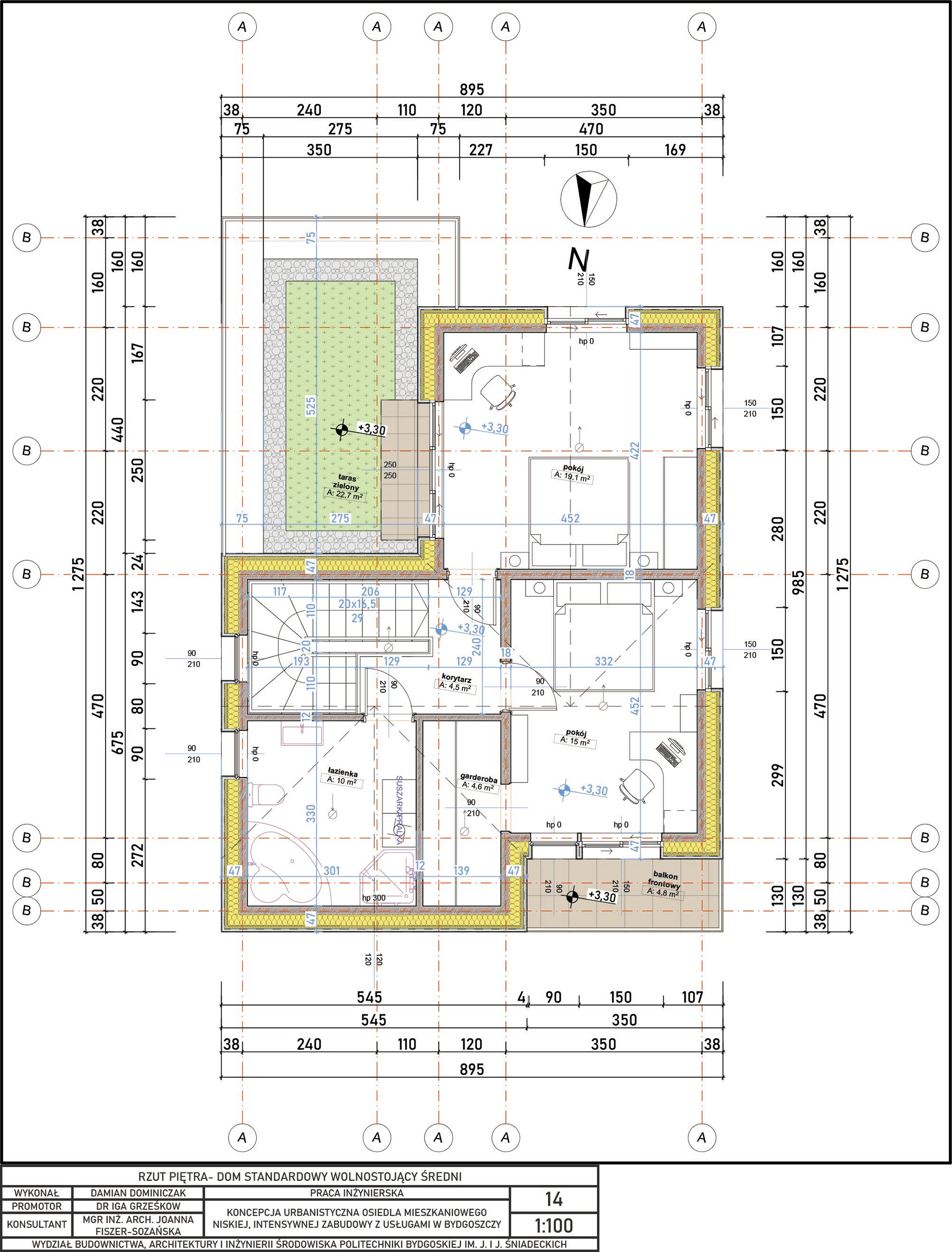
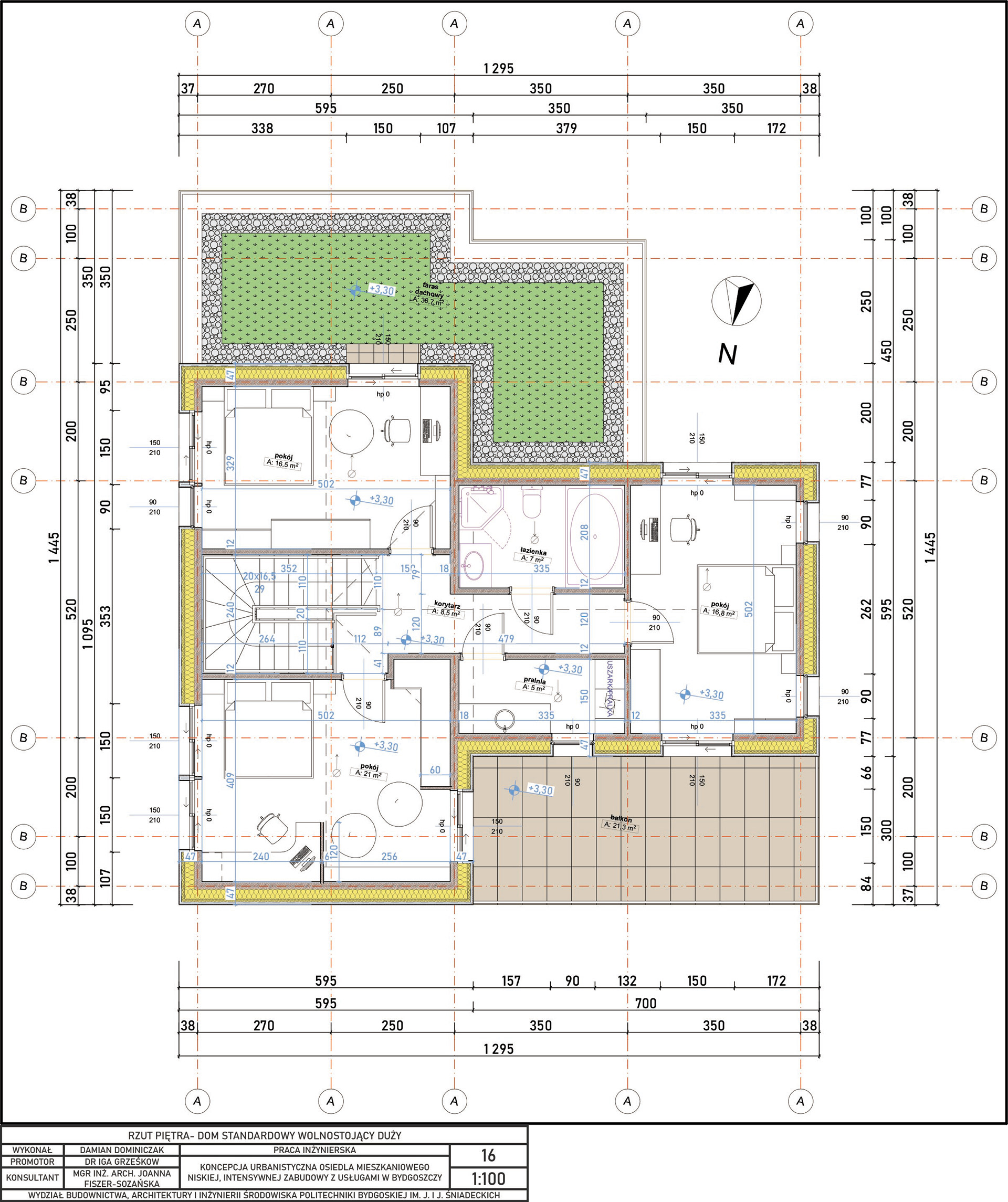
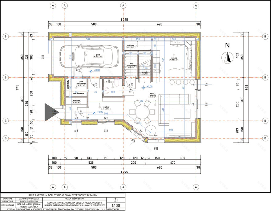
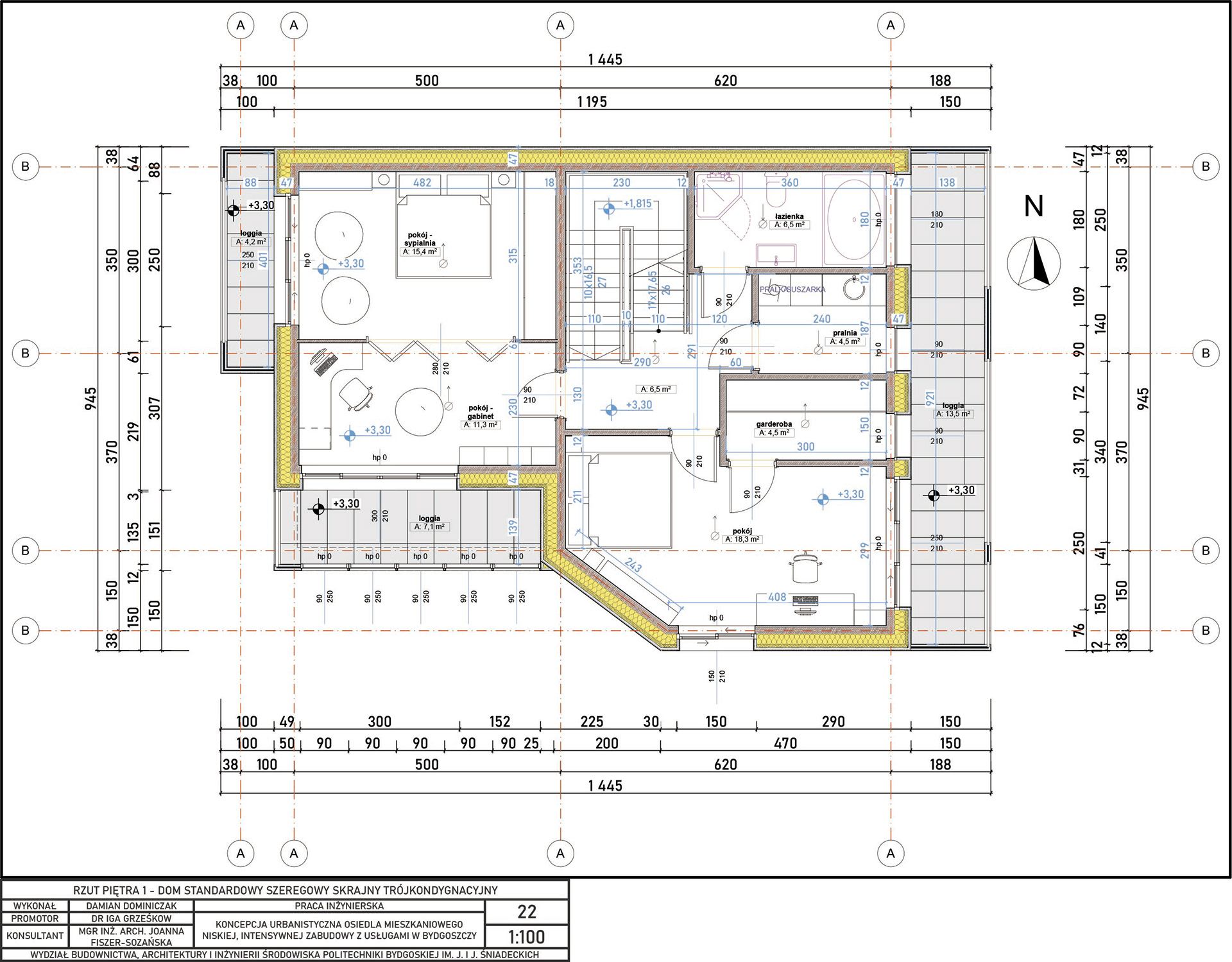
RYSUNKI TECHNICZNE - ZABUDOWA JEDNORODZINNA
WIZUALIZACJE DOMÓW JEDNORODZINNYCH:
Podsumowanie
Cywilizacja ludzka i natura potrzebują konkretnych rozwiązań problemów zmian klimatycznych, aby wspólna koegzystencja nie była dla nich szkodliwa. Nadmierne zanieczyszczanie planety musi się skończyć, a sposób w jaki funkcjonujemy korzystając z jej zasobów musi być zrównoważony. Zastosowanie konstrukcji drewnianej w budynkach na masową skalę zamiast nieekologicznych konstrukcji żelbetowych jest najważniejszym krokiem w kierunku drastycznego zmniejszenia wpływu budownictwa na emisję dwutlenku węgla. Drugim krokiem jest zoptymalizowanie stylu życia ludzi poprzez budowanie osiedli i miast tak, żeby ich codzienne potrzeby były zaspokajane nie używając zanieczyszczających środowisko środków transportu. Tworzenie osiedli wielofunkcyjnych, energooszczędnych i samowystarczalnych sprawi, że nie będziemy marnowali nieodnawialnych zasobów planety. Posiadając wszystkie usługi zaprojektowane w pobliżu, przemieszczanie się nieekologicznymi środkami transportu nie jest konieczne. Wykorzystując wodę w naturalnym cyklu jej obiegu nie marnujemy jej. Oczyszczając ścieki sanitarne w lokalnych oczyszczalniach przydomowych nie zanieczyszczamy środowiska. Mieszkając w budynkach z drewna pozyskiwanego w zrównoważony sposób doprowadzamy do ujemnego śladu węglowego. Korzystając z energii słonecznej zmniejszamy zapotrzebowanie na energię dostarczaną z mniej ekologicznych źródeł. Projektując nawierzchnie przepuszczalne i osiedla wypełnione zielenią pozwalamy wodzie deszczowej na wsiąkanie i ochładzamy klimat osiedla w lecie.
Po poszukiwaniach innowacyjnych idei projektowych i zebraniu najlepszych rozwiązań, wykonano ich syntezę w postaci koncepcji miasta idealnego. Sformułowano szereg wytycznych i ich sposób i miejsce zastosowania w projekcie. Dokonano wyboru obszaru opracowania, przeprowadzono jego analizę i wyciągnięto z niego wnioski. Wdrożono odpowiednie rozwiązania projektowe wykorzystując potencjał terenu i sprzyjającą lokalizację.
Wykonana koncepcja spełnia założone cele w najlepszy możliwy sposób. Uzyskane z niej wartości będą wyznacznikiem dla wielu innych prac w przyszłości, które uwzględnią zmieniające się warunki i jeszcze lepsze i nowsze rozwiązania. Niniejszy projekt ma potencjał do rozszerzenia i uszczegółowienia go w aspektach, które nie były priorytetowe, a stanowiły tło ogólnej idei. Opracowany projekt osiedla mieszkaniowego w niskiej intensywnej zabudowie z usługami wskazał przykłady wprowadzenia realnych zmian we wspólnej przestrzeni życia człowieka z naturą, poprzez zrównoważone i ekologiczne metody projektowe.
客服
消息
收藏
下载
最近




























































































































































































































































































































