查看完整案例

收藏

下载

翻译
BUDYNEK MIESZKANIOWY WIELORODZINNY W KONSTRUKCJI Z DREWNA KLEJONEGO CLT
[CROSS LAMINATED TIMBER]
fragment urbanistyczno-architektonicznego projektu inżynierskiego "Koncepcja urbanistyczna osiedla mieszkaniowego niskiej intensywnej zabudowy z usługami w Bydgoszczy"
autor: inż. arch. Damian Dominiczak
mail: dam.kes@o2.pl
promotor: dr Iga Grześkowkonsultant: mgr inż. arch. Joanna Fiszer-SozańskaSemestr zimowy, rok akademicki 2021/2022Wydział Budownictwa, Architektury i Inżynierii ŚrodowiskaPolitechnika Bydgoska im. J. i J. Śniadeckich
PLANSZE PROJEKTOWE
RYSUNKI TECHNICZNE
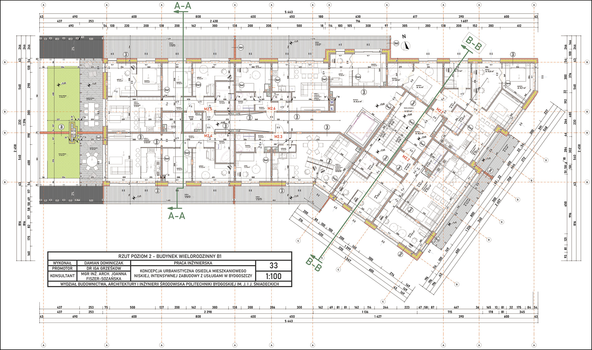
Obiekt wzorcowy - budynek wielorodzinny B1 został zaprojektowany w konstrukcji z masywnego drewna klejonego warstwowo i krzyżowo (CLT), tak jak i przedstawione w projekcie przykłady domów jednorodzinnych. Analogicznie technologia ta zastosowana jest w pozostałych budynkach wielorodzinnych. Według idei wszystkie budynki mieszkaniowe na osiedlu wykorzystują masywne drewno klejone CLT do konstrukcji przegród budowlanych nadziemnych. Pozostałe budynki tj. budynki użyteczności publicznej, handlowo-usługowe i inne także wykorzystują technologię masywnego drewna klejonego (CLT i inne np. GLULAM), jednak w projekcie nie przewidziano dokładnych rozwiązań tych budynków. W celu szczegółowego wyjaśnienia na czym polega ta technologia autor napisał esej na jej temat (dostępny w plikach źródłowych) w ramach seminarium dyplomowego prowadzonego przez dr hab inż arch. Wojciecha Bonenberg. Poniżej, w krótki sposób przedstawiono jedynie technologię CLT na potrzeby spójności opisu projektu. Masywne drewno klejone CLT (Cross Laminated Timber) to innowacyjna technologia w postaci wielkoformatowych paneli wykorzystująca lite deski tarcicy drzew iglastych (najczęściej) ułożone warstwowo naprzemiennie pod kątem 90st. (krzyżowo) w od 3 do 9 warstwach, sklejone mechanicznie pod ciśnieniem za pomocą specjalnych klejów wolnych od formaldehydów. Panele z drewna klejonego mogą mieć od 6 do 50cm grubości i służą jako materiał konstrukcyjny ścian nośnych, działowych, stropów, dachów, schodów, i innych elementów do stosowania wewnątrz buynku. Masywne drewno klejone wbrew pozorom znakomicie radzi sobie w trakcie pożaru i spełnia wysokie wymagania klas odporności pożarowej przy zastosowaniu obustronnych okładzin z podwójnych płyt gipsowo-kartonowych ogniochronnych. Przy mniejszej grubości warstwy przegrody drewno klejone jest w stanie uzyskać lepszą odporność pożarową, izolacyjność termiczną i przede wszystkim nieporównywalnie zmniejsza emisję dwutlenku węgla podczas wznoszenia budynku w porównaniu z murowanymi technologiami i betonem zbrojonym. Ponadto jest to materiał w 100% odnawialny, a zrównoważona gospodarka leśna przy wykorzystaniu drewna klejonego na masową skalę (sadzenie większej ilości drzew niż wycięto) może doprowadzić do osiągnięcia ujemnego śladu węglowego, czyli pochłonięcia większej ilości CO2 przez drzewa wykorzystane do eksploatacji, niż emisji CO2 podczas budowy takiego obiektu budowlanego.W projekcie zastosowano drewno klejone do wszystkich nadziemnych przegród budowlanych, natomiast kondygnacje podziemne zostały rozwiązane w większości z prefabrykatów żelbetowych (również zmniejsza to emisję CO2 w porównaniu do mieszanek wylewanych w trakcie budowy) i bloczków wapienno-piaskowych, które spośród technologii murowanych są najbardziej ekologiczne.
Budynek wielorodzinny B1 kwalifikuje się do klasy odporności pożarowej C lub D (w zależności od klasyfikacji budynku jako niski (N) lub średniowysoki (SW), budynek posiada 4 kondygnacje nadziemne, jednak ma wysokość 23,46m). Jest to budynek mieszkalny o kategorii zagrożenia ludzi ZL IV. Największa powierzchniowo kondygnacja budynku ma 719,05m2, wliczając powierzchnię antresoli, ma 840,25m2, w związku z tym mieści się w dopuszczalnej powierzchni strefy pożarowej zarówno dla budynku niskiego (N - dopuszczalna 8000m2) jak i średniowysokiego (SW - dopuszczalna 5000m2). Strefy pożarowe w kondygnacji podziemnej oddzielone są elementami oddzielenia przeciwpożarowego. Elementy konstrukcyjne budynku przewyższają wymogi klas odporności pożarowej elementów budynku, które wynoszą:
główna konstrukcja nośna R60
konstrukcja dachu R15
strop REI 60
ściana zewnętrzna EI 30
ściana wewnętrzna EI 30
przekrycie dachu RE 15
ściany wewnętrzne i stropy stanowiące obudowę klatki schodowej REI 60
biegi i spoczniki schodów R 60.
Wartości odporności pożarowej zostały przedstawione na rysunkach technicznych dotyczących budynku wielorodzinnego.
Poniżej grafiki wykonane w KLHdesigner dla poszczególnych przegród budowlanych zastosowanych w projekcie. Udowadniają one, że za pomocą 2 warstw płyt g-k ogniochronnych obustronnie zamontowanych na ścianie z drewna, nawet ściana działowa o grubości 12cm łącznie (6cm warstwa drewniana), jest w stanie zachować nośność, szczelność i izolacyjność ogniową przez 120 minut przy ekspozycji na ogień z jednej strony ściany.
客服
消息
收藏
下载
最近











































