查看完整案例


收藏

下载
肃肃凉风生,加我林壑清。
项目案名|《咏风》
项目地点 |世茂国风
项目信息 | 500㎡别墅
设计风格 | 现代风
设计施工|尊道国际设计
本案围绕空间的光线,通风的顺畅来规划格局,利用采光井与通风井的联动,并通过设计浇筑结构来使得整个空间,动息,通透,也是暗喻业主清风道洁,德高长寿福自来。
运用材料:艺术漆、瓷砖、不锈钢、透光水晶砖,树脂灯具,竹炭木金属板、木饰墙板、大理石、极简门。
*
DESIGN
BACKGROUND&业主故事
业主夫妇慕名而来,独一份的信任,沉甸甸的感动,子女给父母装修房子,主打适老化设计,打造颐养空间。感恩信任,倾注全力。
*DESIGN
THOUGHT&设计思路
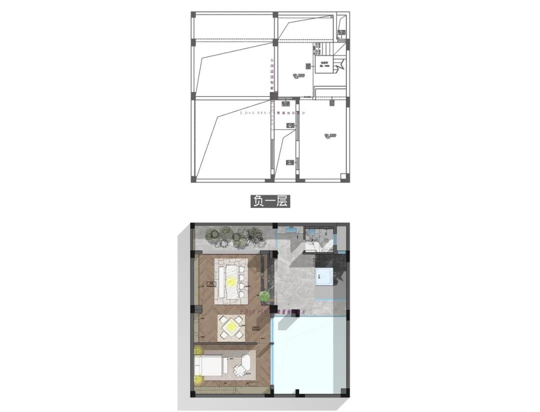
➊地下空间阴暗,逼仄,采光通风不是很好。
➋车库入户玄关、通风井、采光、电梯轿厢尺寸较小。
➌调换入户门位置,进门设计门厅和玄关。
❹结合功能区设计半开放影音室和台球区。
❺车库设计洗手区,方便进出水的使用。
别具一格的归家礼序
负二车库
采用深色调为主,营造出一种低调奢华的感觉,同时也为车辆提供了凸显其美感的背景。
天花板上反射光波纹的设计模仿了水面光泽,令人联想到动态与静谧。并然有序的壁灯点缀在一侧墙壁上,透光型材,既提供照明也起到装饰作用。
墙面和地板使用了质感强烈的材料,墙面真石漆涂刷,透光水晶砖,地面定制调色地坪漆,再一次强调了这个空间的高端气质。
车库内部不仅可停放有车辆,还设有水槽和储物柜等便利设施,让日常使用更加人性化。闲适随性,自由自在。负二层娱乐室
空间不仅注重视觉效果的打造,也体现了对居住者日常活动需求的关注。通过巧妙设计,创造出一个既适合娱乐又放松的环境。
采用开放式空间布局,通过明亮的双层楼高和顶部采光井天窗设计,提供充足的自然光照,增强空间的通透感。二层空间的引入为室内增加了额外的视觉层次。
为保证展示酒柜的嵌入,顶立面做了防潮石膏板平板封顶。
中央吊挂的圆形灯具设计以月亮为灵感,与天窗的自然光相互辉映,为空间带来了浪漫且神秘的氛围。装饰性灯光不仅作为光源,更具备强烈的装饰效果。
墙面大幅的黑白动态纹理大理石,加强了空间的艺术表现力。地面的偏灰色调与墙面形成色彩上的平衡,整体配色简洁而现代。
弧形门洞的设计体谅了整个空间的趣味,平衡了现代与传统韵味,考究每一处细节的空间感受。营造沉浸式负二层影音室
墙面的大屏幕和高品质的音箱系统布置是家庭影院的核心。屏幕尺寸与观看距离的比例考虑周到,以确保最佳的观影体验。音箱的位置分布周围,目的是营造沉浸式的音响环境。
房间内的灯光设计简约而现代,横向的 LED 灯带增加了空间的未来感,并为观影提供了必要的辅助照明,同时避免对观影体验造成干扰。宽敞的按摩沙发座位配备了头部和脚部的放松功能,确保了长时间观影的舒适性。沙发摆放顺序和间隔遵循了观影视线最佳角度的原则。墙面和天花板的材料经过精心挑选的,以抵消回声和外部噪音,优化声音效果。深色调的环境有助于增强观影的集中感,并降低光线反射。影院的温度和光线都可以通过智能家居系统进行调节,提升了用户体验的方便性和舒适性。
*DESIGN THOUGHT&设计思路
➊通过采光井的区域拆除负一层原始楼板,确定挑空位置,设计出茶室。➋北侧则是采光井侧边墙体开窗光线引入,设计娱乐区,还有一个客房。➌保留一个卫生间供负一负二使用干区。气派有烟火,心宽福自来。负一层茶室。
设计巧妙地将茶桌和麻将桌结合在一起,既满足了休闲娱乐的需求,也体现了对传统文化的尊重。不仅满足了家庭成员和朋友间的娱乐需求,也提供了一个体验中国传统文化的机会。值得一提的是,茶柜两幅字画是业主自有,特意放入效果图中体现的。空间布局注重实用性与舒适性,确保在享受娱乐活动的同时,也能保持良好的交流氛围,右侧则是北边采光井墙体开窗,增加南北光线通风的连贯性。
空间中使用了木质家具和石材装饰,这些自然材质的选择不仅提升了空间的质感也带来了温馨舒适的氛围。
茶桌和麻将桌的设计融入了中国传统元素,如茶具的摆放和麻将桌的雕刻,体现了深厚的文化底蕴。这些元素与现代家具设计相结合,展现了传统与现代的和谐统一。
暖色调的灯光和装饰品进一步增强了空间的温馨感。灯光设计考虑到了不同活动对光线的需求,茶桌区域采用了柔和的照明,营造出宁静的早茶气围,而麻将卓区域则提供了足够的光线,确保游戏时的视觉清晰。
空间中还融入了一些自然元素,为室内带来了生机与活力。平和宁静,温柔细腻。负一层客房
整体采用温和的色调,以米色和浅木色为主,营造出一种温馨、放松的氛围。床铺居中放置,周围留出充足的行走空间,无形中扩大了室内空间感。
一侧的办公区域与休息区相隔,方便居家办公。
房间利用了间接照明来打造温馨的氛围,如隐藏在悬挑的天花板内侧的灯光,以及床头一侧的挂灯,提供了柔和且分布均匀的照明,非常适合休息和放松。
墙面上透光玻璃砖不仅点缀了空白的墙面,也让空间有互动性和通透感。
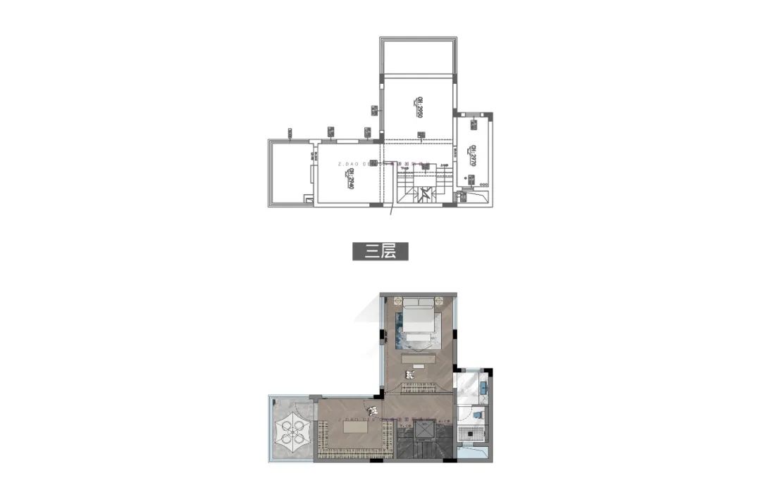
*DESIGN THOUGHT&设计思路
➊北侧采光井侧墙拆除引入光线做阳光房,引入楼梯通风井光线。
➋电梯设计龙门架式观光电梯,拆除楼梯侧边,扩宽井道。
➌厨房拆除墙体做开放式餐厨一体。
慵懒随性,日光悠游。
一层客餐卫。
在有限的空间内创造了流畅而宽敞的生活区域,家具的布局优化了客厅的动线,使得进出和活动都十分方便。空间以中性色调为主,辅以深色调创造对比和层次。木纹、软布、大理石、金属等多种材质的搭配,增添了空间纹理和深度,丰富了视觉体验,独特的边桌和其上的微型景观则是创意与自然美的完美结合。
隐藏式的灯槽和墙面的线条灯兼顾了美观和实用性,同时,间接照明营造了温馨舒适的氛围。灯光的温暖色调与空间整体的配色相呼应,增强了室内的温暖感觉。
餐厅的设计采用了明亮且开阔的空间布局,能够容纳较大的家庭聚会。家具的摆放维持了足够的活动空间,同时保证了功能的完整性。室内采用了温暖的柔和灯光,自然光通过大型窗户引入。
厨房拆除原有墙体,与餐厅融为一体,设计开放式厨房,集成灶,内嵌冰箱,早餐吧台。
一楼卫生间中轴设计玄关,对称餐厅门洞,解决风水问题,设计干湿分区,悬挑浴室柜精练整洁,方便卫生打扫,壁挂马桶,背后设计电热毛巾架,实用更加便利。正对面则是设计家政储物柜,收纳非常充足,上中下的设计,方便卫浴用品存储拿放。
*
DESIGN
THOUGHT&设计思路
➊西侧设计长辈房。
➋南侧则是卫生间拆除设计女儿房。
➌留有起居空间以及公卫空间。
岁月宁静且从容。
二层休息区
采取了简约主义的设计手法,通过简化的空间形态与材质的自然质感相结合,创造了一种平静与安宁的氛围。床头设计采用了横向条纹构造,这既强化了床的主体性,又添加了视觉层次。床边的小型工作台与开放式书架融入空间,大面积的窗户设计保证了丰富的自然光照。而室内照明则通过埋入式筒灯和隐藏的 LED 灯带提供均匀而舒适的人工光源,这种间接照明方式既美观又实用。
二层孩子房采用了现代简约风格,选了温和却有质感的色彩,以及精细的面料纹理搭配,营造出既宽敞又舒适的氛围。内嵌式的衣柜,采用了平滑的面板门,以其无把手的设计来强调简洁美感,同时也实现了充足储物空间的需求。卫生间墙面拆除扩为卧室空间,窗边的设计师椅和书桌的搭配创造了一个静谧的阅读或工作角落。
二楼电梯厅,通过减少繁复装饰,以突出空间的整洁与宁静。家具的选择和摆放突显了功能性与现代美学的结合。
二楼卫生间内部结构清晰,分为干湿两个区域,洗手台和卫生设备干区明确分离,湿区则为淋浴空间,采用通透的玻璃隔断,保持了空间视觉的连贯性。
*DESIGN
THOUGHT&设计思路
➊三楼西侧露台浇筑外扩顶面,纳入室内。➋南侧露台保留,设计主卧套房,并设计有独立衣帽间,一方私谧领地,三层主卧套房。
主卧把露台浇筑纳入室内,床头墙体砌筑,侧边留窗。在卧室的一角,有两扇大窗户引入了大量的自然光线,增强了空间的开阔感和与自然的联系。纯白的透视窗帘与深色的遮光窗帘相结合,不仅确保了私密性,还能调节室内光线。地板使用温暖的木质地板,墙面则采用了具有自然纹理的 PU 石材贴面,搭配下方同色系的木质板材,形成了一种材质上的对话,增添了空间的层次和深度。
衣帽间的空间布局充分利用了垂直空间,通过高柜和挂衣最大化存储效率。考虑到功能性,将日常穿着的衣物放在容易拿取的位置,而将季节性或不常穿的衣物放在较高或较低的储物区域。右侧是保留原始露台,留作闲暇时间喝茶赏景。
黑色水龙头和淋浴系统的选择与整体风格保持一致,增添了设计感。重要的是,卫生间设计遵循了人体工学原理,确保在使用时的舒适性和便捷性。
*
DESIGN
THOUGHT&设计思路
➊四楼露台西侧浇筑外扩,纳入室内,做晾衣房。
➋北侧露台浇筑成洗衣房。
➌南侧露台保留与自然接触贴近生活的空间,慵懒随性,日光悠游,四层洗晾露台空间。
四层休闲区,另一侧则也是浇筑起来,晾晒,BBQ 烧烤,DIY 区域,并且留有朝南露台,小憩。
原有顶楼露台浇筑内如室内,顶面扣板型材吊顶装饰,防晒且便于顶面设备、管道维修,整体布局紧凑而高效。将洗衣设备与操作台面集成,形成一个功能完备的洗衣区。洗衣机与烘干机并排放置,上方的台面提供了足够的空间供折叠衣物和放置洗涤用品。
客服
消息
收藏
下载
最近

































































