查看完整案例

收藏

下载

翻译
Architects:UNBOX
Area:3680ft²
Year:2023
Photographs:f/8
Manufacturers:Hettich,Jaquar,Legrand,Nuvacotta,Philips,Suzuka,Varmora
Lead Architects:Manoj Sivasubramaniyan
Structural Engineering:Kozodynamic
Design Team:Sowmika
Interior Design:John Praveen
Mep Engineer:Ashrap Ali
Landscape Architecture:Abinaya Ravichandran, Vanchinathan
Civil Engineering:Aasirvatham
Text:Haritha M Ratnam
City:Vaiyampatti
Country:India
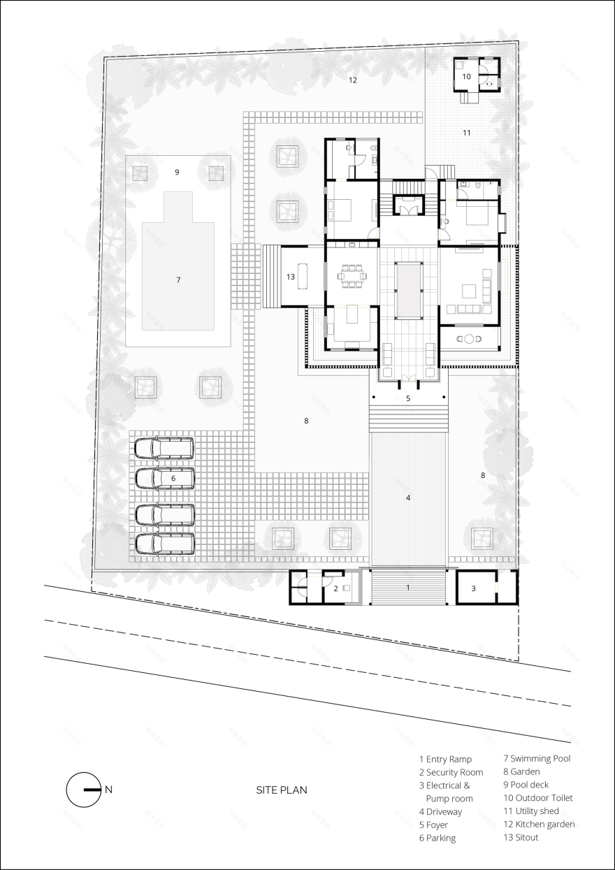
Text description provided by the architects. In the serene countryside of Vaiyampatti, nestled amidst the vast expanse of paddy fields, stands a humbly placed farmhouse exuding quiet grace and rustic elegance. It is a perfect setting reminiscent of William Wordsworth's "Solitary Reaper". The low-lying and spread-out nature of the home makes it humane and relatable to the surroundings, offering a fitting aesthetic response to the setting. While this house is conceived as a classic, straightforward courtyard house, stemming from the client's memory of their family home, it combines traditional principles and effortlessly blends them with the needs of modern inhabitants.
Architecturally, it is a precise 3x3 grid inspired by the traditional Naalukettu house, with strategically positioned walls only where essential to accommodate specific functions, allowing the open plan to function seamlessly otherwise. The nucleus of the house being the courtyard, occupies the central grid. Wrapping around it is a corridor with sloped roof adorned with intricate eaves designed to channel rainwater runoff into the bio pond. The overflow from the bio pond gets collected in the rainwater harvesting tank that was functionally planned and integrated during the foundation stages. The corridor unfolds into spacious living in the north, dining in the south, a welcome lounge and a stairwell on the west and east respectively—with the welcome lounge being the first space encountered upon entry.
This entry features a portal inspired by the tall and opulent temple doors of Tamil Nadu, that serves as a grand and inviting gesture. Positioned on the central axis, it reveals an enchanting view of the pooja room, framed by the bio pond in the foreground when opened. The alignment echoes the design of temples, where the deity and the main portal face the rising sun. The tall and majestic portal is emphasized by glass windows flanked on either side, transitioning into a lintel-level brick Jali envelope, that forms the frontage on the outside and a thermally comfortable sit-out with filtered light and air on the inside.
The clean geometry of concrete and steel combined with an exquisite material palette such as Mangalore roof tiles, bricks, and handmade clay pots for the filler slab, and the juxtaposition of polished and unpolished granite alongside vibrant athangudi tiles creates a tactile, and soulful experience. Despite the variety of roof explorations ranging from concrete flat slabs to filler slabs and sloped tile roofs, and window styles from glass to grills & louvers, the combination is balanced optimally for visual and climatic appeal.
In crafting the Reaper's house, the deliberate avoidance of "White," typically perceived as flawless and unnatural, reflects the designer's profound respect for the imperfections inherent in nature. This core intent drove the choice of natural tones creating a genuine, heartfelt character, resonating with its surroundings, hence living by the quietness of "Stop here or gently pass!"
Project gallery
客服
消息
收藏
下载
最近























