查看完整案例

收藏

下载
项目名称 | 天水市碧桂园御府
项目地址 | 甘肃 天水
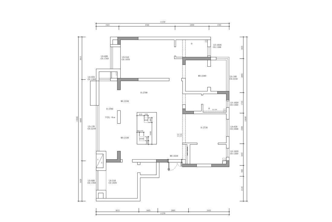
项目面积 | 114m2
项目时间 | 2024年08月
硬装设计 |宜居空间设计
硬装总监 | 赵雷
软装设计 | 例外软装设计
软装总监 | 赵雷
简约大方是现代法式的灵魂,流畅的线条勾勒出的顶面,搭配地面暖色的木地板,无声而静谧地表达着法式格调与生活间的隐秘联系。毛绒感地毯、微白皮沙发的搭配,让客厅空间更有谐和质感,在简约洁净的空间下,营造出自然舒适的生活仪式感。
相比于纯白,奶油色调多了一分醇厚,比起米黄色,它则又少了一分浓烈,清清淡淡之间呈现出软糯的温柔质感,透出优雅恬静的空间魅力,让人下班回家感觉轻松愉悦,放松身心。
本案的两位业主开朗、直爽且热情,有一个可爱的女儿,女业主的父母偶尔会过来一起住。业主喜欢简约、温馨的居家环境,在生活中奉行“断舍离”的理念,不想家里堆满“无用”的东西来占满空间。
相比于纯白,奶油色调多了一分醇厚,比起米黄色,它则又少了一分浓烈,清清淡淡之间呈现出软糯的温柔质感,透出优雅恬静的空间魅力,让人下班回家感觉轻松愉悦,放松身心。
本案的两位业主开朗、直爽且热情,有一个可爱的女儿,女业主的父母偶尔会过来一起住。业主喜欢简约、温馨的居家环境,在生活中奉行“断舍离”的理念,不想家里堆满“无用”的东西来占满空间。
客厅在营造闲适与温馨的格调之余,也将优雅浪漫的情怀植入。客厅与阳台的连通使整体空间更加通透,弧形垭口以圆滑细腻的收边在自然光线下熠熠生辉,既深沉又温润,将美感与恬静完美融入空间中,提升了整屋的颜值和艺术气质。
客厅选配现代优雅沙发,搭配富有肌理感的地毯,凸显自由随性的生活态度。地摊上摆放云朵茶几,温柔灵动的不规则线条带着几分俏皮可爱,勾勒出空间的静雅气质。
客厅选配现代优雅沙发,搭配富有肌理感的地毯,凸显自由随性的生活态度。地摊上摆放云朵茶几,温柔灵动的不规则线条带着几分俏皮可爱,勾勒出空间的静雅气质。
沙发背景墙后开一扇窗,与后方空间形成互动,光线肆意地在居室内穿透,玻璃内侧安装百叶帘,拉上后两侧便形成独立空间,互不打扰。
沙发背景墙后开一扇窗,与后方空间形成互动,光线肆意地在居室内穿透,玻璃内侧安装百叶帘,拉上后两侧便形成独立空间,互不打扰。
客厅地面铺贴木地板,家具及软装主色调都是奶油色,在空间之中自然而然地融入弧形元素,视觉上整体融洽,无主灯吊顶设计搭配自然材料和质感,用温润的木质和柔软的布艺,营造出自然、温馨的氛围。
从客厅看向餐厨空间
温柔的配色与流畅的线条呈现出细腻的质感,以一种抚慰人心的治愈感,让餐厨区多了一层朦胧而美好的滤镜,温润舒适的观感,给居住者岁月静好的体验感,让人从忙忙碌碌之中回归优雅和宁静舒适放松。
餐桌放置在餐厨空间的中间位置,黑色餐桌搭配藤编元素的餐椅,使清新的奶油系空间更显素雅大方、别具一格,营造出屋主所期待的舒适与温暖。
餐厅与厨房打通之后,空间更为宽敞,餐厨一体的设计一定程度上也增加了家人间的互动,拉进了彼此间的距离。厨房采用L型+一字型布局,中间部分区域保持原有的构造,两侧打造白色的地柜+吊柜,简洁的艺术设计搭配纯粹的色调,呈现出干净纯粹的清新的气息。
把阳台封窗纳入客厅,整个客厅空间开阔很多。
一部分阳台纳入主卧之后,为空间带来更优渥的采光和视野,整体被奶油色包裹,床尾墙面以弧形过渡至阳台,提升空间的舒适感。
客服
消息
收藏
下载
最近










































