查看完整案例

收藏

下载

翻译
Architects:DCA Architects of Transformation
Area:299m²
Year:2023
Photographs:Simon Devitt
Manufacturers:AGP,APL NZ,Abodo,Ampelite,Antipodes,Armando Vicario,David Trubridge,Glideaway,Jacobsens,Red Stag,Resene,Tile Depo
Environmental Design:E Cubed Building Workshop
Structural Engineering:No.8 Engineering
Geotechnical Engineering:Stratum Consultants
Construction:HRC Construction
Lead Designer:Darryl Church
Lead Technical:James West
City:Whakamaru
Country:New Zealand
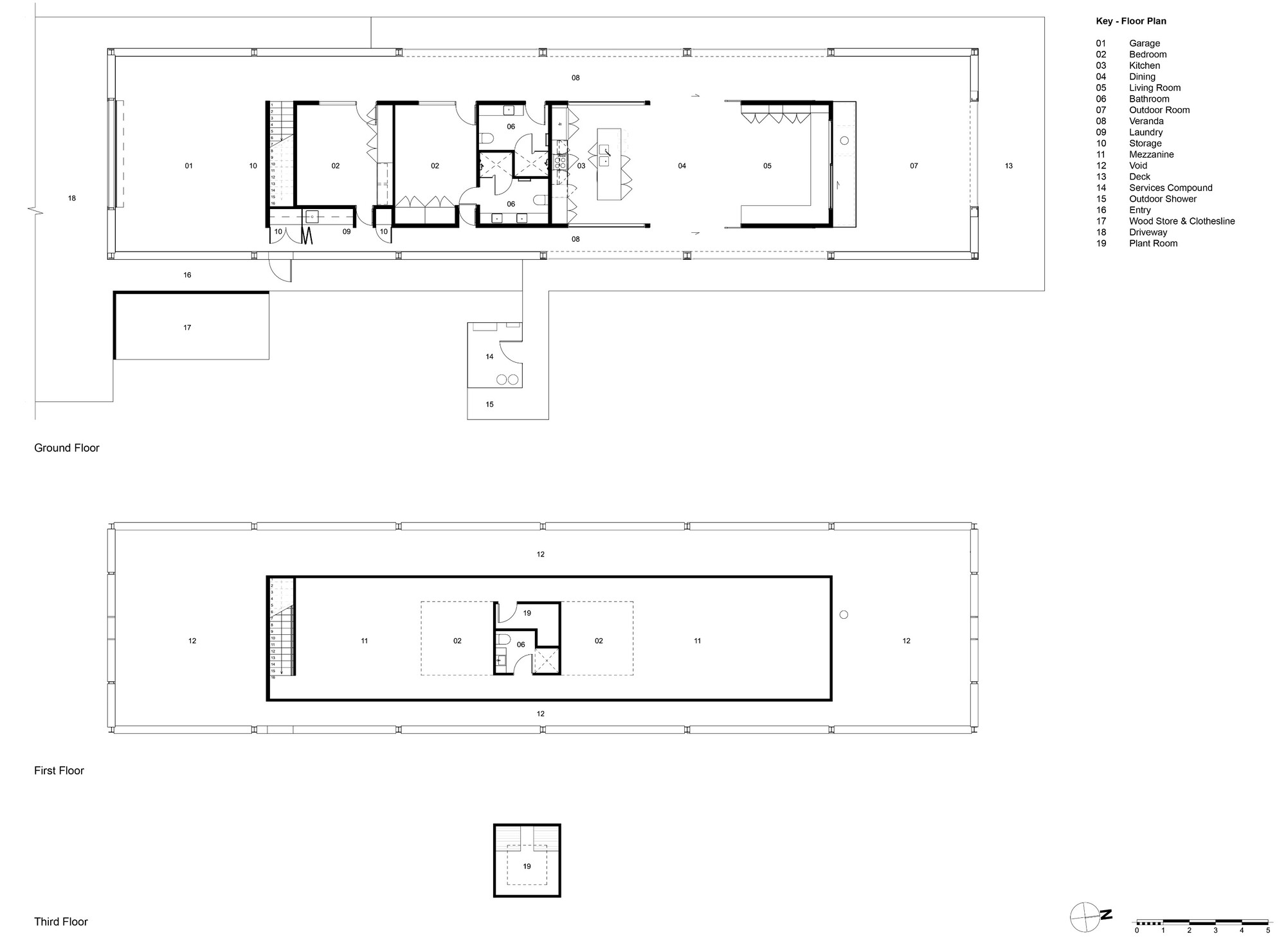
Text description provided by the architects. The Chodge is a rural holiday home located in New Zealand surrounded by natural landscape beauty. The dwelling is an exploration of the interstitial space between inside and outside. It's a "kiwi" holidaying obsession of living across the threshold of indoors and outdoors. The key moves are a exaggerated separation of an inner contained space, highly insulated, cave like, and sheltered by a larger outer structure, light emitting with large operable openings.
The clients had camped on the bare land for 14 years prior and loved the connectedness with daylight hours and landscape. They requested a house that could be used across all the seasons, while connected to landscape, feel intimate for two, or spacious to cater for ten. The design is an exploration of the interstitial space between inside and outside, how you live when on holiday, the relationship with landscape and connection to a rural vernacular. We set out to explore the potential live ability of this interstitial space.
Living in the threshold drove the idea of creating a space outside the inside, but still inside the outside. The Woolshed vernacular drove the exterior form. A simple functional roof pitch, unadorned, undecorated, and true to the existing woolshed standing on the property. The outer cladding is weathertight and light emitting. A translucent skin on the interior contributes to the control of heat gain and heat loss. Large operable openings, fire station doors, aircraft hangar doors when open render the outside structure a large-scale veranda. Inside this outer shell is an extruded wooden container for living functions, designed to Passive Haus principles, cave like in stark contrast to the outside structure. This inner structure is wood clad, warm, recessive and contemplative. Essentially a house within a house.
By creating this interstitial space, the occupants could live across all the seasons and weather patterns. Additional sleeping spaces on the mezzanine resonate with past camping on the site, in tune with the circadian rhythm of natural daylight hours. A simple frame with curtain pulls around the beds to create a space with a degree of privacy.
Project gallery
客服
消息
收藏
下载
最近
















