查看完整案例


收藏

下载
Barsav 办公室:该项目的主要挑战是建立客户对其居住区域的偏好与社区的历史、文化和经济特征之间的联系。作为建筑师,我们认为我们的任务是开发一种模型,既可以融入社区的历史背景,又可以作为当地居民长期居住的多样而杂乱的结构的可行替代品。实现这一目标的第一个策略是处理记忆的创造,这是织物历史、旧住宅和身处空间的感觉之间的结合,而不是回到以前的建筑形式和形象,而只是遵循粗略的印象。它迎合了项目的客户和客户。
该项目移交给我们的办公室,是一个六层楼的项目。马吉德区是该市最著名的地区之一。
社区正在不断发展,需要仔细考虑才能形成模式。由于社区的当地特色和新居民的缺乏,投资者对在这里投资的兴趣不大,公寓楼的主要目标是出租、个人居住和资本保值。从雇主的角度来看,选择这个位置是因为员工对该地区感到熟悉,并且靠近他们的工作地点和家庭。这位五十岁的客户与他的配偶和孩子住在一起。制作珠宝是他的职业,因此他珍视专业工匠的技艺,并在这方面非常注重细节。雇主通过追求华丽的设计并以华丽的方式进行总结,同时强调住在带庭院的住宅中的愉快和难忘的体验,创造了一个悖论。
我们的目标是重新思考雇主的期望,并追求卓越、实用以及切实、个性化和难忘的体验形式的奢华。
在研究场地、与雇主和附近居民交谈时,我们发现了个人和建筑物的集体记忆中有一个共同点,即过去的庭院和花园。这些组件可以作为结构元素并入建筑物中,传达历史和功能历史,同时也可以转化为建筑图案和细节、光影的演绎、隐私创造和通风可能性。
该项目的基本概念是框架,它既是建筑核心空间组件布置的框架,也是其索引模型。同时,它装饰精美,与即将进行翻修的怪异邻居区分开来。从房间的正面到深处,光影在倾斜的砖表面上的移动故事围绕着一个框架展开,框架前面有几棵老梧桐树。
由于小巷狭窄、交通繁忙、房屋高贵,与街道的互动仅限于负空间(露台)。然而,由于光线可以穿透空间,并且可以看到白天空间(客厅)外面,我们可以考虑无人看管的窗户和自然通风。角落向周围倾斜,为空间使用者提供了数十米的更大视野。然而,从房间深处的视角刚好在露台外面的梧桐树处结束,从而实现与环境的互动。
建筑体块上的叶壳可以倾斜和滑动,以创造不同的外部通透性和孔径,从而控制从外部到内部的视野。这也为光影的变换提供了背景,并调节了日照量。它还将视野从正面转移开,面向东方和西方,从而提供更细致的小巷和日出日落的视觉体验。
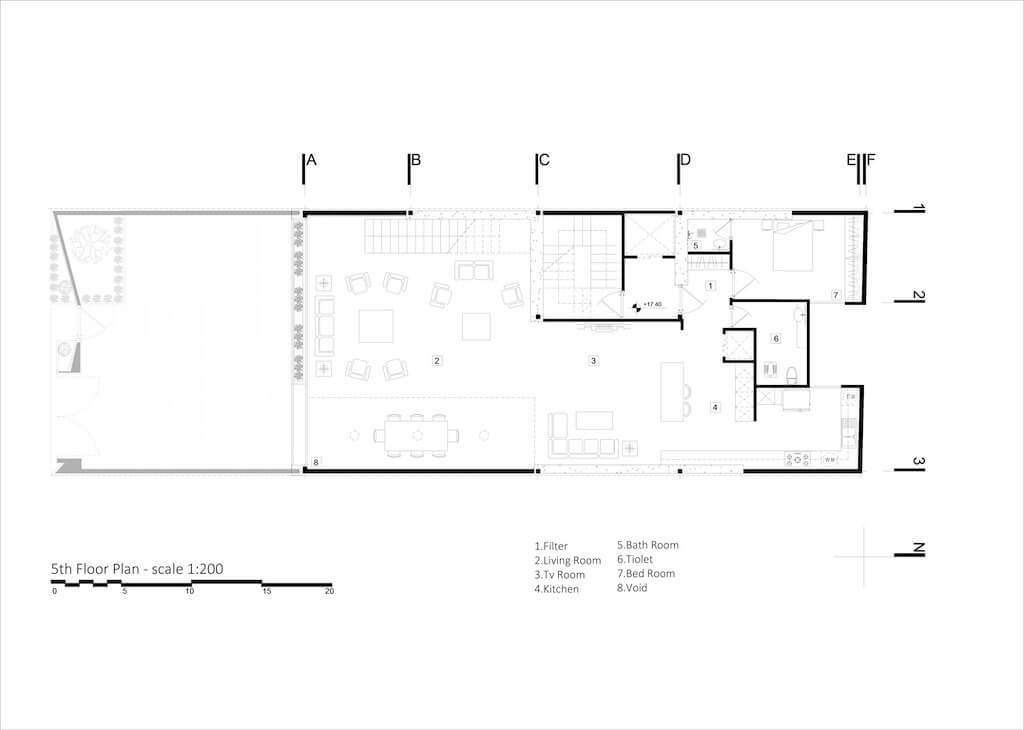
典型楼层 (1-4楼)
业主对于一至四层(160平方米)出租单元的划分,关注的问题是布局类型、维护问题、可更新的材料以及空间的开放性和流畅性。主要目标是实现厨房和主厅之间区域的适应性和多功能性。空间方法:第一,空间(客厅、图书馆、电视室、休闲区等)可以独立运作。第二:扩展主厅或厨房(准备用餐区)的选项露台从立面边缘延伸到布局深度,为该区域提供了视觉吸引力、通风潜力和自然光优势。尽管是绿色的,但它被视为厨房和用餐区之间的合适隔断。
房子
在设计这栋房子时,客户是空间的主要使用者。黑白二元性一方面基于过去的建筑经验,另一方面缺乏空间先例,需要按比例重新定义以达到中间地带。起居区和宾客接待区占据了房子的整个一楼。由于南侧的花园允许在邻近街区的屋顶前形成绿色窗帘,而贵族(对面街区)的缺失最大化了透明度。
房间、客厅和可以看到梧桐树的开放式庭院都在二楼。客厅不仅面向庭院,还通过庭院面向主房间和接待区。起居区可以向公共庭院开放,就像老房子的门廊一样。开放式楼梯与屋顶的第三层相连,可以为孩子们提供玩耍的空间,也可以与家人共度一小时的夜晚。我们的目标是揭示空间中发生的直觉,并通过在建筑元素中引入模糊性来激发一种质疑的感觉。
砖块切割成一定角度,形成框架。通过旋转和移动二维图像,它通过不同砖面上的光影变化传达了一段回忆的故事——而不仅仅是一面具有多个维度的砖墙。当阳光照射时,空间内外的体验截然不同,因为它部分明亮,部分黑暗,阴影部分被照亮。砖框架在初始阶段增强了可读性、延伸性和楼层之间的关系。然而,经过楼梯进入第二层后,我们看到主体延伸到第三层,并且有从庭院通往下一层的楼梯。当人们注意空间在颜色和纹理方面的零和一时,达到主要目标变得容易得多。
客服
消息
收藏
下载
最近






























