查看完整案例

收藏

下载

翻译
Architects:4_32 architecte
Area:5910m²
Year:2024
Photographs:Vladimir de Mollerat du Jeu,GLEvents,4_32 architecte
Lead Architect + Landscaper:4_32 architecte
Heritage Architect:RL&A architectes
Coordinating Architect Stadium Of Gerland:Albert Constantin
Construction Economist:Biming
Project Owner:LOU Rugby
City:Lyon
Country:France
Text description provided by the architects. The Gerland swimming pool, built in 1932 by architect Tony Garnier, a Grand Prix de Rome winner in 1899, and listed by the French Monuments Historiques authority, just received a spectacular extensive renovation. Situated within the Matmut Stadium de Gerland complex in Lyon, the Gerland Aquatic and Sports Center reimagines the "Athletes' Quarter", initiated but left incomplete by Tony Garnier. This project now provides a sports complex open to the public, school students, and the professional rugby team, Lyon Olympique Universitaire (LOU Rugby). The project includes a training performance center, offices for LOU Rugby, and an aquatic wellness and fitness center, all redesigned to meet current expectations.
The site as a whole relies on the fundamentals envisioned in 1913, primarily the staging of the monumental entrance to the Gerland Stadium, known as the "Allée des Lions". The project focuses on enhancing this entrance along with the existing pool, bleachers, and diving platform. To create this enhancement project, three main volumes are connected by intermediate blocks, resulting in graduated heights. The tallest volume acts as a backdrop to the pool and the historical diving platform, which is now transformed into a sculptural object. The two lower volumes frame the restored bleachers. The new buildings, surrounding the exterior aquatic space delimited by the bleachers, create the ideal setting for the existing pool. Their design takes advantage of the 7.50 m grid applied by Tony Garnier to all the projects on the site. This grid is doubled and shifted to avoid the crushed concrete foundations of the former "Athletes' quarter", preserved as vestiges of the 20th century. The project aims to restore a presentation that matches the pool's heritage value. The redevelopment plan includes restoring the bleachers, foundations, and existing diving platforms.
The use of concrete references Tony Garnier, a pioneer in its application. The project's architecture adheres to the principles of concrete porticoes, outlining a regular grid on the two primary facades. These porticoes serve as support for the elongated girders, allowing flexibility and adaptability for various purposes such as offices, sports areas, and a pool. They provide visible uniformity in the foreground, while in the background, the portico depth varies between 40 cm and 1 m, accommodating diverse uses: a curtainwall facade adaptable to uses and orientations, sunshades on the southern side, and loggias on the north create visual separation between offices and bathers. South of the outdoor pool lies a building that serves as the headquarters office for LOU Rugby. Its bold architecture harmoniously aligns with the site's history as well as from an urban and architectural brief standpoint. Monumental exposed concrete porticoes define the entrance to the stadium on Allée des Lions, which refers to the neoclassical style of the original project by Tony Garnier.
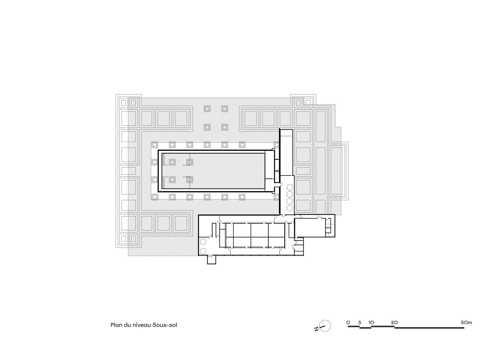
The West building, located on level 0, houses a learning swimming area. This includes a 25-meter pool with four lanes and dressing rooms. The hall opens onto the outdoor pool, surrounding beaches, and bleachers. The 45-meter, six-lane Nordic pool is constructed within the one designed by Tony Garnier, whose physical trace is still noticeable. It comprises a swimming area and an aquatic well-being zone. The original depth of 5.40 m has been reduced to 1.80 m to prevent excessive water, energy, and chlorinated product consumption. The 10-meter diving platform, no longer in use, has been decommissioned and repurposed into a sculpture. Level 1 features a wellness and fitness area that is open to the public. A partial technical basement level encompasses the pool. The East building is dedicated to professional sports. On level 0 are training areas, a running track, a synthetic indoor field, and physical therapy rooms; on level 1: are lounge areas, video viewing rooms, and offices. Its architecture is identical to that of the West building.
The Gerland Aquatic and Sports Center metamorphosis presents a unified architectural composition that seamlessly fits into its context, while also housing multiple nested programs. The project is a tribute to the building: its portico architecture, exposed concrete, roof terraces, and the sobriety of the ornamentation of the facades contribute to the formal architectural, constructive, and usage coherence with all the existing buildings already constructed on the site by Tony Garnier.
Project gallery
Project location
Address:Lyon, France
客服
消息
收藏
下载
最近



































