查看完整案例

收藏

下载

翻译
New University Classroom
University Project 2022Individual
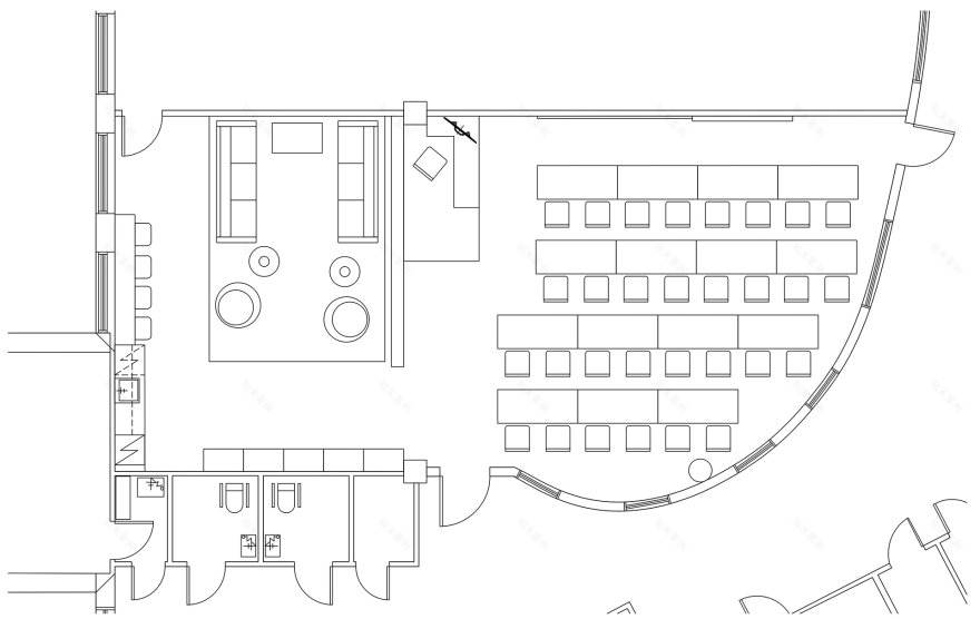
The project focused on modifying a classroom with minimal changes, respecting new requests.
The idea was to create a space divided into two: one for classes and another for kitchen/living room during breaks. In addition, the classroom had to be easily adaptable for different activities.
I decided to make a dividing wall with plants, which can be easily removed and relocated, allowing for continuous modifications. This shelving would also provide extra storage space.
客服
消息
收藏
下载
最近


















