查看完整案例

收藏

下载
项目地址|招商央玺
Project Address| Zhaoshang Yangxi
项目风格 | 现代暗黑风
Project Style | Modern dark style
项目类型 | 复式
Project Type | Duplex
项目面积 | 360m²
Project Area | 360m²
主创设计 | 杨文标
Chief Designer| Yang Wenbiao
案例概况
Case Overview
梦想中的家,是心灵的避风港,也是品味的展示厅。本案将现代风与暗黑色调完美融合,在兼顾空间通透性和流动性的同时,强调个性化和人性化设计,打造了一个既实用又具有科技感与美感的家居空间。
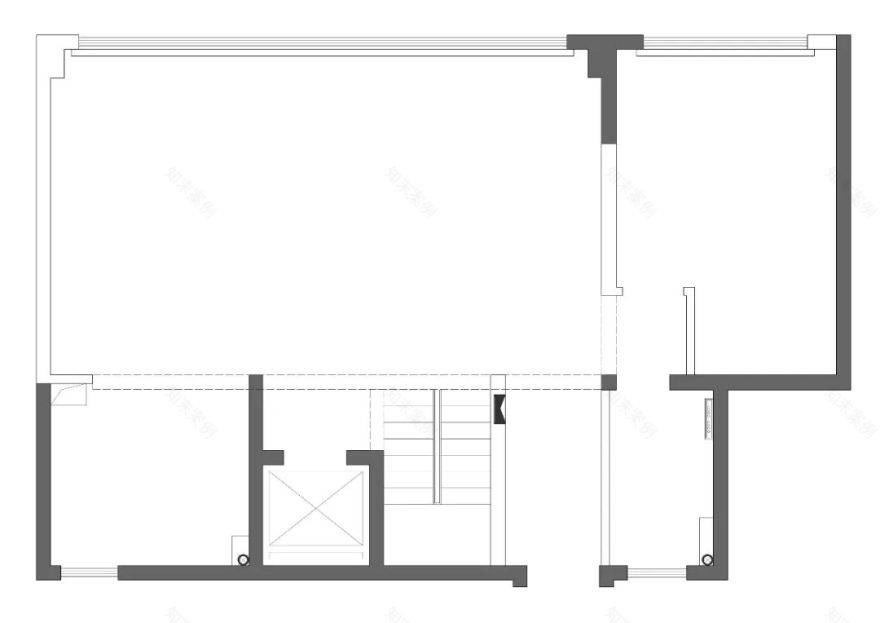
一层 原始平面图
一层平面布置图
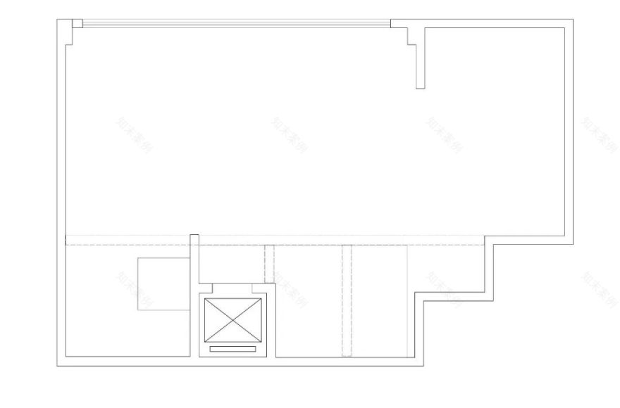
二层 原始平面图
二层平面布置图
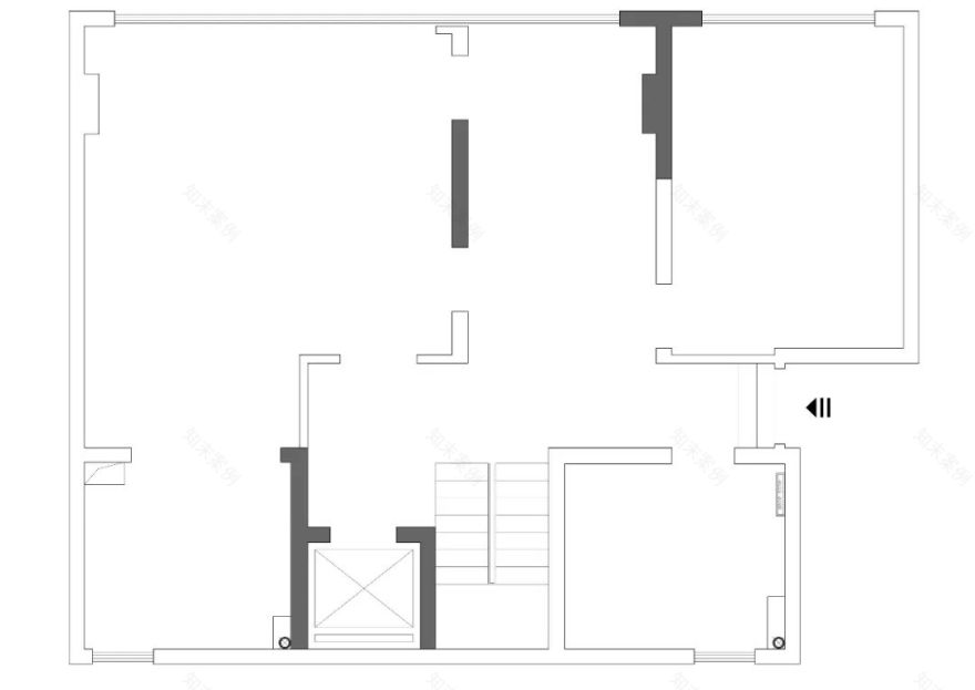
负二层、夹层 原始平面图
负二层平面布置图
夹层平面布置图
客厅 ·|魅夜雅居|Living room
客厅
没有过多修饰,却凭借暗黑元素的魅力展现出别样的高级感。深色木质电视背景墙与黑色面板相结合,搭配暖色调灯带,营造出温馨又富有层次的空间。米色沙发和棕色脚凳环绕黑色茶几,构成舒适休息区,蓝色的花瓣椅以其乖张的艺术张力,成为客厅空间中无论是造型还是色彩运用都让人眼前一亮的存在。
餐厅 ·|幽雅奢享|Dining room
餐厅与客厅无缝衔接,共同构建出一个开放式空间。黑色橱柜与客厅的暗黑主题相得益彰,营造出稳定而庄重的氛围。黑白相间的大理石餐桌,以其独特的纹理和光泽,为空间增添奢华质感。橱柜上的嵌入式照明与餐桌上方的几何吊灯交相辉映,共同营造出明亮而不失温馨的用餐环境。置身于此,每一餐都像是一次深邃的探索,味蕾在这幽暗的环境中被唤醒,带来别具一格的用餐体验。
卧室·|内敛沉静|Bed room
卧室依然是延续客厅的设计风格,摒弃华丽的装饰。整体以暗黑为主色调,适当添加木质纹理,辅以橙色点缀,在保持整体空间帅酷感的同时,兼顾起居的舒适与实用。深邃的黑色让居住者更加宁静,也让思绪更为放松,随着光影的变换,在自在调整之中开阖有度。
书房·|雅致通透|Study room
书房于夹层以开放式呈现,深色系的书架、地板和墙壁营造出沉稳而大气的氛围。天井光线充足,使得整个空间明亮通透,大理石瓷砖对光的反射进一步增强了空间的质感和深度,创造出华丽优雅的视觉享受。
休闲区 ·|静谧开阔|Recreation are
负二楼的休闲区以开放简约的设计方式,成为家中重要的公共互动空间。两层挑高的空间,抬头目之所及是窗明几净,天井明媚的光线自然引入,舒缓平和的气质在这个空间里氤氲。转身于灰色布艺沙发上落座,一杯香浓的咖啡香气扑鼻而来,调和出一副质朴、惬意、轻松静态的私人空间。
娱乐区·|潮酷空间|Entertainment area
娱乐区不仅是家庭成员放松身心的地方,也是与朋友欢聚的理想场所。
负二层,天然昏暗的光线,恰为其提供了得天独厚的条件。在这里,平日里可以邀请二三好友,一同沉浸在大屏幕的精彩中,或者在电竞房里展开激烈的对战,尽情享受愉悦的生活体验。无论是看电影、玩游戏还是简单的聚会聊天,这里都能提供一个舒适而充满乐趣的私密空间。
露台 ·|自然情韵|Terrace
露台,是生活空间的延伸,也是美好与安宁的存在。在这里,光与自然让空间有了时间的维度,营造出四季不同的光影。坐在家中,便仿佛拥有了天地,生活的诗意与远方在此得以具象化。
杨文标
从业 17 年
毕业于西安电子科技大学
中国室内注册设计师
中国建筑学室内设计分会会员
中国室内高级软装设计师
中国室内设计协会俱乐部会员
「 所获荣誉 」
2013 年搜房网“设计名人堂”特约设计师
2014 年华商报“房周刊”上榜设计师
2015 年西安市年度优秀设计师
2016 年西安市年度优秀设计师
2017 年“帝铭杯”设计大赛银奖
2019 年蒂森克虏伯别墅设计师大赛创意设计奖
2019 年清华大学设计研修班进修
2019 年华鼎奖(别墅住宅类)金奖
2020 年亚太空间设计年度最具原创设计师
2021 年 40Under40 中国设计杰出青年
2021 年 GPDP AWARD 法国双面神 TOP100 最具国际影响力创新设计奖
「 设计理念」
一个愉悦的空间、一种尊贵的生活、一方独享的天地、在这里寻求最合适的表达。
「 代表作品」
住宅空间代表:
金地中心风华、金地芙蓉世家、金地翔悦天下、金地世家风华、金地湖城大境天锦、天地源大都会、白桦林团圆、国熙台、高新华府、逸翠园、万科理想城、自然界城墅、自然界云宸、御锦城、招商依云、南湖意境、荣兴云天、科为城墅、大华公园世家、浐灞半岛·藏珑、天鹅堡、龙湖璟晨、龙湖双珑、龙湖花千树等作品。
商业空间代表:
鑫源国际酒店、西咸水务集团二水厂综合办公楼。
客服
消息
收藏
下载
最近






























