查看完整案例

收藏

下载
位于东京都的白金台地区,一栋原本由六个独立单元组成的传统木制公寓楼被重新改造成一间凝练的商业空间。这一建筑改造包括完整的室内改造,所有的室内隔墙都被拆除,创造了一个开放统一的起居空间。
In the heart of Tokyo, Minato Ward, a traditional wooden apartment building, originally comprising six separate units, has been reimagined into a single cohesive commercial space. This architectural transformation involved a complete internal renovation, where all interior walls were demolished to create an open and unified living environment.
▼改造后空间,space after renovation © Akira Nakamura
强调一层空间的光照和空间
Enhancing Light and Space on the Ground Floor
一层空间原本采光较差,氛围阴郁,改造最大化利用了现有的光线。设计尽可能的保留原有的窗户,注重对完成面的改造, 使最微弱的光都可以照亮整个空间。天花板被拆除以增高空间的层高,并且铺设了红色的松木木地板。湿区则小心的铺设了弧形的PVC瓷砖地板,并挂上了弧形的窗帘来呼应地板的形式,创造了温和但开放的功能空间。还新建了木制楼梯来提供到达二层的内部通道。
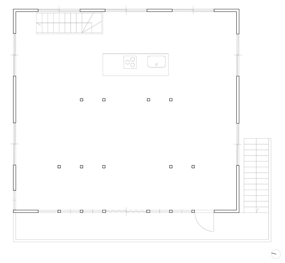
▼改造后一层平面,ground floor plan after renovation ©Roovice
The ground floor, which previously suffered from poor natural lighting and a somewhat gloomy atmosphere, was carefully redesigned to maximize the use of available light. While preserving as many of the original windows as possible, the renovation focused on finishes that would allow even the smallest amounts of light to enhance the space. Ceiling boards were removed to raise the ceiling height and a knotty red pine wood flooring was laid. The wet areas were subtly defined with round-shaped PVC tiles flooring, complemented by curved curtains that echo the same form, creating a gentle and inviting atmosphere in these functional spaces. A new wooden staircase was constructed to provide an internal access to the second floor.
▼建筑外观,exterior of the building © Akira Nakamura
▼建筑入口,entrance of the building © Akira Nakamura
▼一层空间概览,overview of the ground floor space © Akira Nakamura
▼重新布置的柱网结构,reorganized columns © Akira Nakamura
▼被窗帘分隔的干湿区域,the certain separates the wet zone © Akira Nakamura
▼通往二层的楼梯,staircase towards the upper level © Akira Nakamura
其中一个最重要的改变发生在入口处。原本的入口位置靠后,光线较暗,现在入口处的位置更靠近入口,使其更容易到达,也更方便用户使用。沿袭日式建筑的传统,新入口略微低于室内地面,该区域的地面铺设了光滑的砂浆地板,并进行了扩建,可容纳自行车、滑板和其他物品,确保为租户丰富的生活方式提供充足的空间。
One of the most significant changes was made to the entrance. Previously set back and dark, the entrance was relocated to a position closer to the approach, making it more accessible and user-friendly. The new entrance area with a lowered floor, as per Japanese tradition, was covered with a mortar flooring with a smooth trowel finish and expanded to accommodate bicycles, skateboards, and other items, ensuring ample space for tenants’ active lifestyles.
▼入口空间,entrance space © Akira Nakamura
展现二层的自然元素
Exposing Natural Elements on the Second Floor
二层的天花板的装饰被移除,重现原始的屋顶结构的美丽。为了保护并强调这一特色,屋顶使用了外露的保温材料,让木材的自然之美一览无余。这一精心设计创造了一种温暖乡村的氛围。
On the second floor, the ceiling coverage was removed, revealing the charm of the original roof boards. To preserve and highlight this feature, external insulation materials were used for the roof, allowing the natural beauty of the wood to remain visible. This thoughtful approach creates a warm and rustic atmosphere.
▼通往二层的楼梯,staircase towards the upper level ©Roovice
▼展现原始屋顶结构之美,exposed the original roof structure © Akira Nakamura
▼处于空间中央的厨房岛台,kitchen island locates in the center of the space © Akira Nakamura
▼厨房的设置以适应现代化的需求,kitchen island to catering to modern needs © Akira Nakamura
沿着隔断,现存的几根立柱被移除,创造了一处开放宽敞的空间。为了确保结构上的完整性,还加装了加固梁。被移除的立柱被巧妙地重新利用,经过精心修复,以支撑现代厨房的岛台,大胆的摆放在房间中央。这一新旧元素的组合为房间增添了一丝Roovice的特征,将历史融合进现代设计。
▼改造后二层平面,first floor plan after renovation ©Roovice
Along with the partition walls, several of the original columns were removed to create a more open and expansive space. To ensure structural integrity, reinforcement beams were strategically added. The removed columns were ingeniously repurposed, carefully restored to serve as supports for a modern kitchen counter, which is boldly positioned at the center of the room. This integration of old and new elements adds a Roovice-like character, blending history with contemporary design.
▼开放宽敞的空间,a more open and expansive space © Akira Nakamura
拆除墙壁后,一个单独的房间显露出来,原来的窗户大小不一。再加上墙壁上使用的月桂木胶合板,就形成了一种有趣的拼接效果。地板也使用了同样的木材,并使用了亮光聚氨酯透明涂层。为了保持房间的完整性和氛围,厨房柜台上的灯和电灯开关也是用月桂木胶合板定制的。
Removing the walls to create a single room revealed the varying sizes of the original windows. When paired with the application of lauan plywood boards on the walls, this resulted in a playful patchwork effect. The same wood was used for the flooring, this time with a glossy urethane clear coating. To maintain the room’s integrity and atmosphere, even the light over the kitchen counter and the light switches were custom-made from lauan.
▼墙壁上使用的月桂木胶合板,the application of lauan plywood boards on the walls © Akira Nakamura
▼形成有趣的拼接效果,playful patchwork effect © Akira Nakamura
原本的外挂楼梯被保存,以确保对于空间使用的灵活性。这确保建筑拥有可以到达不同楼层的独立入口,以适应未来的可能性。
The original external staircase was retained, allowing flexibility in the use of the space. This enables the building to function with separate entrances for the upper and lower floors, catering to a variety of potential uses.
▼浴室,bathroom © Akira Nakamura
▼厨房细部,kitchen detail © Akira Nakamura
这处位于白金台的改造项目展现了一座传统过时的建筑如何通过改造以适应现代社会的需求。通过维护并加固原结构的关键元素,同时引入精心设计的现代元素,建筑被成功的改造成一座独特而实用的出租物业,既尊重过去,又拥抱未来。
This renovation project in Shirokanedai is an example of how conventional outdated architecture can be transformed to meet contemporary needs. By preserving and enhancing key elements of the original structure, while introducing thoughtful modern touches, the building has been successfully transformed into a unique and functional rental property that respects its past while embracing the future.
▼建筑入口,entrance of the building © Akira Nakamura
▼建筑外观,building exterior © Akira Nakamura
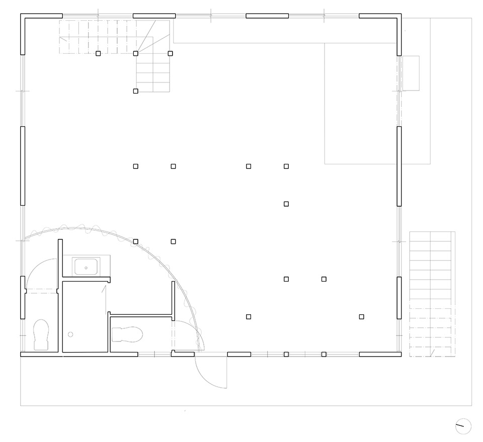
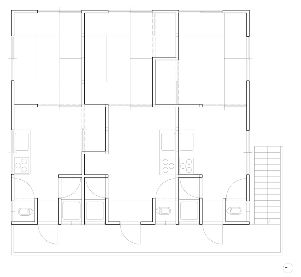
▼改造前一二层平面,before renovation plans ©Roovice
Lead Architect: Koji Kato | Roovice
Photography: Akira Nakamura
Construction Year: 2023
Gross Built Area: 148m2
HP link:
客服
消息
收藏
下载
最近



































































