查看完整案例

收藏

下载
本案位于江边一个岛屿上,背靠市区,面朝江景,远眺群山,其独特的地理位置,绝佳的视野和风景,为设计提供了丰富的灵感来源,设计师以融入自然为出发点,打造一个舒适、健康、宁静而有力量的居所。
设计,追求着外在世界的灵性启发与内在心灵的真挚流露。温暖的阳光,轻柔的微风,皆是自然对人类的慷慨赠礼。让空间与自然相融,让自然成为生活的诗篇,构筑一幅宛如天地初开时的自然画卷。
原始建筑带有传统的欧式风格,相对封闭,与周边自然景观的融合度不高。设计师首先对建筑的结构和外立面进行了大刀阔斧地改造,将原有的封闭空间打开,更是满足功能的需求和合理的动线。大面积的极窄窗,将美景及光线引入室内,将室内外的环境融为一体。
玄关,是居住者整理和转换的空间,以柚木为外观材质,踏入门后,橡木的地板和木饰面在整个走廊中,如画卷般展开。视线延伸,空间轻盈延展。
空间通过极窄窗设计,将室外景观引入,进一步模糊了室内室外的界限。无过多繁杂,整个空间更加简洁、清晰,从而让空间更得纯粹,让居者专注于生活本身。
建筑骨架直接雕塑空间的形状、大小与布局。通过精妙设计,勾勒出不同功能区,为空间赋予层次与实用之美。
层次丰富的结构体系,赋予空间开放自由,满足多变的生活需求,使其更添广阔胸怀。这不仅仅是一个物理的空间,更是一个精神的家园。
在整个设计过程中,设计师以精准到厘米的规划,对建筑结构和工艺进行了仔细雕琢,用一种充满情感的笔触,确保每个细节都达到了简约美学的标准。
结构的支撑与细腻的工艺,不只是形式,更是设计节奏。
一个灵活高效的结构体系可以使室内空间更开放、更具多功能性。宽敞的布局和流畅的线条让空气与光线自由地穿梭,模糊了室内与室外的界限,门前的风、门后的空气、窗外的景致和窗内的人融为一体,迎接着每一位踏入空间的人。
微风飘过,天空洒下温柔的余晖,火焰在跳跃,蝴蝶在飞舞,在这个被自然环抱的餐厅里,三面巨大的落地窗如同故事的扉页,轻轻翻开,这里香气弥漫,更有欢声笑语。
空间的流动性是一条隐秘的丝线,穿梭于设计的每一个角落。
开放式设计,让空间在开放与闭合之间自由转换。开门时,空间与周围环境融为一体;闭门时,又是一个独立的世界,创造出一种连续与方向的美感。
二楼室内,巨大的落地窗注入充足自然光,照亮整个起居室。透过窗户,居者可欣赏户外美景,拓展视野,提升采光。
大窗敞开,视线穿越,远山如画,将大自然的恬静婉约地带入空间。
在探索空间与自然的交融之美时,路易斯·康曾深情地描绘了他的体验:我在自然之中呼吸/在光与影之间穿梭/无垠的天空,无垠的大地/我敞开心扉/感受自然的节奏与韵律......
作为重要连接的楼梯,不仅仅是连接不同楼层的功能性构件,它还具有展示空间结构、秩序和线条之美的潜力。旋转楼梯连接了一楼和二楼,其设计巧妙地融入了整体空间的秩序结构中。
二楼与三楼的连接,整体结构呈现Z字形,使得楼梯成为连接两个楼层的重要视觉焦点。整体设计灵活地利用了空间,以其独特的角度展现了楼梯设计的多样性。
在宁静的主卧中,设计者精心营造了一个亲密而舒适的休憩空间。
墙壁素雅如画,映衬着窗外柔和阳光的温柔洗礼,与飘渺的白色晨雾相互辉映,营造出一种宁静而雅致的氛围。窗旁悬挂的半透明白纱,轻盈飘逸,随风轻摆,为室内平添了一丝柔美的风情。在这个空间里,人们被邀请放下一切繁杂,用心去感受,去体验那专属于个人的宁静时刻。
书房与茶室在空间设计中的作用是多方面的,它们既是实用的功能空间,也是体现主人文化品味,提供精神慰藉和社交互动的重要场所在。
书房内,蓝天白云“框”入其中,而“景”若隐若现,在黑与白的线条结构间,投射出房屋的倒影,使得每一处都充满了层次与深度。
茶室被赋予了多重身份,光线在这里被驯化,既是一方沉浸于茶香的禅意之地,也是文化艺术和个性展示的静思角。
天窗,恰是穿透之美的完美演绎。自地下一层至顶楼,是空间延展的最佳证明,这种穿透性不仅体现在光与风的自由穿梭,更在视觉与感觉上营造出一种连绵不绝的和谐。
这种广阔的视野,让居住者感受到与天空的亲近,仿佛与大自然融为一体。
结构的重组,使光线不仅是实用工具,更是精神寄托。
以光为媒介,与居者心灵对话,使每一空间充满生机,从而在自然光中找到宁静和幸福。
地下室内,视觉通透,引光入室。
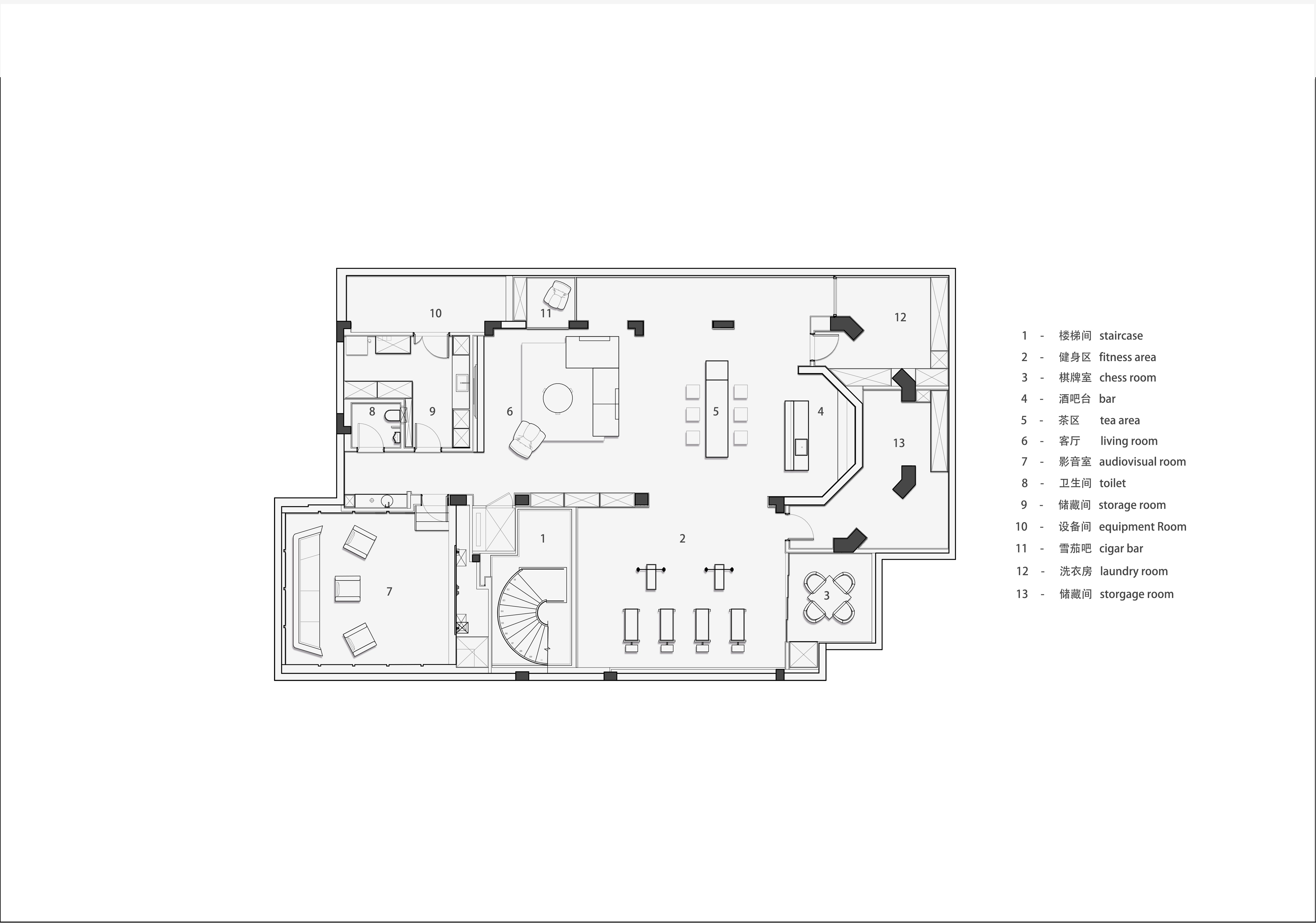
整体采用微水泥材质,视觉效果更统一,设有健身区、酒吧和休息区,在表面的材质和装饰上,更注重功能性与实用性。同时自然光的巧妙引入不仅提升了室内照明的亮度,还增添了空间的舒适氛围与宜人体验。
庭院,以精致的设计语言讲述着它的故事。
现代线条与自然元素的运用,在篝火阑珊处,更显生机。
快节奏的现代生活中,人们越来越渴望一个能够放松身心、亲近自然的居住环境。设计师通过本项目,回应了这一需求,创造了一个能够满足现代家庭生活需求的理想空间。
-1F
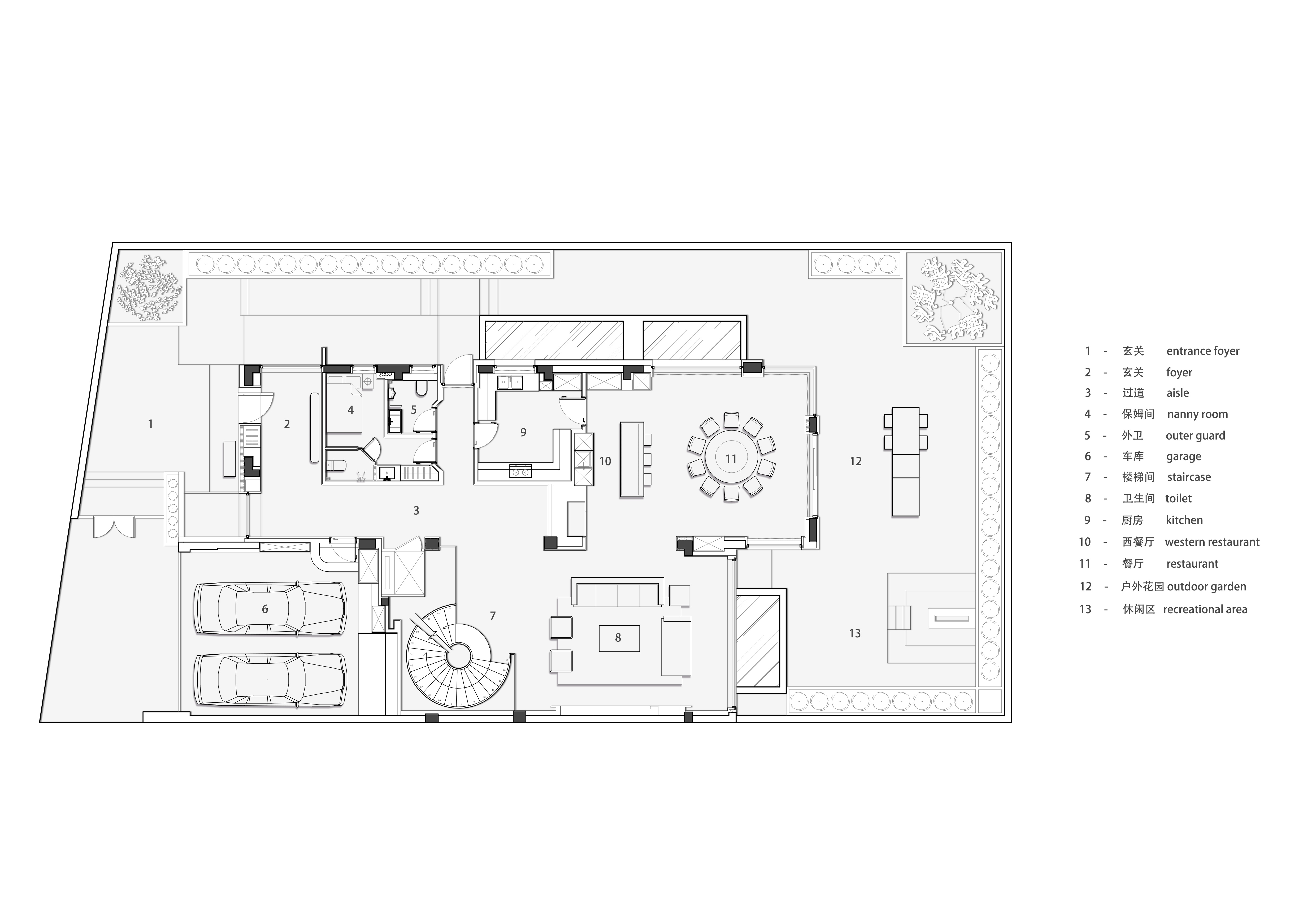
1F
2F
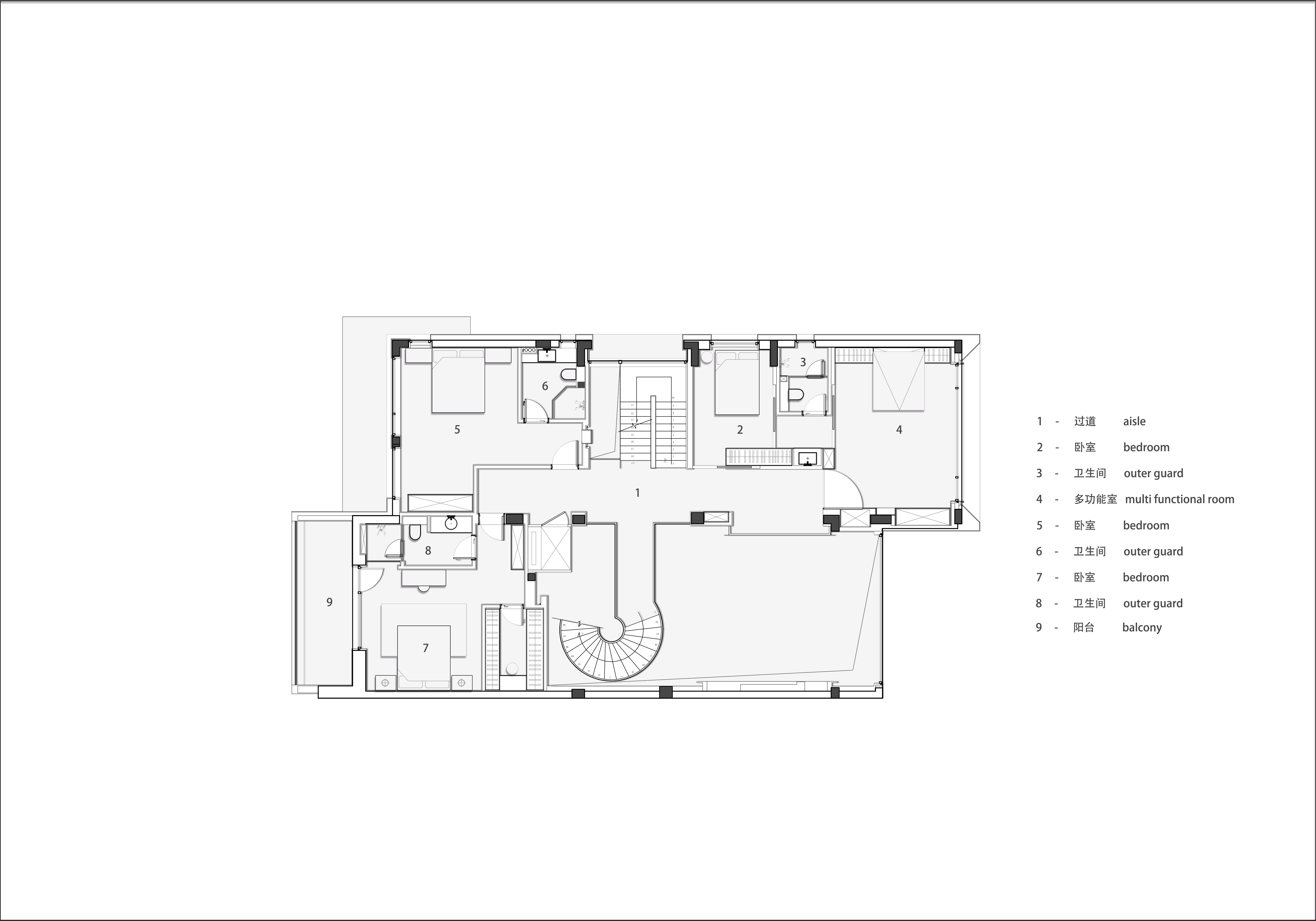
3F
一个灵活高效的结构体系可以使室内空间更开放、更具多功能性。宽敞的布局和流畅的线条让空气与光线自由地穿梭,模糊了室内与室外的界限,门前的风、门后的空气、窗外的景致和窗内的人融为一体,迎接着每一位踏入空间的人。
客服
消息
收藏
下载
最近
































































