查看完整案例

收藏

下载
中信泰富广场位于上海南京西路核心商圈,西临恒隆广场,东临梅龙镇广场,一公里以内更有兴业太古汇、张园等综合性商业街区。环顾强大商业竞争对手以及线上消费的挤压,中信泰富急需另辟蹊径来打造差异化的商业空间。中信泰富楼上有两栋写字楼,大量白领在午间休息及下班后的聚会、休憩是商场从传统模式转型后主要希望抢占的客群场景,结合餐饮、艺术,为上班族提供工作日日中的间歇修整的环境。
The CITIC Pacific Plaza is located in the heart of the Nanjing West Road commercial district in Shanghai. It is bordered by the Plaza 66 to the west and the Meilong Town Square to the east, with complexes like HKRI Taikoo Hui and Zhangyuan within a kilometer. Faced with fierce competition from powerful commercial rivals and the pressure from online shopping, CITIC Pacific urgently needs to find a new way to differentiate its commercial space. Above CITIC Pacific Plaza, there are two office towers, and a key target for the mall’s transformation is to attract white-collar workers during their lunch breaks and after-work gatherings. Combining dining and art, the space aims to provide office workers with an environment for midday rest and refreshment during the workweek.
▼画廊位于商场主入口,The gallery is located at the main entrance of the mall © 隋思聪
张渔画廊进入商场是艺术家张渔和中信泰富的一次实验性尝试。与一般的零售空间不同,画廊是艺术家个人面对大众的展示空间,有着强烈的艺术家个人 IP 属性的呈现。除了整合参观、购买功能,作为建筑师的我们希望画廊从入口开始,就能体现艺术家创作中强烈的视觉特点,让画廊成为“强线下体验”属性的空间,而进入画廊后,设计的手法“隐身”,视觉的关注点转移到画作本身上,来到此地的观众“进入”画作。
The Zhang Yu Gallery’s entry into the mall is an experimental collaboration between the artist Zhang Yu and CITIC Pacific. Unlike typical retail spaces, the gallery serves as a public exhibition space for the artist, strongly reflecting his personal artistic identity. In addition to integrating viewing and purchasing functions, as architects, we aimed to showcase the artist’s strong visual style from the gallery’s entrance. The gallery was designed to offer a “strong offline experience” space, where once visitors enter, the design subtly fades into the background, shifting the visual focus to the artworks themselves. Visitors are meant to “enter” the paintings.
▼画廊入口细节,Details of the gallery entrance© 隋思聪
▼从入口看画廊内部,View of the gallery interior from the entrance© 隋思聪
画廊坐于商场的三楼,相较于临街铺位,不临街的氛围反而是艺术家希望的,所选的三楼位置有方便商场的扶梯直达,又过滤掉街道上的烟火气,提供给对艺术有兴趣的观众较为安静和沉浸的观画之地。
作为在商场中的实验性尝试,艺术家希望在有限预算、有限空间的条件下,打造一个灵活性展示画作的空间,兼有会友的独立茶室、储藏间与一个周边销售区,入口既要体现个人风格、又要避免路过的人群一眼把内部的画作看尽。
▼轴测图,Axon ©️ 零几建筑
The gallery is located on the third floor of the mall. Compared to street-level shops, the non-street-facing atmosphere is what the artist prefers. The third-floor location, easily accessible via escalator, filters out the street’s bustle, providing a quieter, more immersive space for art enthusiasts. As an experimental endeavor in a commercial setting, the artist sought to create a flexible exhibition space within the constraints of a limited budget and space. The gallery includes a private tea room for meeting guests, a storage area, and a section for selling peripheral items. The entrance needed to express the artist’s personal style without revealing the entire interior to passersby.
▼从主入口看画廊内部,View of the gallery interior from the main entrance© 隋思聪
▼从画廊内部回看入口,View of the entrance from inside the gallery© 隋思聪
艺术家张渔的创作源于传统水墨与工笔重彩的结合,而零几建筑的工作方法需采用计算机算法的编程语言,人工绘制 vs 计算机算法,两种截然相反的工作方式生成了空间的新奇景象和体验:传统匀质但略显无聊的商业空间中置入一片引人入画、浸画、体验亦幻亦真情境的天地。
Zhang Yu’s work blends traditional ink painting with meticulous use of vivid colors. Meanwhile, our architectural approach involved computational algorithms, creating an intriguing contrast: hand-drawn versus algorithm-driven processes. This combination led to a unique spatial experience—a space that brings an immersive, dreamlike quality into the otherwise homogeneous and somewhat monotonous commercial environment.
▼艺术家张渔的画作,Artist Zhang Yu’s Work
消费是生产的最后一个环节,而非和生产并列的概念。张渔画廊出现在艺术家本人积累了一定的观众和业界影响力之后。艺术家影响的客群主要由千禧一代构成,他们通过消费行为中发现自我,通过找到自己想要的商品/艺术品发现自己想成为怎样的自己。空间设计所强化的体验,是关于这一带客群对艺术品的体验。人们得到强烈的体验,触发自身对艺术品的探索乃至获得,这是设计师希望看到的。
Consumption is the final stage of production, not a parallel concept. The Zhang Yu Gallery emerged after the artist had accumulated a certain following and influence within the industry. The artist’s audience is primarily composed of millennials, who discover themselves through consumption. They find the person they want to become by discovering the products or artworks they desire. The gallery’s spatial design enhances the experience of this demographic’s interaction with the art. Strong emotional responses trigger exploration and connection with the artworks, which is what the designers aimed for.
▼入口窗景,Framed view at the entrance© 隋思聪
▼窗景细部,frmaed view detail© 隋思聪
经过计算机力学算法设计模拟、由 1000 片 1.5mm 的彩色镀锌钢板零件组装而成的画廊入口,犹如宣纸骤然绽开,也具有艺术家笔下重彩颜料拉伸的形态,在商场的空间里具有引人进入的视觉张力。考虑到商场内部严格的施工时间与施工条件管控,所有的彩色热镀锌板在工厂中完成预加工,并在现场使用螺丝铆接,确保快速组装无需焊接,结构上也无需额外支撑,建筑师在板材上加入必要开孔以满足空间防火的需求。
▼画廊入口装置分板组装图,
Assembly diagram for the Gallery Entrance©️零几建筑
The gallery entrance, designed through computational mechanics and made up of 1,000 pieces of 1.5mm colorful galvanized steel, opens like a sudden burst of rice paper, echoing the stretched paint strokes in the artist’s works. In the mall’s environment, it creates a visually striking entrance. Given the strict construction timelines and conditions within the mall, all the colorful galvanized steel panels were pre-processed in the factory and then bolted together on-site, ensuring quick assembly without welding, and without needing additional structural support. Necessary fire safety openings were also added to meet building codes.
▼热镀锌板幻彩效果,
Iridescent effect of hot-dip galvanized steel© 隋思聪
福特的制造体系生产了有限型号的批量产品,满足了高速的社会化大生产,用以填补各种需求和空缺。在基本需求被满足的时下,人们转变去关注更多的个人欲求,“定制”的概念开始回归。
Ford’s production system produced a limited range of mass-produced products that met the needs of fast-paced industrial production. In today’s world, with basic needs met, people are shifting their attention to personal desires, bringing the concept of “customization” back to the forefront.
▼热镀锌板细部,detail of the hot-dip galvanized steel© 隋思聪
在这里,技术是工具,也是艺术表达的一部分。计算机设计技术的爆发产生了当代的定制与预制,而数控切割是其中的一个工作流程,即通过数控机床按输入的图纸或数字模型对材料进行加工。热镀锌,是将钢板浸入到热融锌的镀槽中而在表面形成一层锌镀层。这种金属加工的工艺,让作为建造材料的板材反射出金属光泽,与展厅中艺术家作品中的金色元素相呼应。充满细节的入口装置构造是艺术家作品中长着眼睛的五彩翅膀的“引梦蝶”形象在三维立体空间的化身,为来者创造出渐离传统消费环境、进入“幻想世界”的错觉,从而完成入画的序章。
Here, technology serves both as a tool and as part of the artistic expression. The rise of computational design technology has led to contemporary customization and prefabrication, with CNC cutting being one of the Workflows. CNC machines process materials based on inputted drawings or digital models. Hot-dip galvanization, where steel is immersed in a zinc bath to form a protective coating, gives the construction materials a metallic sheen, complementing the golden elements in the artist’s works. The detailed entrance installation is a three-dimensional embodiment of the “Butterfly Dream” motif, with its colorful wings and eyes, as seen in the artist’s paintings. It creates an illusion of stepping out of a traditional commercial environment and into a fantasy world, beginning the journey into the artwork.
▼生产与组装过程,process of production and assembly©️零几建筑
受艺术家 Doug Wheeler 的启发,展厅内采用无影墙的设计,创造出一个无边无际的白色空间,呼应艺术家绘画中的留白意图,更创造进入另一重梦境的氛围体验。由此形成的环境不仅是艺术品的迷幻背景,更将消费行为支配下的繁忙商场氛围隔绝于外,取而代之的是悠闲节奏下的艺术沉思体验。
Inspired by artist Doug Wheeler, the gallery interior employs a seamless wall design to create a boundless white space, echoing the artist’s use of blank space in his paintings and enhancing the immersive, dreamlike atmosphere. This environment not only serves as a surreal backdrop for the artwork but also isolates visitors from the busy shopping mall outside, offering instead a meditative experience with art at a slower pace.
▼画廊主展区,Main exhibition area of the gallery© 隋思聪
▼从画廊临展区看主展区,
View of the main exhibition area from the temporary exhibition area in the gallery© 隋思聪
回看张渔画廊最初的设想,那时我们期待整个展厅都可采用无需额外支撑、而自我站立的镀锌钢板形式的系统,最终只在画廊的入口部分实现。这个形式系统达到了我们预期的回应场地、工厂预制、便于运输、现场搭建,为品牌定制、精确回应场地空间环境的同时,快速、高精致度、无污染无浪费地满足搭建需求。
Looking back at the original concept for the Zhang Yu Gallery, we envisioned the entire exhibition hall using a system of galvanized steel panels that would stand without additional support. While this was only realized in the gallery entrance, the system successfully responded to the site, allowed for factory prefabrication, was easy to transport, and enabled fast, precise, clean, and waste-free assembly, meeting all the needs of the space while being customized to the brand and site. ▼从入口看画廊内部,View of the gallery interior from the entrance© 隋思聪
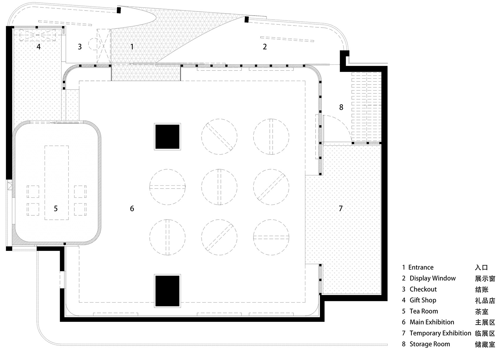
▼平面图,plan©️零几建筑
项目名称:张渔画廊 ZHANGYU Gallery
建筑设计:Atelier Zeros 零几建筑事务所
设计团队:林一麟、郑渝鹏、王志刚、杨璐、韩灿灿
业主名称:张渔画廊
项目位置:上海中信泰富
建筑面积:150 平方米
施工单位:钰申建设工程、简铭家居科技
设计和建造时间: 2023.09 – 2023.11
平面摄影:隋思聪
客服
消息
收藏
下载
最近


























