查看完整案例

收藏

下载

翻译
Architects:Carlos Castanheira,Álvaro Siza Vieira
Area:72m²
Year:2022
Photographs:C.K.L.
Practice In Portugal:CC&CB – Architects, Lda.
Project Coordination:Pedro Carvalho, Elisabete Queirós
Collaborators:CJ Wang, Chao-Yu Chen, Hsuan-Um Huang, Mark Sun
Consultant:Xue Xue Institute, Xue Xue Foundation
Practice In Taiwan:HO+HOU Studio Architects / Studio Base Architects
Coordination:Jen Suh Hou, Albert Ho
Architect In Charge:Ming Wei Hwang
Supervision:HO+HOU Studio Architects / Studio Base Architects
Structure:Envision Engineering Consultant
Electrical Installations:Majestic Engineer consultants. INC.
Mechanical Installations:HungChun consultant
Construction:JuGang Construction. Co / Skyhawk Enterprise Co, LTD
City:Changhua County
Country:Taiwan
Text description provided by the architects. We don’t need to play golf to design the buildings that are required where it is played.
But it is necessary to have an understanding of the functions, habits, some rules and also the requierments and expectations of the client and the players. You must visit the site.
With this information the first step in the project is taken. It’s like jumping into a void, but well prepared and armed with our professional tools.
Paper, pencil, erasor, coloured pencil, images of the site, a model of the site as existing and a generous dose of optimism.
Possibilities emerge which are immediately tested. Some with a prospect of continuity, some dying immediately. One avoids the obvious; the enemy of design. Castrating.
Small, rough models are made. The process of selection is continuous and sometimes it is necessary to start again.
A choice is made. A common consensus is necessary. It must be developed and tested, with models and any other tool that comes to hand.
Function dominates. Morphology completes. When it is complete, it even seems obvious.
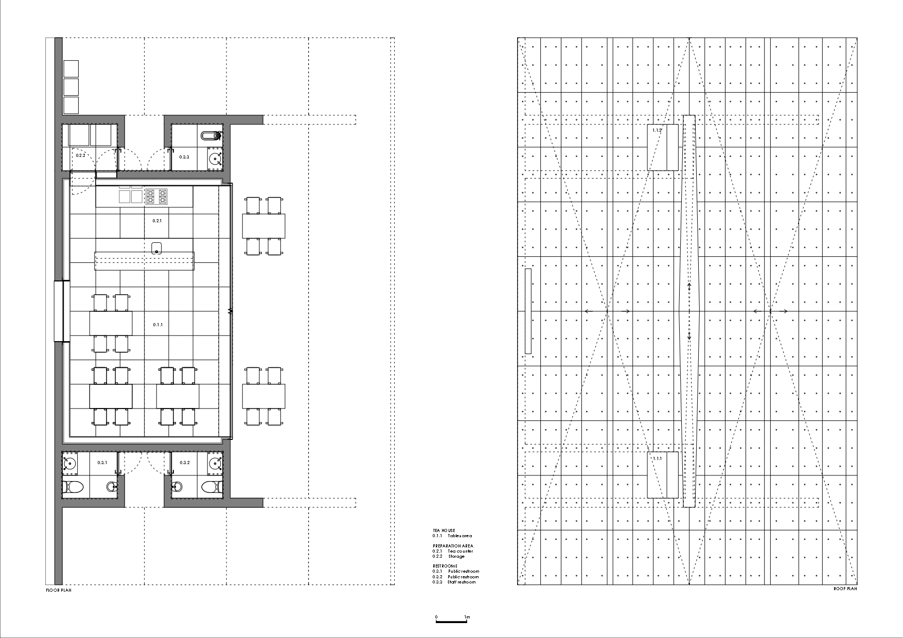
The small building, the Tea House at Taifong Golf Course is a pit stop for a rest and a snack. This is all it is. An architectural solution to the desired and intended function.
Project gallery
Project location
Address:, Taiwan
客服
消息
收藏
下载
最近




































