查看完整案例

收藏

下载

翻译
Architect:grabowski.spork architektur
Location:Wiesbaden-Erbenheim, Wiesbaden, Germany; | ;View Map
Project Year:2023
Category:Offices
The new build of NAU Administrative Building is located on the grounds of the Lucius D. Clay Barracks in the surroundings of Wiesbaden, the capital of the German state of Hesse.
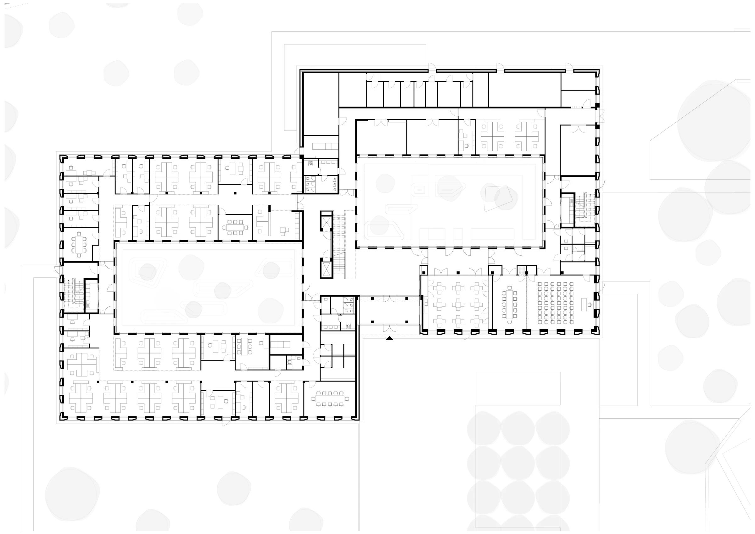
The three-story-high building is composed of two volumes of equal size, which are arranged with an offset to each other. The offset structures the building mass and creates a forecourt as an entrance situation. Patio courtyards are cut into both volumes, creating sheltered and introverted outdoor spaces, also providing light for the inner office areas.
The façade made of blasted white precast concrete elements gives the building its unmistakable shape. The sculpturally shaped elements with straight and angled window reveals create a rhythmic façade appearance. As a contrast, the façades of the patio courtyards are designed as smooth, calm aluminum panels to direct the focus to the greened outdoor areas.
The entrance plaza leads into a central foyer with an open staircase. On the ground floor a large break room and flexibly dividable multi-purpose rooms for events, meetings and conferences are connected to the foyer.
The central access core leading to the two upper floors is made of bush-hammered, white exposed concrete. On upper floors four office spaces on each floor are accessed via the central core. The office spaces are oriented towards the outdoor area as well as to the patio courtyards. All interiors follow the consistent color concept in light monochrome tones.
▼项目更多图片
客服
消息
收藏
下载
最近













