查看完整案例

收藏

下载
Monio 高中和文化中心位于 Hyrylä 镇中心旁的前军事驻扎区。Monio 的建筑设计诠释了周边历史环境的特点,并成为一座连接开发区和市中心的地标。Monio 可谓是图苏拉最重要的公共建筑。
The new high school and cultural centre Monio is located in the former military garrison area next to Hyrylä town centre. The architecture of Monio interprets the characteristics of its historical surroundings and creates a landmark connecting the developing area to the town centre. Monio can be considered the most important public building in Tuusula.
▼鸟瞰,aerial view © Kuvatoimisto Kuvio
▼冬季外观,exterior view at winter© Kuvatoimisto Kuvio
▼立面,facade© Kuvatoimisto Kuvio
▼街道视角,view from street© Kuvatoimisto Kuvio
▼外观,exterior view© Kalle Kouhia
▼入口,entrance© Kalle Kouhia
▼坡屋顶,gable roof© Kuvatoimisto Kuvio
▼材质细部,material detail© Kuvatoimisto Kuvio
Monio 展现了多用户群体共享的公共建筑概念。除白天主要作为高中使用外,该建筑的空间还被当地的音乐学校、艺术学校、社区学院和市政文化服务机构所使用。通过将不同用户的功能整合到一栋建筑中,所有使用者都能以更低的价格获得比单独租赁更好的空间。共享建筑还鼓励不同的使用者交流与合作。Monio 欢迎所有市民,这里有咖啡厅、画廊和各种向公众开放的活动。
Monio exemplifies the concept of a public building shared by several user groups. In addition to mainly functioning as a high school during the day, the spaces of the building are also used by the local music school, arts school, community college and cultural services of the municipality. By combining functions of different users in one building, all users get better spaces than they would get separately, more for less. A shared building also encourages different users to encounter and collaborate. Monio welcomes all citizens with a café, gallery space and various events open to the public.
▼主要大厅,main hall© Kuvatoimisto Kuvio
▼多用户群体共享空间,a space shared by several user groups© Kuvatoimisto Kuvio
▼座位,seatings© Kalle Kouhia
▼楼梯间,stairwell© Kuvatoimisto Kuvio
▼展览空间,gallery space© Kuvatoimisto Kuvio
Monio 延续了图苏拉湖周边地区悠久的使用原木的建筑传统。该地区历史悠久的原木建筑包括一些芬兰国家级艺术家的湖畔别墅。芬兰艺术的黄金时代就起源于艺术家们聚集在图苏拉湖地区交流思想,共同创作。同样地,Monio 也允许使用者通过实验和实践获得灵感、表达自我并相互学习。
Monio continues long traditions of building with timber log in the area surrounding Tuusula Lake. Historical timber log buildings in the area include for example the several lakeside villas of some of the national artists of Finland. The Golden Age of Finnish art had its origin in artists coming together in the Tuusula Lake area to exchange thoughts and to work together. In a similar way, Monio allows its users to get inspired, express themselves and to learn from each other by experimenting and doing.
▼鼓励交流思想、共同创作的空间,a space that encourages users to encounter and collaborate © Kuvatoimisto Kuvio
▼挑高空间,double-height space©Kalle Kouhia
▼社交空间,social space© Kuvatoimisto Kuvio
▼室内概览,interior overview© Kuvatoimisto Kuvio
▼材料细部,details of the material© Kuvatoimisto Kuvio
Monio 是芬兰第一座使用原木建造的三层公共建筑,也是一种全新的木构建筑,还将其他木制建筑方法与原木框架相结合。该项目可以看作是在大型公共建筑这一尺度中使用工业原木的一次大胆尝试。该建筑以材料为基础,更具体地说,以使用原木为基础,由六座彼此连接的原木房屋组成,这些房屋构成了通高的室内街道网格,形成了主大厅。原木房屋的外墙和内部隔墙均由 275 毫米厚的交叉层压非沉降的原木制成。外墙不需要额外的隔热材料,巨大的木结构既是承重结构,也是隔热材料,同时还是最终的内外立面。
▼原木拼接细部,timber log riveting detail© AOR Architects
Monio is the first three-story public building made of log in Finland and a completely new kind of wooden building, combining also other wood construction methods with the log frame. The project can be seen as a radical experiment in the use of industrial timber log in the scale of a large public building. The architecture is strongly based in material and more specifically, in the use of timber log. The building consists of six connected log houses that border a network of high interior streets, forming the main lobby. The log houses have exterior walls and partition walls towards the interior made of 275 mm thick cross-laminated non-settling log. There is no additional insulation needed in the exterior wall, with the massive timber structure forming both the bearing structure and the insulation, as well as the finished exterior and interior surfaces of the wall.
▼全新的木构建筑,a completely new kind of wooden building © Kuvatoimisto Kuvio
▼木构框架细节,log frame detail© Kalle Kouhia
该项目获得了 2022 年年度建筑工地奖(Construction Site of the Year Award)和 2023 年芬兰木材奖(Finnish Wood Prize)。
The project was awarded the Construction Site of the Year Award in 2022 and the Finnish Wood Prize in 2023.
▼共享空间,shared space© Kuvatoimisto Kuvio
▼共享空间,shared space© Kalle Kouhia
▼观众厅,auditorium© Kuvatoimisto Kuvio
▼体育馆,gym© Kuvatoimisto Kuvio
▼总平面图,site plan© AOR Architects
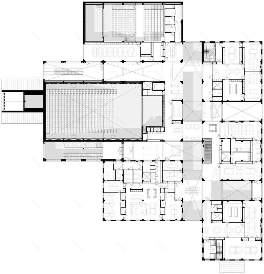
▼一层平面图,first floor plan© AOR Architects
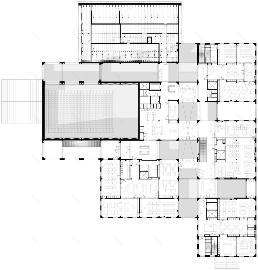
▼二层平面图,second floor plan© AOR Architects
▼三层平面图,third floor plan© AOR Architects
▼剖面图,section© AOR Architects
Monio High School and Cultural Centre
Tuusula, Finland
AOR Architects
2018-2023
Gross floor area 8773 m2
Budget 33,2M €
Client: Municipality of Tuusula
Architect: AOR Arkkitehdit Oy
Structural engineer: A-Insinöörit Suunnittelu Oy
Electrical engineer: Ramboll Finland Oy
HVAC engineer: Sitowise Oy
Fire consultant: KK-Palokonsultti Oy
Interior designer: Haptik Oy
Landscape Architect: Maisema-arkkitehtitoimisto Näkymä Oy
Contractor: Lujatalo Oy
Log manufacturer: Kontiotuote Oy
客服
消息
收藏
下载
最近









































