查看完整案例

收藏

下载
「XIY 品牌集合店位于重庆北城天街购物中心,项目场地在过去二十年间被反复修改,外立面与内部结构十分杂乱。在立面设计上,本项目采用特别的“格式化”处理,将原本零散的“门面”整合为一个完成的建筑体量,使得项目从缭乱的城市环境中跳脱出来。在内部空间上,与其弱化或移除繁冗的梁柱结构,本设计反而将“杂乱”的既有建筑结构放大并加以利用,在视觉层面和体感层面营造一种近乎压迫的“超尺度感”。」
The XIY Brand Collection Store is located in Chongqing’s Beicheng Tianjie Shopping Center. Over the past two decades, the site has undergone multiple modifications, resulting in a chaotic facade and internal structure. The project addresses this by using a special “formatting” approach to unify the fragmented exterior into a cohesive architectural form, helping it stand out from the disordered urban environment. Internally, instead of removing the complex beam and column structure, the design amplifies and utilizes it to create a visually and physically imposing “bigness” effect.
▼外立面, facade©INSPACE
▼外立面,facade©INSPACE
▼楼梯入口,staircase entrance©INSPACE
▼营造一种近乎压迫的“超尺度感”
create a visually and physically imposing “bigness” effect©INSPACE
▼室内入口,entrance©INSPACE
#图书馆式陈列
Library Display
在 XIY 品牌集合店的设计采用了“服装图书馆”的设计理念,按照服装类型组织空间:例如,将风衣、长裙这些需要较多空间的“大书”挂在立柜中;基础款服饰和裤子这些“报刊”类物品放在格子展柜中;羊绒衫、毛衣、鞋和包这些“精装书”则平放在展台上;而首饰等“珍藏口袋书”放置在玻璃斗柜中。所有商品还会根据适用季节和场合,被细致地归类到不同的“科目”区域中。
The design of the XIY Brand Collection Store adopts the concept of a “Clothing Library,” organizing space based on clothing types. For example, larger items like coats and dresses, referred to as “big books,” are hung in tall cabinets, while basic pieces and pants, akin to “magazines,” are stored in grid displays. Sweaters, shoes, and bags, described as “hardcover books,” are laid out on display tables, and accessories, called “pocket-sized collectibles,” are placed in glass cabinets. All items are categorized into different “subjects” according to season and occasion.
▼图书馆式陈列,library display©INSPACE
▼采用了“服装图书馆”的设计理念,adopts the concept of a “Clothing Library”©INSPACE
▼大衣这些需要较多空间的“大书”挂在立柜中,
coats and dresses referred to as “big books,” are hung in tall cabinet©INSPACE
▼鞋和包这些“精装书”则平放在展台上,laid out on display tables ©INSPACE
▼按照服装类型组织空间,organizing space based on clothing types©INSPACE
▼按照服装类型组织空间,organizing space based on clothing types©INSPACE
▼陈列空间,exhibition space©INSPACE
#室内结构
Interior Structure
除了立面系统,建筑结构也十分混乱,大致可以提炼为:以梁为线段、柱为格点的网格状场地。我们对此进行了略带反讽意味的“格式化”改造:与其弱化或移除繁冗的梁柱结构,反而将其放大并加以利用,在视觉层面和体感层面营造一种近乎压迫的“超尺度感”。被保留下来的建筑结构遗迹形成庄严肃穆的圆柱阵列,重新梳理过的数个单元格分区由可移动道具串联起来,结合固定的空间元素,可以自由组合成多功能使用场景。
Beyond the façade system, the building’s structure is highly chaotic, essentially forming a grid-like site with beams as line segments and columns as grid points. We approached this with a subtly ironic “formatting” redesign: instead of diminishing or removing the complex beam-column structure, this design magnified and utilized it to create an imposing “bigness” effect, both visually and physically. The preserved structural remnants form a solemn colonnade, with restructured grid partitions connected by movable fixtures, allowing for the flexible use.
▼室内结构,interior structure©INSPACE
▼以梁为线段、柱为格点的网格状场地
grid-like site with beams as line segments and columns as grid points©INSPACE
▼营造一种近乎压迫的“超尺度感”,create an imposing “bigness” effect©INSPACE
▼庄严肃穆的圆柱阵列,a solemn colonnade©INSPACE
▼庄严肃穆的圆柱阵列,a solemn colonnade©INSPACE
#更衣室设计
Fitting Room Design
与一般买手店不同,更衣间成为了本项目的主要销售空间。为了保证更衣室的私密性,让客人可以安心地在里面更衣、选购、聊天甚至小憩,设计将更衣室的衣柜设计为简易而足够隐蔽雅观的“传送门”,衣柜一面通向更衣室,另一面通向仓库,中间由布帘隔开,拉开“幕布”(屏风式木门),各式装束轮番登场,无形中,在店员和顾客之间勾勒出一种戏剧化的关联,为双方所扮演的传统“买卖”角色加描了一层浪漫色彩。
Unlike typical boutiques, the fitting room in this project serves as the primary sales space. To ensure privacy and comfort for customers to change, purchase, chat, or even rest, the fitting room wardrobe is designed as a discreet yet aesthetically pleasing “portal.” One side of the wardrobe opens to the fitting room, while the other leads to the stockroom, separated by a curtain. This setup creates a theatrical interaction between staff and customers, adding a romantic touch to their traditional roles of buying and selling.
▼更衣室,changing room©INSPACE
▼更衣室的私密性,the privacy of the changing room©INSPACE
▼卫生间,bathroom©INSPACE
▼走廊,corridor©INSPACE
▼夜景,night view©INSPACE
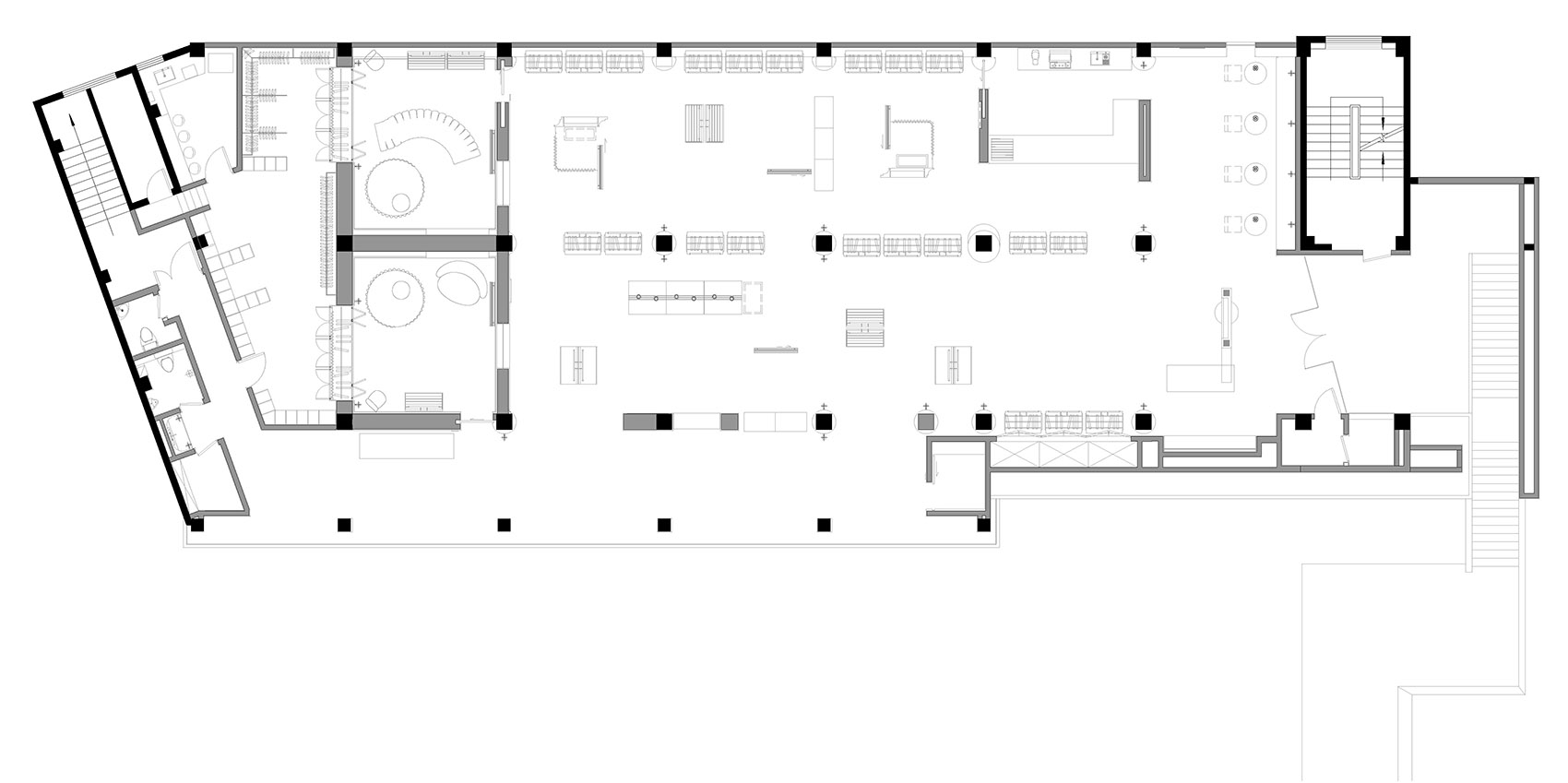
▼平面图,plan©F.O.G. 建筑事务所
项目名称:XIY 品牌集合店
设计单位:F.O.G.建筑事务所
项目位置:重庆
建筑面积:560m2
设计团队:吴雷蕾、张驰、邹德静、唐墨、张馨月、李诗楠
结构顾问:蔡昕瑀
灯光顾问:立本社 张旭
施工图深化:邦舍深化设计
施工总包:有龙金胜
摄影:言隅
撰稿:曹筱袤
客服
消息
收藏
下载
最近
























































