查看完整案例

收藏

下载
“感谢设计师的真诚沟通,一次次亲临现场,不厌其烦地对接,才让我拥有了这么完美的家!”
——屋主
本案位于连云港,
三代同堂×墅居生活,被温馨的时光包围。
满足跨越不同年龄段的差异化需求与跨地落实设计方案,是本案面临的重要挑战,将抽象问题转换成具象方案,用极致的细化思维,打通从设计到施工的整体流程,顺利实现理想的栖居环境。
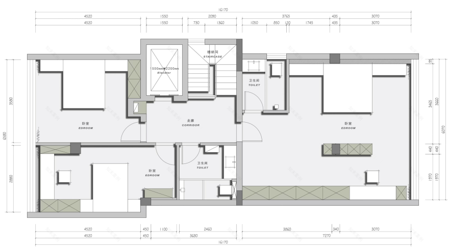
平面图
业主从事珠宝与贵金属行业,做事雷厉风行,气质沉着泠静,设计师以此为灵感,渲染深重色调,整合碎片化的点、线、面,展露稳重大气且爽利疏朗的模样。
用科学舒适的空间布局讲述光影的故事,于特定位置增添大理石、岩板、插花与艺术品,消弭单调的感觉,融汇高级的格调,书写生活的无限可能。
走,去串门儿~
Let's go visit the house
空间,因尺度而生长,因光明而绽放。
会客厅通过演绎黑白灰美学,交织氤氲的光丝、亲柔的触感、撞色的张力及天然的纹理,将三维空间与无形情绪串联。
定位视觉焦点,探索空间内的重轻平衡,为高质量社交情境赋能。展现层次表达,涌现出多元的韵律与节奏,令实用性与美学性相互兼容。
打造纯粹基底,将一幕幕动人瞬间刻画、定格、交互,雅趣跃然而出。
仿佛沉浸在寰宇世界的黑调饰面,结合镂空造型和置物功能,形成前后呼应的关系。优雅简洁的体块与时尚风采接轨,焕发悦目怡情的审美意蕴。
一部万家灯火的生活史,便是身心可以触达的成长史。
曲面,颠覆了平顶的叙事手法,引入纯净的光,一边贯通灵魂,一边对话生活。以立面光影的表达,造就第一层诗意,链接花艺生机,烘托出无与伦比的浪漫氛围。
高频次的场景转换,让体验与惊喜产生了紧密的交集。
在“远看黑是黑,白是白,细看黑不仅是黑,白不仅是白”的语境中,搭建电梯、厨房与卫生间的沟通桥梁,于是,场域之间有了呼吸。
专注心理的诉求,秉持严谨的态度,在极简与丰富中重奏空间的美学旋律。
一步一阶,温暖于心。勾勒黑线,应和光带的方向,置入抽象几何画,回溯其余场域的艺术情调。
莎士比亚说:“舒服的睡眠,才是自然给予人的温柔的令人想念的看护。”
深谙色块拼接、叠搭形态与明暗变化对情绪的影响,采用考究的布局,营造安谧无限的环境。调节光的温度,在悬浮桌的陪伴下,一键抵达精神世界。
喧闹的声响在进入衣帽间时戛然而止,抬头即见的灯带已准备好为你导览精品服饰,不落俗套的跳色树立了场域的个性,阐述了美的意义。
轻盈的物质体态,更贴近“浮游梦境”的感觉,模糊了现实与梦境。隔断融合壁炉,散发温馨,梳理场域动线,根植功能,达成鲜活的空间叙事。
干湿分离是卫生间的构造原则,延续大理石的高贵气质,将自然的浪漫娓娓道来,借金属与玻璃渗透光的能量,唤醒不同维度的感知。
The owner said{业主说}
住宅在连云港,距离苏州较远,但设计师没有丝毫的怨言,一次次地跑到现场进行对接,确保每一个细节都能达到我们的期望。这份责任心和专业性,让我们对整个项目充满了信心。每一次的对接和沟通,都让我感受到大斌设计团队的用心和敬业,他们不仅是在为我们建造一个居所,更是在为我们精心雕琢一个充满爱的家。
设计师很好地理解了我们的喜好,在空间布局和功能规划上充分考虑到了我们家庭成员因年龄跨度较大而产生的不同需求,这一点让我深感欣慰。使整个空间既有个性,又不失温馨,与我们的生活态度不谋而合。
总的来说,我对这次装修的结果非常满意。
人生不过是居家,
出门,又回家。
项目地址:江苏连云港
项目面积:500.2501349㎡
项目设计:大斌空间
项目风格:现代简约
文案策划:修合文化
客服
消息
收藏
下载
最近
































