查看完整案例

收藏

下载
极简于形,造就舒畅体验
极简于质,呈现美学内涵
极简于意,领略宇宙万象
青秀大厦,采光极佳,按需划分出开放职能区和私密职能区,主张视觉统一,却也注重每一域的特色亮点。通过现代写意手法诠释,碰撞出空间新的记忆,搭建不同的场景,见证办公环境完成“门面得体,工序合理,交互多元,动憩平衡”的变革。
大隐之作×禅意端景
不受限于笼统、刻板的表达,根据明暗关系与纵深长度打造透光背景,既有纯色的留白意境,也有纹理的艺术气息,瞬间就能抓住眼球,博得观者好感。近乎贴近地面的悬吊结构,常借动影引发交互乐趣。
《寻南溪常山道人隐居》里这样描绘:“过雨看松色,随山到水源。溪花与禅意,相对亦忘言。”小碎石、薄青苔、绿植与“假山”共同构成了禅意景观,释放出自在悠然气息,静谧的物象与恬然的心境交融合一。
拼接色块×交织线条
设计,要有空间观念,加上实地考察,方能达成“有型,有用,有意,有品”的效果。平顶结构与纯黑色块相互关照,强化了主过道的区位性与贯通感。以纯白色覆盖裸露房梁,完善宽幅落地窗,最大限度地还原“海阔天空”的意境,愉悦办公心情。
光的语义是转换黑暗。以透明围栏的顶高作为分界线,对上半部分的落地窗进行透光遮阳处理,同时满足室内对自然光的需求和预防刺眼等不适的可能性。带有倾斜动势的立柱,突破规矩形态的束缚,传递出一种不羁又稳当的感觉。
两组工位,一前一后对齐摆置,每组工位,对半分隔弱化干扰。立体造型通体黑色,使人静心,银色元素为空间增添了视觉活力与专业感。金属质感延续至上方,融入管状线条架构出照明系统,切换不同视角观看,艺术性与功能性兼备。
木纹弧面×修长吧台
黑白之间,胡桃木色承接住了立面场景,向内引用雅灰饰面,衬托出水吧区的核心。卷曲吊顶致敬另一场域的构造巧思与寓意,在一众理性形态中渗透温柔力量,搭配天然木纹、灰底斜纹与洁雅石纹,赋予水吧区悠游于自然秘境的氛围。
隔音透光×独立圆桌
勾勒圆形,向下延伸出吊顶,曲面玻璃穿插其中,合围出“视觉通透,高效隔音”的会议室。摒弃吊灯,以吸顶灯提供照明,色温恰当,空间极简。铺设深灰材质,强调会议室的独立感,缓和了光影冲击,让所有人专注在交谈场景中。
金箔艺术×休闲情境
纵横纹理,隔空相识,稳定了空间感。通透的窗,呼应了白墙的纯净感,令空间更和谐大气。楼宇景致透过玻璃窗被定格,启迪金箔屏风绘山描树,对话真实的绿意景色,墨色笔触解构书法形体,呈现图像化美感,焕新了金箔基底,与金箔屏风“琴瑟和鸣”。
时尚型格×微妙平衡
用最有态度的黑色打底,叠加对比鲜明的大理石与线纹细腻的木色块,让立面语境顺利转换,显现层次艺术与时尚调性。办公桌的设计,将精神属性与美学表现微妙平衡,树立了独立的领域感。
离尘×不离城
大理石体块,将侧旁古画的美韵吸收、抽象化地传递给另一面的大理石叠层,形成“主次虽有别,内核尤稳定”的叙事手法。桌与“座”保有同色系列感,呈现茗茶用具的精美与烹茶对饮的情调。再现管状结构,拉伸编织网,展开软隔断功用,转译办公与会客情境。
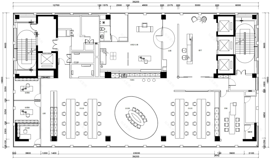
© PLAN VIEW 平面图
项目名称:青秀大厦办公室
项目面积:700.2501349m²
项目地点:江苏 苏州
文案策划:修合文化
客服
消息
收藏
下载
最近
































