查看完整案例

收藏

下载

翻译
Architects:ShahrA Shahr
Area:2500m²
Year:2023
Photographs:Khatereh Eshqi,Mohammad Amini
Lead Architects:Shahram Shirmohammadi
Lead Team:Maryam Daem, Mahsa Nematollahi
Design Team:Parinaz Charmdooz
Lighting Consultants:ON Lighting
City:Tajrish
Country:Iran
Text description provided by the architects. Anahita factory project, right, is a symbol of the critical projects of ShahrA Shahr Architecture Office. The fact that society is used to a type of architecture in the context of industrial towns and reacts when faced with different behavior, this reaction is constructive from our point of view.
Anahita's factory project, in criticizing the morphology of industrial towns in Iran and the art of architecture left over from it, begins to communicate with the society by stating why and continues to narrate by including him, and finally achieves qualitative Space in different sequences leads the society to complacency.
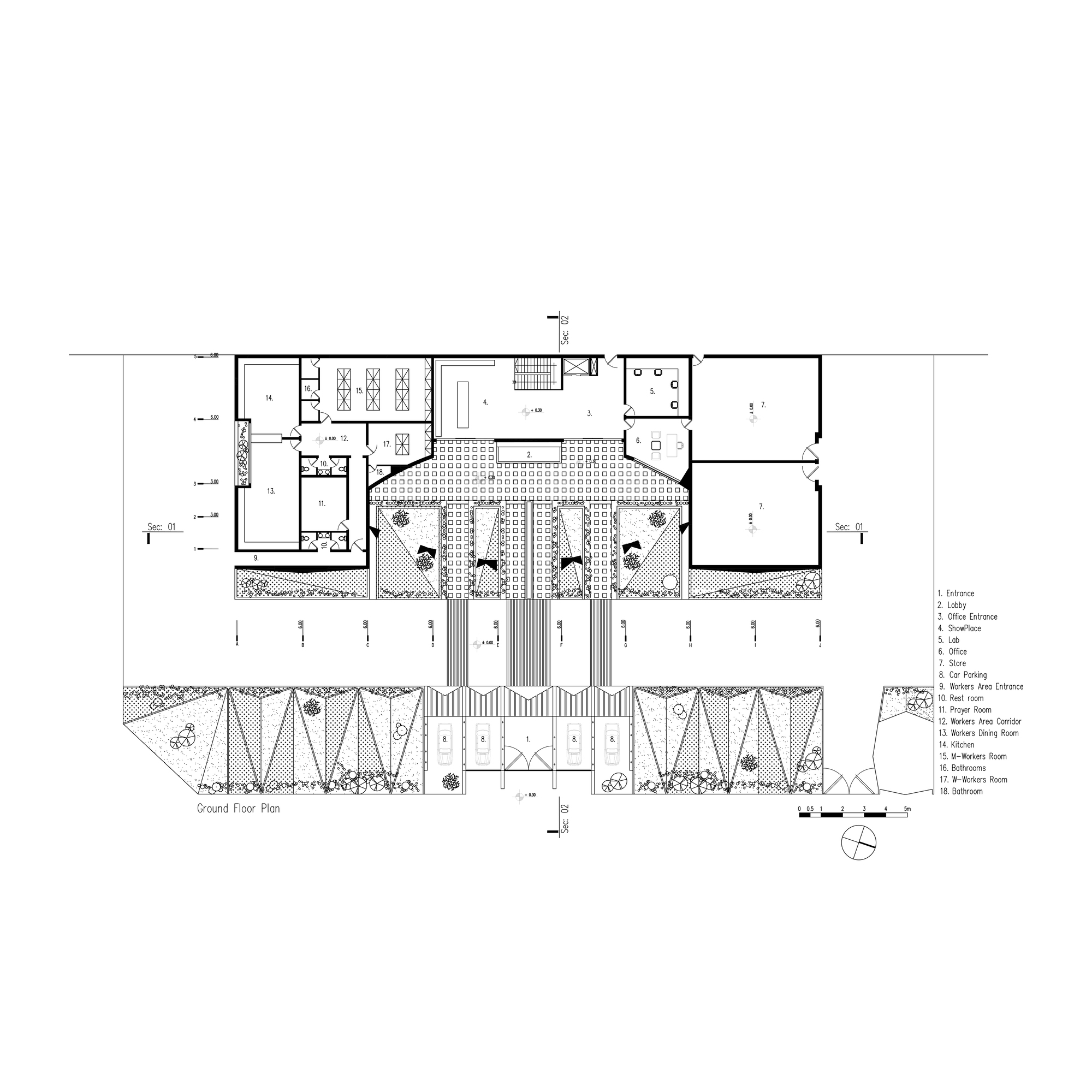
Considering the initial form formed from the construction of the metal frame, leaving a large part of the building mass on the ground and first floors as a middle and inner courtyard helped in creating a spatial hierarchy, connecting different areas. Workroom storage and laboratory spaces were placed on the ground floor and in direct connection with the production halls. The administrative and control department of production and sales cycle management on the first floor with windows facing the middle courtyard played a role as an intermediate link between the labor ground floor and the second administrative floor. Open and semi-open space, the extension of green space from the area into the middle yard, the centrality of water in the yard, light, and shade increase the spatial quality of the middle yard.
The design and construction of the internal elements of the Anahita factory office building project is an attempt to create a feeling and experience of working in spaces with the signs of native architecture and combining it with the brand identity created in the external forms of the building. Native architecture has the qualities of a combination of shapes and colors, this quality was borrowed from native architecture to create a brand and brand identity + building architecture and by combining with concepts such as work chain and production, it led to the creation of spatial elements of work.
Project gallery
Project location
Address:Tajrish, Iran
客服
消息
收藏
下载
最近



































