查看完整案例

收藏

下载

翻译
Architects:Sobokuya Inc.
Area:150m²
Year:2024
Lead Architects:Hisashi Imai
City:Hokuto
Country:Japan
Text description provided by the architects. Suashi no Ie – A House in Harmony with Nature - In 2021, Sobokuya embarked on a project to create Suashi no Ie, an eco-regenerative home that embodies the owner's sustainable lifestyle. Nestled at the foot of Mount Yatsugatake, the house is a blend of traditional Japanese craftsmanship and modern regenerative living. The name "Suashi no Ie" (Barefoot House) reflects the owner's lifestyle, which greatly revolves around walking barefoot. This passion for connecting with the earth influenced the choice of materials - we aimed to create a natural, comfortable feel underfoot throughout the house.
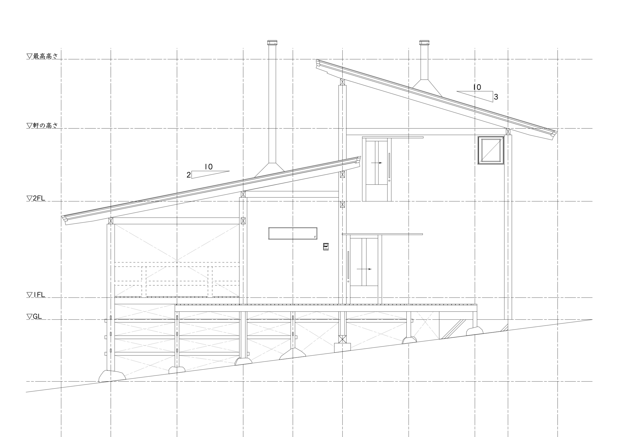
Inspired by the architectural techniques used in the iconic Kiyomizu-Dera Temple in Kyoto, Suashi no ie stands on a raised foundation to prevent moisture buildup and promote natural air circulation. The kakezukuri and nuki construction methods, traditionally used to stabilize buildings on uneven terrain, were adapted for this house, ensuring stability in the challenging landscape. The foundation itself was crafted from natural stones, with charred wooden piles driven beneath them to support soil health. The pillars were carefully shaped to fit the irregularities of the natural stones, showcasing traditional craftsmanship in its finest form.
The carpentry in Suashi no ie was executed with great precision, using Yatsugatake pine for the powerful beams, and featuring Sobokuya's original wooden fittings throughout the house. The house features solar water heaters, a wood boiler, and a custom-designed wood stove, all chosen to circulate and conserve energy efficiently, aligning with the home's regenerative ethos.
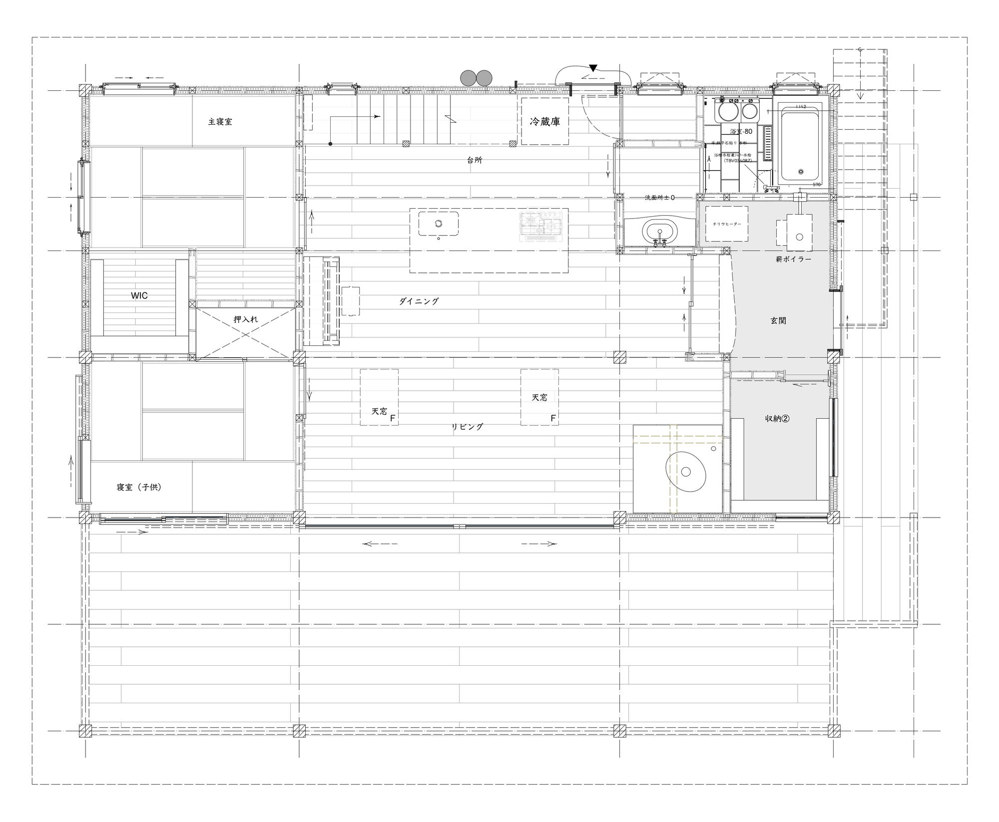
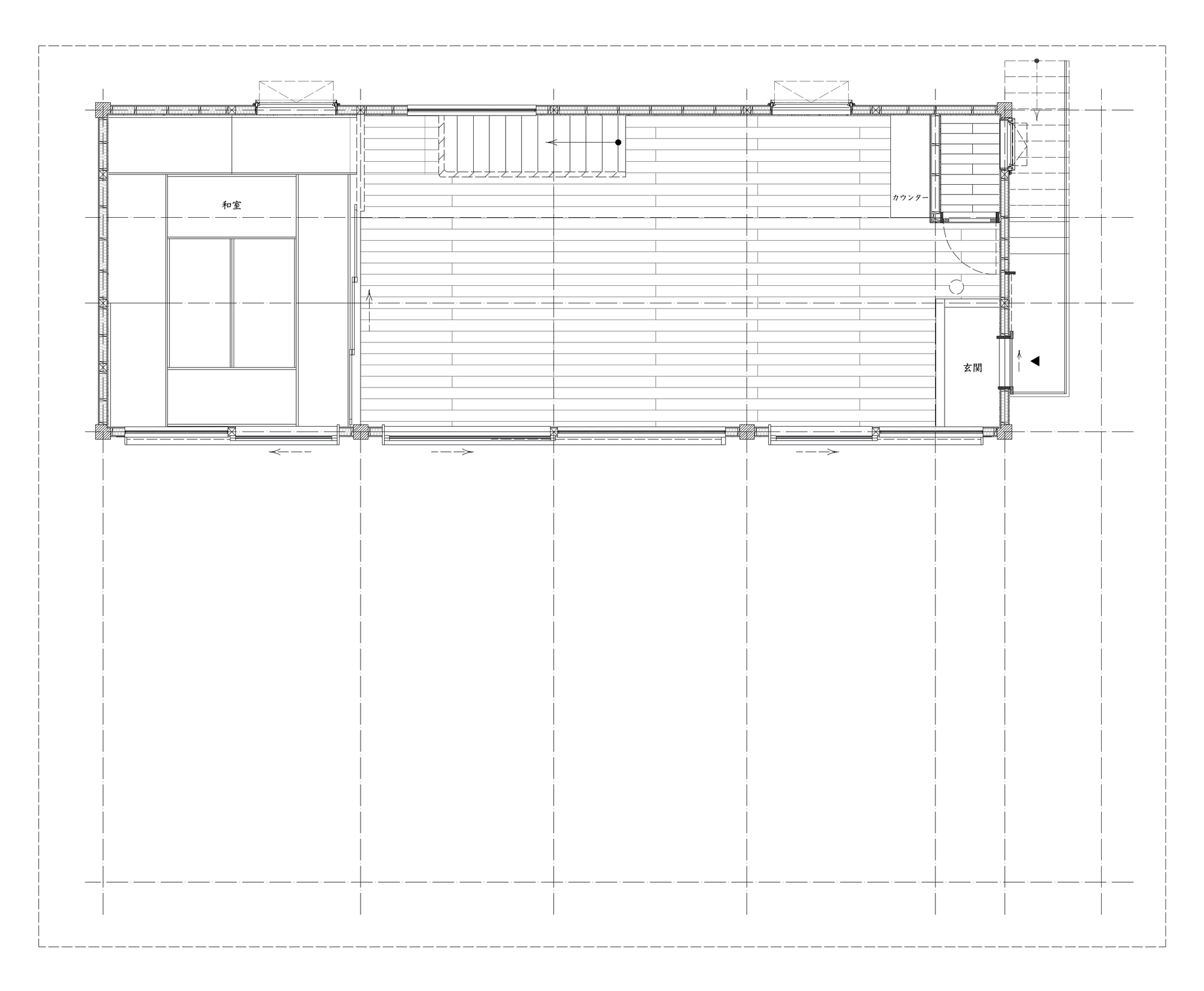
Inside, the living spaces reflect the same dedication to natural materials and craftsmanship. The spacious living room flows seamlessly into the kitchen, creating an open, airy atmosphere. Solid chestnut wood was used for the kitchen, emphasizing the natural texture of the wood, which will age gracefully over time. Custom-made storage units blend form and function, crafted specifically to suit the household. Large sliding doors made of wood open to views that align with the treetops, giving the impression of being in a treehouse. The expansive open deck offers an awe-inspiring outdoor space, while the skylights and narrow windows invite natural light into the home, enhancing the warm and cozy atmosphere.
The exterior of Suashi no Ie combines tradition and modernity. The outer walls, finished with lime plaster, give the house a clean and bright appearance, while the wooden beams of the ceiling emphasize the traditional aesthetic. With its thoughtful design and materials, Suashi no ie fosters a continuous cycle of regeneration between people and nature, ensuring that this relationship grows and evolves as the house ages.
Project gallery
客服
消息
收藏
下载
最近
























