查看完整案例

收藏

下载

翻译
Architects:Rachcoff Vella Architecture
Area:650m²
Year:2023
Photographs:Tatjana Plitt
Lead Architects:Rachcoff Vella Architecture
City:Gruyere
Country:Australia
Text description provided by the architects. At the pinnacle of a scenic hill in Victoria's Yarra Valley stands our recently completed Gruyere farmhouse. This five-year journey, from conception to realization, stands as a testament to our dedicated team of architects, documenters, consultants, builders, and, most importantly, our clients. Successfully navigating challenging planning constraints, a COVID pandemic, and extreme weather conditions demanded resilience and a cohesive team sharing common values and principles.
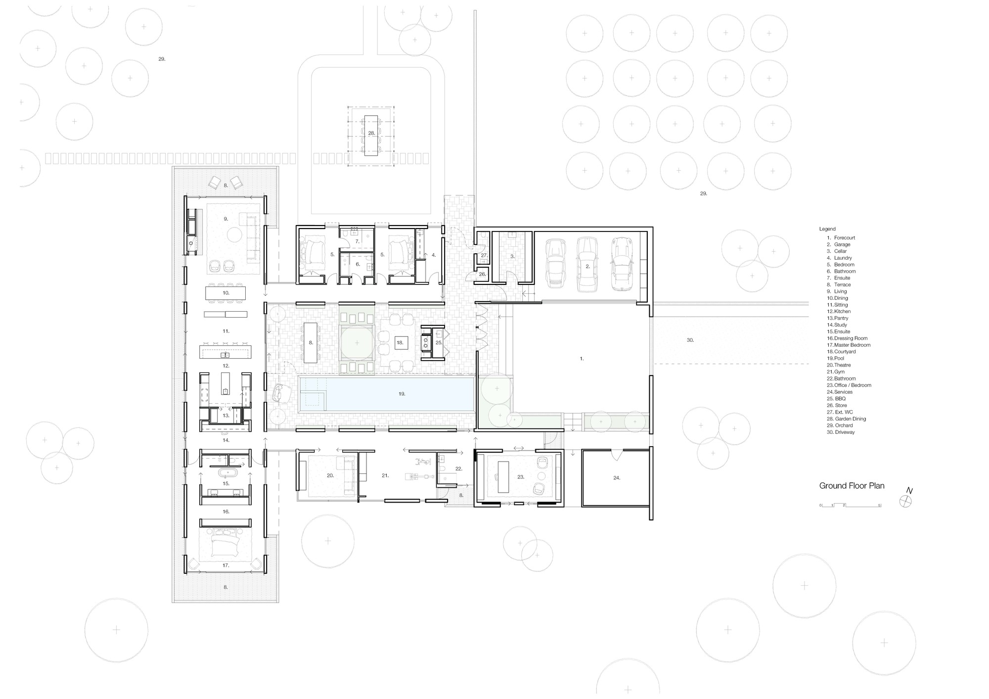
Our clients presented us with a comprehensive brief for their new family home, offering an incredible site with breathtaking panoramic views. Perched atop this hill, we faced the dual challenge of designing a suitable dwelling whilst navigating the logistical issues like site access, services, and material transportation across this 100-acre property with an 85-metre vertical rise from the entrance to the proposed dwelling location.
Our clients' deep familiarity with the site, acquired during their time holidaying in a self-contained cabin, greatly influenced the design brief. Their specific preferences for various views throughout the day and desire to create an enduring legacy guided our design inspiration. We were also guided by specific planning constraints to seamlessly integrate the building into the hillside without disrupting the existing Gruyere ridgeline. This approach shaped the building's placement, choice of materials, and intricate details, ensuring the farmhouse would bleed into the surrounding dark vegetation and Yarra Ranges beyond.
Considering the extreme hilltop climate, the siting of the built forms was paramount in creating habitable spaces. We framed a protected courtyard with three distinct building wings, each tailored to its functional purpose and characterized by our choice of materials. Handmade, imperfect bricks were used for the bedroom and secondary living/utility spaces, mirroring the natural geology and soil colors on-site. On the other hand, the main living pavilion adopted a lighter, more delicate structure, featuring rhythmic board and batten details. We chose Matt Monument Colorbond cladding for its color and luster, allowing the building to become one with its backdrop.
Drawing inspiration from the surrounding landscape, the design emphasizes a strong connection to the ubiquitous Yarra Ranges. The undulating and dancing pitched roof forms, directly inspired by the silhouette of the mountain range to the North, create a meaningful dialogue with the natural context on both a micro and macro scale. The main pavilion's unique roofline earned the project the nickname "Hilltop Hood." It boasts a pitched roof that cantilevers three meters at both ends, providing weather protection as a 'hood' or 'Hoodie' over the glazed and modulated ribbed pavilion.
Beyond aesthetics, this design also respects the locale by preserving view lines from and towards the neighboring property through the strategic planting of a mature olive grove. The site unfolds through a series of spaces, evoking the feel of traditional European farmhouses, featuring a newly created driveway that remains concealed from view. The culmination of this experience is the journey and slow reveal from the forecourt to the secluded courtyard, equipped with all the amenities expected in luxury homes. Within the pavilion, you'll be greeted by three breathtaking views: one to the West capturing Melbourne's skyline, another to the north overlooking the Yarra Ranges from the living room, and a morning view over the Warramate Ranges from the master bedroom.
Our vision embodies a blueprint for celebrating a holistic approach to architectural design. Gruyere farmhouse, affectionately known as "Hilltop Hood," aspires to transcend the ordinary and exemplify this harmonious integration, showcasing what's possible when architecture embraces nature and its surroundings.
Project gallery
客服
消息
收藏
下载
最近




















