查看完整案例

收藏

下载
家,不止是一所房子,一个生活所在地,在明德设计的理解中,家更是对理想生活向往的体现,是让心灵歇息的港湾,是情感与交流的空间。 现在,就让我们走进位于武汉墨水湖南路的一所现代别墅,感受一个现代精英家庭,精致时尚而温馨内敛的家。
一层玄关 拥有通透视野的独立玄关,以大面积木色铺陈,储物柜在兼顾收纳功能同时,更保持了整体的美感和质感,从进门一刻,便感受到居者对精致生活的追求。归家从此有了一份仪式感,每天踏进家门,都仿佛有一把温暖的声音在说:欢迎回家。
一层客厅 高阔的落地玻璃窗将室外美景尽收眼底,让客厅拥有让人惊喜的采光,淡雅和谐的中性色调营造出高雅大方的气韵,大理石墙面素净大气,使得整个空间更加通透。无论身处哪一个角落,都让人感到轻松惬意,置身其中,能感受到无处不在的奢美与考究。 壁炉是设计师别出心裁地为客厅添的一笔温暖,试想一下:在一个冬日的晚上,室外寒风瑟瑟,室内的壁炉火光跃动,让一个家的温暖都可以看得见。
一层客厅 精致细腻的饰面细节无处不在,疏密有度的空间布置,足以承载起现代精英家庭的日常生活所需。从天到地,处处显得温润和谐,是现代优越人居的生活体验。
一层餐厅及西厨 亮白色与浅灰色在这里交叠互融,让餐厨区拥有极致的时尚感,充足的采光让每个角落都洋溢着生活朝气。粉橙色皮革餐椅作为点亮,形成对比,增添了一份属于家的温暖感。 “厨房是一个使用率极高的地方,充足的收纳功能和简洁明亮的色调更能让人集中于烹饪;而餐厅则是让一家人共享天伦的地方,让人与人的关系变得更加亲密。”设计师如是说。
一层餐厅及西厨 宽敞且配置先进精良的厨房,一分一寸都经过精心布置;一镶一嵌,细节严谨,流露出热爱生活的美好情怀。从整体的氛围到每一处细节的铺陈,无不氤氲缱绻着温馨的人间烟火气。
一层长辈房 卧室整体以沉稳朴质的色调为主,柔和的灯光布置,触感柔软的壁布,均清中带雅,置身其中,能让人身心放松。阳光透入,勾勒出从容而协调的氛围,让人在这里找到舒适和安逸。
二层家庭活动区 蓝色主调让空间的氛围更具包容性,当然也少不了贴心地使用墙布来隔音,以木色地板来承载活跃的步伐。在这里不管是看电影、打游戏,或是来一场演奏,都能让人无拘无束地享受乐趣,成为一个快乐主义者。欢乐时光,惬意无比。
二层男孩房 沉稳而高级的色调既能塑造出时尚的效果,又有安抚情绪的作用。整体空间的视觉干净利落,木色墙面与白漆的柜面和谐地携手打造了不拘一格的印象,让人身处其中能找到属于自己的,最舒服的活动方式。
三层主卧 追求细节的心永不停歇。品质和轻奢的魅力,通过精心铺陈的细节流淌于卧室的每一处,触感舒适的浅灰色皮革毫不吝啬地铺于墙壁上,让人不知不觉地感染到这种内敛的气质。环顾四周,无一不让人感到放松和舒适,流露出现代时尚的生活品味。
三层主卫 “当繁忙的一天结束之后,我们需要一个安静的地方来放松身心,舒缓疲倦,享受一个泡泡浴。”故此,设计师在主卫间作出减法,抛去繁复的色彩和装饰,仅以黑白两色相辅相成,透过玻璃、黑钢和白石,打造一个经典而时尚,可以让人安心沉浸其中的空间。衣帽间暖黄的灯光透过玻璃门染出,恰当地缓和了黑白的清冷,在功能和情绪上达到了平衡。
三层书房 现代精英的居家办公学习领域,同样需要展示个人风格和独立个性,无需繁复,足见品位。以精致的工艺打造木装面墙壁,透过精心布置的灯光,呈现更多细节质感。木柜中间留空打造成一个小小的窗台,让书房多了一处看风景的好地方。
负一层聚会与娱乐厅 情与境谐,意与景会,湖水蓝穿插在这个以浅木色和皮革为主调的精致空间中,形成鲜明的对比,又相互融合。墙面皮革的运用既可隔音,又有丰富质感;每一线光,都恰到好处地融入到环境当中,瞬间将空间衬托得更高级时尚。布置划分皆充分满足时下对聚会和娱乐的需求,唤起人们对精致享乐的追求。
负一层娱乐厅 得益于设计师对光影的历久经验,灯光在精良的布置下,从天花投射出迷人的光影,渲染出惬意气息。冰冷坚硬的金属和黑钢材质,通过精心配搭和比例控制,变得摩登而精致,衬托出现代艺术气质。光滑的木饰面传递着考究的品质精神,愉悦的时光在此不知不觉地流逝。这种美妙的体验既是人与人之间的关系,也是人与空间的关系。
负一层酒窖 精致优雅的生活,少不了一个品尝美酒的私人天地。浅木色的步入式酒柜朴实与奢华并重,让人一望而沉醉。酒红装饰画让人联想到美酒,踏进此间,仿佛迎来一股馥郁浓醇的酒香,通过视觉来触动味觉。在质感光滑迷你吧台上享受一杯,让生活的烦恼在美酒中释然。
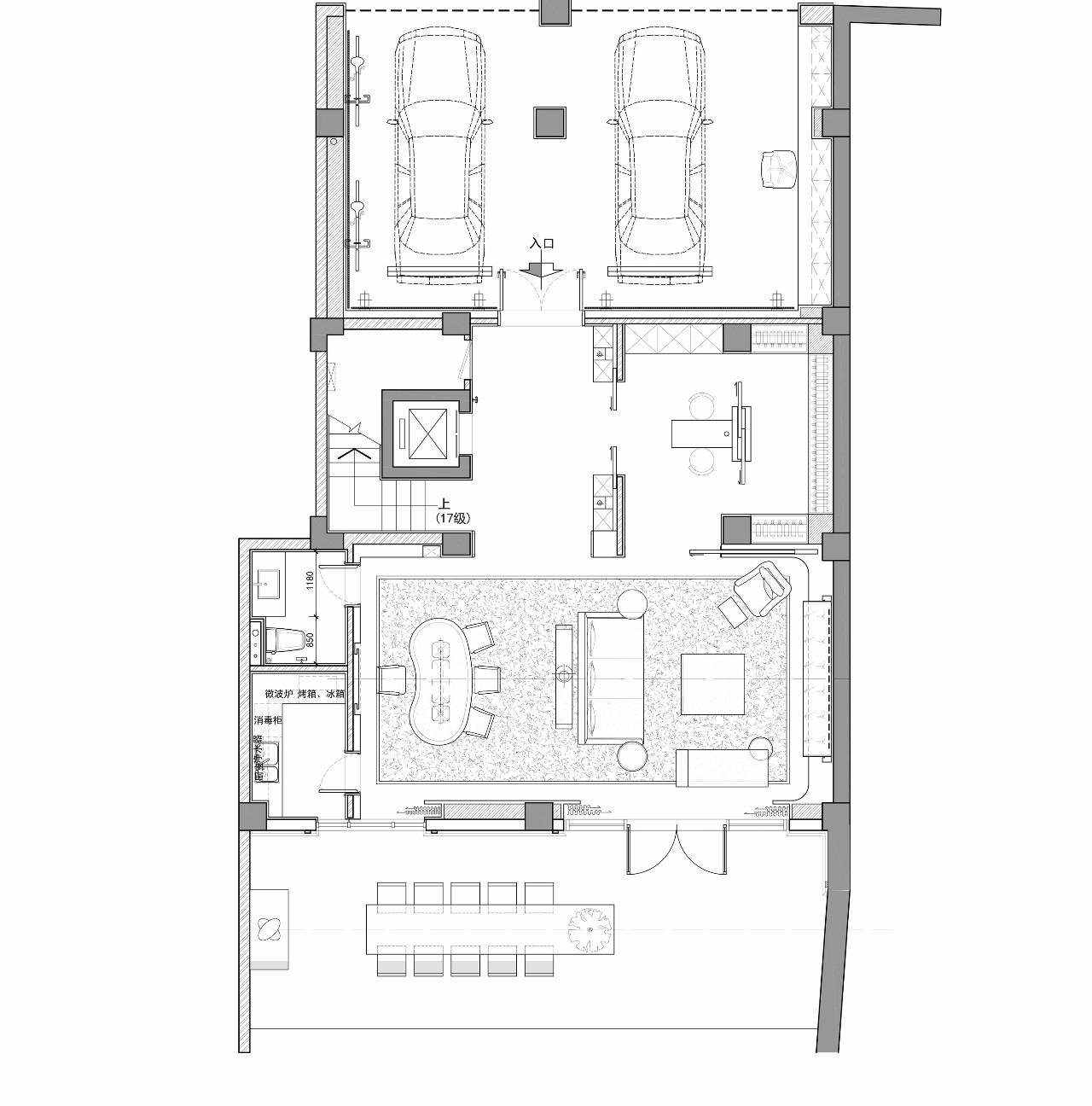
负一层车库 40多㎡车库的空间宽敞,足以停放两台私家车,满足现代精英生活所需。天花光线布置均匀而充足,浅木色墙面与浅灰色石纹地面相接,以镜面不锈钢修饰立柱,让视觉显得更开阔,大大地减少了密闭空间带来的压迫感。
一个家的珍贵之处,是让居者可以享受到属于家的温馨与愉悦,是让居者的生活品位得到满足,人生态度得到表达。在这里,创造出生活之上的精致生活。
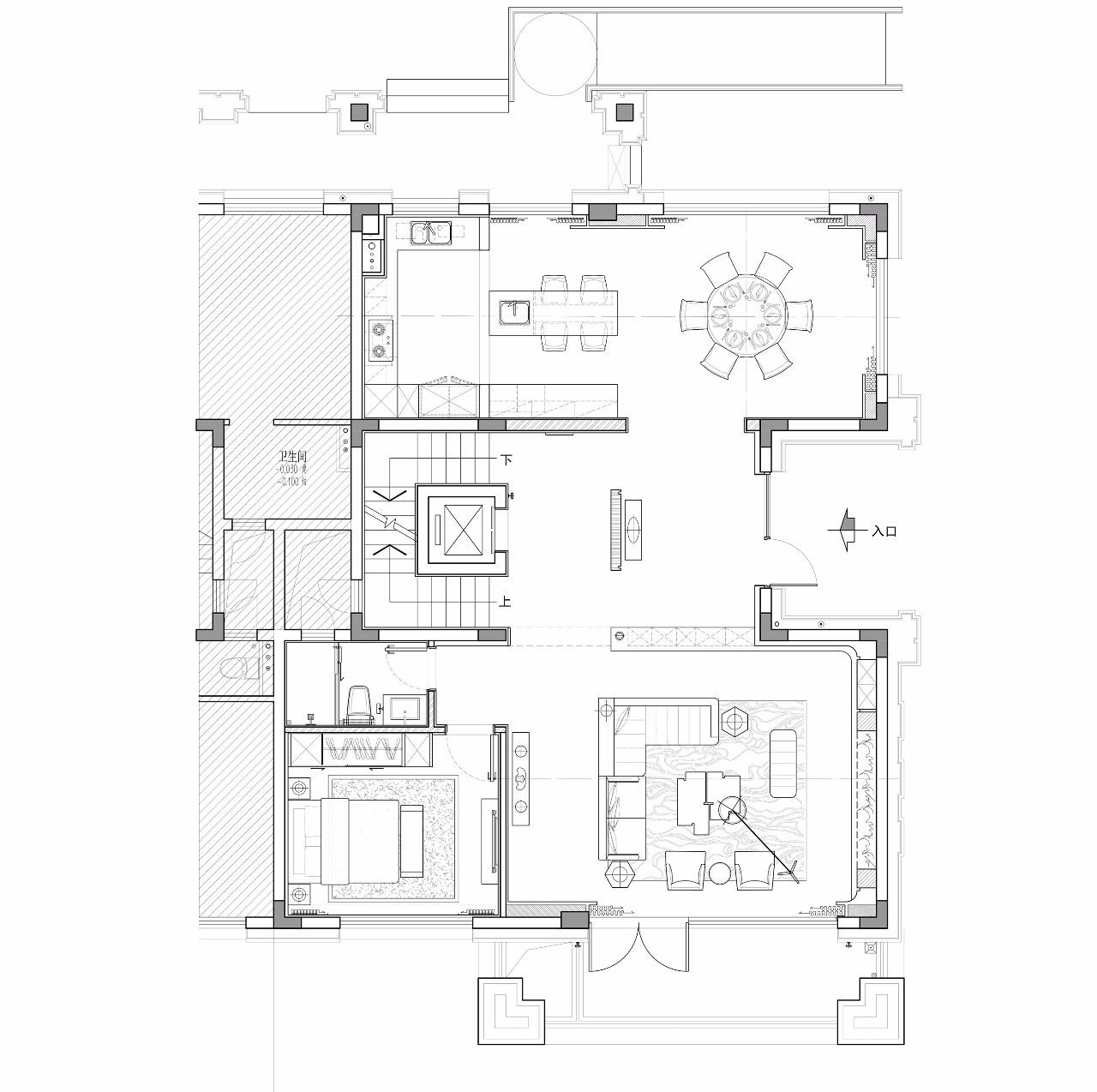
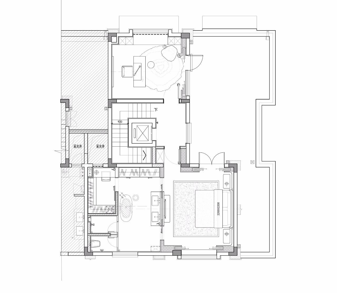
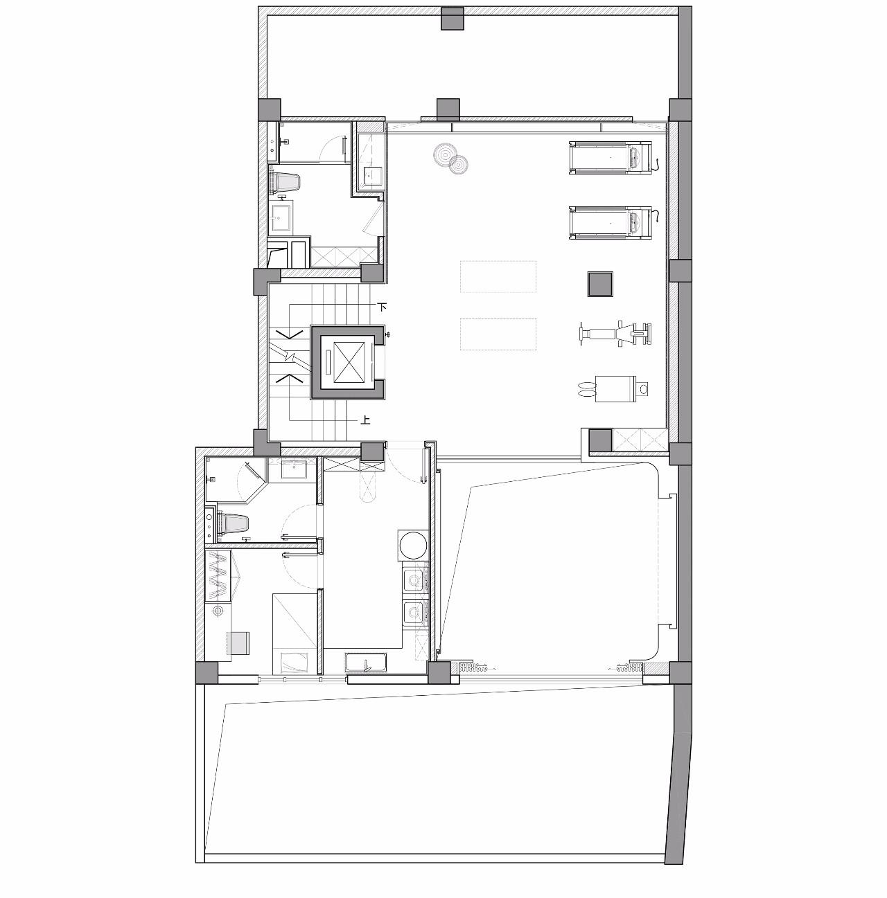
平面图
项目名称 | 武汉招商公园1872项目B2地块8#样板房
项目面积 | 587㎡
业主单位 | 招商蛇口华中区域
室内设计 | 明德设计
摄影团队 | 上海恩万文化传播有限公司
特别鸣谢 | 杨方、程光澜
客服
消息
收藏
下载
最近



































