查看完整案例

收藏

下载

翻译
Architects:Charged Voids
Area:8500ft²
Year:2021
Photographs:Niveditaa Gupta
Manufacturers:Grohe,ALCOI India Private Limited,Ambiance Furniture,Aquaint,Asian Paints,Bharat Bricks,Daikan,Gagan Handloom,MANISH,Osram,PANCHKULA,Rohit Sehgal
Lead Architects:Aman Aggarwal
Design Team:Swati Agarwal, Akash Purshit, Dushyant Singh
Structural Engineer:Pankaj Nanda
Lighting Designers:Ruchika Singhal
Electrical:Rajinder Singh
Program / Use / Building Function:Residential
Civil Engineers:Consort Builders
HVAC:AV Engineers
City:Panchkula
Country:India
Patterned brick walls create an inward-looking oasis for a multigenerational family at this Chandigarh residence. Located in Chandigarh, on a site facing a busy sector road on one side and an arterial road on another, Residence 91 by Charged Voids houses a nine-member family spanning three generations. The client desired a humble, meditative sanctuary—a sacred space that prioritizes wellness and tranquility and sparks joy. The architecture responds to this brief by celebrating nature and the elements, harnessing a powerful combination of light, materials, and familial warmth.
Owing to the bustling location, the project is conceptualized as an inward-looking dwelling with carefully planned recesses that ensure privacy and noise reduction. The various spatial volumes are interconnected by the voids in the building as a response to the tradition of maintaining close ties within large Indian families.
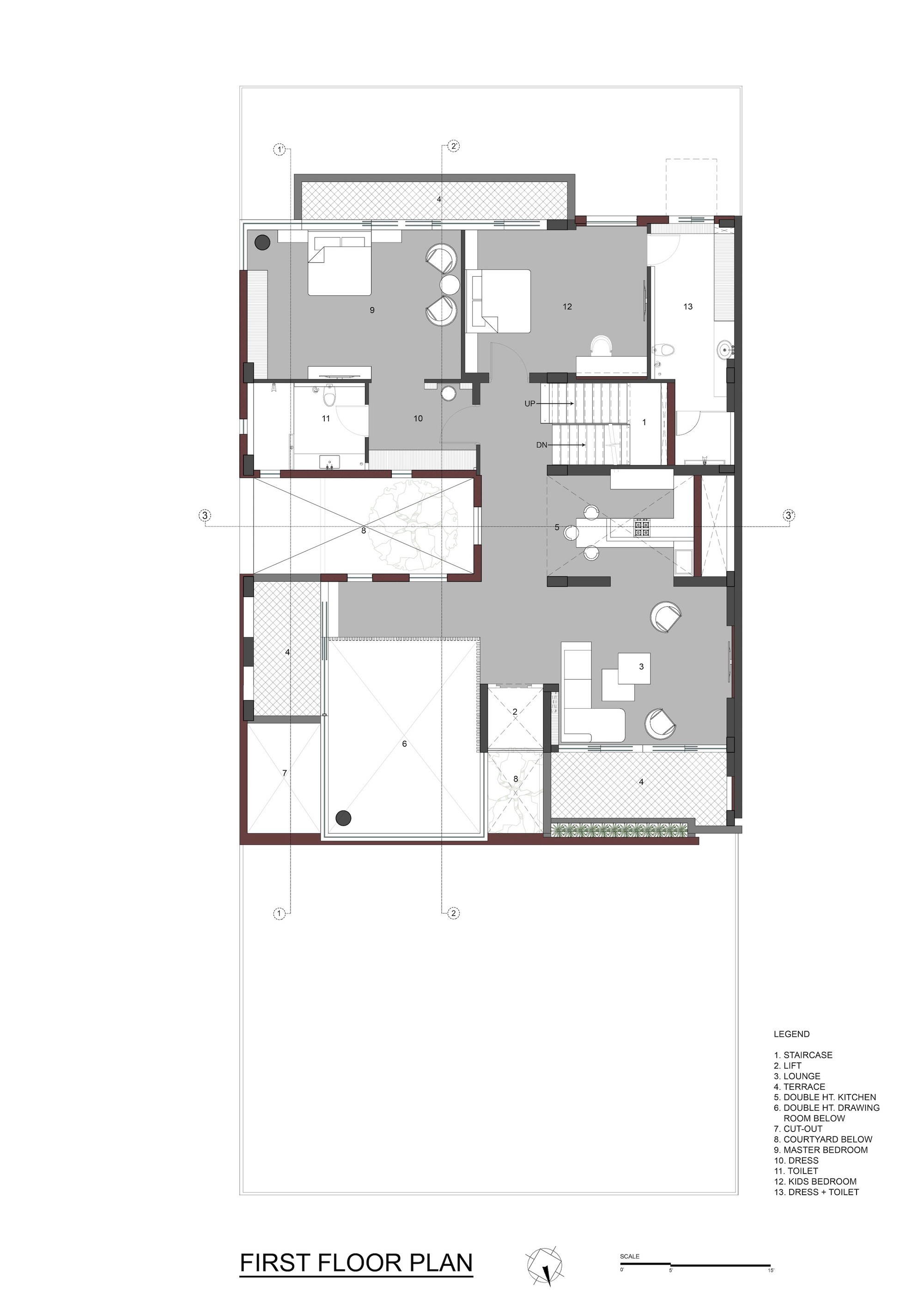
The layout of the 7-bedroom home is structured around a central courtyard. The common areas on each floor spill directly onto the courtyard—an intervention that reinvigorates the traditional verandah, evoking fond memories of celebrating life in the aangan for the homeowner. The ground floor houses the public spaces, namely the living and dining areas, a double-height kitchen featuring a lightwell, a separate spice kitchen and the elderly parents' bedroom. The first floor holds the bedrooms for the younger couple and their child, along with a family lounge and kitchen, while the second floor has three bedrooms, each with its individual outdoor recreational space. The basement is dedicated to gatherings, with a lounge and entertainment area accompanied by a guest bedroom.
The courtyard transforms into a sunken court in the basement, incorporating volumetric shifts with height to interact with the interior spaces on the upper floors and effectively invite greenery indoors. On the ground floor, it is a semi-covered verandah with a water feature that extends from the living room. On the second and third storeys, it extends into an outdoor jacuzzi and covered terraces and gardens. These volumetric expansions on each floor have resulted in dynamic transitional spaces that simultaneously mediate openness and allow for more effective interactions between the older and younger family generations.
The exterior openings—especially on the upper levels—strategically puncture the facade to achieve a sense of visual and acoustic seclusion. The vistas framed by these openings were also not left up to chance. The first-floor windows are designed in such a way that they align with the top of the tree line around the home, while the nearby Gurudwara and the distant hills are framed by other punctures in the cuboidal structure. The larger openings face north while the smaller ones face south. The home, in addition, features deep verandahs working in tandem with the openings to lower the home's cooling loads.
Composite RCC and locally available brick have been employed to build the home, with an emphasis on regional construction practices. The exposed brickwork has been laid using an improvised rat-trap bond to create cavity walls, ensuring thermal insulation as well as minimizing traffic noise. The traditional brick bond is modified by repositioning singular brick units, thereby resulting in rhythmic patterns on the facades.
The use of controlled apertures in its envelope and liberal internal open spaces allow Residence 91 to experiment with the versatility of the courtyard and the dynamic relationship between the occupants and the outdoors. The design's inward-looking character aims to catalyze familial relationships with an exterior that quietly breaks rank with its surroundings.
Project gallery
客服
消息
收藏
下载
最近






























