查看完整案例

收藏

下载
项目名称 | 凯万同 东海·鼎山府 售房部
业主单位 | 凯万同&东海地产
项目位置 | 重庆市沙坪坝区
项目类型 | 售房部&样板间
设计面积 | 售房部约 410㎡,B1 样板间约 245.16㎡,B3 样板间约 155㎡
完成时间 | 2021.3
设计公司 | HIGHLY 海力设计
设计范围 | 硬装+软装
01. 售房部
《论语·雍也》
智者乐水,仁者乐山。智者动,仁者静。智者乐,仁者寿。
山水之城,时尚之都
重庆,一座以山水为名的时尚都市,“水”是这座城市的文化与灵魂,以江水流动的灵动性,演变出不同水的形态。
当“水”形态不断变换融入建筑及景观的同时,在室内空间当中,“水”的演绎更加贴切于人们的行为感知。当“光”与“水纹”结合,“镜”与“室外水景”结合,从而延伸于空间中,水之镜、水之影的不断变换。
当艺术传承之于设计,穿梭于传统与现代之时,一个简约素雅的空间,一种抽象化的感受,便以视觉韵律唱响。东海·鼎山府项目,就是这样。
通过深灰色与米灰色石材的叠搭,与背景墙面构筑的界面关系,展现出低调而富有艺术感的美学素养。转过精致的墙角,倏忽间有几点莹润的光跃入视野,串联起记忆深处所有细碎的美好。
引入空间自然光和空间大面积的落地玻璃加以修饰,延伸出不同的水影之形、水镜之形,让具象空间演变为抽象空间,酝酿出一首极具写意韵味的抒情诗。
洽谈区空间,以纯粹清透的高级灰,配以质感柔软色系的地毯,偶尔点缀木饰面,作为视觉语言,凸显现代设计的妙笔。开放式的布局打破空间的界限,点、线、面穿插运用于整个空间,并伴有中式的对称美学,增添空间的秩序与动感。
时间经过空间流淌成一首暧昧的诗,光与物质被格栅稀释后重新糅合到一起形成一个温和静默的状态。舒心、韵致的空间里充满着现世安稳岁月静好的平和感受。竖向平行线条作为介质模糊了物像的边缘,朦胧的视觉效应唤起了围绕光与影、实与虚之间的对话。
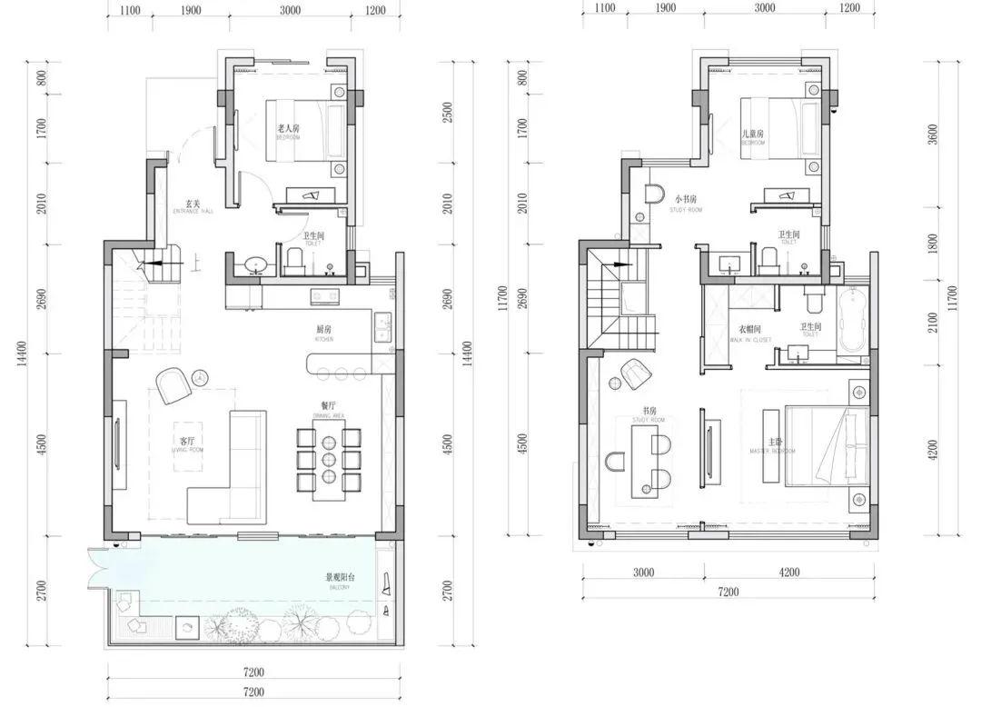
△原始平面图
△平面布置图
通过室内设计的布局调整,让售房部展示区、工作区区隔更明显,人员动线更合理。用设计为空间赋予更多的意义。
02.
B1 户型 样板间
“大千起灭一尘里, 未觉杭颍谁雌雄” —苏轼
在设计之初,这一首词就在心中萦绕。当历史的烟云划过现存的记忆,我们该选择怎样的空间设计,去表达心中的那份对东方之蕴的爱慕呢?
现代东方——这一厚重且浓烈的艺术美学叩响心扉。
白日喧哗,落地成埃,东方传统室内装饰艺术的特点是总体布局对称均衡,端正稳健,而在装饰细节上崇尚自然情趣,花鸟、鱼虫等精雕细琢,富于变化,充分体现出中国传统美学精神,它是钟情怀念过去传统文化和当代文明的双重审美情趣,也代表着东方文化回应西方文化的一种态度。
用现代东方的设计语言,融合时间、空间、自然与人的关系,营造意境,并以艺术表达对生活方式和细节的阐释,于共生中见生活美意,成了新一代美学空间本应具备的气质。这也是传统东方文化在当前时代背景下的演绎,是对东方文化充分理解基础上的当代设计。
现代东方,不仅仅是对于传统东方元素的提炼,更是融入现代设计的手法和理念,两者巧妙结合,用当代居者的心思考和探索东方美学的过去未来。
山水之韵律,融入其中。无论身处何时,人在何方,内心深处总会拥有最为熟悉的一切。一道菜、一个茶杯、一把椅子或是一个不起眼的摆件,在熟悉的氛围中,我们是放松的、温暖的、感动的、醉心的。
△效果图
屏障化繁为简镶嵌得恰到好处,透过造景,营造出东方韵味特有的“移步换景”之美。寻梦、踏浪、觅林,归梦,山海之间,心之所往碧海扬波。在繁忙的现代都市,寻一方心灵的归处。
手抚琴天籁静,月霜露冷挹清尘。家具,窗棂,布艺,格栅,陈设,床品舒缓灵动的线条静心不失质感的艺术效果才是现代东方的格调。
当人文画卷都随着硝烟散去,历史终归已入尘土。我们该选择怎样的生活空间,去表达心中的那份对东方之蕴的爱慕呢?是一炉焚香的宁静安详,还是一件家具的别致典雅,其实都是以极富韵味的方式表达着。
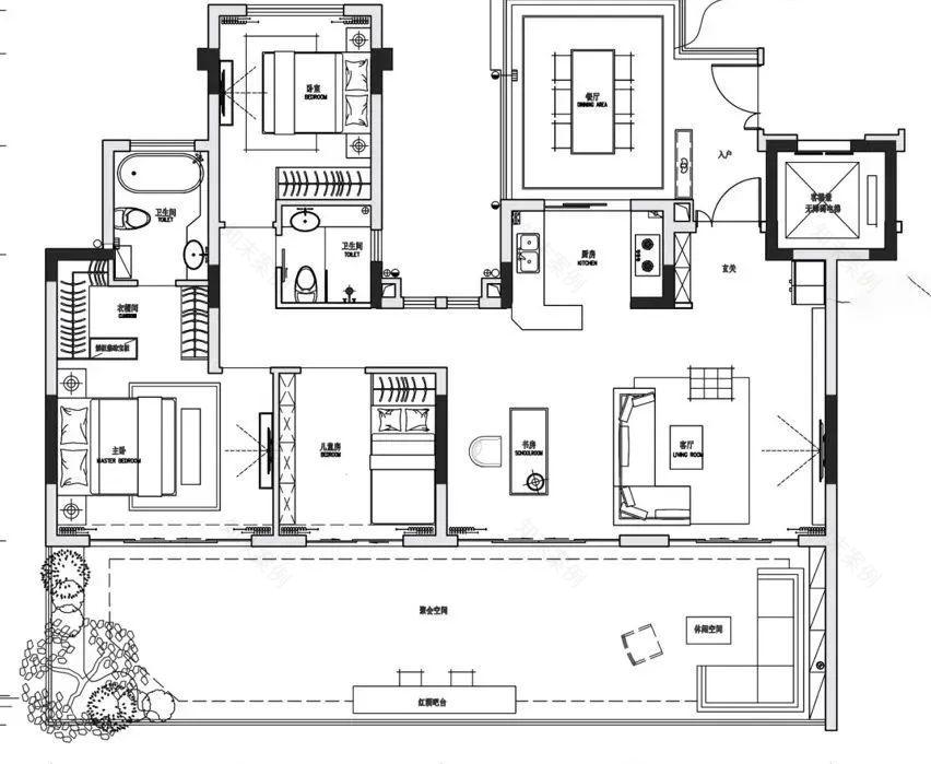
△户型图
03.
B3 户型
每个人都向往有一个安静的角落,可以静下心用自己的节奏感受生活的美好,即使在纷扰忙碌的都市,也能回归初心。
凯万同 东海·鼎山府
项目位于重庆沙坪坝,容积率仅 0.4,在社区内部打造了约 2.6 万方融合了现代轻奢的精致园林,同时利用原生坡地,拾台而上,一字型布局,户户无遮挡,与自然亲近融合。
借此,本案设计也基于自然的态度,将自然的情感顺势引入,化繁为简,以更简约的方式表达对生活、对自然更浓烈的热爱。——化繁为简的诗意 是生活奏鸣曲
简约主义源于 20 世纪初期的西方现代主义,将设计的元素、色彩、照明、原材料简化到最少的程度,但对色彩、材料的质感要求很高。因此,简约的空间设计细腻而含蓄,却往往能达到以少胜多、以简胜繁的效果。
白色+木色,最简单的室内设计流行元素,却在光线与空间的结合下形成一股典雅的韵味。
温润的木质元素贯穿全室的每个角落,令空间更加整体协调。于一草一木的掩映间,在人与景的共存下,我们得窥生活的无声广阔。
餐厅沿用温润的原木色调,温柔的配色让温暖与高雅并存,营造了自然舒适、温馨恬静的用餐空间。
△效果图
餐厅和生活阳台之间用通透细腻质感的夹丝玻璃做隔断,既延伸了空间视觉,又最大化地将光线保留到室内,空间更加宽敞明亮、舒张通透。
有阳光照拂的卧室,越是简单越是高级,不用做过多的陈设,在属于自己的天地里享受自然最原本的状态。卧室的采光极其敞亮,为空间营造浪漫和典雅的格调,色调的摘选都为浅色和米白色,让空间的诗意呈现到极致。
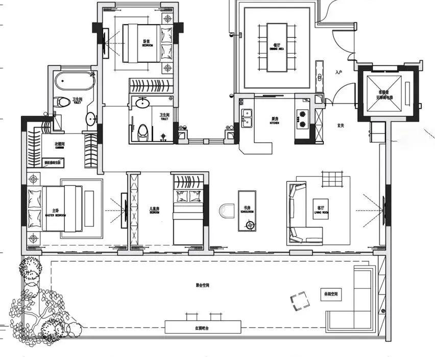
△户型图
非表象,境随心。美感不能仅浮再表象,更要能与内心共鸣。
海力设计
历数十载,成海之力。
海力空间设计,是始于 2001 年的专业室内设计品牌,旗下拥有专业空间设计公司及专业软装配饰设计公司,由 130 余人组成的海力团队,囊括了上百名方案设计师、绘图师。服务范围包含销售中心、样板房、精装房、公共空间、酒店空间、办公空间以及商业空间等。作为重庆最早的专业设计企业之一,海力先后荣获了国际建筑景观室内设计大赛、中国室内空间环境艺术大赛等众多国家级赛事的专业奖项。19 载发展,海力合作企业已逾百家,设计作品遍布全国及部分东南亚国家,与融创地产、中梁集团、中南置地、北大资源集团、首开集团等众多企业为长久战略合作伙伴。
获奖情况:
海峡两岸四地大赛奖
IDA 国际室内设计大奖赛金奖
陈设中国晶麒麟奖
国际建筑景观室内设计大赛奖
中国陈设专业委员会会员
亚太室内设计双年奖
广州国际建筑景观室内设计大赛金奖
中国室内空间环境艺术设计大赛银奖
重庆设计风云榜年度杰出设计机构
重庆市办公空间室内设计大奖赛金奖
金瓦奖室内商业空间类别金奖
办公室内设计大赛金奖
金瓦奖最佳地产展示空间
金瓦奖最佳室内空间概念
代表作品:
卓越皇后道销售中心:《2019 中国十大作品(居住类)》榜单
融创九天一城售楼部:金瓦奖最佳设计概念奖
融创华城 A-ONE:重庆第一高楼
凯德来福士广场:中国第一座“横向摩天大楼”
中南上熙府别墅:现代美学艺术典范
北大资源紫镜府售楼:TOP 级“府系宽境大宅”
客服
消息
收藏
下载
最近

















































