查看完整案例

收藏

下载

翻译
Architects:Jettaliving
Area:1000m²
Year:2022
Photographs:Mario Wibowo
Lead Architects:Jefri Buntoro
Structural Consultants:Hadi & Associates
Interior Designers:Jettaliving Design Studio
Lead Team:Arthuro Marki
City:Jakarta
Country:Indonesia
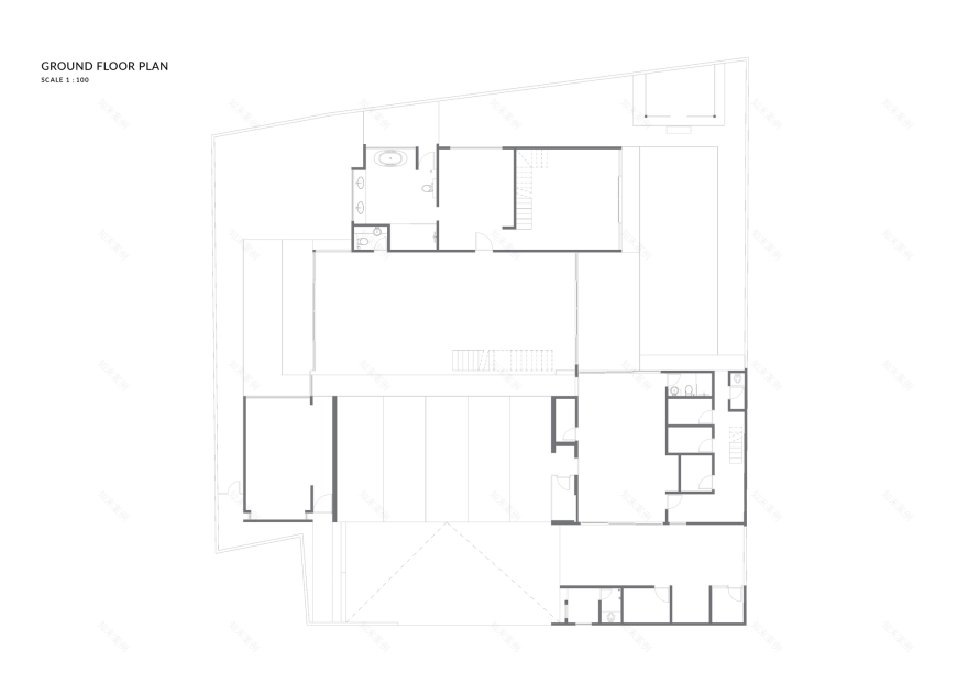
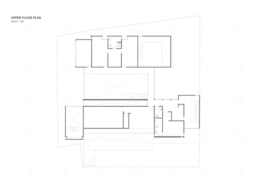
Text description provided by the architects. Located in Jakarta, EA residence designed to accommodate a single family on a 1000 square meter asymmetrical site involves a sophisticated interplay of spatial organization, materiality, and contextual sensitivity. The architectural concept revolves around creating a tropical, contemporary home with a resort-like ambiance, achieved through a minimalist and timeless design language. This residence emphasizes openness and fluidity, with a focus on natural light, cross-ventilation, and seamless integration of indoor and outdoor spaces, all while respecting the unique demands of its tropical elements.
the zoning of the house is defined between the public and private space at both levels. The first half of the layout serves for public use such as meeting room, utility, garage, and guest room while the latter half of the layout serves for private use such as bedrooms. The center of the layout is a spacious, open-plan living area, characterized by a two-story height ceiling that connects both of the zones. This double-height living space serves as the focal point of the residence, emphasizing vertical connectivity between levels and allowing natural light to enter the living area. Expansive glazed openings are used to blend the boundaries between the interior and the exterior, extending the living space onto both of the terraces.
Natural materials such as stone and wood are used for the façade as the main theme for the resort-like ambiance. Louvered screens are also used for the façade as an integral part of the design, giving passive cooling and creating a comfortable indoor temperature. This combination and a restrained color palette create an elegant and timeless design while preserving the tropical ambiance of the overall residence.
Water features are placed at both sides of the living space to further enhance the resort-like ambiance and the indoor view. The pool is placed at the larger portion of the outdoor space serving the living and dining space while the fish pond is placed at the opposite end of the living room for the foyer and the entrance of the house. These outdoor spaces are designed as an extension of the interior, creating a continuous experience of retreat and relaxation.
Project gallery
客服
消息
收藏
下载
最近




















