查看完整案例

收藏

下载

翻译
Architects:TON Architects
Area:103m²
Year:2024
Photographs:Ton That Hoang Anh
Lead Architect:Ton That Hoang Anh
Design Team:Le Huu Van, Ho Sy Thong, Nguyen Van Trung
City:Hue
Country:Vietnam
Text description provided by the architects. Situated in a small alley in the heart of Hue city, Ton Corner - a coffee shop that embodies an open and dynamic spirit, is inspired by the simple life of small street corners. The original small, deteriorating house was demolished to raise the foundation to prevent flooding. Since the land is leased on a short-term basis, the project is built with a steel structure with the main covering materials being corrugated iron, old wood, and tempered glass. Corrugated iron is considered a roofing material and is only used for covering industrial works. In humid, rainy climates like Hue, people use corrugated iron to cover the outside walls of their houses to prevent water seepage, However, using corrugated iron without proper aesthetic and technical treatment will cause the house to lose its original aesthetic value, even creating a shabby appearance in the urban landscape.
Corrugated iron and old wood are two contrasting materials but complement each other as a whole, ensuring the space feels neither too cold nor outdated, both materials are well-suited for the climate and construction conditions in Hue. In fact, there are many types of corrugated iron, we chose corrugated iron because of its softness and flexibility when covering a large area.
The design plan for the space for the project aims for ventilation, creating an open and dynamic spirit, a new atmosphere for a city where people are still heavy with nostalgia and old-fashionedness. Although glass is used a lot, the project is not exposed to sunlight because it is surrounded by houses and trees. The high space makes the user not feel stuffy due to the compact size of the project, and at the same time clearly sees the beauty of the green spaces before and after the project.
By establishing a seamless flow from the front alley through the interior and to the back of the land, making everything as open and airy as possible. The old fence was demolished so that the boundary between inside and outside almost disappeared, replaced by a long bench that occupies the entire width of the facade to create a soft boundary connecting and attracting people into the space.
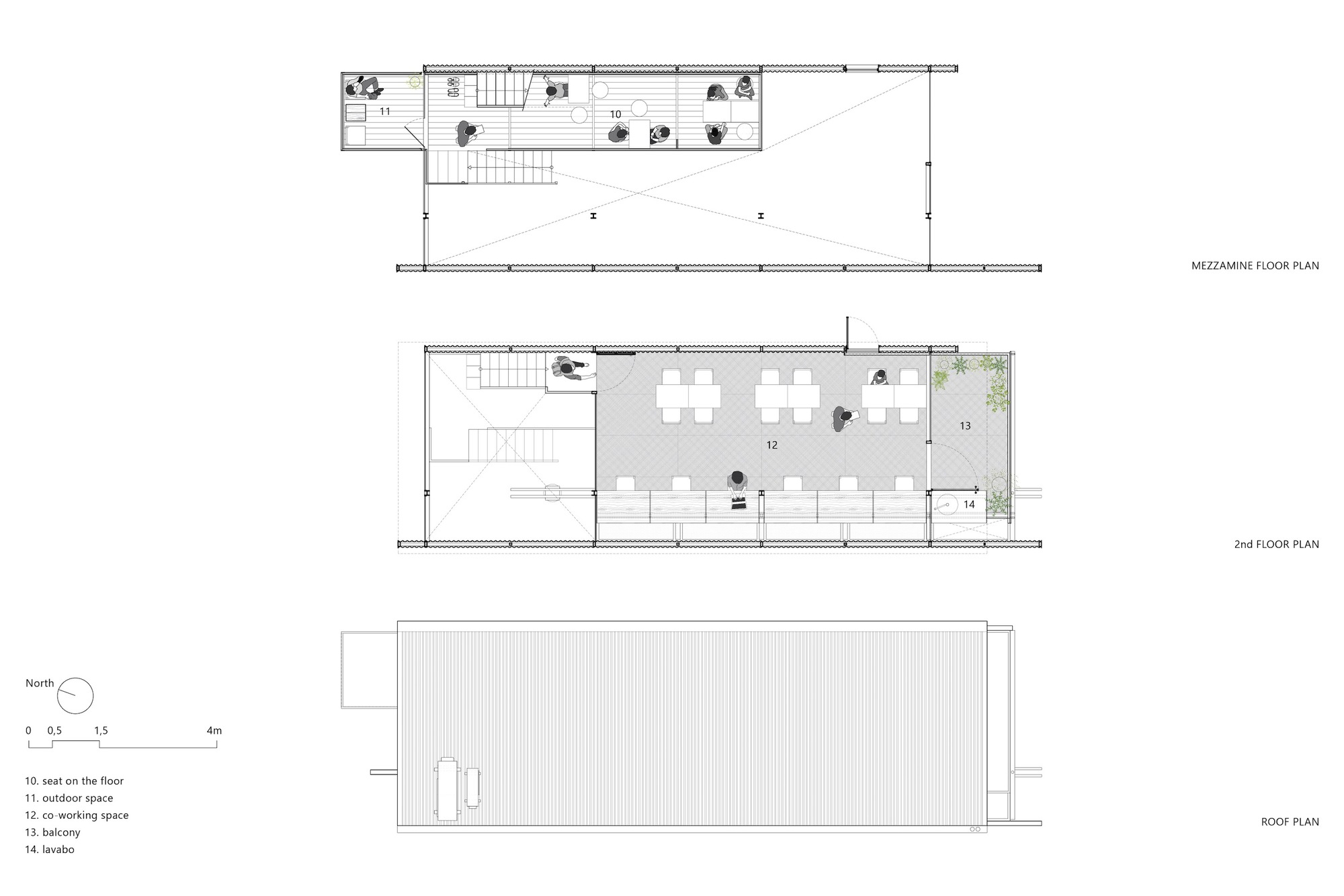
The indoor coffee bench connects to the back garden, creating more flexibility, coherence, and dynamism. The service block is designed with a steel frame and covered with old wood, arranged in a linear block to maintain a clean and organized aesthetic. The two-story, one-mezzanine structure allows for more usable area and seating while still creating an interesting experience in the space for users. Above the service block is a low-seat coffee space for customers who need closeness, coziness, and privacy. The second floor has a high floor level, which is a space for customers who need quiet to work, study, or organize workshops, group work, etc. The second-floor space creates a closeness and coziness like the attic of a house, with a clear view of the surrounding neighborhood.
By researching and using steel structures and sustainable materials suitable for local conditions, the project has contributed to improving people's awareness of the use of popular and readily available materials on the market, seemingly simple and temporary, if used carefully and appropriately, it can still be effectively applied in residential and commercial construction, to save construction time, limit emissions to the environment during the construction process.
Project gallery
Project location
Address:Hue, Vietnam
客服
消息
收藏
下载
最近





























