查看完整案例

收藏

下载
01 背景:始于实验,不止于实验
01 Background:Starting from experiment,but not limited to experiment
过去 10 年间,上海市实验学校(SES)以“空间实验”视角实施了“美丽校园计划”,拓展了存量校园的潜能,丰富了校园生活,加强了空间与教学的匹配度。
但是,受制于改造项目特有的结构、工期、规模限制,许多设想依然无法完整呈现。
学校寄希望在嘉定新城分校(上实嘉分)这一增量空间项目中,将美丽校园计划进行全面升级和应用。
©大观景观
Over the past 10 years, the “Beautiful Campus Plan” of Shanghai Experimental School(SES) has revitalized the old campus, enriched campus life, and strengthened the adaptability of space and teaching. However, many visions cannot be fully presented due to strict site conditions and timetables. The school tried a possibility that the plan could be upgraded more completely and extensively in the Jiading New City School(JSES).
▼项目鸟瞰,Aerial view©金笑辉
上实嘉分(JSES)位于人口快速导入的嘉定新城,是上海“优质扩容”背景下推动建设的高品质学校之一。这是一所与众不同的“跨界的学校”,从城市角度,学校的空中连廊跨越了地块和道路的边界;从项目角度,校方的全过程介入跨越了教育和设计的边界;从空间角度,建筑、室内、景观跨越了各自的专业边界,融为一体。
▼基地原状,2021 年 3 月,original site on March 2021©大观景观
As one of the “high-quality expansion” schools in Shanghai, JSES is located in the New City with the fastest population growth. Derived from the spirit of “experimentation”, it can be regarded as a “Cross-border School”. For the city, the campus crosses the urban road boundary; for the project, the full-stage participation of the school principal crosses the boundary of education and design; for the space, the professional boundaries of architecture, interior and landscape are crossed and integrated.
▼上实美丽校园计划(2015-2024),JSES school beatify movement©大观景观
▼跨越道路边界的校园,campus across the boundary©金笑辉
▼校园与街道,campus and streets©金笑辉
源于总校独特的创新特质和办学理念,上实嘉分包含了教学、艺术、体育、未来、学习等核心模块,结合基地条形机理和周边现状元素,形成“一体、两翼、三轴”的立体式集约化布局。位于不同楼层的南北通道将各模块连接,建构出一个互相通达、紧密连接的校园。
▼校园总体规划,campus planning©大观景观
The school’s teaching, art, sports, future, and learning center building modules form a composite layout of “One Body, Two Wings, and Three Axes” based on the shape and environment of the site. Multiple north-south passages on different floors connect all buildings and create a convenient and accessible campus.
▼立体式集约化的建筑布局,a composite layout©金笑辉
▼步行优先的校园,the concept of pedestrian priority©金笑辉
学校提供丰富多元的室内外活动空间,并充分融入步行优先以和儿童友好理念。正如校长为新生介绍学校时所说,“这里是一座孩子学习的乐园,每一处都可以发生学习,有趣的知识可以用各种方式来学习”。
▼多层次的步行系统,multi-level pedestrian system©大观景观
The school has a variety of indoor and outdoor activity places that integrate the concept of pedestrian priority and child friendly. As the principal said when introducing the school to the new students, “This is a paradise for children to learn. Learning can happen everywhere, and interesting knowledge can be learned in various ways.”
▼活动的乐园,activity space©金笑辉
▼儿童友好的空间,the concept of child friendly©金笑辉
▼学习的自然发生地,spontaneously learning space©金笑辉
02 一体:共享链接的街区综合体
02 One Body:A mixed-use street-building complex
面对独立的两个地块,设计提出“街区综合体”策略,通过空中连廊和城市道路空间形成一个复合型空间。连接起中、小学两个地块,以“分而不离“的方式形成一体化校园。空中连廊基于常规过街天桥,通过本体、廊中廊、屋顶花园实现两个校区在二层、三层、四层的连接,结合延展出的二层室外平台、屋顶花园形成了多层次的步行体系,让两个校区的连接更为紧密。所有主要连接通道的尺度基于 MassMotiion 人流动线拥挤度预测进行设定。
▼街区综合体策略,a “Block Complex” strategy ©大观景观
▼MassMotion 预测的人流动线,MassMotion predicted circulation©大观景观
For the two independent plots, the design proposes a “Block Complex” strategy that includes Sky corridors and street public spaces to form an “independent but not separated” campus. The lobby, hanging bridges and roofs of the Sky Corridor connect the two campuses on multiple floors.
▼空中连廊与城市街道,Sky Corridor and urban streets©金笑辉
▼结合多功能厅的空中连廊本体,Sky Corridor combines with the multi-functional hall©金笑辉
▼可连接三层的廊中廊,A gallery-within-a-gallery that connects three floors©金笑辉
▼连接四层的屋顶花园平台,roof garden terrace connects the forth floor©金笑辉
街道花园位于学校围墙之外,通过退让红线提供近 3000 平方米的公共空间,可以与周边社区错峰共享使用,令校园与城市生活互为风景。
▼退让红线扩大的公共空间,Setting back the expanded public space of the red line©大观景观
The Street Garden set back from the property line creates a public space of nearly 3,000 square meters, which can be shared with the surrounding community at different times. The Waiting Garden in the school is equipped with a children’s playground, and the glass wall is convenient for parents to observe. Interactive devices installed on the wall, such as seesaws and megaphones, create emotional connections for people inside and outside the school, making the campus and community life mutually scenic.
▼学校与社区共享的街道花园,The Street Garden shared with the community©金笑辉
▼连廊下方的休闲空间与等候花园,The Waiting Garden under the corridor©金笑辉
等候花园位于学校围墙之内,通过设置儿童游乐空间提升接送环节的体验。玻璃围墙方便家长观察,可校内外互动的装置增加了空间的趣味性,也加强了情感连接。
▼接送友好的等候花园,The waiting Gardenfor parents to observe©大观景观
The Waiting Garden in the school is equipped with a children’s playground, and the glass wall is convenient for parents to observe. Interactive devices installed on the wall, such as seesaws and megaphones, create emotional connections for people inside and outside the school, making the campus and community life mutually scenic.
▼学校周围环境,surroundings©金笑辉
03 两翼:学习中心和未来中心
03 Two Wings: Learning Center and Future Center
贴合城市道路是小学中学东、西两翼片区,分别设置学习中心和未来中心,是学校使用率最高的门户区,通过建筑、公园、平台组合出丰富的层次和变化。
▼场地策略,site strategy©大观景观
▼空间平面模型,spacial model©大观景观
The east and west wings, adjacent to both sides of the city road, are the most frequently used areas of the school, combining buildings, parks and ramps.
▼一体连接两翼的学习中心和未来中心,Learning Centre and Future Centre connecting the two wings in one body©金笑辉
▼空中俯瞰,Ariel view©金笑辉
西翼片区的学习中心是传统学校图书馆升级而来的新型学习空间,面向低、中、高三个年龄段,集合了独立学习、合作讨论、群组分享、研修拓展等多元场景。四至五层为复合使用的行政与会议中心,通过空中连廊和屋顶花园实现与中学部的互通。南侧户外的学习花园是可进入的“非正式学习空间”,学生们可以在轻松舒适的氛围中休憩、讨论和交流。
The learning center in the west wing is an innovative learning space for low, medium and high age groups, upgraded from the traditional school library. The fourth and fifth floors are a composite administrative and conference center. The outdoor learning garden on the south side is an “informal learning space” for students to rest, discuss and communicate in a relaxed atmosphere.
▼融入平台和公园的学习中心建筑,Learning centre building integrated into the terrace and park©金笑辉
▼学习中心内部的三层共享大厅,Three levels of shared halls within the Learning Centre©金笑辉
▼多样化的学习场景,Diverse learning scenarios©金笑辉
▼学习中心与学习花园,Learning center and Learning garden©金笑辉
▼可供户外讨论交流的学习花园,Learning gardens for outdoor discussions and exchanges©金笑辉
▼学习中心与行政中心叠加复合,Learning Centre and Administration Centre Overlay Complex©金笑辉
东翼片区的未来中心采用叠加式设计,拓展出满足会议、报告、演出、展览等多功能空间。首层以“深空探索”为主题,定位为正式的 380 座黑剧场;二层以“明亮自由”为主题,定位为非正式的白剧场,提供 300 余个开放式台阶座位,两侧嵌入相对独立的独立讨论区。周边宽阔的回廊与墙面提供了充足的展陈空间。
The future center in the east wing area forms a multi-functional space for meetings, reports, performances, exhibitions, etc. through a superimposed design. The first floor is a formal 380-seat black theater with the theme of “Deep Space Exploration”; the second floor is an informal white theater with the theme of “Bright Freedom”, providing more than 300 open step seats, surrounded by independent glass discussion cabins. The wide corridors and walls outside the theater provide a lot of exhibition space.
▼明亮自由的未来中心白剧场,white theater with the theme of “Bright Freedom” ©金笑辉
▼支持学生自主使用的开放型空间,Open spaces that support independent student use©金笑辉
▼嵌入式独立小空间,Built-in small space©金笑辉
▼未来中心黑剧场,black theater©金笑辉
▼黑剧场外围的科创走廊,corridor of the black theater©金笑辉
▼两翼的入口花园,the entrance garden at both wings©金笑辉
东西两翼的步行主入口均采用公园式设计,以丰富的植物实现“开门见绿”,通过舒缓的坡道接入二层平台实现互通连接。小学部以螺旋波纹为主题,结合坡道设置环形下沉式大树剧场,中学部采用简约的折线,提供穿越树林的体验。坡道中段的实验小熊的雕塑,以各自的形态为公园增添了趣味元素。
The two main entrances of the school are designed with the concept of a park. The primary school is themed with spiral waves, with a circular sunken tree theater in the center, and the middle school is themed with turning lines, hidden in the woods. The sculpture of the experimental bear in the middle of the ramp brings interesting elements to the park in its own form. The two wings can be quickly connected and shared through the park.
▼小学部的螺旋公园,Spiral Park in the primary section©金笑辉
▼坡道上迎接学生的实验小熊,The sculpture of the experimental bear welcomes students©金笑辉
▼中学部的折线公园,Zigzag Park in the secondary section©金笑辉
▼接入未来中心的折线公园,Zigzag Park connects the future center ©金笑辉
设计采用步行优先的理念,将街区综合体与校区两翼连接,拓展为整个校园的步行动线,为天性活泼好动的儿童,提供安全、舒适、便捷的步行体验。
The concept of walking priority is applied to the circulation of the moving line. The campus pedestrian entrance is connected to the sky corridor through ramps and platforms, and extends to the entire campus, providing children with a safe, comfortable and convenient walking experience.
▼接入未来中心的折线公园,Zigzag Park connects the future center ©金笑辉
04 南轴:“两室一厅”生成的教学空间
04 The South Axis: Teaching space generated by “Two Rooms and One Hall”
南轴包含沿河设置的教学楼和公共空间,为教室及教师办公室提供最优朝向和景观。教学楼的每个楼层由三组“两室一厅”特色学习模块组成。“两室一厅”指每两间标准教室共享一间讨论厅,是最具上实教育创新理念的空间设定。两个小班即为一个大班,小班之间可实施分层走班教学,支持大班级授课、分组教学、个别指导等多种课堂组织形式。教师组成跨学科教学团队,实施跨学科主题教学。
▼场地策略,site strategy©大观景观
The South Axis includes teaching buildings and public spaces set up along the river, where classrooms and teachers’ offices have the best orientation and landscape. Each floor of the teaching building contains three sets of “two rooms and one hall” modules (every two standard classrooms share a small discussion hall), which is the space with the most innovative educational concepts. Through the connection of the “hall”, two small classes can be combined into one large class, which supports hierarchical class teaching. This model also supports a variety of classroom formats such as large class teaching, group teaching, and individual instruction by interdisciplinary teachers.
▼由“两室一厅”模块生成的教学楼,“two rooms and one hall” modules composed of the teaching building©金笑辉
每间标准教室配储藏室,充分收纳学生日常物品,令教室空间更具有灵活性,通过课桌组合可支持多种教学场景;讨论厅位于两间教室之中,设置移门,可根据需求独立或共享。老师以工作团组为单位,可以在讨论厅办公,增加老师间、师生间的交往互动。
▼“两室一厅”教室模块,”two rooms and one hall” modules©大观景观
▼教室的设计点,design point©大观景观
The classrooms are equipped with storage rooms to fully store students’ daily items, making the classroom space more flexible. A discussion hall with sliding doors is set between the two classrooms, which can be closed for individual use or opened for shared use according to teaching needs. Teachers work in groups in the hall, which can increase the interaction between teachers and students.
▼两间教室通过讨论厅可全部连通,discussion hall connects two classrooms©金笑辉
▼组合式课桌布局的教室,Classroom with modular desk layout©金笑辉
▼多功能的讨论厅,multifunctional discussion hall©金笑辉
▼打开教室移门后的讨论厅,discussion hall after opening the sliding door©金笑辉
教学楼走廊采用加宽设计,满足学生课间休憩、活动与交流需求;学生卫生间采用对儿童更友好的配色和装饰元素,一楼针对低年级特别配备小尺寸洁具;小学部台阶高度特别降低为 120mm,更为安全舒适。
The corridor of the teaching building is widened to meet the needs of students for rest, activities and communication during class breaks. The color matching and decorative elements of the student bathroom are more child-friendly, and the first floor is specially equipped with small-sized sanitary ware for the first grade. The height of the steps in the primary school is reduced to a safer and more comfortable 120mm.
▼教学楼走廊,The corridor of the teaching building©金笑辉
▼支持多种活动的教学楼走廊,The corridor supports various activities©金笑辉
▼融入儿童友好元素的低年级卫生间,junior bathroom combines with child-friendly elements©金笑辉
▼降低高度的小学部台阶,Reduced height primary school steps©金笑辉
教学楼走廊北侧的围合型小庭院,增强了自然采光和景观互动。室外的游戏花园和放松花园位于教学楼南侧,景观化的消防通道结合下凹绿地和滨水空间形成疏朗、通透的花园,日常可作为休闲活动场地。花园出入口与教学楼首层“讨论厅”完全互通,方便学生进出。室内外地坪采用一体化的无高差处理,满足全域无障碍。教学楼的屋顶全部设计为可进入的花园,为高楼层的学生提供视野开阔、就近的户外活动空间。
The small courtyard space outside on the north side enhances natural lighting and landscape interaction. Adjacent to the school building is a games garden and a relaxation garden. The fire escape is landscaped, combined with the concave green space to form a transparent garden for daily activities. The entrance of the garden is connected to the “Discussion Hall”, which makes it easy for students to enter and exit. The design of no height difference between indoor and outdoor floors ensures barrier-free access throughout the campus. Almost all school building roofs are designed as outdoor gardens and activity spaces with expansive views.
▼围合型小庭院,The small courtyard space©金笑辉
▼教学楼北侧的下沉庭院空间,
sunken courtyard at the north side of the teaching building©金笑辉
▼教学楼南侧的游戏花园,Play garden on the south side of the school building©金笑辉
▼教学楼南侧的放松花园,Leisure garden on the south side of the school building©金笑辉
▼教学楼屋顶花园,roof garden of the school building©金笑辉
05 北轴:艺术中心和体育中心
05 The North Axis: Art Center and Sports Center
学校的大体量单体建筑与北侧香樟林形成了北轴,降低了城市道路对于校园内部的噪音干扰,也形成了简约的校园空间天际线。分层的建筑退台增加了校内外空间的对话。
▼设计策略,design strategy©大观景观
The large single building of the school and the Camphor Forest on the north side form the North Axis, which reduces the noise interference of urban roads on the campus and forms a simple campus space skyline. The layered building setbacks establish a dialogue with the city.
▼校园北侧的大单体建筑,Large single building on the north side of the campus©金笑辉
▼立体叠加的艺术中心,Three-dimensional superimposed art centre©金笑辉
艺术中心通过集约化设计,融合了剧场、教室、餐厅等多种功能。山崖剧场造型源自岩石山体的断面,创造了不同于传统剧场的生动和趣味性。二楼低区出入口设置艺术会客厅,是连接教学楼和餐厅的过渡空间,三楼高区出入口的艺术大厅是鼓励师生自主布展、活动、使用的艺术空间。
▼垂直与水平复合的山崖剧场/音乐大厅,Vertical and Horizontal Composite Cliff Theatre/Music Hall©大观景观
Through intensive design, the Art Center integrates multiple functions such as theater, classrooms, and canteens. The rock-like mountain finish of the Mountain Cliff Theater creates a unique art and interest. The art lounge on the second floor is a transitional space connecting the teaching building and the dining room, and the art hall on the third floor is an art space that encourages teachers and students to use independently.
▼山崖剧场,Mountain Cliff Theater©金笑辉
▼山崖剧场的进入通道,access to theMountain Cliff Theater©金笑辉
▼低区入口的艺术会客厅,Art parlour at the entrance of the lower area©金笑辉
▼高区入口的艺术大厅,Art parlour at the entrance of the higher area©金笑辉
▼艺术中心位于二楼平台的入口,art center at the entrance of the upper platform©金笑辉
音乐教室位于剧场西侧,围绕采光穹顶的音乐大厅设置。8 间曲线形的教室以螺旋楼梯上下相连,为空间带来独特的艺术氛围。屋顶的星空花园为学生们提供多种规格、丰富有趣的户外音乐和表演空间。
The music classroom on the west side of the theater is set up around a concert hall with a light dome. Eight curvilinear classrooms are connected by spiral staircases, giving the space a unique artistic atmosphere. The rooftop Star Garden provides students with a variety of interesting outdoor music and performance spaces.
▼螺旋楼梯,spiral staircases©金笑辉
▼采用自由外形的音乐教室和公共空间,Adoption of free-form music classrooms and public spaces©金笑辉
▼音乐教室内部,inside of the music classrooms©金笑辉
▼支持户外音乐教学的屋顶星空花园,A rooftop star garden to support outdoor music instruction©金笑辉
学生餐厅位于艺术中心一层,提供超过 1000 个座位,采用标准与特色多餐区组合的模式,既满足高效率的集中式就餐需求,又创建简约舒适的空间环境。朝向花园部分采用落地折叠门,良好的采光和景观,可转换为面向师生的非正式学习空间。
On the first floor of the Art Center is a multi-purpose student cafeteria, providing more than 1,000 seats, and the multi-dining area mode meets the needs of efficient simultaneous dining. The seating area facing the garden is floor-to-ceiling folding doors with light and views that can be converted into informal learning spaces for teachers and students.
▼学生餐厅,student cafeteria©金笑辉
▼支持自助餐模式的空间布局,space layout supports the buffet mode©金笑辉
▼融入花园的室外就餐空间,Outdoor dining space integrated into the garden©金笑辉
体育中心是学校最大的单体建筑,地面、二层、三层均可进入,提供丰富的体育功能,包含一楼的羽毛球排球复合馆、游泳馆,二楼的旱地冰球馆、乒乓馆,三楼的双篮球馆,四楼的多功能体育空间以及屋顶的室外双网球场。大空间的设计还可根据未来体育课程进行布置。
The Sports Center is the largest single building of the school, which can be accessed on the ground, second and third floors, and provides a variety of sports functions, including a badminton and volleyball complex and a swimming pool on the first floor, a dry ice hockey hall and table tennis hall on the second floor, a double basketball hall on the third floor, a multi-functional sports space on the fourth floor, and an outdoor double tennis court on the roof. The design of the large space can also be adapted to future sports courses.
▼体育中心,The Sports Center©金笑辉
▼与教学楼紧密连接的体育中心,The Sports Center connects the teaching building©金笑辉
▼羽毛球/排球馆与公共空间,Badminton/Volleyball Courts and Public Spaces©金笑辉
▼与室外景观互动的游泳馆,swimming pool interacts with the outdoor landscape©金笑辉
▼融入室内空间的北侧香樟林,North side balsam grove integrated into interior space©金笑辉
动感平台位于体育中心二层室外,环绕建筑设置,极大扩展了室内体育空间。蓝色元素和特色座椅带来充满活力的空间体验。位于东北角的趣味滑梯可直达地面,为大体量建筑带来亲和友好的体验。
The dynamic platform is located outdoors on the second floor of the sports center, which is set around the building, greatly expanding the indoor sports space. Blue elements and feature seating create a vibrant spatial experience. A fun slide in the northeast corner leads to the ground level, bringing an intimate and friendly experience to the large building.
▼动感平台,The dynamic platform©金笑辉
▼以北侧香樟林为背景的室外动感平台,Outdoor kinetic platform with a backdrop of balsam fir forest on the north side©金笑辉
▼连接地面的滑梯,Slide connected to the ground©金笑辉
06 中轴:全尺寸贯通的景观廊道
06 Central axis: A Full-size continuous landscape corridor
中轴长度达到 550 米,是一条全开放式设计的景观廊道,融入了两端城市天际线。花园、庭院、天桥、地下、平台空间连接了南北两侧的建筑,创造出最具活力和多变的校园公共活动空间。
▼景观廊道,landscape corridor©大观景观
With a length of 550 meters, the Central Axis is designed as a fully open landscape corridor that runs through the entire campus, connecting to the city skyline at the end. Gardens, courtyards, bridges, platforms, and underground spaces connect the buildings in the north and south axes, creating the most vibrant campus public space.
▼包含丰富场景的中轴景观廊道,A central landscape corridor with a rich scenography©金笑辉
赛道乐园是中轴西端 8000 平方米的无动力乐园,包含运动活力、游乐探索、自然体验三个片区,通过“环绕式赛道”串联,为学生提供充满吸引力的户外活动空间,让成长在游玩过程中自然发生。
地质花园和旱溪栈道融入雨水渗透、收集、再利用等可持续设计。地质花园通过山丘和岩石组合模拟自然地表风貌,鼓励学生参与和感知地球知识。旱溪栈道采用下凹式碎石滩地,暴雨时可以调蓄雨水,日常时学生可进入玩耍。花园中下埋式的雨水收集装置可用于灌溉,能够大幅减少自来水用量。
▼中轴景观廊道,central landscape corridor©大观景观
The Track park is an 8,000-square-meter non-powered park at the west end of the Central Axis with three types of functions: sports, game exploration, and nature experience. The park is connected by a “wrap-around track” to provide students with an attractive outdoor space.
The Geo Garden and Dry Creek Boardwalk incorporate sustainable designs for rainwater infiltration, collection, and reuse. The Geological Garden uses a combination of hills and rocks to simulate the natural landscape and guide students’ interest in the earth. The concave gravel beach of Dry Creek can store rainwater during heavy rains, and students can enter and play during daily life. Rainwater harvesting devices buried in the garden can be used for irrigation and can significantly reduce the amount of tap water used.
▼赛道乐园,The Track park ©金笑辉
▼趣味友好的数字广场,number plaza©金笑辉
▼波浪山丘与云亭,wave hill and cloud pavilion©金笑辉
▼融入可持续设计的花园,Gardens incorporating sustainable design©金笑辉
山谷花园和台地花园利用 5 米的高差形成立体式花园连接二层平台和地面。小学部的山谷花园,借鉴山谷元素设置可互动的水溪台阶和沉浸于植物地被中的山谷步道,嵌入式的山间平台提供了自然课堂空间。
▼具有植物科普功能的花园,Gardens with botanical science©大观景观
The 5-metre height of the second platform and the ground floor is connected by a valley garden and a terrace garden. The Valley Garden, located in the Elementary School, creates a nature classroom with interactive creek steps and a valley walk immersed in plant ground cover.
▼连接二层平台的山谷花园,valley garden connects the second platform ©金笑辉
▼室外的自然课堂,outdoor nature classroom©金笑辉
▼可实现植物多样性的温室花园,Greenhouse gardens for plant diversity©金笑辉
▼餐厅旁的种子景墙,Seedscape wall by the dining room©金笑辉
地下大厅位于地下一层,通过 10 米挑高,集合了体育锻炼、文艺表演、接送集散等多功能。大厅朝草坡花园方向全部打开,实现自然通风与采光。草坡花园将地下大厅与地面连接。小熊雕塑令整个空间更为生动有趣。
光环乐园位于地下大厅上方,通过采光井补充自然采光,可以作为游玩和休憩的空间。采光井将自然光引入地下大厅,减少了照明能耗。
▼地下大厅动物身高景墙,The Underground Hall animal heights wall©大观景观
The Underground Hall is 10 meters high, including sports venues, theatrical performances, pick-up, distribution and other functions. The lobby opens to the garden for natural ventilation and light and is connected to the ground through a grassy slope, where a bear sculpture enlivens the space. The Halo Playground on the roof of the lobby contains multiple playable light wells, providing natural light that reduces the energy consumption of artificial lighting.
▼中轴上多层次的景观空间,Multi-level landscape space on the central axis©金笑辉
▼地下大厅,The Underground Hall©金笑辉
▼地下大厅动物身高景墙,The Underground Hall animal heights wall©金笑辉
▼滑梯提供了多种进入地下大厅的方式,The slides provide a variety of ways to enter the underground halls©金笑辉
▼草坡花园,Grassy Slope Garden©金笑辉
▼地下大厅顶部的光环乐园,lightpark at the top of the underground hall©金笑辉
▼小学部的圆丘采光井,Mound lightwells in the primary section©金笑辉
▼中学部的方丘采光井,
Square Lightwell at the Secondary Section©金笑辉
▼可与学生互动的造型,formsthat allows interaction with students©金笑辉
▼景观空间,landscape space©金笑辉
树桌花园位于中学部校园中心区域,通过林荫乔木与室外桌椅的组合,创造学习、交流、休憩一体化的场景。宽敞便捷舒适的步行通道连接了花园的各功能区。
The Tree Table Garden in the center of the Senior School is a combination of shaded trees and outdoor tables and chairs to create a scene of learning, communication and rest. Spacious and convenient pedestrian walkways connect the various areas of the garden.
▼支持室外休憩交流的树桌花园,The Tree Table Garden©金笑辉
▼树荫下的长桌,The Tree Table Garden under the tree shadow©金笑辉
中学部的台地花园形式更为规整,通过种植花坛、休憩平台与景观台阶营造轻松舒适的氛围,提供户外休憩讨论空间。
The Terrace Garden in the Senior School is more regular, with flower beds and rest platforms of different heights to create a relaxing and comfortable outdoor space for rest and discussion.
▼位于建筑间的中轴廊道,The central axis corridor between the buildings©金笑辉
▼连接二层平台与地面的中学部台地花园,Terrace garden of the secondary section connecting the first floor terrace with the ground floor ©金笑辉
▼台地花园,Terrace Garden©金笑辉
▼支持多种使用方式的平台,Platforms that support multiple usage©金笑辉
▼台地花园中读书的实验小熊,Experimental bear reading in the Terrace Garden©金笑辉
体育乐园是中学部的户外体育活动空间,包含 300 米标准跑道、足球场、球类活动场地以及健身活动器械场地,整体采用充满活力的浅蓝色系。跑道采用深浅双色;看台镶嵌于种植樱花树的草坡山丘中;涡轮升旗台可举办仪式及各种活动,并人性化设置了无障碍坡道。足球场采用柔软而富有弹性的天然草坪,配置 12 组投光灯,具备夜间向周边社区开放的可能性。
The Sports Park is an outdoor sports space at the east end of the Central Axis., including a 300-meter standard running track, a football field, a ball game field, and a fitness equipment field. The park is decorated in a vibrant light blue palette that includes the runway’s dark and light blues. The grandstand blends into the grassy hill planted with cherry blossom trees; The flag-raising platform, which can be used for ceremonies and events, is humanized and equipped with barrier-free ramps. A floodlit football pitch with soft natural grass has the potential to be open to the surrounding community.
▼体育乐园,The Sports Park©金笑辉
▼充足的体育活动空间,Adequate space for sports activities©金笑辉
▼融入城市天际线的中轴,A central axis that blends into the city skyline©金笑辉
总结 Review 跨界的上实嘉分,打破了以往学校仅作为使用方“移交钥匙,拎包入住”的传统。教育与设计融合,兼顾了“城市与课桌”两种尺度,创造出多样化的使用场景,空间的公共性和参与性得到最大程度体现。学校不仅是单栋建筑的简单集合,而是融入对教育的理解,对未来的展望,以及对人与自然和谐共处的思考。“跨界”不是对现有规则的挑战,而是一种创新和发展,造就了充满吸引力的个性化学校。正如一直以来上实对学生的态度:让每一所学校都成为与众不同的自己。
The cross-border JSES school has changed the tradition of “handing over the keys and moving in” as the receiver only. The crossover between education and design creates diverse scenes from the “city to desk” scale, maximizing the publicness and participation of the space. The school is no longer a simple collection of individual buildings, but contains an understanding of education, a vision of the future, and a reflection on the coexistence of man and nature. “Crossover” is not a challenge to existing rules, but a positive innovation that brings a distinctive appeal and personality to each school, just like the SES‘s attitude for every student.
▼跨界融合的校园,Campus for cross-border integration©金笑辉
▼多样化的使用场景,Diverse usage scenarios©金笑辉
▼多层次的空间,Multi-level space©金笑辉
▼人与自然的和谐共处,Harmony between man and nature©金笑辉
▼夜景鸟瞰,Ariel view at night©金笑辉
▼地下一层平面,basement floor plan©大观景观
▼一层平面,ground floor plan©大观景观
▼二层平面,second floor plan©大观景观
▼三层平面,third floor plan©大观景观
▼四层平面,forth floor plan©大观景观
▼五层平面,fifth floor plan©大观景观
▼屋顶平面,roof plan©大观景观
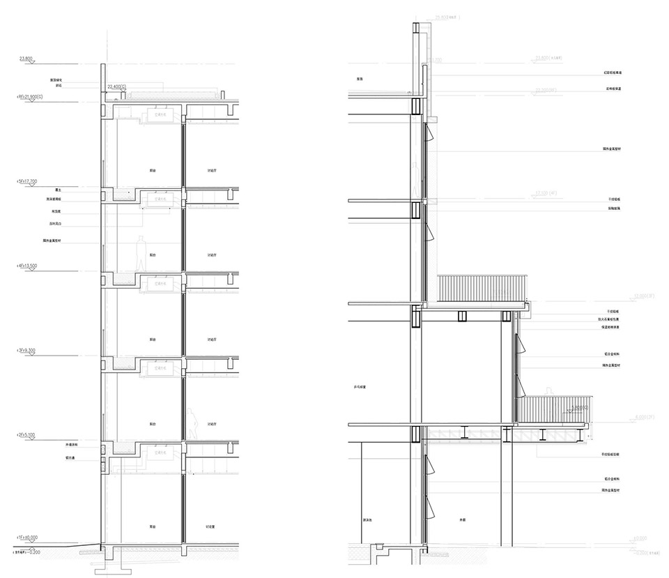
▼小学部剖面,primary school section©大观景观
▼中学部剖面,secondary school section©大观景观
▼教学楼墙身/体育中心墙身,Walls of school buildings/walls of sports centres©大观景观
项目名称:上海市实验学校嘉定新城分校
项目类型:教育,9 年一贯制公办学校(54 班)
项目地点:上海市嘉定新城
用地面积:69417 平方米
建筑面积:77233 平方米
总体顾问:徐红 上海市实验学校校长
项目主持:杨晓青 上海大观
设计单位:建学建筑与工程设计所有限公司
项目负责人:郭鸣
建筑设计:胡盼悦、郑宇飞、钱霖霖、彭炫英
结构设计:徐长海、罗勇培、刘晓莉、魏俊、戴光毅、陈明、李澜萱、程进
室内设计:上海火翼装饰工程有限公司
项目负责人:吴庆华、崔豪
设计团队:张伟、奚进
景观设计:上海聚隆景观设计有限公司
项目负责人:张向阳
设计团队:王骏杰、孙杰、张燕飞、张先之、吕文瑛、尚倩云、潘尔超、邹敏
给排水设计:郑代俊、吴鑫、张月红
暖通设计:吴明、沈卫钢、李晋芝
电气设计:王纪元、姜垚,蒋臻,李松松,成粉强,刘丽,陈邢
绿建设计:郭鸣、李鹤、吴鑫、刘晓莉、姜垚
海绵设计:张月红
标识顾问:萬邦智合(上海)设计咨询事务所
设计团队:陈建、孙俊杰、杨帆、杨超
灯光顾问:上海倘思照明设计有限公司
设计团队:钟鸣、孙雅娟、吴蓉、刘思辰
建设单位:上海市嘉定区教育局
代建单位:上海嘉定住房建设发展(集团)有限公司
施工单位:上海建工五建集团有限公司
建筑材料:金属铝板、预制板、透水混凝土、EPDM
建设周期:2022.9-2024.06
摄影师:金笑辉
Construction period: 2022.9-2024.06
Photographer: Jin Xiaohui
Video material: Shanghai Yunlang Culture Communication Co., Ltd
客服
消息
收藏
下载
最近


















































































































































