查看完整案例

收藏

下载
©️ 然也空间建筑摄影_贾然
缘起:柿子树
Origin: Persimmon tree
黄陂是武汉西北近郊的一个区,多年来就以旅游业为主,成为武汉人的度假后花园。黄陂也是民国第一任总统黎元洪的故乡,他又被称为“黎黄陂”,所以汉口有个很著名的网红步行街叫“黎黄陂路”。好山好水的黄陂,正因为旅游和地产开发的比较早,建筑的风貌有点介于城乡的二元杂糅结合,正如快速发展的其他乡镇一样,成为千城一面的状态。民宿业态也正好在近年在黄陂处于蓬勃发展的状态,黄陂由于离主城区近,主打周末微度假的目的地。暖村的项目地处于黄陂最著名景区木兰山的山脚下的一个小乡镇——长轩岭镇,镇里的建筑沿着木兰大道两侧分布,统一装扮成了灰瓦马头墙的形态,像是涂抹了较厚的脂粉,生活气息很浓,却有着假笑的嫌疑。
Huangpi is a district in the northwest suburbs of Wuhan, which has been dominated by tourism for many years and has become the vacation garden of Wuhan people. Huangpi is also the hometown of Li Yuanhong, the first president of the Republic of China, who is also known as “Li Huangpi” – so there is a very famous Internet celebrity pedestrian street in Hankou called “Li Huangpi Road”. Huangpi, with good mountains and good waters, is precisely because of the early development of tourism and real estate, and the style of architecture is a bit between the duality of urban and rural areas, just like other towns and towns that are developing rapidly, and it has become a state of a thousand cities. The B&B business has also been booming in Huangpi in recent years, and Huangpi is a destination for weekend micro-vacations due to its proximity to the main city. The project site of Warm Village is located in Changxuanling Town, a small township at the foot of Mulan Mountain, the most famous scenic spot in Huangpi, and the buildings in the town are distributed along both sides of Mulan Avenue, uniformly dressed in the form of gray tile horse-head walls, as if smeared with thicker fat powder, the breath of life is very strong, but there is a suspicion of smirking.
▼场地傍晚鸟瞰,aerial view©️ 然也空间建筑摄影_贾然
柿柿如意民宿项目选址在长轩岭镇的南边付家下湾的小山包南侧,从木兰大道需下一段小路,场地有片蚕豆状的老池塘,场地内原有一些年代久远的石头墙根,墙身或是青砖或是夯土砖,屋面小青瓦的旧时民宅。这些老屋一看就让人心生欢喜,感叹当年的村民对一个小村落的选址都如此的风水俱佳,卧虎藏龙。
在我们接手项目之前,甲方已经做了一版方案——围绕院落布置,台地参差。我直言:太像售楼部。现场看地,我把选址定在了村口的一栋百年老宅旁边,老宅只剩一个门脸,内部长满了杂草和树木,树木已经九米多高,可见村落荒废了多久!
The South B&B is located on the south side of the hill in the south of Changxuanling Town, Fujiaxiawan. From Mulan Avenue to the next section of the road, the site has a broad bean-shaped old pond. The site has some old stone wall roots, the wall or green bricks or rammed earth bricks, and the roof of small green tiles of the old houses. These old houses make people happy at a glance, and sigh that the villagers of the time had such valuable for the location of a small village, Crouching Tiger Hidden Dragon.
Before we took over the project, Party A had already made a version of the plan – arranged around the courtyard, and the terraces were uneven. I said bluntly: it’s too much like the sales department. Looking at the site on the spot, I set the site next to a century-old house at the entrance of the village, the old house only has a façade left, and the interior is overgrown with weeds and trees, the trees are more than nine meters high, which shows how long the village has been abandoned!
▼冬天的鸟瞰视角,aeiral view at night©️ 然也空间建筑摄影_贾然
▼冬日雪景,winter scenery©️ 然也空间建筑摄影_贾然
第一次草图,我把老宅规划为项目的客厅,另外再做三栋客房沿着老宅东侧布置,和甲方沟通后发现,改造和加固老宅,成本太大。我突发奇想,觉得老宅的外墙可以留下,在中间没有树木的位置,挖一个泳池,形成另外三个实体建筑的“虚”的对比。最后证明,这个老宅墙垣的留下和泳池的设计,成为这个项目最有冲突感的点之一。
In the first sketch, I planned the old house as the living room of the project, and made three more guest rooms along the east side of the old house. On a whim, I thought that the exterior wall of the old house could be left behind, and a swimming pool could be dug in the middle where there were no trees, forming a “virtual” contrast between the other three physical buildings. In the end, it turned out that the remnants of the walls of the old house and the design of the swimming pool became one of the most conflicting points of this project.
▼老宅剩下的墙垣与泳池,the existed walls and swimming pool©️ 然也空间建筑摄影_贾然
第一次看现场的时候是在夏天,老宅东侧的场地上几颗柿子树已经挂果,青柿子小拳头大小。当即决定要想办法把这些柿子树保留下来,那就要把我们的三栋民宿客房,做做外形的切割和退让,从而把草图中的四方形平面,切成了不规则六边形的状态,倒是符合青柿子五六瓣的形态。等到了初秋十月,柿子红了,方案也基本成熟,我和甲方建议,就叫这个民宿为“柿柿如意”吧。
The first time I saw the scene was in the summer, and several persimmon trees on the east side of the old house had already hung fruit, and the green persimmons were the size of small fists. It was immediately decided to find a way to preserve these persimmon trees, so that our three homestay rooms were cut and retreated, so that the square plane in the sketch was cut into an irregular hexagonal state, which is in line with the shape of five or six petals of green persimmons. In early autumn and October, the persimmons are red, and the plan is basically mature.
▼柿子树下的新与旧,the persimmon tree © 此间建筑摄影_赵奕龙
原型:多孔柱体
Prototype: Porous cylinder
我们将三栋民宿形成一个向着草坪和池塘的围合,从西向东分别是老宅、A 栋、B 栋、C 栋。老宅和 A 栋背靠背,ABC 三栋因为自身的切角形成了形态互补的关系,群体之间又有着一种向心力来统一。ABC 三栋用一个细柱钢结构连廊相连,我把连廊上方的钢构檩条设计成等间距的一个方向,来加强这种向心力。保留的老宅只剩下墙垣,中间的泳池刚好从形态上填补了 ABC 三栋的过重的视觉关系。ABC 三栋正负零处在和老宅同一个水平面上,它们与南侧草坪的高差用看台式台阶来处理,台阶的形态又进一步强化了三栋的向心感。这些台阶周边的挡土墙的毛石,也是取材于村落里垮掉的老房子的墙体毛石。
We formed an enclosure of the three B&Bs towards the lawn and pond, from west to east, they were the old house, Building A, Building B, and Building C. The old house and Building A are back to back, and the three buildings of ABC have formed a complementary relationship because of their own chamfering corners, and there is a centripetal force between the groups to unify. The three ABC buildings are connected by a thin column steel corridor, and I designed the steel purlins above the corridor to be evenly spaced in one direction to strengthen this centripetal force. Only the walls of the old mansion remain, and the swimming pool in the middle just fills the overly heavy visual relationship of the three ABC buildings in form. The plus or minus zero of the three ABC buildings is located on the same level as the old house, and the difference between their elevation and the south lawn is handled by grandstand steps, and the shape of the steps further strengthens the centripetal feeling of the three buildings. The rubble of the retaining wall around these steps is also taken from the rubble of the collapsed old houses in the village.
▼场地日景鸟瞰,daytime aerial view©️ 然也空间建筑摄影_贾然
▼从老池塘看过去的三栋民宿,view from the old lake©️ 然也空间建筑摄影_贾然
▼泳池从形态上填补了 ABC 三栋建筑过重的视觉关系,the swimming pool fills the overly heavy visual relationship of the three ABC buildings©️ 然也空间建筑摄影_贾然
▼正对泳池的客房一隅,framed pool view in the guest area©️ 然也空间建筑摄影_贾然
三栋民宿都是一个平面母体的变异,建筑平面都是 L 形的实体+一个虚的内院。三栋的空间却有着不同的参差:A 栋内院被封了屋顶,开了天窗,形成一个半室外的灰空间;B 栋和 C 栋内院都是露天的,其实露天的内院的顶部开口,只是顶部开洞的另外一种形式而已;B 栋的客厅则贯穿了两层空高,而屋顶也布置了天窗,从而形成了 B 栋弥漫着阳光的艺术馆式的高耸客厅空间。
The three buidings are all variations of a plane matrix, and the building planes are all L-shaped entities + a virtual inner courtyard. The spaces of the three buildings are different: the inner courtyard of Building A has a sealed roof and a skylight is opened to form a semi-outdoor gray space; The inner courtyards of buildings B and C are both open-air, but in fact, the top opening of the open-air inner courtyard is just another form of opening at the top; The living room of Building B is two-storey high, and the roof is also arranged with skylights, creating a skylight in the style of a skyscraper.
▼A 栋内院被封了屋顶,covered courtyard of the Building A
▼B 栋和 C 栋内院都是露天的,opened courtyard of the Building B and C©️ 然也空间建筑摄影_贾然
▼B 栋弥漫着阳光的艺术馆式的高耸客厅空间,a double-height living room of Building B bathed in the natural skylight© 此间建筑摄影_赵奕龙
在立体形态上,三栋的母体是顶面被斜切后的六边柱体;六边柱体的各个立面和顶面则开挖了各种不规则多孔布局,我把这些孔上的玻璃尽量贴外墙布置,以形成体量的雕塑感。
In terms of three-dimensional form, the parent body of the three buildings is a hexagonal cylinder with the top surface obliquely cut; The various facades and top surfaces of the hexagonal columns were excavated with various irregular porous layouts, and I arranged the glass on these holes as close to the exterior wall as possible to create a sculptural sense of volume.
▼六边柱体的各个立面和顶面则开挖了各种不规则的孔,hexagonal cylinder with various openings©️ 然也空间建筑摄影_贾然
窗景:借树入画
A 栋面积最大,一层的层高也刻意被设计得稍微高点,以作为公共餐厅和客厅之用。它面向池塘和入口道路一侧是完全可以打开的落地玻璃折叠门;面向西面的老宅的玻璃窗,落地无框,可以看到老石头墙围合的蓝色马赛克泳池。保留的几棵构树从木地板上生长出来,摇曳在原老宅门的院子里、泳池旁。
Building A is the largest in size, and the floor height of the first floor is deliberately designed to be slightly higher for the use of public dining and living rooms. It faces the pond and the entrance road, and on one side is a floor-to-ceiling glass folding door that can be fully opened. The glass windows of the old house facing the west are frameless to the ground, and you can see the blue mosaic pool surrounded by the old stone walls. A few of the remaining trees grew from the wooden floor, swaying in the courtyard of the original old house gate, next to the pool.
▼可以完全打开的落地玻璃折叠门,fully opened foldable window©️ 然也空间建筑摄影_贾然
▼立面,facade©️ 然也空间建筑摄影_贾然
A 栋二层是两居室的套房,露台的墙体开洞正好把户外保留的柿子树形成了框景。二层客房内的长条窗则开向了门前的法国梧桐的一个枝条,有了横幅国画的即视感。卫生间浴缸边的大无框玻璃窗则对着法国梧桐的主干。这次的开窗是对着每个树木的精心布局——也包括楼梯间转角的窗户,对着建筑后面的树木。
The second floor of Building A is a two-bedroom suite, and the hole in the wall of the terrace just frames the persimmon trees that are preserved outdoors. The long window in the guest room on the second floor can open to a branch of the France plane tree in front of the door, giving it the sense of déjà vu of a banner Chinese painting. The large frameless glass window next to the bathroom bathtub faces the main trunk of the France sycamore, this time for the careful placement of each tree, as well as the window in the corner of the stairwell, facing the tree behind the building.
▼卫生间浴缸边的无框玻璃窗对着法国梧桐的主干,frameless window view of theSycamore©️ 然也空间建筑摄影_贾然
B 栋也是这样,每个窗户都和室外的树木发生关系。B 栋亮点在于两层高的客厅和墙面、顶面多孔的开窗,让光影弥漫在白色的两层空间里。B 栋的另一个亮点,是卫生间单独的圆形浴缸,一侧就是落地玻璃。
The same is true for Building B, where each window has a relationship with the trees outside. The highlight of Building B is the two-storey living room and the perforated windows on the walls and top, allowing light and shadow to fill the white two-storey space. Another highlight of Building B is the separate circular bathtub in the bathroom, with floor-to-ceiling glass on one side.
▼光影弥漫在白色的两层空间里,light and shadow to fill the white double-heoght space©️ 然也空间建筑摄影_贾然
▼室内框景,interior framed view©️ 然也空间建筑摄影_贾然
C 栋一层做了粉色布局;二层结合比较高的层高做了滑滑梯,卫生间马桶上边的横向窗户,也是最佳的取景位置。
我们在窗户的方案上定了一个原则:外墙开窗是无框的大玻璃,内院的窗户就要考虑通风会有分隔。其目的就是保证景观的无遮挡。
The first floor of Building C has a pink layout; the second floor combines the relatively high floor height to make a slide, and the horizontal window above the toilet in the bathroom is also the best location for viewing.
We have set a principle in the window plan: the exterior wall window is frameless and large, and the window in the inner courtyard should be separated by ventilation. The aim is to ensure that the landscape is unobstructed.
▼滑滑梯和横向窗户,the slide and the horizontal window© 此间建筑摄影_赵奕龙
匠心:木纹清水混凝土
Ingenuity: wood grain fair-faced concrete
三栋民宿的外墙都是木纹清水混凝土。在这个方案开始构思的期间,我们另外一个咖啡厅项目正在实践木纹混凝土,从配比、木纹模板选择、打样、全高木模板制作和钢筋绑扎、对穿螺栓选择、混凝土选择、混凝土浇筑和振捣棒的时机,脱模时机、对穿孔的处理、表面蜂窝的处理、外墙保护剂的粉刷等一一在咖啡厅项目中得到实践和验证。因而在柿柿如意民宿这个项目中,我们只是继续实践和验证了这一步骤,也得到了更高的完成度。
The exterior walls of the three B&Bs are all wood grain fair-faced concrete. During the period when this plan was conceived, we were practicing wood grain concrete in another café project. It was practiced and verified in the café project from the proportioning, wood grain formwork selection, proofing, full-height wood formwork production and rebar binding, cross-bolt selection, concrete selection, concrete pouring and vibrator timing, demoulding timing, perforation treatment, surface honeycomb treatment, exterior wall protector painting, etc. Therefore, in The South B&B, we just continued to practice and verify this step, and also got a higher degree of completion.
▼木纹清水混凝土,wood grain fair-faced concrete© 此间建筑摄影_赵奕龙
在开始浇筑的前期阶段,至少浇筑了 7 块大小不同的样板,并在样板上试验了刷涂料、防火剂、保护剂等各种面层处理。不需要保温功能的院子外墙、楼梯间外墙,就是双面木纹清水混凝土;房间外墙就是单面木纹清水混凝土+内保温处理。在浇筑顺序上,完成一层清水浇筑后,等拆模后再完成二层的支模和浇筑,一二层之间用一个工艺缝来分开。木纹混凝土、配合蓝天和大面积的无分隔玻璃窗,给这个建筑一种静谧的氛围;它区别于其他白色盒子民宿的视觉厌倦感,也区别于用乡土材料营造现代民宿的在地性,它和老宅的毛石、青砖形成了对比,也提供了乡村建设的一种新的可能。
In the early stage of pouring, at least 7 samples of different sizes were poured, and various surface treatments such as brush coatings, fire retardants, and protective agents were tested on the samples. The exterior walls of courtyards and stairwells that do not require thermal insulation functions are double-sided wood grain fair-faced concrete; The exterior wall of the room is single-sided wood grain fair-faced concrete + internal insulation treatment. In the pouring sequence, after the completion of a layer of clear water pouring, wait for the removal of the mold and then complete the formwork and pouring of the second layer, and the first and second layers are separated by a process seam. Wood-grained concrete, blue skies and large areas of undivided glass windows give the building a tranquil atmosphere; It is different from the visual boredom of other white box B&Bs, and also different from the locality of using local materials to create modern B&Bs.
▼房间外墙的木纹清水混凝土,wood grain fair-faced concrete exterior facade© 此间建筑摄影_赵奕龙
观自在:身体在空间里游走
Contemplation: The feeling moves through space
建筑空间最后的使用者是人,尤其是民宿这种度假产品。三栋民宿其一致的母体和向心的总图关系只是建筑的表层玩法,内在核心是其适宜的尺度和人在其中的游走关系。
比如楼梯的轴线控制在 1200,但其接近 1:5 的宽高比,再加上高窗的顶光、两侧木纹混凝土在光线下的光滑表面,从而让这个空间有拾级而上的神性光芒;两层空高庭院和两层空高客厅也有此意,因为你必然抬头要看混凝土屋顶的天窗里所框选的蓝天白云,这是混凝土盒子所营造的诗意。
每个内院也是如此,效法古建筑四水归堂只是形制,补齐 L 形实体和内院的外侧两面墙只是完形的第一步,重要的是,人可以明确的感受到在房间外,还有一个院落和墙体,还有一个灰空间的过渡,即使在二层内看出去也是如此。
The last user of the building space is people, especially the vacation product of B&B. The consistent matrix and centripetal general map relationship of the three B&Bs is only the surface play of the building, and the inner core is its appropriate scale and the wandering relationship between people in it. For example, the axis of the staircase is controlled at 1200, but its aspect ratio is close to 1:5, coupled with the top light of the high windows and the smooth surface of the wood grain concrete on both sides under the light, so that this space has a divine glow that climbs up the stairs. The two-storey courtyard and the two-storey living room also have this meaning, because you must look up at the blue sky and white clouds framed in the skylight of the concrete roof. This is the poetry created by the concrete box. The same is true for each inner courtyard, imitating the ancient building of the Four Waters Returning to the Hall is just a form, and completing the L-shaped entity and the outer two walls of the inner courtyard is only the first step in the gestalt, and the important thing is that people can clearly feel that outside the room, there is a courtyard and a wall, and there is a transition of gray space, even if you look out from the second floor.
▼浴室,bath room©️ 然也空间建筑摄影_贾然
自然、素材与身体,也是我这几年做小建筑所总结的一个基本逻辑,是手法,也是哲学。
Nature, materials and feeling are also the basic logic that I have summarized in my small architecture in the past few years, which is both technique and philosophy.
▼模型,models ©️ UAO Design
▼总平面图,site plan©️UAO Design
▼A 栋平面图,Building A plan©️UAO Design
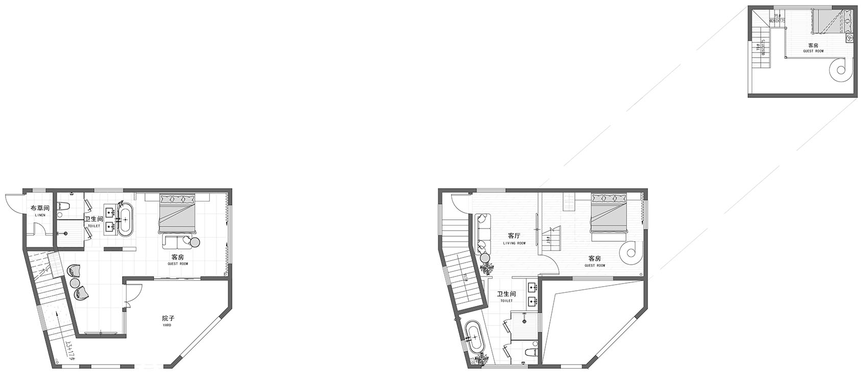
▼B 栋平面图
Building B plan
©️UAO Design
▼C 栋平面图,Building C plan©️UAO Design
▼剖面图,sections©️UAO Design
项目名称:柿柿如意·南野际民宿
项目地址:武汉市黄陂区木兰暖村
业 主:湖北中科农合发展有限公司
项目规模:607.71㎡
设计单位:UAO 瑞拓设计
主创设计师:李涛
设计团队
建筑结构:张杰铭、谈平、龙可成、孔繁一
景观规划:陆洲、申剑侠、张坤、林静、付余
室内设计:晏罗蒂、杜雯欣、周柏涛、白玉凡
实习生:何岱恒、肖博洋
施工团队:武汉楚耀建设工程有限公司
摄 影:然也空间建筑摄影_贾然,此间建筑摄影_赵奕龙
设计时间:2022 年 9 月-12 月
施工时间:2023 年 5 月-11 月
主要材料及品牌:
木纹清水混凝土墙体(现场浇筑)、铝镁锰屋面(雅美特)、铝合金门窗(森普)
结构形式:钢筋混凝土框架剪力墙结构
中 文:李涛
客服
消息
收藏
下载
最近














































