查看完整案例

收藏

下载
Villa Lev 是一个源于在图卢姆丛林中创造一个宁静休憩地的想法的项目,该项目的指导原则是设计一个与自然环境融为一体、尊重环境并被动适应不断发展的房地产开发的空间。
Villa Lev 是客户的梦想,其建筑借鉴了玛雅建筑的元素,以创造适合当前环境问题的全新当代空间。
由于其分布,房子中的每个空间都可以看到自然环境,树木、庭院和大墙提供了隐私,同时也打破了室内和室外之间的障碍,未建造的空间获得了巨大的价值。
该项目将表面材料以单色和简单的形式整合在一起,室内外均采用混凝土灰泥,项目专属定制家具,并使用中性色调的木材,产生对比和温暖,让人感觉像家一样。Casa Belart 成功捕捉了客户的想法和我们的建筑,以实现非常温馨的室内和谐。
最后,该项目的设计始终秉承创造永恒建筑的理念,在不打断这一理念的情况下创建了一些建议的细节,但目标是保持并与环境融为一体,拥有沉思的空间,可以观看光线在树木之间穿过,聆听庭院中的水声,并创造一个迷失在丛林中的雕塑。
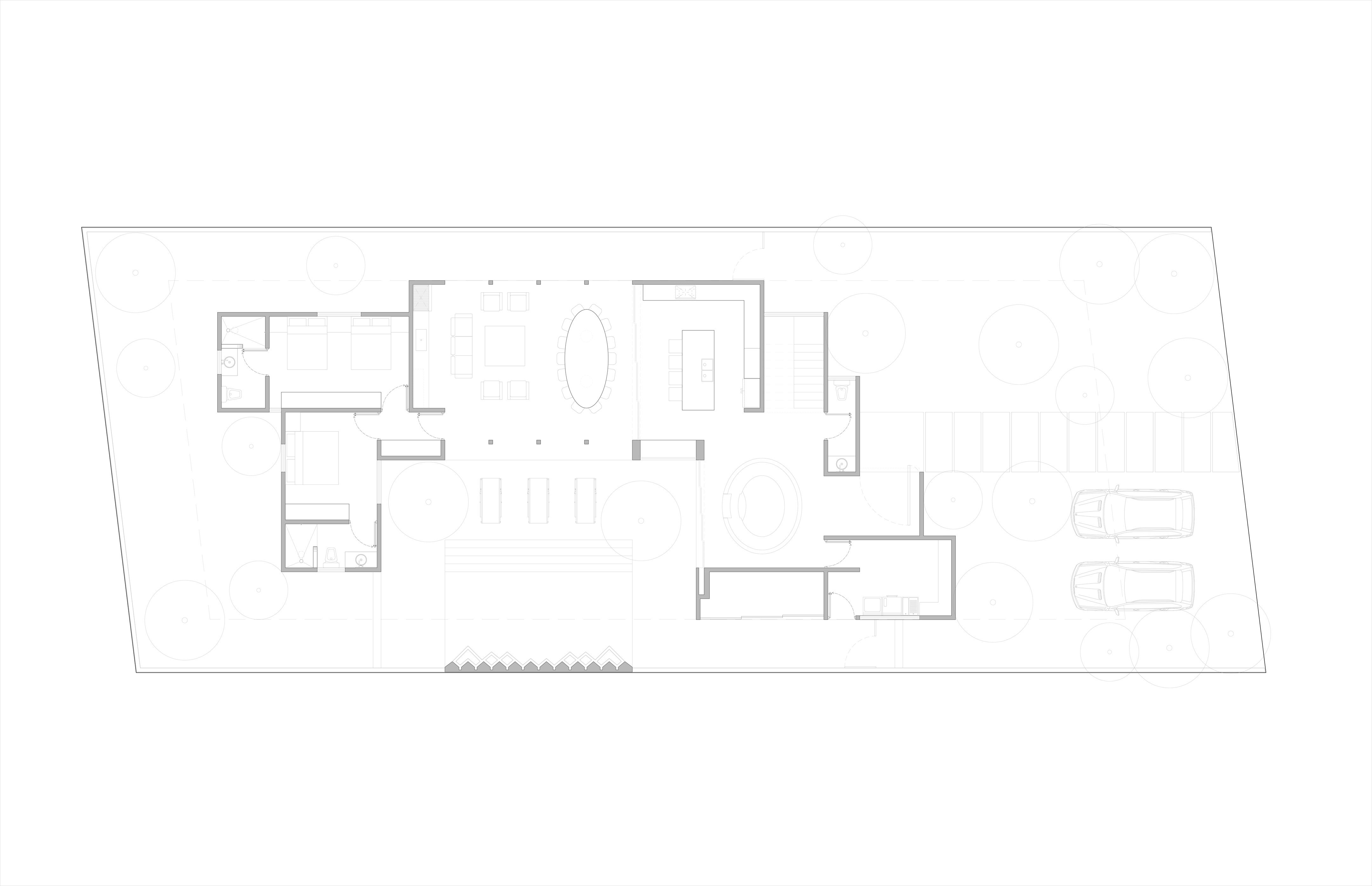
平面与结构图:
设计师:Espacio 18 Arquitectura
坐落:Tulum / Mexico / 2024
语言:English
客服
消息
收藏
下载
最近



































