查看完整案例

收藏

下载
针对Montijo市政厅画廊大楼的无障碍通行问题,在市中心一座 19 世纪的建筑中安装了一部电梯,并以此为起点,建造了这个小型公共设施——一个 80平方米的花园。
In response to the problem of accessibility to the Montijo Municipal Gallery building, the introduction of a lift in a 19th century building in the heart of the city center was the starting point for the construction of this small public work, an 80 m2 garden.
▼市政厅外立面,facade of the Municipal Gallery building ©Francisco Nogueira
▼项目鸟瞰,Ariel view of the project ©Francisco Nogueira
该项目利用了邻近画廊大楼的一片空地,提议在两个不同高度的室外 “房间 ”中建造一个“与世隔绝”的花园,能够在既公共又高度私密的氛围中提供精神放松的空间。
The project takes advantage of a portion of land adjacent to the gallery building and proposes the construction of a contained garden, a kind of ‘hortus conclusus’, in two outdoor ‘rooms’ of different altimetries capable of offering spaces for mental relaxation in an atmosphere that is both public and highly intimate.
▼项目街景,street view of the project ©Francisco Nogueira
▼只有通过建筑顶端的金属栏杆才能瞥见彼此,only allowing a glimpse of each other through a metal railing ©Francisco Nogueira
在花园和城市之间建立的关系引发了人们的好奇心,只有通过建筑顶端的金属栏杆才能瞥见彼此。墙壁用略带沙粒的水泥砂浆抹平,使空间具有凝聚力,让尺度、比例、光影的价值凸显出来。
The relationship that is established between the garden and the city provokes a sense of curiosity, only allowing a glimpse of each other through a metal railing placed at the apex of the building. The walls, plastered with a slightly sandy cement mortar, give cohesion to the space, allowing the values of scale, proportion, light and shadow to stand out.
▼水泥砂浆抹平的墙壁,The walls plastered with a slightly sandy cement mortar ©Francisco Nogueira
▼墙壁内的花园,The garden inside of the walls ©Francisco Nogueira
▼台阶细部,steps detail ©Francisco Nogueira
▼傍晚时分,at dusk ©Francisco Nogueira
▼场地区位,site map ©Bak Gordon Arquitectos +RM Arquitectura
▼铺地平面,pavement plan ©Bak Gordon Arquitectos +RM Arquitectura
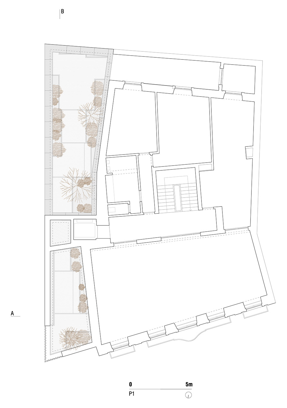
▼一层平面,ground floor plan ©Bak Gordon Arquitectos +RM Arquitectura
▼屋顶平面,roof plan ©Bak Gordon Arquitectos +RM Arquitectura
▼立面,elevation ©Bak Gordon Arquitectos +RM Arquitectura
▼剖面,section©Bak Gordon Arquitectos +RM Arquitectura
Architecture. Bak Gordon Arquitectos +RM Arquitectura
Architecture Coordination. Daniela Cunha
Collaboration. Marianna Angelucci, Pietro Dardano
Site location. Montijo, Portugal
Client. Montijo City Council
Contractor. OMEP– Obras, Medições e Projectos, Lda.
Supervision and Project Management. Montijo City Council
Consultants. Valeng (Fundações e Estruturas), Vertente Rabisco (Instalações Hidráulicas), CPX(Instalações Elétricas), FC- AP(Paisagismo)
Areas. 80 m2
Date. Project 2022-2023 / Construction 2023-2024
Photographs. Francisco Nogueira
客服
消息
收藏
下载
最近























