查看完整案例

收藏

下载

翻译
Architects:Banquet
Area:50m²
Year:2023
Photographs:Camille Lemonnier
Structure Engineering:CEBEA
Thermal Engineering:ASTI
Architect Project Manager:Auguste Depollier
Design Team:Banquet
City:Saint-Andéol
Country:France
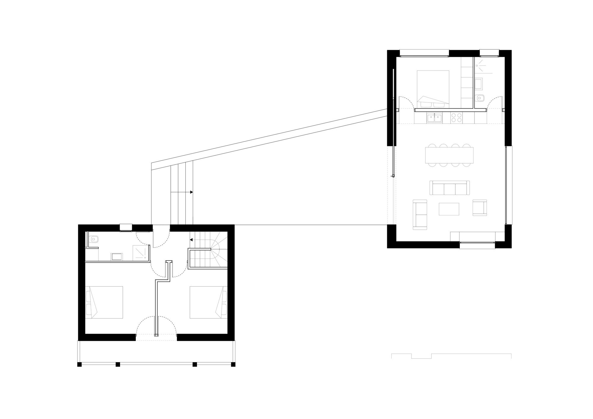
Text description provided by the architects. The project is located in the eastern foothills of the Vercors plateau, in the Trièves nature reserve, a few kilometres from the centre of Gresse-en-Vercors. The immediate surroundings are made up of isolated detached dwellings. The initial order, for a 50 m² extension to an existing mountain house, was rethought to create an independent volume, linked to the house by a horizontal base, acting as a link between the two entities. More than just a passageway, this space creates a real living space for fine weather and a belvedere offering uninterrupted views of Mont Aiguille in the distance, as well as the jagged rocks formed by the 'Dolomites du Trièves' just above.
Thanks to the simplicity of its shape and its distance from the existing house, the project is in keeping with an approach that respects the visual environment. The extension, marked by horizontal lines, is in dialogue with the site's rugged topography, revealing all its splendour while respecting the natural qualities of the site and the configuration of the land. This approach led us to limit earthworks and earth movements to the strict minimum, in order to favour a direct and tangible relationship with the natural ground.
Situated at an altitude of 1100 metres, the project blends harmoniously with the grandiose landscape that surrounds it. Inside, the openings have been carefully positioned to frame views of the Grand Veymont, Mont Aiguille and the more distant Belledonne massif, creating natural tableaux that change with the seasons. This play on scale is accentuated by the arrangement of large and small windows on each of the four façades.
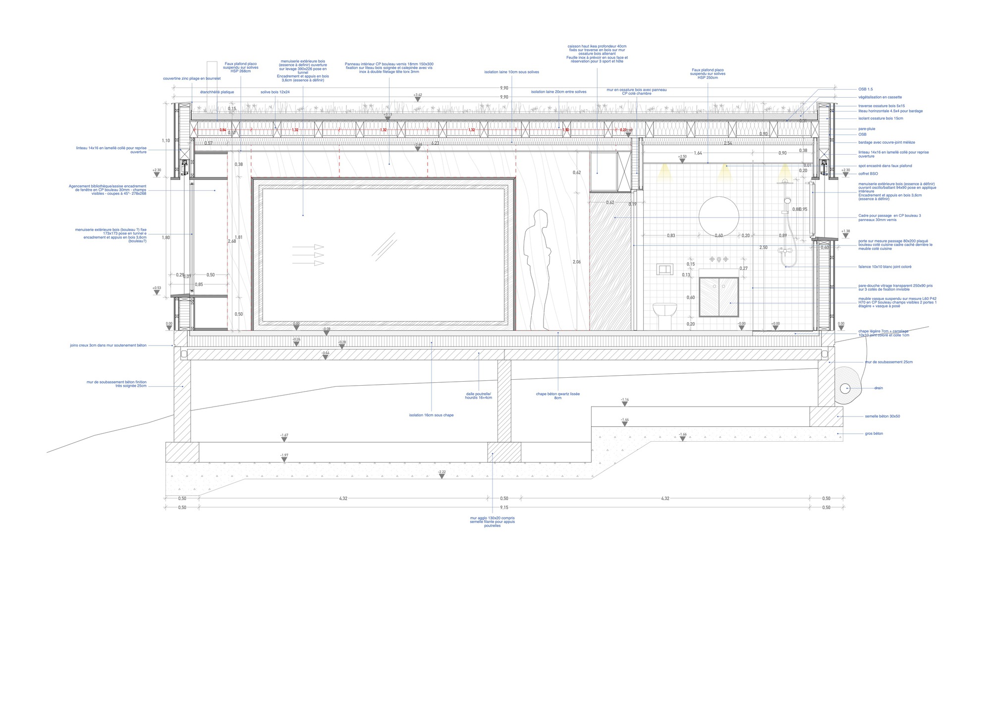
The construction principle is based on the creation of a concrete base made on site, ensuring continuity between the terrace and the extension. A timber frame, clad in larch on the outside and lined with birch on the inside, rests on this base. This reinterpretation of the chalet style uses a living material that will evolve with the seasons. The roof is entirely planted, both for aesthetic reasons, to integrate the project into the landscape, and for environmental reasons, contributing to rainwater management and thermal regulation.
Project gallery
客服
消息
收藏
下载
最近

























