查看完整案例

收藏

下载
每一套房子的设计需求背后,都怀揣着某一个群体对未来生活的憧憬。
小公寓作为单身族群的阶段性住房,介于30-60平之间,虽然面积不大,但更为寸土寸金。他们审美要求高,对品质有追求,赋予住宅与生活有全新的见解和认同。小小空间装载着对生活的向往,希望每一平方都能体现设计价值。
本案为太谷形上最新完成的小公寓设计,设计从人群需求出发,并融入年轻群体对生活的憧憬,从而给空间赋能。
我们理解的城市生活
繁华里人来人往
这才是应有的模样
银基单身公寓两个人,两套房
不婚主义者,大多拥有充实的单人生活状态。他们独立意志强烈,职场见地成熟有成。一套单身公寓,给漂泊在外的心慰以安定,也让生活拥有诗和远方。
——荣宠不惊,看窗外花开花落;去留无意,看生活云卷云舒。
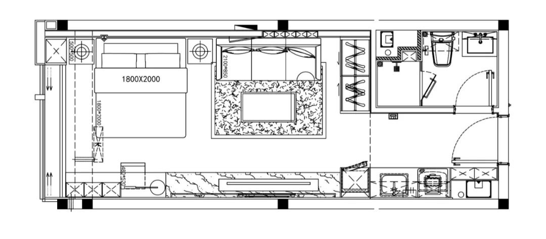
平面布置
小空间为单身男女量身定制,并寄以单身生活独特的理解和向往,功能舒适,五脏俱全,任以自然。布局追求灵活多变,功能设定讲究韵律,收纳收放自如。即使婚后,两个人,两套单身公寓,依然可以保留充分的私人空间和各自的生活方式。
设计抽离令人炫目的多彩,留存归于含蕴的黑白灰单色系,这也是深受年轻人钟爱的“越简单越突出”的审美定律。在复杂物象之中,归于纯粹与单纯,静观万物之美。这也是生活原本的样子。
居住在此,处处散发着精致、休闲的生活气息。黑白灰的无情绪,恰恰体现了简洁、现代的高级感。美的高级所在,在于从来不直白袒露,而是含蓄深沉又富有空间神秘。
风尚脱单小居两个人,一个家 生活要有仪式感,小公寓作为二人小居世界的新起点,对新生活的一切充满了期待。空间是诠释感情的一面镜子,是最温暖的归宿。设计师悉心筹备二人的你侬我侬,将种种对未来生活的样子与期待,以别具情调的氛围营造。这小小的家,便是二人未来幸福的开始。
波澜不惊 则是喜
细水长流 是生活
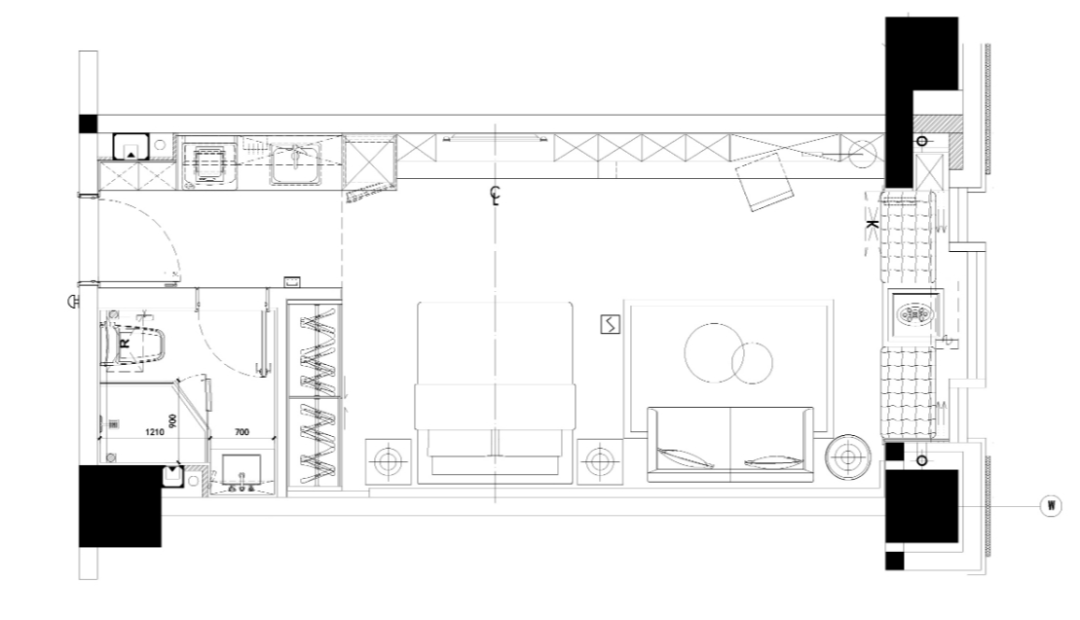
平面布置
在这个属于二人世界的小家里,开放式布局,隐藏式柜体拥有强大的收纳功能。空间组织与家具构成的形式美,以及点到为止的轻奢装饰,整体空间独立而整体,打造出现代雅致的二人相处模式。
典雅的米色,带给空间温柔静谧。高级灰色调的糅合,点缀金属色,活跃了整个空间的氛围。
小空间更是要合理利用每一寸空间,整体而不失细节的设计,在无形之间将各个功能区紧密相连,营造典雅时尚不繁杂的空间氛围。
项目名称:郑州银基公寓、风尚公寓
项目面积:A户型:33㎡;H户型:40㎡
软装设计:太谷形上
主案设计:王光辉、朱华丽、许珊
完成时间:2020.05
业主:河南银基摄影:悟建筑空间摄影
关于设计
关于太谷形上
太谷形上(Taigorge Design)由王光辉先生创立,自2010年成立以来,一直专注于商业地产设计,目前已与融创、龙湖、金科、中粮、远洋、正荣、北大资源、鲁能、正商等一线开发商建立战略合作。公司以合伙人制度吸纳更多专业的设计与管理人才,融合空间设计、商业策划、项目管理等多元领域,致力于为品牌开发商提供商业地产设计研发及顾问服务,探索当代设计与商业价值的更多可能性。 “赋予能量,创造价值”是我们对空间设计的追求和终极目标。在我们涉及的会所/售楼处、样板间、甲级办公等服务领域中,我们始终将人与空间的需求放在第一位,通过创造性手法重构空间之于人的真实需求。我们推崇设计的包容性与持续性,永远以接纳的态度、多元化的创作思维,探寻设计的规则和价值,并以最具开拓性的创新与融合,演绎空间的可能性和商业价值之间的精妙平衡。
客服
消息
收藏
下载
最近














