查看完整案例

收藏

下载

翻译
Architects:The Bloom
Area:592m²
Year:2022
Photographs:Hiroyuki Oki
Manufacturers:Jotun,Tuynel
Presiding Architect:Dinh Anh Tuan
Project Manager:Pham Huu Loc
Structure:Nguyen Vo Huu Nhan
Electromechanical Engineering:Mr. Huong
Aluminum Glass:Đô
Mechanical:Quyen
Interior Equipment:An Phu Vinh
Construction:The Roof Builders
City:thành phố Bảo Lộc
Country:Vietnam
Text description provided by the architects. The house is a residence for a small family consisting of a grandmother, father, mother, and two children. It is designed in a modern architectural style that blends living spaces with nature, providing a comfortable and eco-friendly environment for the family. Every architectural detail of the house, from the façade to the interior living spaces, is meticulously crafted, ensuring harmony between aesthetics and functionality.
The uniqueness of the design is evident from the façade, with the use of exposed brick walls featuring small gaps. This wall not only exudes a rustic and natural beauty but also allows air and light to circulate, creating a sense of openness for the interior spaces. Particularly at night, the carefully designed lighting shines through the brick gaps, producing a shimmering and artistic light effect, highlighting the architectural character. The large circular window on the upper floor is a key focal point of the façade, serving not just as an aesthetic detail but also as a connection between the house and the surrounding environment, offering an open view and natural light for the interior.
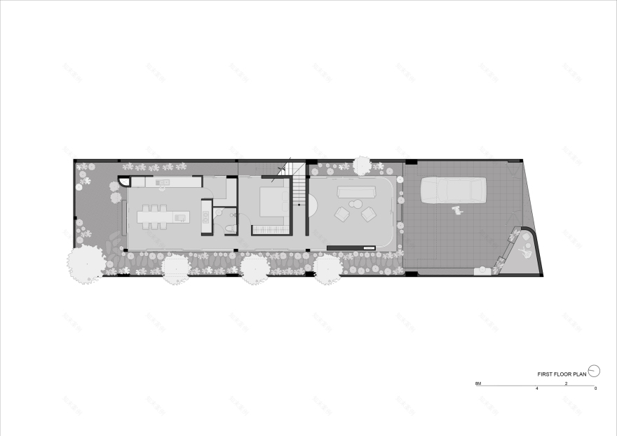
Stepping inside, the living room is an open space, directly connected to the lush garden outside through large glass doors. The living room is designed with a minimalist yet refined approach, with wood being the dominant material, bringing warmth and a sense of closeness. Green plants are strategically placed around the space, combined with natural light from the glass doors, creating a fresh and airy living environment. This design not only provides a comfortable space for family activities but also enhances the connection between human life and nature, bringing a peaceful and relaxing ambiance.
The kitchen and dining area are also designed with an open concept, with large glass doors allowing natural light to flood the space. The modern kitchen features a large island and neatly arranged, functional furniture. The neutral tones and soft blue color of the kitchen cabinets create a harmonious atmosphere, offering a gentle yet modern feel. Outside is a small, lush garden where the family can enjoy outdoor meals or the fresh air. The blend of natural light, greenery, and natural materials creates an open living space that connects people to nature.
Both the front and backyards are filled with greenery, featuring soft stone pathways. The plants not only cool the space but also provide balance and tranquility to the home. The outdoor hanging chair is a delightful touch, creating a quiet corner for relaxation or reading. The outdoor spaces are designed to maximize the connection with nature, creating ideal small garden areas for the family's outdoor activities.
The parents' bedroom is designed with a minimalist style, focusing on comfort and tranquility. The highlight of the room is the large circular window, offering a wide view of the landscape outside. Natural light fills the room, combined with neutral tones like white, brown, and gray, creating a serene and warm space. The furniture is arranged simply but elegantly, with a single chair near the window, making it an ideal spot for relaxing or reading. The bedroom is not only a resting place but also a private sanctuary for the couple to unwind and recharge after a long day.
On the other hand, the girl's bedroom is full of energy and creativity. With soft pink and white tones, the space feels joyful and charming, perfectly suited to a child's preferences. A unique feature of the room is the large wooden circle, providing a private area where the child can play or read. The large windows allow natural light to flood the room, keeping the space bright and airy. The interior design is harmoniously crafted, with pink and white striped details on the wardrobe and arched doors, creating a lively space that still ensures the functionality needed for the child's daily activities.
Overall, The Bloom's house is a perfect combination of modern architecture and nature. Every space in the house, from the living room to the kitchen and bedrooms, is designed to optimize natural light and the connection with greenery. The house not only meets the family's living needs but also creates a cozy environment where nature and human life harmoniously coexist, bringing peace and comfort to the family.
Project gallery
客服
消息
收藏
下载
最近
































