查看完整案例

收藏

下载

翻译
Architects:Superhelix Pracownia Projektowa
Area:220m²
Year:2024
Photographs:Bartłomiej Drabik
Manufacturers:AutoDesk,RHEINZINK,Wienerberger,Hormann,Schüco
Lead Architects:Bartłomiej Drabik
Structural Engineer:MM-Konstrukcje Budowlane
City:Gaj
Country:Poland
Text description provided by the architects. The house is located close to the southern border of Krakow. It is a hilly area, a foretaste of the Beskid Wyspowy and the even higher Tatra Mountains.
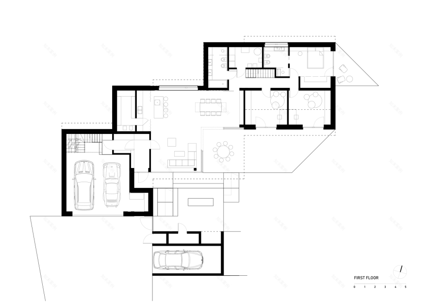
The house's name and its tri-partite layout result from the conditions of the area, local law, its function and the expectations of its residents. Because of the existing and potential neighboring buildings, the cardinal directions and the view openings, it was best to locate the house in the northern part of the property, keeping the alignment parallel to the site boundary. This ensured that the building did not intrude too deeply into the central part of the site. However, such an arrangement was not possible. The local zoning plan required the ridge of the building to be parallel to the neighboring road. The plot is very irregularly shaped and its northern boundary is not parallel to the municipal road. To meet the requirements of the plan and at the same time use the most suitable part of the plot for construction, it was necessary to divide the longitudinal block into smaller parts and move them apart. As a result, the ridge is parallel to the road and the building is laid out along the northern boundary, leaving the best part for the outdoors free of development.
The number of parts is a direct result of the three basic functions of the house. The first, closest to the road is the garage. The middle one is the living, kitchen and dining area, which connects through large glazing to the terrace and garden. The final, third section is more private, containing bedrooms and bathrooms. The residents' sense of intimacy is guaranteed by the building's appropriate location on the plot and is additionally supported by a shed for a third car. Thanks to a pitched roof, the shed is high enough where desired and forms a sheltering part at the entrance, while where it should be low to reveal the view, it blends smoothly with the existing terrain.
The heart of the house is the central element, containing the kitchen, dining room and living area. Here, three-meter high, corner and mullion-free windows provide a connection to the garden in the summer months. The boundary between inside and outside disappears and the building increases in floor area. Directly behind the windows, part of the terrace is covered by a roof overhang reaching more than four meters, providing shelter from the sun, rain and snow. The terrace is also well protected from the wind, thanks to a west-facing garage and a south-facing carport.
The building was constructed with bricks and reinforced concrete with a wooden roof truss. The materials used for the finishing are titanium-zinc sheets and western red cedar wood, both do not require special care, aging well over time and covering themselves with a protective patina. The underneath of the eaves and parts of the gable walls are clad in polished stainless steel, in the evening the metal sheets reflect light and illuminate the terrace.
Project gallery
客服
消息
收藏
下载
最近




























