查看完整案例

收藏

下载
作为建筑师和房主,Helen Agustine在印度尼西亚南丹格朗的一个热带气候住宅区的相邻角落地块上设计了两栋住宅。这两所房子由一个内院连接,第一所房子容纳了她的五口之家,包括三个年幼的孩子,第二所房子是她祖母的度假胜地,祖母偶尔会来,就像度假屋一样。
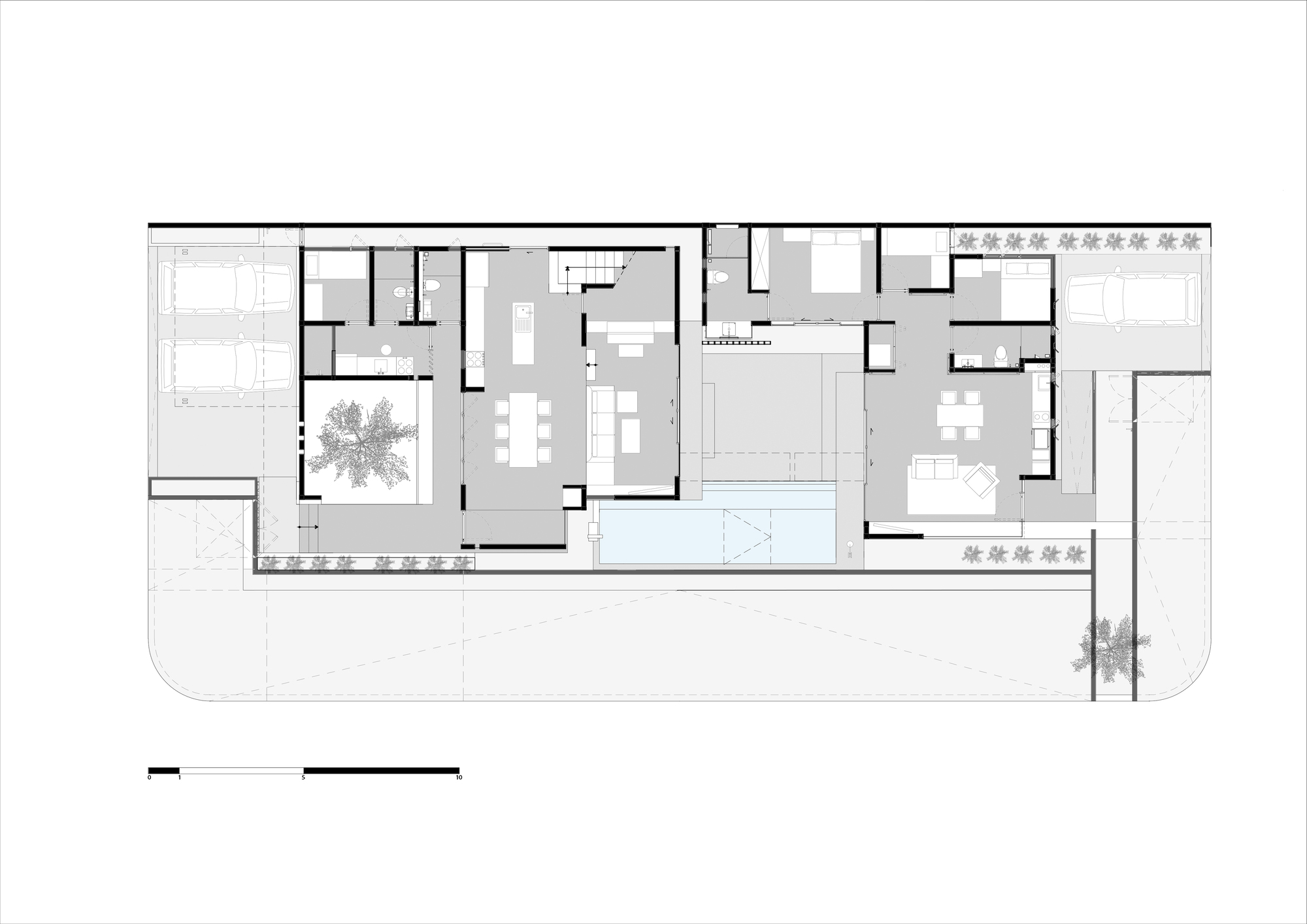
该设计注重亲密感和空间体验,房间的比例简单而适度,以促进居住者之间更紧密的关系,并最大限度地减少维护工作。第一栋房子是一栋两层楼的建筑,包括三间卧室、三间浴室、一个家庭办公室、一个服务区和一个结合客厅、用餐区和厨房的开放式公共空间。这所房子的入口体验遵循了压缩和扩展的概念,具有一个微妙的入口,避免了直接暴露在街道上。游客首先会看到一个低天花板的小门厅,可以看到游泳池的狭窄景色,然后是一个宽敞明亮的起居和用餐区,通往两侧的两个小花园。
考虑到这个家庭的内向性格,这所房子故意不适合大型聚会,但适合接待几位客人。用餐区和起居区之间的楼层差异创造了一种微妙的分离,为小团体提供了亲密感。周围的花园是一个绿色的缓冲区,向上倾斜朝向房屋,以提供与邻近房屋的额外隐私。
祖母的房子是一栋单层的老人友好型住宅,在设计时考虑到了残疾人的无障碍环境,入口处有一个铁木坡道。这栋房子由一个天花板较高的开放式客厅和用餐区、两间小卧室、两间浴室和一间护理室组成。内院是一个连接两个客厅和祖母卧室的开放空间,提供了一个享受热带天气奢华的地方,从温暖的晨曦到舒缓的雨声。
可持续性是设计的核心,因为建筑旨在将居住者与自然联系起来。四面宽大的窗户最大限度地提高了自然交叉通风,而裸露的铁木和木纹混凝土等材料则以原始状态使用,为建筑立面带来了自然老化的美感。入口隔断和卧室天花板采用了手工制作的元素,如三维藤编,展示了使用天然材料的技巧和艺术性。
一个对婴儿安全的迷你无化学物质游泳池,用当地采购的天然绿色苏卡布米石完成,通过流入两个客厅的舒缓水声来增强空间。可持续的工程木材覆盖了内墙,为房间增添了温暖,而裸露的混凝土地板则形成了互补的对比,平衡了现代性与自然性。窗帘、地毯和床上用品由棉和亚麻等天然纤维制成,经过最低限度的加工,以提高舒适性和透气性。
作为房主和建筑师,不断尝试设计和材料带来了挑战,导致在整个过程中进行多次修改。虽然这促进了想法和成果的改进,但不可避免地延长了项目的时间表。该设计通过关注简单的形式,让材料占据中心舞台,以庆祝每种材料的内在美、质地和特性,营造了一个真实而永恒的环境。
项目设计:Helen Agustine Studio
项目面积: 292.2501349m²
项目年份:2024
项目摄影:Arte Haus
供应商: Hansgrohe, Ardex, Asahi Mas, Ateson, DP Haus, Daikin, Dekton, Eco Smart Pool, Envara, Ironwood, Kohler, LIXIL , Magran, Matsuo, Propan, SKK, Titanium
Lead Team: Helen Agustine
Rattan Weaving: ByoLiving
Interior Designers: Helen Agustine Studio
灯光顾问: Erreluce
Contractors: Sularno, Rootslab
Landscape 项目顾问: Agusnia
Sustainable 工程师: Kayu Lapis Indonesia, Muka Veneer
项目成市: Kecamatan Serpong Utara
项目国家: Indonesia
设计师:Helen Agustine Studio
语言:英语
客服
消息
收藏
下载
最近

























