查看完整案例

收藏

下载
这栋小型混合用途的建筑位于韩国首尔汉南大桥北侧入口处,是创新设计和环境和谐的典范建筑。项目选址地理位置优越,能够一览南侧的汉江和北侧风景秀丽的南山。本设计不仅符合当地严格的建筑规范,并且远超这些标准,表达了设计者对城市建筑的思考。
Nestled at the northern entrance of Hannam Bridge in Seoul, Korea, this small mixed-use building stands as a beacon of innovative design and environmental harmony. Strategically positioned to capitalize on its prime location, the building offers unobstructed views of the Han River to the south and the scenic Namsan Mountain to the north. The design not only meets but exceeds the rigorous standards of local building codes, reflecting a thoughtful approach to urban architecture.
▼项目概览,Overall view © Kyung Noh
▼周边环境,Surrounding context © Kyung Noh
▼鸟瞰,Bird’s eye view © Kyung Noh
考虑到场地的限制,这栋建筑必须设计为狭长的结构,设计者在其中引入了一种独特的元素,能够让人联想到音乐中“我与变奏”的概念。他们在楼层间规律地插入相互镜像的三角形实体块,这些体块被精心布置,在大楼水平方向上呈现出视觉趣味。这些重复的图案经过了精确的比例设计,三角形和镜像排列产生了各种反射效果,特别是在中心区域,在建筑立面上形成了多层深度,又起是在夜间照明下更加明显。即便是从不同角度上看,都能呈现出独特的效果,就好像断奏音乐中活泼明亮的音符。人们即使是在快速移动的交通工具中也能够注意到这栋建筑,并留下深刻的印象。
▼手绘图,sketch © YKH Associates
In response to site constraints that required a long and narrow structure, a unique design element reminiscent of the concept of “me & variation” in music was introduced. This involved the regular insertion of triangular solid masses that mirrored each other across the floors, strategically placed to provide visual interest on each horizontally segmented floor. This repetitive pattern was carefully proportioned, and the triangular shape and mirrored arrangement produced various reflective effects, particularly in the central area where solid and void patterns interacted. This added multiple layers of depth to the building’s appearance, especially notable through landscape lighting at night. Even when viewed from different angles, the building showcased a distinctive façade, akin to the lively and bright notes of staccato music. This design choice made the building stand out prominently, even amidst fast-moving traffic, leaving a lasting impression on observers.
▼从入口道路看向建筑,View of the building from the entrance road © Kyung Noh
▼建筑立面,Facade © Kyung Noh
这栋建筑以其独特的新月线性结构为特点,这有区别于传统的设计方法。设计者采用独特的形式进行水平分层,最大限度地考虑了建筑与周围景观之间的联系。他们并没有选择传统的全玻璃立面,而是交替使用了实心和透明模块图案。立面由一系列三角形实体元素组成通过精确的定位,在视觉上形成了富有动态和凝聚力的图案。这种创新的设计增添了本项目的深度、复杂度和美感,使其在繁华的城市环境中脱颖而出。
The building is distinguished by its unique crescent-shaped linear structure, a departure from conventional design approaches. This distinctive form allows for horizontal layering that maximizes the visual connection with the surrounding landscape. Instead of opting for a traditional fully glazed façade, the design employs a sophisticated blend of solid and transparent modular patterns. The façade features a series of triangular solid elements, meticulously oriented to create a visually dynamic and cohesive pattern. This innovative arrangement introduces a sense of depth and complexity, enhancing the building’s aesthetic appeal and ensuring it captures attention in the bustling urban environment.
▼立面近景,Facade details © Kyung Noh
▼入口处,Entrance © Kyung Noh
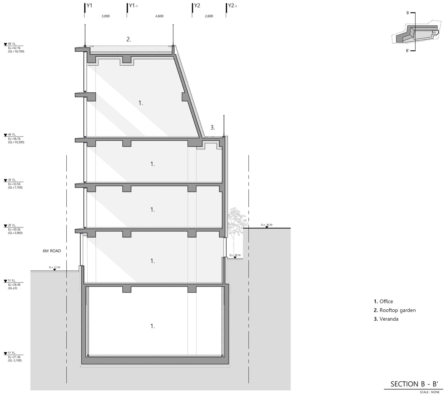
除了引入注目的外观,为了增强居住者与自然之间的联系,设计者还在建筑中引入了精心设计的绿色空间。屋顶花园为居住者提供了宁静的休憩场所,从这里可以欣赏周围的景色,是城市中的一片宁静绿洲。下方的下沉式花园则是一个可以放松和沉思的独特庇护所。这些绿色空间不仅是本项目在美学上的补充,也是建筑设计中不可缺少的元素,有利于改善整个建筑的采光和自然通风。
In addition to its striking exterior, the building incorporates thoughtful green spaces to foster a stronger connection between its occupants and nature. A rooftop garden offers a serene retreat with panoramic views, serving as a peaceful oasis amidst the urban landscape. Below, an underground sunken garden provides a unique, sheltered environment for relaxation and contemplation. These green spaces are not merely aesthetic additions but integral components of the building’s design, contributing to improved natural light and ventilation throughout the structure.
▼室内空间,Interior space © Kyung Noh
▼屋顶花园,Roof garden © Kyung Noh
▼夜览,Night view © Kyung Noh
各种自然元素与建筑特色相结合,共同营造出和谐宁静的氛围。设计者对光线、空间和自然环境进行了精心的设计,确保了本项目不仅在外观上能够引入注目,还能够保证居住者的幸福感和舒适度。此外,本设计体现了设计者对可持续和环境敏感性的考量,通过对绿色空间和立面图案的创新设计,有效地减少了城市热岛效应,建筑的整体能源效率也得到了提高。实体和透明元素的动态效果有利于减少眩光、优化采光、提升建筑的环境性能。
The integration of these natural elements with the building’s architectural features creates a harmonious and tranquil environment. The careful consideration of light, space, and natural surroundings ensures that the building is not only visually striking but also promotes well-being and comfort for its occupants. Furthermore, the building’s design reflects a commitment to sustainability and environmental sensitivity. By incorporating green spaces and innovative façade patterns, the architecture reduces the urban heat island effect and enhances the building’s overall energy efficiency. The dynamic interplay of solid and transparent elements also contributes to the building’s environmental performance, reducing glare and optimizing daylighting.
▼总平面图,site plan © YKH Associates
▼地下一层平面图,B1F plan © YKH Associates
▼一层平面图,1F plan © YKH Associates
▼二层平面图,2F plan © YKH Associates
▼三层平面图,3F plan © YKH Associates
▼四层夹层平面图,4F mezzanine plan © YKH Associates
▼四层平面图,4F plan © YKH Associates
▼屋顶层平面图,roof plan © YKH Associates
▼正立面图,front elevation © YKH Associates
▼背侧立面图,rear elevation © YKH Associates
▼左右侧立面图,left / right side elevation © YKH Associates
▼剖面图,section © YKH Associates
Location: Hannam-dong 381, Yongsan-Gu, Seoul, Republic of Korea
Completion Year: 2023
Client: Donghoon Co., Ltd.
Site Area: 403.00 m2
Building footprint area: 218.06 m2
Total floor area: 927.62 m2
Architects: YKH Associates ()
Architect in Charge: Taesun Hong, FAIA
Design Team: Daejung Sang, Yongho Hwang, Sangmin Yang, Jihoon Lee, Kyungwook Kim, Byeongsu Kim
Structural Engineering: Jeon and Partners
MEP Consultants: Sunwoo Engineering
Civil Consultants: Tae Am Engineering
General Contractors: 3-square construction Inc.
Interior Designers: Donghoon DOS
Photographs: Kyung Noh
客服
消息
收藏
下载
最近
































