查看完整案例

收藏

下载
本项目位于山西省忻州市,马仑茶庭的首店是在忻州古城改造了一座四合院空间,侧重点在于对品牌的认知和体验。这次我们把店面的选址放在了社区街边,是一个城市会客厅的概念。以茶为媒介 把茶器皿 手作茶 甜品 文创 阅读等融合成为一个小规模的复合型社交空间,希望能够最大限度的去拥抱日常生活。
This project is located in Xinzhou City, Shanxi Province. The first store of Malan Tea Court is a renovated courtyard space in the ancient city of Xinzhou, with a focus on brand recognition and experience. This time we chose to locate the storefront on the street side of the community, which is a concept of a city reception room. By using tea as a medium, we aim to integrate tea utensils, handmade tea, desserts, cultural and creative reading into a small-scale composite social space, hoping to embrace daily life to the fullest extent possible.
▼店铺外观,Exterior © 刘育麟
▼外观近景,Exterior close view © 刘育麟
原建筑是社区的一组裙楼,右侧的斜面是唯一的出入口。内部空间是一个狭长的结构。我们把外立面沿街的一侧墙体所有的砌块墙全部打开,小的洞口作为入口的门,大的洞口嵌入了一个长的玻璃盒子。最大限度的打开视野 增加和户外的互动性。
The original building was a group of podium buildings in the community, and the sloping right side was the only entrance and exit. The internal space is a narrow and elongated structure. We opened all the block walls along the street side of the exterior facade, with the small opening serving as the entrance door and the large opening embedded in a long glass box. Maximizing visibility and increasing outdoor interactivity.
▼外摆区,Swing area © 刘育麟
▼入口处,Entrance © 刘育麟
玻璃盒子外部由一部分空地,我们希望能做一些和内部互动的外摆。但是这个裙楼建筑是一个两层高度的墙体,尺度太高 给人感觉很疏离。所以我们在原建筑的雨檐部分加建了两组轻钢结构的斜屋顶,把檐口的高度压低,从而营造出一个半户外的灰空间。人们可以围绕屋檐产生更丰富的社交体验。
The exterior of the glass box is partially empty, and we hope to create some external displays that interact with the interior. But this podium building is a two-story wall, and its high scale gives people a feeling of alienation. So we added two sets of light steel structure sloping roofs to the rain eaves of the original building, lowering the height of the eaves to create a semi outdoor grey space. People can have richer social experiences around the eaves.
▼从窗外看向室内空间,Looking from the window to the interior space © 刘育麟
▼室内空间概览,Main interior space © 刘育麟
▼吧台,Bar area © 刘育麟
空间的入口门洞 我们设计了一个厚的金属盒子夹在墙的中间,为整个界面增加体块感的同时也对进入的过程有一个小的缓冲。
We designed a thick metal box to be sandwiched in the middle of the wall at the entrance of the space, adding a sense of bulk to the entire interface while also providing a small buffer for the entry process.
▼客座区,Guest seating area © 刘育麟
▼商品展示,Product display © 刘育麟
门厅部分主要设计了一些展示茶器皿的空间,同时我们把原建筑结构混凝土墙的部分全部裸露出来,表面做了封闭处理。保留了混凝土原本质朴的感觉。
The entrance hall is mainly designed with spaces for displaying tea utensils, and at the same time, we have exposed all the concrete walls of the original building structure, with a closed surface treatment. Retaining the original and simple feeling of concrete.
▼较为私密的空间,Private space © 刘育麟
我们在主要的空间板块设置了不同的座位形式,用以满足不同人群的功能使用诉求。
We have set up different seating forms in the main spatial sections to meet the functional usage demands of different groups of people.
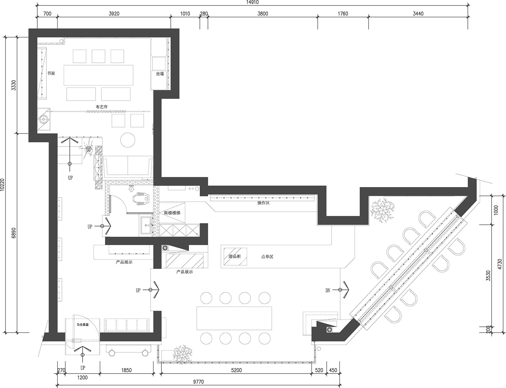
▼平面图,plan © 马霄龙设计工作室
项目名称:马仑茶庭雁门公园店
项目地址:山西忻州
设计公司:马霄龙设计工作室
设计师:马霄龙
项目面积:82平米
设计起止日期:2023.12
完工时间:2024.2
主要材料:花岗岩、瓷砖、乳胶漆、不锈钢、木板
项目摄影:刘育麟
Project Name: Ma Lun Cha Ting Yanmen Park Store
Project Address: Xinzhou, Shanxi
Design Company: Ma Xiaolong Design Studio
Designer: Ma Xiaolong
Project area: 82 square meters
Design start and end date: December 2023
Completion time: February 2024
Main materials: granite, ceramic tiles, latex paint, stainless steel, wooden boards
Project Photography: Liu Yulin
客服
消息
收藏
下载
最近




















