知末
知末
创作上传
VIP
收藏下载
登录 | 注册有礼

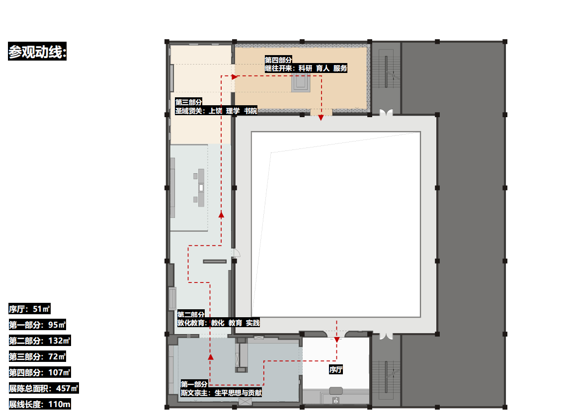
朱子文化成果展展示空间设计

2024/10/16 14:33:35
查看完整案例
微信扫一扫
收藏
下载
2023年上半年设计项目
2024年已落地
457㎡,低预算项目
禁止盗图!!!
盗图必究!!!
仅作为行业交流使用,
著作权归作者所有。
朱子文化成果展展示空间设计-7
朱子文化成果展展示空间设计-8
朱子文化成果展展示空间设计-9
朱子文化成果展展示空间设计-10
朱子文化成果展展示空间设计-11
朱子文化成果展展示空间设计-12
朱子文化成果展展示空间设计-13
朱子文化成果展展示空间设计-14
朱子文化成果展展示空间设计-15
朱子文化成果展展示空间设计-16
朱子文化成果展展示空间设计-17
朱子文化成果展展示空间设计-18
朱子文化成果展展示空间设计-19
朱子文化成果展展示空间设计-20
朱子文化成果展展示空间设计-21
南京喵熊网络科技有限公司 苏ICP备18050492号-4知末 © 2018—2020 . All photos and trademark graphics are copyrighted by their owners.增值电信业务经营许可证(ICP)苏B2-20201444苏公网安备 32011302321234号
客服
消息
收藏
下载
最近