查看完整案例

收藏

下载

翻译
Architects:Brechbuehler Walser Architekten
Area:639m²
Year:2024
Photographs:Andreas Buschmann
Manufacturers:Hodel & Partner,Iromet,Kost,Lötscher Tiefbau,Mensch Rolladen AG,Stulz
Lead Team:Patrick Walser, Barbara Brechbuehler
Technical Team:Judith Rauber
Project Management:Waber Architekturrealisation
Landscape Architecture:Mettler Landschaftsarchitektur
Engineering & Consulting > Structural:blesshess
Engineering & Consulting > Electrical:Scherler
Engineering & Consulting > Mep:JOP Joser Ottiger + Partner
Engineering & Consulting > Other:Gottschalk+Ash Int'l, GaPlan
City:Luzern
Country:Switzerland
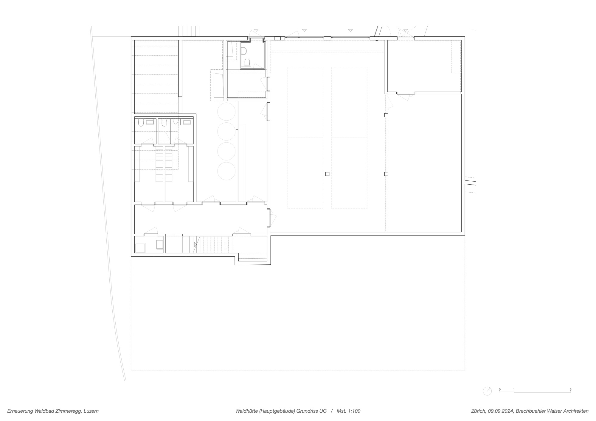
Text description provided by the architects. The original forest pools were built in 1967 in an idyllic forest clearing high above Lucerne. In the meantime, defects in the gradually remodeled and expanded facility became increasingly noticeable. Especially the pools needed to be repaired and the outdated pool technology had to be replaced.
To preserve the forest pools for future generations, to make them attractive, and to reduce the high operating costs the citizens of the city of Lucerne decided on a complete renovation.
In order to strengthen the unique character, the forest clearing was tidied and the different areas were gently reorganized. The existing attractions were refreshed where possible, relocated, and supplemented where necessary. By setting up a wooden building in a new location, the forest cabin, the inefficient operating building was replaced and at the same time, the long and steep access to the pools was shortened. An additional smaller wooden pavilion, the forest bar, supplements the offer at an elevated location in the park.
Furthermore, the previously fenced-in playground was completely opened to the public. This makes the forest clearing an attractive destination for sports, playing, and barbecuing all year round, even when the area with the pools is closed.
Project gallery
Project location
Address:Luzern, Switzerland
客服
消息
收藏
下载
最近
























