查看完整案例

收藏

下载
层层叠叠的墙体强化纵深感
BEHIVE ARCHITECTS
南京 CHAMPION 岩板展厅
//
南京 CHAMPION 岩板展厅是一个能承载各种活动的多功能空间。区别于品牌传统的零售店,设计的初衷是创造一个画廊般的连续的空间——一个为商务洽谈、创意沙龙以及灵活的产品展示提供背景环境的空间。
The Champion sintered stone showroom in Nanjing is a multifunctional space for companys diverse activities. The aim is to create a gallery-like space for exploration that is different from traditional store for retailing- a continuous space that provide perfect setting for business meeting, creativity salon as well as flexible display of products.
片墙形成的立面
层层叠叠的墙体强化纵深感,光影勾勒出的简洁量体。岩板取材于大地,也反映着这片土地的风貌。受材料本身的启发,我们希望岩板产品的陈列空间也能致意山水之美。因此,用建筑的语言来隐喻山与水,在有限的空间中创造一个立体的园林,邀请人们在其中漫步探索,便成为了“山之园”的概念的起源。
The sintered stone are made with materials taken from the earth and also reflect the landscape of the place. Inspired by the material itself, we hope that the showroom of sintered stone products can also pay tribute to the beauty of natural landscape. The concept is to use the architectural space as a metaphor for “mountain”- creating a three-dimensional garden to invite people to stroll and explore in it.
片墙延伸进入室内
挑空处层层递进的“山”
立体的山之园
踏过水面的攀登之旅
立体的山之园
“墙”是最常见的岩板的应用场景,也是本案中最突出的建筑元素。
通过不同尺度的墙体的组合堆叠,我们试图建立多样的空间层次、节奏与氛围,营造一种游园式的展陈体验。
As the wall is the most common application scenario of sintered stone, it is used as the most prominent architectural element in creating space in this project. Through the combination and stacking of walls of different scale, we try to create a space with a variety of layers, rhythms and atmospheres, which brings about a sensory experience just like being in a Chinese garden.
墙之间置入展示空间
移步换景的空间体验
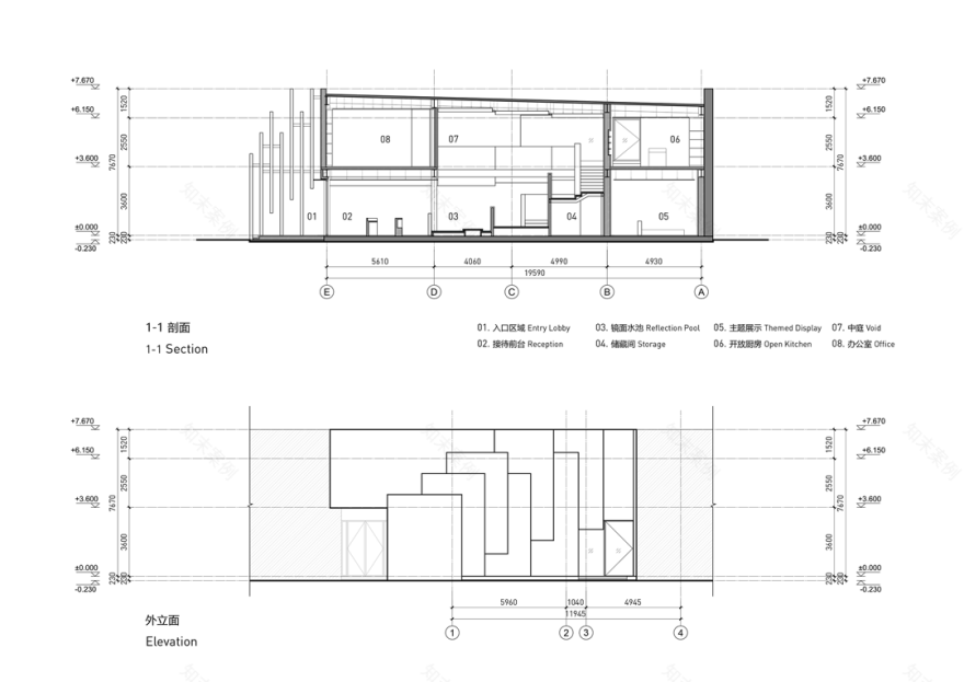
场地宽度窄而进深长,占据一二层共约 700 平米。我们打破了室内与室外、一层与二层的界限,将所有空间视为一个整体;层层叠叠的岩板片墙平行而立,由建筑外立面延续进入内部空间,如此来最大化地利用场地的纵深感;简洁利落的量体加上白色岩板的大量运用,也使其从纷杂的城市环境中脱颖而出,强化了品牌对外的视觉形象。
The site is narrow and deep, occupying a total of about 700 square meters on the first and second floors. We break down the boundaries between indoor and outdoor, first floor and second floor, and treat all spaces as a whole. The layered walls become the main visual element, standing parallel to each other, continuing from the façade of the building into the internal space, so as to maximize the sense of depth of the site. The simple and clean volume and the extensive use of white make it stand out from the chaotic urban environment and strengthen the brand’s visual identity.
墙之间置入展示空间
立体的山之园
片墙结合了挑空处的楼梯向上拔高递进,由矮到高,左右错动,有些立于地面,有些则悬浮空中,形成如同岩石般的肌理,营造出“山”的空间意向。“山”既是空间元素,也是展品本身,登山的过程,亦是了解产品与工艺的体验之旅。墙与墙之间置入了多样的主题展示空间与选样区;人们在片墙之间穿行,时而踏水而过,时而倚墙小憩,如同在山中信步,移步换景的感受品牌产品的特色。
The layered walls integrate the stairs at the void, rise and progress, from low to high, staggered left and right, some standing on the ground, some suspended in the air, forming a rock-like texture, creating a spatial interpretation of the mountain. The mountain is not only a spatial element, but also the exhibit itself, and the process of climbing the mountain is also an experiential journey to understand the products and techniques. A variety of themed exhibition spaces and sample areas are placed in between the walls. People move from scene to scene as they walk between the walls to feel the characteristics of the products - sometimes treading water, sometimes leaning on the wall to rest, just like walking in the mountains.
连贯的空间元素消解室内外的界限
灯光渲染下的立面
墙体掩映下的室内空间
平面图 © BEHIVE 致野建筑
剖面 立面
BEHIVE 致野建筑
公区轴测图 ©BEHIVE 致野建筑
项目摄影 | 张⼤⻬
项目名称 | 山之园 | 南京 CHAMPION 岩板展厅
完成年份 | 2024 年
建筑面积 | 700 平方米
建筑设计 | BEHIVE 致野建筑
主创建筑师 | 张铭政,欧阳见秋
项目地址 | 江苏省南京市雨花台区卡子门大街 88 号
委 托 方 | 海鸥冠军有限公司
主创设计 | 张铭政,欧阳见秋
设计团队 | 忻凯,邓洁,周天野
结构设计 | 上海三垚建筑工程设计有限公司
结构设计师 | 缪建波,李明蔚
景观设计 | BEHIVE 致野建筑
施工图设计 | BEHIVE 致野建筑
施 工 方 | 南京银泰建筑装潢工程有限公司
材料品牌 | 冠军瓷砖、苏州鑫基石
摄 影 师 | 吴清山
张铭政-欧阳见秋
BEHIVE 代表着构筑(Building)与环境(Environment)之间有意味的对话,而 HIVE 则代表了协作与集体性。我们用建筑的方式探索人与自然的关系,创造能激发与拓展原有场地属性的设计。
建筑的多样性与生命力让我们着迷。人与环境的微妙互动,人的体验,空间传递出的氛围与情感,场所精神,这些是我们在日常工作中所不断追求的。
BEHIVE 致野建筑于 2018 年在上海成立至今,我们在建筑、室内、城市设计、景观等领域都积累了充分的经验。我们是思想开明的,有远见的,并且充满热情。我们不局限于某种类型与设计方法,我们参与的项目有着多元的尺度和功能属性,设计类型涵盖公共文化、办公总部、综合体、商业零售、酒店、城市更新等等。我们在设计的各个阶段都有广泛的参与,从前期策划到施工,致力于提供全方位的设计服务。
BEHIVE 致野建筑的合伙人在过去的几年里一直担任西交利物浦大学建筑系的设计导师,也多次受邀做公开演讲,参与学术分享及展览活动。我们在教学与学术研究上的投入和在工程实践上的积累互相促进,有利于两方面的协同发展。
客服
消息
收藏
下载
最近

































