查看完整案例

收藏

下载
本建筑坐落于北京大学校园的正中央,做为一个科教实验室来使用。空间功能主要分为三部分:封闭空间作为试验室使用,室内空间作为学习使用,半室外空间作为公共使用,建筑的门可以全部打开,使室内空间和室外融为一体,作为展示空间等多功能空间来使用。
The building is located in the centre of the Peking University (Shenzhen campus) and is used as a science and education laboratory. The function of the space is divided into three parts: the enclosed space is used as a laboratory, the indoor space is used for learning, and the semi-outdoor space is used for public educational event use. The doors of the building can be opened completely, so that the indoor space and the outdoor space can be integrated as a multi-functional space such as an exhibition space.
▼项目概览,overview of the project © 成潜魏
▼项目鸟瞰,Ariel view of the project © 成潜魏
建筑与周边环境做到了很完美的融合,白色金属漆以及钢架结构与现有的校园建筑保持一致。同时,通过部分透明的屋顶可以抬头向上看到摇曳的树叶以及洒下来的自然光,弧状的屋檐向下延伸,把人们的视线下压导向建筑前面草地的景观。
The building blends in perfectly with its surroundings, with its white metallic paint and steel frame structure in line with the existing campus buildings. At the same time, the partially transparent roof allows one to look up and see the swaying leaves and natural light, while the curved eaves extend downwards, directing one’s eyes downwards towards the landscape of the natural green area in front of the building.
▼与周边环境完美融合,the building blends in perfectly with its surroundings © 成潜魏
▼弧状的屋檐,the curved eaves ©成潜魏
建筑形态强调科技感,讲地面向上抬高,营造一种漂浮在草地上的感觉;3个弧形的屋顶相互交错重叠,屋顶用三角形的钢柱交叉支撑,并用钢索固定,使得建筑稳固,轻盈而又富有张力。
The form of the building emphasises the sense of technology, raising the ground upwards to create a sense of floating on the grass; the three curved roofs overlap each other and the roofs are supported by triangular steel columns and fixed with steel cables, making the building stable, elegant and full of tension.
▼三角形的钢柱交叉支撑,triangular steel columns ©成潜魏
在建筑的可持续性上,利用多重屋顶,可自动开启的侧窗,以及可全面打开的推拉门,尽可能增加自然通风以及与外部连接的范围和效果;部分屋顶使用透明的隔热亚克力板材,增加屋顶的自然采光面;使用低成本高效而又简单的能源技术,在屋顶的一侧铺上可弯曲的光伏板,使其可以为房屋提供设备与照明所使用的电能;除基础的钢筋混凝土结构外,大部分使用钢结构,铝板以及亚克力板,在增加灵活性和回收机会的同时兼顾经济性;另外,设计中避免南面和西面过强的日光照射,地面往上抬高,设置檐下空间,以应对中国南方的潮湿、高温、多雨、强日照的气候。
▼绿色能源设计分析图,green resource design diagram ©堺工作室
In terms of sustainability, the use of multiple roofs, self-opening side windows, and fully openable sliding doors maximise the scope and effect of natural ventilation and connectivity to the outside; the use of transparent, insulated acrylic panels on part of the roof increases the natural lighting surface of the roof; and the use of low-cost, efficient and simple energy technologies, including the use of curved photovoltaic panels on the side of the roof to provide electricity for equipment and lighting; and the use of a low-cost, efficient and simple energy technology, including a low-cost, efficient and simple energy technology. The use of low-cost, efficient and simple energy technologies, such as bendable photovoltaic panels on one side of the roof, allows them to provide the house with electricity for equipment and lighting; the use of steel, aluminium and acrylic panels, in addition to the basic reinforced concrete structure, increases flexibility and recycling opportunities, while at the same time taking into account economy; and the design avoids too much sunlight in the south and west, and the floors are raised upwards, with an eave space, to cope with the humid, high-temperature, rainy and sunny climate of southern China.
▼可全面打开的推拉门,fully openable sliding doors ©成潜魏
▼部分屋顶使用透明的隔热亚克力板材,transparent, insulated acrylic panels ©成潜魏
▼在屋顶的一侧铺上可弯曲的光伏板,the use of curved photovoltaic panels ©成潜魏
▼场地区位,site location ©堺工作室
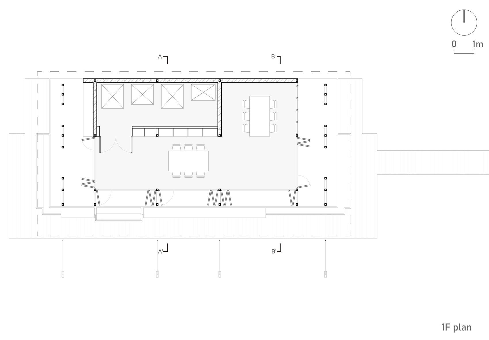
▼一层平面,ground floor plan ©堺工作室
▼屋顶平面,roof plan ©堺工作室
▼北立面,north elevation ©堺工作室
▼立面&剖面,elevation & section ©堺工作室
项目名称:光合未来居所实验室
项目类型:教育型建筑
设计方:堺工作室
项目设计:堺工作室
完成年份:2024
设计团队:成潜魏,张卓群,来源,何竞飞,张兴旺,赵馨语,李敏智
项目地址:广东省深圳市南山区丽水路2199号
建筑面积:90㎡
摄影版权:成潜魏
合作方:深圳市潇湘装饰材料有限公司
客户:北京大学
Project name:Solaris Living Lab
Project type:educational architecture
Design:Je-atelier
Design year:2024
Completion Year:2024
Leader designer & Team:Cheng Qianwei,Zhang Zhuoqun, Lai Yuan, He Jingfei, Zhang Xingwang, Zhao Xinyu, Li Minzhi
Project location: Guangdong Province Shenzhen Nanshan district Lishui Road No. 2199
Gross built area: 90㎡
Photo credit: Cheng Qianwei
Partner:Shenzhen Xiaoxiang Decoration Materials Co., Ltd
Clients:Peking University
客服
消息
收藏
下载
最近





















