查看完整案例

收藏

下载

翻译
Architects:Bertrand Van Dorp
Year:2024
Photographs:Sven Högger
Design Team:Bertrand Van Dorp
City:Porrentruy
Country:Switzerland
Text description provided by the architects. The project is located in Porrentruy, a small town in the Swiss Jura. A modest three-story house, positioned at the end of a long street, had quietly fallen into disrepair. Originally built in the late 1960s, with no distinctive architectural heritage or attention to detail, it served as a typical affordable residence for a single family. Despite its deterioration, the building retains potential due to its proportions, location, and core structure. Rather than opting for demolition and a complete rebuild, the project seeks to preserve and repurpose the existing structure, giving it a second life while maintaining its original function.
The challenge lies in designing a project that complements the surrounding conventional homes while introducing a contemporary approach to imbuing the building with character. This requires a careful analysis of what elements should be preserved and emphasized, alongside those that need to be reimagined, to restore this neglected structure. Although the exterior presents itself as a delicate white plaster model, the interior core of the project is made of wood, allowing for extensive collaboration with local carpenters and the use of locally sourced materials. The house's location at the street's end makes it a visible landmark from a distance, despite its relatively small footprint and scale.
As one approaches the house, the narrow white façade becomes visible. The exterior appears as a smooth plaster surface with subtle variations in texture, complemented by slender metallic elements such as the balcony, guardrails, and window sills. The design preserves the original proportions and window placements, but by adjusting the length of the openings, the façade gains an elongated, refined appearance. To enter the house, one passes through a small entrance garden that separates the main entrance from the road, framed by a 40 cm high concrete wall defining the parcel's boundary. The entrance is sheltered by a light metallic balcony, which functions as a canopy, leading to a green door, a nod to the original color of the shutters from the previous structure.
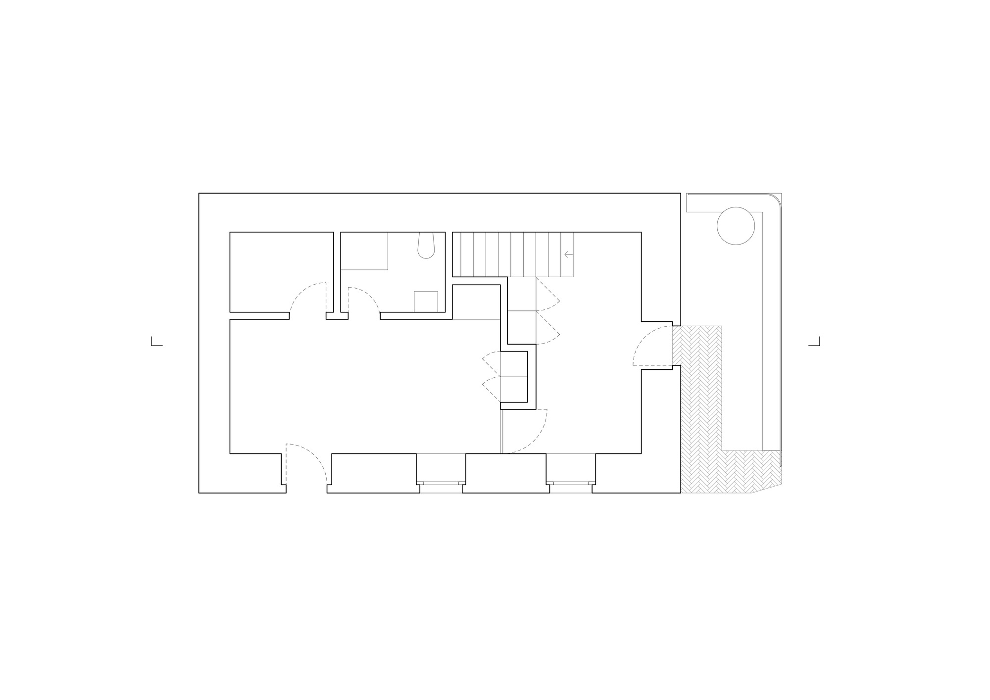
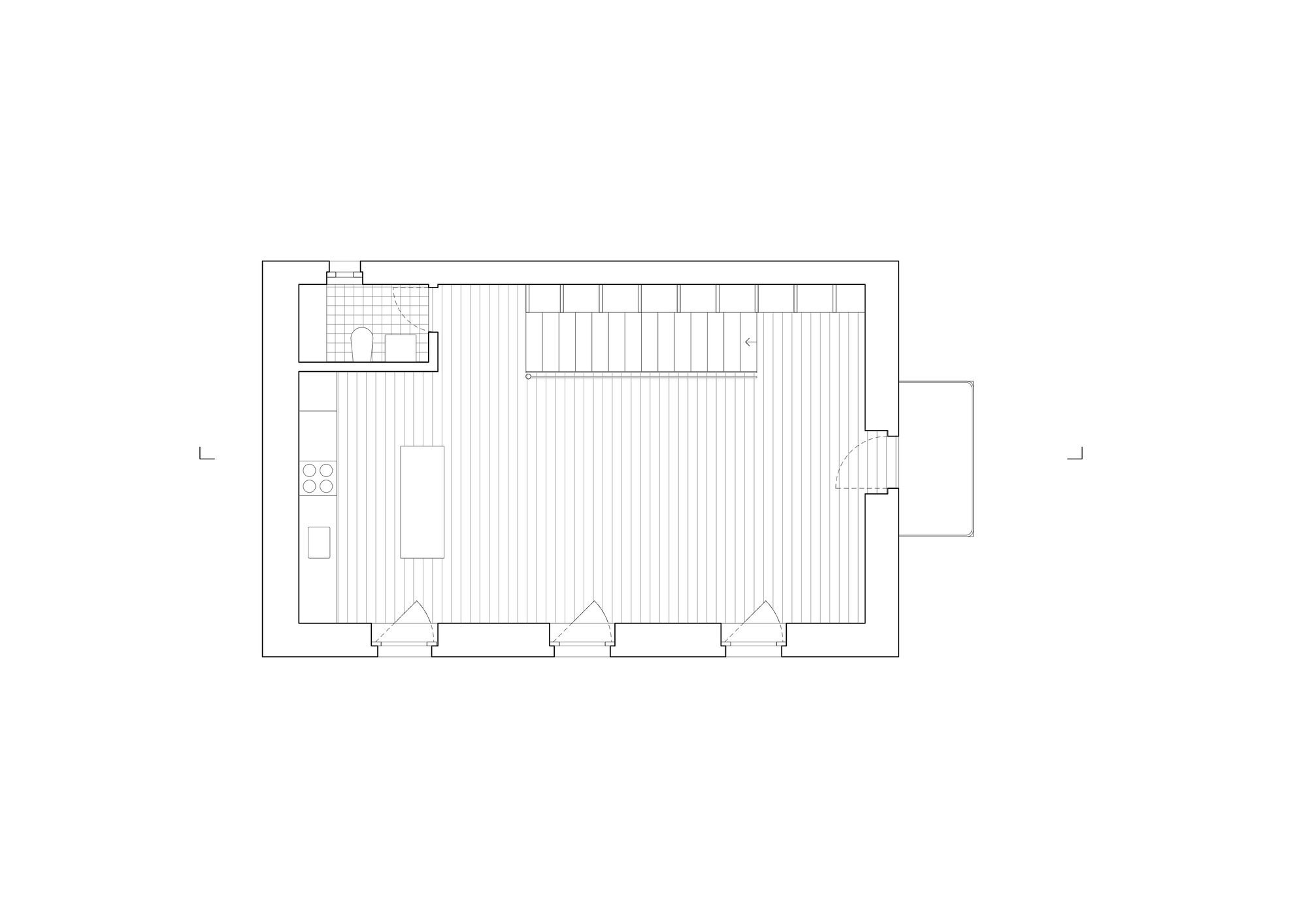
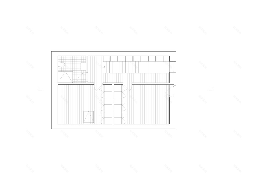
The ground floor is anchored by 45 cm thick stone walls, providing structural stability and a sense of enclosure. Its lower ceilings and dimmed lighting create a feeling of protection from the outside world. Light filtering through the staircase draws the visitor upward, into the open-plan first floor. Here, with no interior partitions, the kitchen is tucked against the wall, and three generous windows, along with exposed lasured beams, work together to offer a sense of spatial generosity within the restricted frame. Ascending the thin steel staircase, which is leaning against the double-height library, the verticality of the space is revealed. The alignment of the library structure with the roof beams frames a single circular window, allowing light to cascade through the space. This composition creates moments where the inhabitants can extend their view beyond the house, connecting with the exterior.
The project draws its strength from embracing the building's constraints, using them as a playful tool to design. Frames are more likely to enhance productions of unique characters, « Maison des Vauches » stands as a testament to how a seemingly simple building can be transformed through the careful integration of thoughtful details, resulting in a complex yet harmonious character.
Project gallery
客服
消息
收藏
下载
最近

























