查看完整案例

收藏

下载

翻译
Architects:.27 Architects
Area:400m²
Year:2023
Photographs:Mariana Bisti
Project Team:Stelina Tsifti, Panos Chatzitsakyris
Interior Design:.27 architects, Vicky Martha
Engineering & Consulting > Structural:Penelis Consulting Engineers SA
Engineering & Consulting > Mep:Margaritis Kehagias and Klimamichaniki
Landscape Architecture:Fytron Landscapes
City:Thessaloniki
Country:Greece
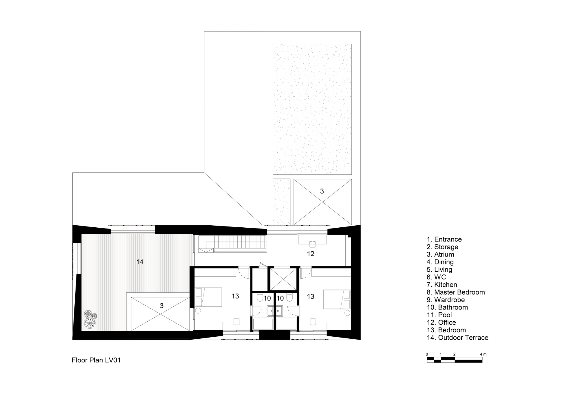
Text description provided by the architects. The core concept of the design was to create a house that embraces the Mediterranean lifestyle, where indoor and outdoor living areas are equally important, and to celebrate the richness of the light and the playfulness of the shadows under the strong sun. The design elements follow very clean shapes and volumes while at the same time, the attention to detail and material textures provide a powerful but calm overall atmosphere. The building itself forms an L-shaped layout while the outdoor pool terrace completes the outline of a full rectangle. The street-facing facades appear solid and enclosed, in direct contrast to the inner ones which are fully glazed. The exterior openings are recessed and covered with sliding panels of shading louvers. The vertical texture of the fluted stone and the louver's verticality and tonality not only add richness to the tactility of the façade but also create a uniform and calm surface. The two internal atria provide natural light and relaxing visual focal points while programmatically acting as buffers between the various spaces of the otherwise open-flow layout.
Site and context - Due to the site topography, it was not allowed to have extensive fencing on the side of the public road. Therefore, the exterior street-side façade is very introverted with minimal openings to ensure privacy. On the contrary, the residence opens completely towards the poolside where there is a panoramic view of the city.
Spatial organization - The project has an L-shaped layout that is organized around three outdoor spaces: a pool terrace with extensive cantilevering canopies and two internal atria with olive trees that bring natural light to the interior while maintaining an introverted exterior façade. The upper level of the residence is much more restricted in size and accommodates just the two children's bedrooms. However, an enclosed terrace completes the rectangular volume by providing outdoor private space with openable shaders that selectively frame the view towards the city.
Material choices - The main material in the design is a beige local stone with a vertical fluted finish. This is complemented by horizontal bands of exposed concrete with visible formwork and dark shadow gaps that are strategically placed to separate the building volumes from one another and the ground. The fluted stone was chosen because it provides a tactile feeling that is inviting to touch and offers a playful visual richness when interacting with the strong Mediterranean sun. The design takes advantage of the gentle slope of the site and creates a concrete building base that is thin on the street side and tapers thicker towards the terrace side to accommodate the depth of the pool. At the same time, the concrete cantilevered canopies are tapering towards the opposite direction: while starting thin on the terrace side, they become a thick inverted structural beam at the street-side façade. This design gesture contributes to making the upper volume appear deceptively smaller than that of the lower volume and thus reduces the overall impact of the building on the site.
Project gallery
客服
消息
收藏
下载
最近
























