查看完整案例

收藏

下载

翻译
Architects:Gallister + Partner,Kronaus Mitterer Architekten ZT GmbH
Area:4991m²
Year:2022
Photographs:David Schreyer
Project Leader:Peter Müller
Program / Use / Building Function:Museum
Engineering:Vasko+Partner
Landscape Design:Lindle+Bukor
Exhibition Design:Tamschik Media+Space
General Contractor:Porr, Equans Austria
City:Tulln an der Donau
Country:Austria
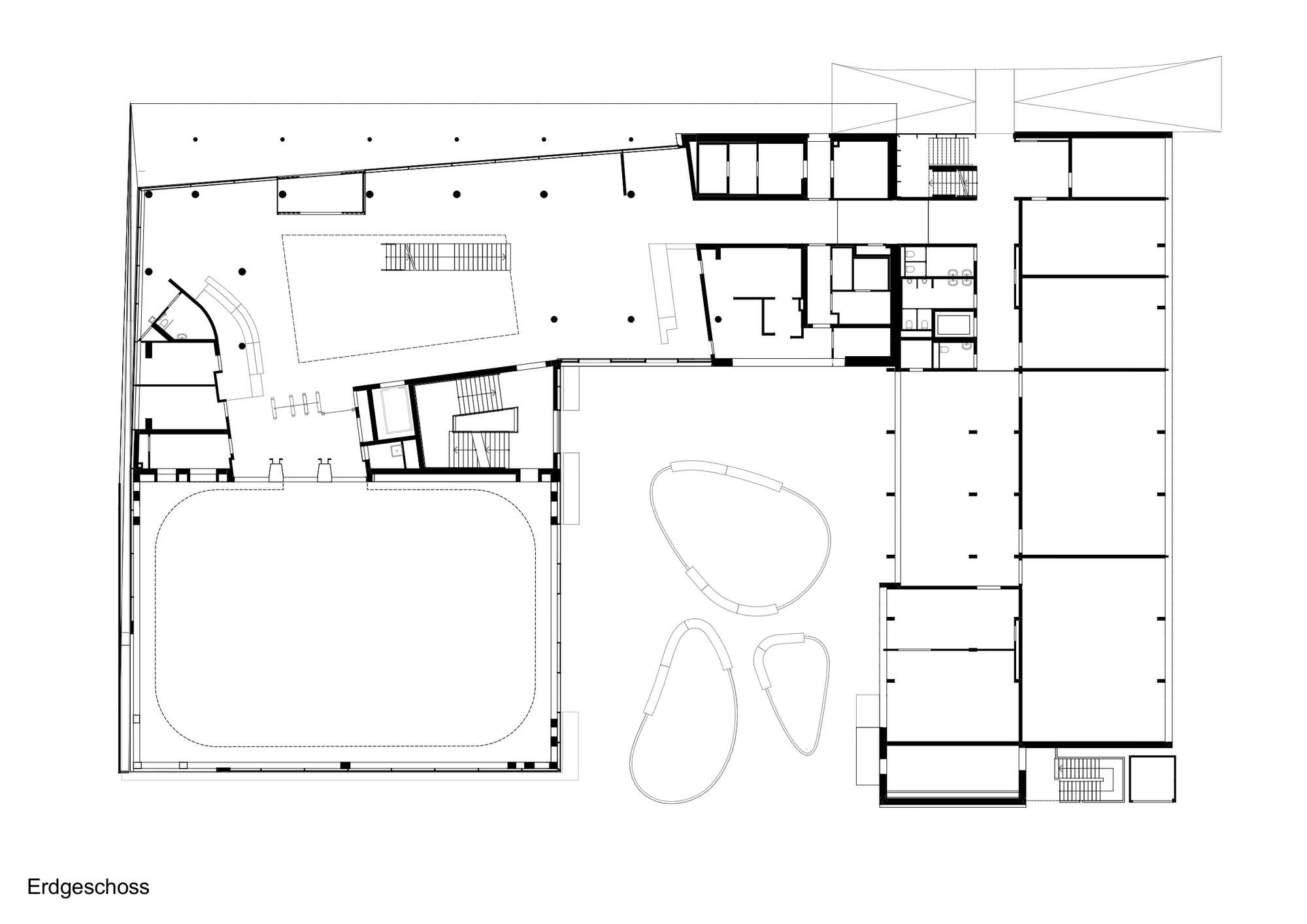
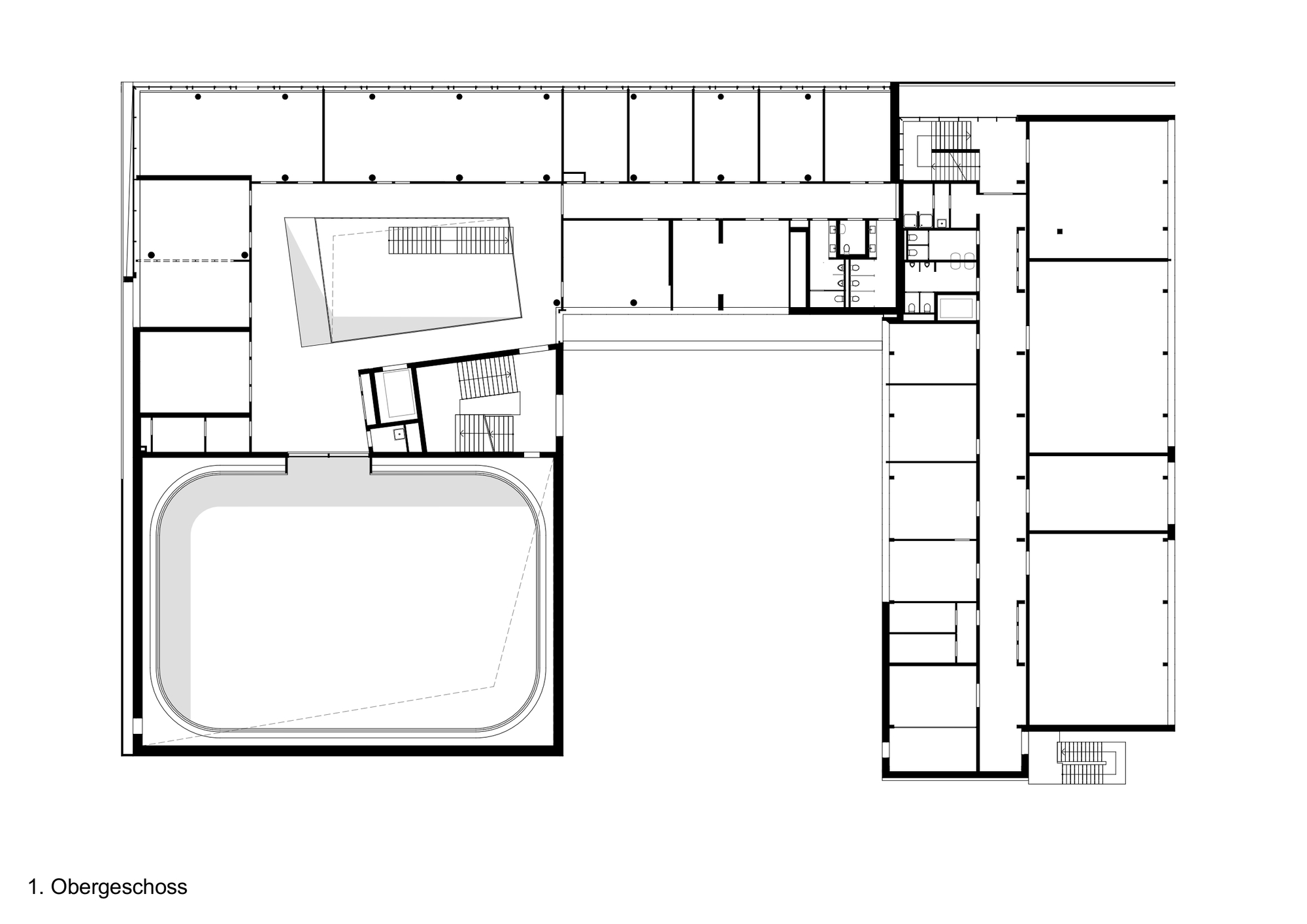
Text description provided by the architects. The House of Digitalization in Tulln, Lower Austria, is a flagship project for the state's digitalization strategy and creates a physical interface between the real and virtual worlds.
The mixed-use building features a showroom for digital technologies, start-up offices, a cafe, and auditoriums for the University of Applied Sciences Tulln. A multi-layered media facade communicates the topic of digitalization to its surroundings.
The printed glass facade offers a poetic interpretation of digitalization by reflecting the sky and displaying data and words as if they were appearing in the clouds.
The heart of the building is the flexible showroom that can transform into an event hall, complete with a 360° LED wall to offer an immersive experience to visitors. The project showcases the potential of digitalization in architecture, providing a space for discussion, innovation, and education.
Project gallery
Project location
Address:Konrad-Lorenz-Straße 10, 3430 Tulln an der Donau, Austria
客服
消息
收藏
下载
最近























